Hallo liebe Häusle-Bauer,
gerne würden wir von eurem Erfahrungsschatz profitieren und es würde uns freuen, wenn ihr unseren Grundrissentwurf kritisch hinterfragt. Anbei sind die Bilder.
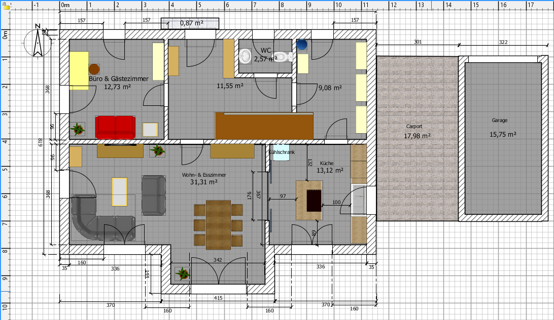
Wir haben vor kurzem ein Grundstück gefunden und haben angefangen zu planen. Von der Hausform und Gestaltung her habe ich mich in ein Haus von Kitzlinger verliebt (Referenzhaus Erkenbrechtsweiler). Dieses Cape Cod in Sandelholz- bzw. Chappucino-Farbe sieht einfach toll aus, finde ich und harmoniert super mit weiß. Mit einem Freeware-Programm habe ich die Außenmaße kopiert und die Innenwände sowie Treppe ganz nach unserem Geschmack neu angeordnet. Es ist also nur der Entwurf eines Laien. Habe aber natürlich soweit es geht von anderen Grundrissen kopiert.
Die Ideen dahinter:
- Uns gefällt eine gerade Treppe besser auch wenn sie viel Platz kostet. Ist aber kein Must Have.
- Das Büro/Gästezimmer (Nordwesten) sollte im EG liegen, da meine Frau es beruflich braucht und gerne auch mal Unterlagen ins Wohnzimmer mitnimmt.
- Die Idee mit der abtrennbaren Küche: Offene Küche ist toll. Wir hätten aber gerne die Möglichkeit, diese zu schließen. Wenn man genau hinschaut, habe ich bei der Wand zwischen Speisekammer und Küche eine Lücke gelassen. Dort könnte man eine dünne leichte Trennwand als Schiebe-Element einbauen, mit der man die Küche komplett vom Wohnzimmer abtrennen könnte. Ich weiß, das wären 4 Meter. So eine lange Schiebetür ist ne Sonderanfertigung und die Frage ist, ob man das überhaupt bauen kann.
Weiteres:
- KFW 55
- Massiv-Haus mit Ziegelsteinen (dann stimmen wahrscheinlich die Wandstärken im Grundriss nicht)
- Luftwasser-Wärmepumpe mit Fußbodenheizung
Viele Grüße

gerne würden wir von eurem Erfahrungsschatz profitieren und es würde uns freuen, wenn ihr unseren Grundrissentwurf kritisch hinterfragt. Anbei sind die Bilder.
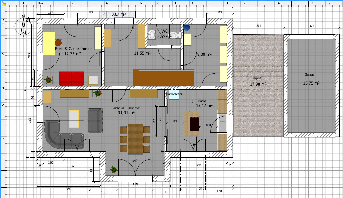
Wir haben vor kurzem ein Grundstück gefunden und haben angefangen zu planen. Von der Hausform und Gestaltung her habe ich mich in ein Haus von Kitzlinger verliebt (Referenzhaus Erkenbrechtsweiler). Dieses Cape Cod in Sandelholz- bzw. Chappucino-Farbe sieht einfach toll aus, finde ich und harmoniert super mit weiß. Mit einem Freeware-Programm habe ich die Außenmaße kopiert und die Innenwände sowie Treppe ganz nach unserem Geschmack neu angeordnet. Es ist also nur der Entwurf eines Laien. Habe aber natürlich soweit es geht von anderen Grundrissen kopiert.
Die Ideen dahinter:
- Uns gefällt eine gerade Treppe besser auch wenn sie viel Platz kostet. Ist aber kein Must Have.
- Das Büro/Gästezimmer (Nordwesten) sollte im EG liegen, da meine Frau es beruflich braucht und gerne auch mal Unterlagen ins Wohnzimmer mitnimmt.
- Die Idee mit der abtrennbaren Küche: Offene Küche ist toll. Wir hätten aber gerne die Möglichkeit, diese zu schließen. Wenn man genau hinschaut, habe ich bei der Wand zwischen Speisekammer und Küche eine Lücke gelassen. Dort könnte man eine dünne leichte Trennwand als Schiebe-Element einbauen, mit der man die Küche komplett vom Wohnzimmer abtrennen könnte. Ich weiß, das wären 4 Meter. So eine lange Schiebetür ist ne Sonderanfertigung und die Frage ist, ob man das überhaupt bauen kann.
Weiteres:
- KFW 55
- Massiv-Haus mit Ziegelsteinen (dann stimmen wahrscheinlich die Wandstärken im Grundriss nicht)
- Luftwasser-Wärmepumpe mit Fußbodenheizung
Viele Grüße
4Motion schrieb:
Was befürchtest du denn bei "Massivhaus mit Ziegelsteinen" ?
Ich wollte keine Grundsatzdiskussion starten Massivhaus oder Fertighaus. Meine Frau hätte gerne ein Massivhaus wegen der Kältespeicherfähigkeit im Sommer.Ich "befürchtete" genau solche emotionale Motivation, deren Sachgrund nur bedingt zutrifft. Mit der Abnahme der Wandstärke (sofern man mit WDVS baut, teilt sich die Wandstärke meist annähernd hälftig in innere Statikschale und äußere Dämmschale, d.h. homogen "massiv" ist es dann gar nicht) relativieren sich auch die Unterschiede in den Eigenschaften der Wandaufbauten / Baustoffe (und damit der "Beitrag" der Wand zum Klima).4Motion schrieb:
Maximale Höhen/Begrenzungen: Gesamthöhe maximal 518,80Das ist eine absolute Höhenangabe ü. NN. und nützt uns ohne Kenntnis der Bezugshöhe (= +/- 0.00) nichts, da die andere Hälfte der Information fehlt.4Motion schrieb:
Dachform: Am liebsten Satteldach mit GaubeBei Deinem Entwurf / Referenzhaus ist das ein Zwerchgiebel.4Motion schrieb:
- Die Dachschrägen gefallen uns nicht wenn sie zu ausgeprägt sind am Hausrand.soll heißen: die Winkel an den Traufen sollen mittels Kniestock (vulgo aka "Drempel") gemildert sein ?https://www.instagram.com/11antgmxde/
https://www.linkedin.com/company/bauen-jetzt/
4Motion schrieb:
Höhe darf 9,40 m sein.Also 9,40 m Firsthöhe, aber ab wo gemessen ?4Motion schrieb:
Nein kein Drempel, sondern Kniestock höher ( >1,60m ?) damit Dachschrägen nicht stören.Wenn der Bebauungsplan nur die Firsthöhe und nicht auch die Traufhöhe begrenzt, ist ein unbegrenzter Kniestock zwar häufig möglich, sollte man aber nachsehen.https://www.instagram.com/11antgmxde/
https://www.linkedin.com/company/bauen-jetzt/
Ich finde das Wohnzimmer viel zu schmal, wenn ich es richtig lese, nur 3,68m? Ich finde, es sollte mindestens 4 m sein, damit das Wohn/Esszimmer nicht wie ein langer Schlauch wirkt. Ich schlage vor, die Breite vom Arbeitszimmer zu verkleinern (z.B. auf 3m), das würde schon die benötigten cm bringen...
Ähnliche Themen