Guten Abend!
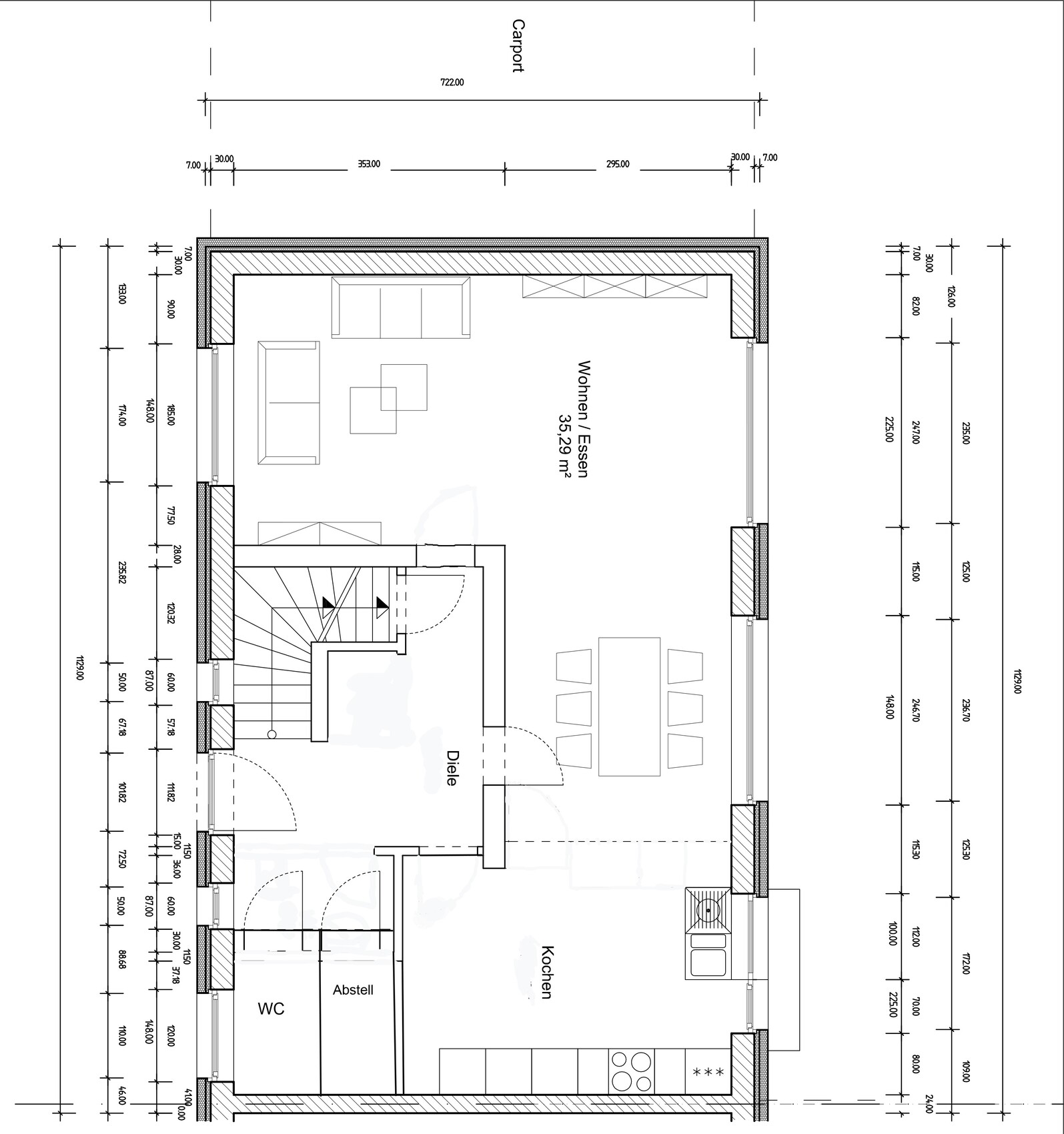
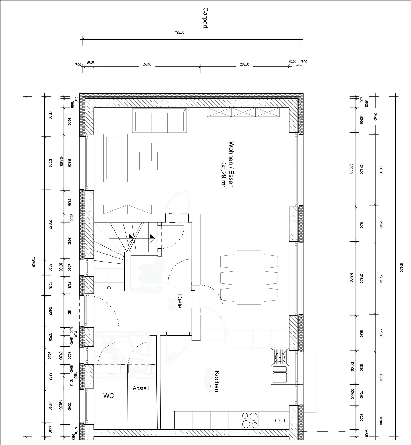
Wir haben eine Bestandsimmobilie gekauft und möchten, da sowieso renoviert werden muss, den vorhandenen Platz optimal nutzen.
Größter ungenutzter Raum ist meiner Meinung nach die Erweiterung der Küche. Möglich wäre ein kleiner Küchentisch/Essmöglichkeit. Allerdings finde ich der Raum kann besser verplant werden, da der Esstisch in direkter Nähe zur (halboffenen, mit Schiebetür abgetrennter)Küche steht.
Gleichzeitig ist der Flur aktuell eher klein mit wenig Stauraummöglichkeiten (Garderobe, Schuhe, Hundeleine).
Im Obergeschoss befinden sich 4 Zimmer und 2 Bäder. Im Keller steht die Waschmaschine.
Angehängt findet ihr den aktuellen Grundriss und zwei Ideen die wir hatten um den Flur etwas sinnvoller nutzen zu können bzw eine Abstellkammer (für Staubsauger etc.) zu integrieren. Ich bin für jede Hilfe und Denkanstöße dankbar!
Viele Grüße



Wir haben eine Bestandsimmobilie gekauft und möchten, da sowieso renoviert werden muss, den vorhandenen Platz optimal nutzen.
Größter ungenutzter Raum ist meiner Meinung nach die Erweiterung der Küche. Möglich wäre ein kleiner Küchentisch/Essmöglichkeit. Allerdings finde ich der Raum kann besser verplant werden, da der Esstisch in direkter Nähe zur (halboffenen, mit Schiebetür abgetrennter)Küche steht.
Gleichzeitig ist der Flur aktuell eher klein mit wenig Stauraummöglichkeiten (Garderobe, Schuhe, Hundeleine).
Im Obergeschoss befinden sich 4 Zimmer und 2 Bäder. Im Keller steht die Waschmaschine.
Angehängt findet ihr den aktuellen Grundriss und zwei Ideen die wir hatten um den Flur etwas sinnvoller nutzen zu können bzw eine Abstellkammer (für Staubsauger etc.) zu integrieren. Ich bin für jede Hilfe und Denkanstöße dankbar!
Viele Grüße
Mach den Abstellraum planunten links unter das WC. Dann hast Du eine schöne Hinterküche mit Abstellfläche für Sauger und co.
Die Küche kannst Du ja öffnen und schön mit Kochinsel und co bestücken. WZ- Tür würde ich verschließen und statt dessen eine Glasdoppeltür zum Essbereich setzen.
Die Küche kannst Du ja öffnen und schön mit Kochinsel und co bestücken. WZ- Tür würde ich verschließen und statt dessen eine Glasdoppeltür zum Essbereich setzen.
Pelusa schrieb:
Ich bin für jede Hilfe und Denkanstöße dankbar!Na, dann pack´ mal noch die anderen Geschosse dazu, und Bilder schaden auch nicht. "Bestand" heißt von wann ?https://www.instagram.com/11antgmxde/
https://www.linkedin.com/company/bauen-jetzt/
Ähnliche Themen