ᐅ Bestandsgebäude Einfamilienhaus - Welche Änderungrn des Grundrisses machbar und sinnvoll?
Erstellt am: 03.01.26 13:50
F
FragenderNeul.F
FragenderNeul.03.01.26 13:50Guten Tag zusammen,
ich würde gerne das Schwarmwissen nutzen und umsetzbare Ideen für die Anpassung der Raumaufteilung bzw. des Grundrisses mit dem Forum austauschen.
Es geht um ein älteres (Einfamilien-) Haus.
Die Maßangaben der Grundrisse sind nicht 100% genau, sollten jedoch für einen Überblick und eine Planung ausreichend sein.
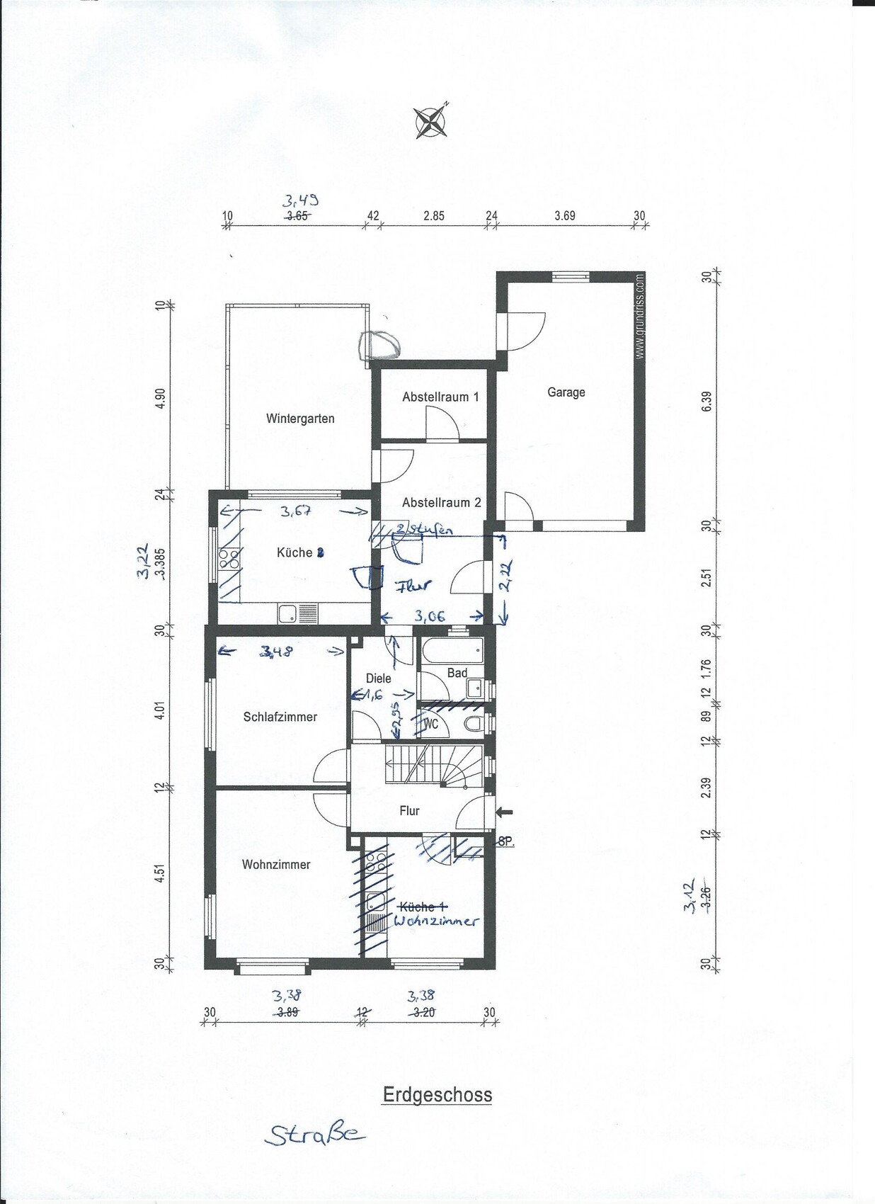
Die Immobilie besteht aus mehreren Teilen: Einfamilienhaus, daran angeschlossen ein Flachdach-Anbau mit Küche und Flur, daran ein ehemaliger Schuppen mit Küchenschränken sowie Spüle und Vorratsraum und Zugang zum Wintergarten. Garage direkt neben ehemaligen Schuppen. Die Innenliegenden Wand der Garage ist die des Schuppens und wahrscheinlich tragend. (Garage hat Betondecke). Wie ist hier eure grobe Einschätzung ob hier überhaupt eine Tür von Garage zum "Abstellraum 2" möglich wäre?
- Derzeit gibt es 2 Eingänge in das Haus von der Auffahrt aus. Einer im Einfamilienhaus selbst, einer im Flachdach-Anbau.
- Fußboden im Erdgeschoss (außer Wohnzimmer) Beton, Badezimmer und Wintergarten jeweils mit Fußbodenerwärmung).
Meine Wünsche/Ideen:
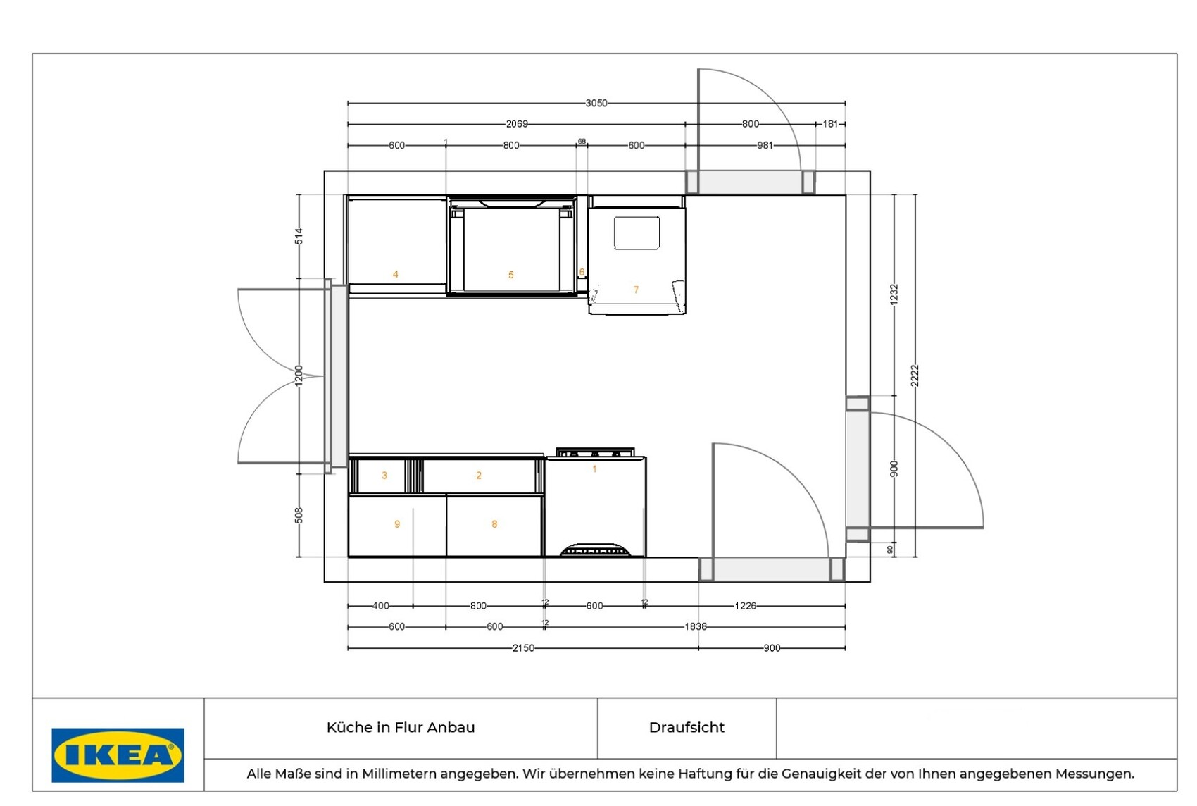
- Größere Küche bzw. Esszimmer - dazu hinteren Flur als Küche verwenden und Küche als Esszimmer? Hinteren Zugang zum Haus durch Fenster ersetzen und dafür eine Tür von der Garage in den ehemaligen Schuppen (im Grundriss "Abstellraum 2") schaffen? Wäre die Küche dann groß genug (Raum "Flur" im Anbau ist nur ca. 3,05m in Querrichtung, 2,20m in Längsrichtung. -> Küche nur im Raum "Flur" im Anbau wäre zu klein (siehe Screenshot Ikea Küchplaner)
- Unter dem Wohnzimmer befindet sich noch ein Kriechkeller, welcher zukünftig durch Betonfußboden ersetzt werden soll. (ggf. im gleichen Zuge das Wohnzimmer durch einen kleinen Anbau erweitern, um dieses etwas großzügiger zu gestalten? ca. 16 m² darf wg. Grundflächenzahl noch bebaut werden. Meinungen dazu?
- "Abstellraum 1" sollte Vorratsraum bleiben. "Abstellraum 2" soll als Hauswirtschaftsraum nutzbar sein.
Was habt ihr für Ideen? Was würdet ihr bei dem bestehenden Grundriss ändern und warum?
Die Planung sollte für einen 2-4 Personen Haushalt sein.










ich würde gerne das Schwarmwissen nutzen und umsetzbare Ideen für die Anpassung der Raumaufteilung bzw. des Grundrisses mit dem Forum austauschen.
Es geht um ein älteres (Einfamilien-) Haus.
Die Maßangaben der Grundrisse sind nicht 100% genau, sollten jedoch für einen Überblick und eine Planung ausreichend sein.
Die Immobilie besteht aus mehreren Teilen: Einfamilienhaus, daran angeschlossen ein Flachdach-Anbau mit Küche und Flur, daran ein ehemaliger Schuppen mit Küchenschränken sowie Spüle und Vorratsraum und Zugang zum Wintergarten. Garage direkt neben ehemaligen Schuppen. Die Innenliegenden Wand der Garage ist die des Schuppens und wahrscheinlich tragend. (Garage hat Betondecke). Wie ist hier eure grobe Einschätzung ob hier überhaupt eine Tür von Garage zum "Abstellraum 2" möglich wäre?
- Derzeit gibt es 2 Eingänge in das Haus von der Auffahrt aus. Einer im Einfamilienhaus selbst, einer im Flachdach-Anbau.
- Fußboden im Erdgeschoss (außer Wohnzimmer) Beton, Badezimmer und Wintergarten jeweils mit Fußbodenerwärmung).
Meine Wünsche/Ideen:
- Größere Küche bzw. Esszimmer - dazu hinteren Flur als Küche verwenden und Küche als Esszimmer? Hinteren Zugang zum Haus durch Fenster ersetzen und dafür eine Tür von der Garage in den ehemaligen Schuppen (im Grundriss "Abstellraum 2") schaffen? Wäre die Küche dann groß genug (Raum "Flur" im Anbau ist nur ca. 3,05m in Querrichtung, 2,20m in Längsrichtung. -> Küche nur im Raum "Flur" im Anbau wäre zu klein (siehe Screenshot Ikea Küchplaner)
- Unter dem Wohnzimmer befindet sich noch ein Kriechkeller, welcher zukünftig durch Betonfußboden ersetzt werden soll. (ggf. im gleichen Zuge das Wohnzimmer durch einen kleinen Anbau erweitern, um dieses etwas großzügiger zu gestalten? ca. 16 m² darf wg. Grundflächenzahl noch bebaut werden. Meinungen dazu?
- "Abstellraum 1" sollte Vorratsraum bleiben. "Abstellraum 2" soll als Hauswirtschaftsraum nutzbar sein.
Was habt ihr für Ideen? Was würdet ihr bei dem bestehenden Grundriss ändern und warum?
Die Planung sollte für einen 2-4 Personen Haushalt sein.
Sicherlich ist das ein oder andere möglich. Tragende Wände könnte man theoretisch ersetzen durch einen Träger.
Aber erst einmal die Frage: wie werden denn die drei andere Räume genutzt, sodass man sich mit einem wichtigen Raum, der, wenn man es richtig machen will, doch etwas mehr Fläche beanspruchen könnte als dass er in die eher untergeordneten Räume eingeplant werden soll?
Aber erst einmal die Frage: wie werden denn die drei andere Räume genutzt, sodass man sich mit einem wichtigen Raum, der, wenn man es richtig machen will, doch etwas mehr Fläche beanspruchen könnte als dass er in die eher untergeordneten Räume eingeplant werden soll?
Nida35a schrieb:
Wenn das teilweise Schwarzbauten sind, habt ihr ein Problem mit Umbauen.Wie kommst Du zu der Annahme? Es sind doch Fach-Planungen vom Ganzen ersichtlich?! Die lässt man ja nicht aus Jux und Dollerei machen.Zunächst muss natürlich geprüft werden, ob der Gebäudebestand genehmigt worden ist. I.d.R. ist er das nicht vollständig - insbesondere Anbauten; Umnutzungen, Erweiterungen etc., die über Jahrzehnte stattgefunden haben, fehlt oftmals der Nachweis der Genehmigung. Eine Baumaßnahme gilt dann als genehmigt, wenn eine behördliche Genehmigung vorliegt: eine Planzeichnung mit einem grünen Stempel und einem Aktenzeichen. Planzeichnungen ohne diese Attribute sind vielleicht Architektenzeichnungen für geplante, aber nicht beantragte Bauvorhaben. Ohne diesen offiziellen Nachweis muss von illegalen Bauten ausgegangen werden. Ein Blick in das Archiv der Kreisbaubehörde ist da hilfreich und kann vom Eigentümer beantragt werden.
Fehlen die Genehmigungen, gibt es einProblem. Ev. kann nachgenehmigt werden - es bleibt allerdings vorab zu prüfen, ob die bis dato nicht genehmigten Bauten prinzipiell überhaupt genehmigungsfähig gewesen wären. Wenn nicht, gibt es keine nachträgliche Baugenehmigung. Für diese nicht genehmigten Bauten gibt es auch keinen Bestandsschutz. Wenn ja, muss ein neuer Bauantrag gestellt werden, für den das aktuelle Landesbaurecht gilt. Dazu gehört auch eine Nachtragsstatik.
Lassen Sie sich am Besten durch einen erfahrenen Architekten zu dieser Ausgangsituation beraten. Er kann auch die weitere Vorgehensweise mit den Behörden abstimmen und ggf. eine baurechtlich saubere "Sonderlösung" für Ihr Objekt etnwickeln. Für Ihr eigentliches Umbauvorhaben ist er dann auch der richtige Ansprechpartner. Eine solche Projektplanung mit energetischer Sanierung ist ein komplexes Vorhaben, das Sie nicht in einem Forum bearbeiten können.
Fehlen die Genehmigungen, gibt es einProblem. Ev. kann nachgenehmigt werden - es bleibt allerdings vorab zu prüfen, ob die bis dato nicht genehmigten Bauten prinzipiell überhaupt genehmigungsfähig gewesen wären. Wenn nicht, gibt es keine nachträgliche Baugenehmigung. Für diese nicht genehmigten Bauten gibt es auch keinen Bestandsschutz. Wenn ja, muss ein neuer Bauantrag gestellt werden, für den das aktuelle Landesbaurecht gilt. Dazu gehört auch eine Nachtragsstatik.
Lassen Sie sich am Besten durch einen erfahrenen Architekten zu dieser Ausgangsituation beraten. Er kann auch die weitere Vorgehensweise mit den Behörden abstimmen und ggf. eine baurechtlich saubere "Sonderlösung" für Ihr Objekt etnwickeln. Für Ihr eigentliches Umbauvorhaben ist er dann auch der richtige Ansprechpartner. Eine solche Projektplanung mit energetischer Sanierung ist ein komplexes Vorhaben, das Sie nicht in einem Forum bearbeiten können.
Bezüglich #3 und #5 ziehe ich meine Aussagen zu #2 und #4 zurück und frage erst einmal, ob Du Dir die Immobilie überhaupt leisten kannst. Gehe auf jeden Fall erst einmal zu einem Finanzierungsmakler und lasse Dir die Finanzierung inklusive einer Sanierung auf den heutigen Energie-Standard ausrechnen. Man kann ja davon ausgehen, dass Du Dir die Folgen der Verantwortung über die nächsten 30 Jahre gar nicht bewusst bist.
Und dann ist davon auszugehen, dass ohne einem biochemischen Nachweis Schimmel im Keller vorhanden ist.
Ohne eine Rundum-Freilegung würde ich auch von einer Leckage im Keller ausgehen. Denn es ist ja nicht das Gegenteil bewiesen.
Ach, das ist gar nicht gefragt? Ich weiß. Ist auch nur warnend gut gemeint. Denn man muss erst einmal mit gesundem Menschenverstand davon ausgehen, dass die Immobilie, Pardon der Anbau, schwarz erbaut ist, wenn man naiverweise einfach mal fragt, was der Grundriss so hergibt 😉
Und dann ist davon auszugehen, dass ohne einem biochemischen Nachweis Schimmel im Keller vorhanden ist.
Ohne eine Rundum-Freilegung würde ich auch von einer Leckage im Keller ausgehen. Denn es ist ja nicht das Gegenteil bewiesen.
Ach, das ist gar nicht gefragt? Ich weiß. Ist auch nur warnend gut gemeint. Denn man muss erst einmal mit gesundem Menschenverstand davon ausgehen, dass die Immobilie, Pardon der Anbau, schwarz erbaut ist, wenn man naiverweise einfach mal fragt, was der Grundriss so hergibt 😉
Ähnliche Themen