ypg schrieb:
Ich würde wohl die Doppelgarage in den Osten setzen.
Haus mittig. Ihr habt Hang. Schon überlegt, wie das Hauskonzept (Größe) jetzt ausfallen wird? Keller zum Osten offen, ggf dort schon eine Schlaf-Etage (oder Büro, Hobby) zusätzlich zu Nutzräumen, EG als Aufenthalt mit Terrasse zum Westgarten, OG Schlaf-Etage.Ziemlich genau so sind unsere Pläne.
220 qm zzgl Keller
Zur Westseite ist jetzt halt die Frage, ob wir lieber unser Haus so weit wie möglich nach Westen setzen um dadurch eventuell einen Sichtschutz zu haben.
Eventuell mit Pergola? Mauerverlängerung oder L Form oder oder oder ...
Danke für Eure Ideen dazu....
GlG
kbt09 schrieb:
Das ist halt noch sehr ungenau 1 bis 2 m auf 40 m Grundstücksbreite sieht nicht nach Wohn-
UG aus.@sanftmut ... wäre mal sinnvoll zu wissen wie denn nun genau die Hanglage ist ... ist es nur 1m oder sind es 2 m ... selbst 2 m wären bei einer Hausbreite von ca. 15 m nur ca. 75 cm Höhenunterschied.sanftmut schrieb:
Zur Westseite ist jetzt halt die Frage, ob wir lieber unser Haus so weit wie möglich nach Westen setzen um dadurch eventuell einen Sichtschutz zu haben.Ich weiß jetzt nicht, was Du glaubst, wie viel Spielraum ihr habt?
Mit 3 Metern zum Nachbarn verbleibt bei der Hausgröße nicht viel mit „nach Westen schieben“. Und wenn es sich jetzt um 2 Meter handelt, muss man jetzt nicht darüber diskutieren, Sichtschutz ergibt das jedenfalls nicht.
Die schräge Baugrenze ist nicht von Vorteil.
Der Hang sieht immer flacher aus, als er ist. Wenn Du mit Keller baust und nicht gegen den Hang, wirst Du mit etwas Modellierung schon Dein richtiges Fenster im Osten fürs Büro bekommen.
Ich würd mal mit definitiven Zahlen und einem Plan ankommen, alles andere ergibt sich.
Danke!
Ein Gedanke war unter anderem ob man zB mit einer oben (Norden) möglichst weit nach West auslaufenden L-Form des EG-Grundrisses (untergeordnetes Bauteil) etwas erreicht (zB mit Ballon oben darauf). Mit dem Ziel, sich so „gegen“ den nördlichen und damit auch etwas höher gelegenen Nachbarn (der vermutlich nach Südwest ausrichten wird) einen besseren Sichtschutz zu machen ....
Nur als Idee.... was meint Ihr?
Ich werde mal was hier reinstellen sobald ich was in der nächsten Runde habe...
LG ✊
Ein Gedanke war unter anderem ob man zB mit einer oben (Norden) möglichst weit nach West auslaufenden L-Form des EG-Grundrisses (untergeordnetes Bauteil) etwas erreicht (zB mit Ballon oben darauf). Mit dem Ziel, sich so „gegen“ den nördlichen und damit auch etwas höher gelegenen Nachbarn (der vermutlich nach Südwest ausrichten wird) einen besseren Sichtschutz zu machen ....
Nur als Idee.... was meint Ihr?
Ich werde mal was hier reinstellen sobald ich was in der nächsten Runde habe...
LG ✊
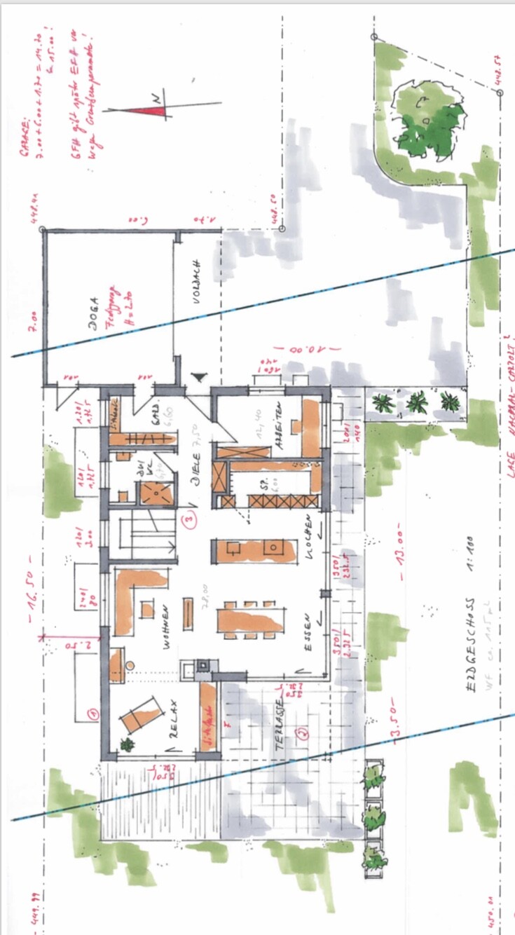
So die Herrschaften,
uns liegt nun der erste Entwurf des Architekten vor.
Anbei die Ersten „Vor-Entwürfe“ des Architekten.
Wir haben natürlich bereits erste Änderungswünsche/Ideen kommuniziert. Aber das ist der aktuelle Stand auf Papier.
Wer Lust hat, ist natürlich herzlich eingeladen seine Gedanken dazu zu sagen!
Sind nicht ganz sicher was wir davon halten - insbesondere DG.
Und ob nicht ein 2m breiteres Haus also 12 statt 10 m (Nord-Süd) die Raumplanung erleichtern und „großzügig“ wirken lassen...
Danke im Voraus und
GlG




uns liegt nun der erste Entwurf des Architekten vor.
Anbei die Ersten „Vor-Entwürfe“ des Architekten.
Wir haben natürlich bereits erste Änderungswünsche/Ideen kommuniziert. Aber das ist der aktuelle Stand auf Papier.
Wer Lust hat, ist natürlich herzlich eingeladen seine Gedanken dazu zu sagen!
Sind nicht ganz sicher was wir davon halten - insbesondere DG.
Und ob nicht ein 2m breiteres Haus also 12 statt 10 m (Nord-Süd) die Raumplanung erleichtern und „großzügig“ wirken lassen...
Danke im Voraus und
GlG
Ähnliche Themen