Hausbau - Ratgeber
Bauherrenhilfe
- Bauherrenhilfe vor Vertragsabschluss
-- Warum einen unabhängigen Baubetreuer?
-- Vertragsgrundlagen
-- Bausumme
-- Zahlungsplan zur Kostenkontrolle
-- Pflichten des Bauherren vor Vertragsabschluss
-- Unterlagen beim Hausbau vor Vertragsabschluss
- Bauherrenhilfe nach Vertragsabschluss
-- Bauantrag bei Behörden
-- Bau-Genehmigungsverfahren bei Baubehörden
-- Bauspezifische Versicherungen
-- Bauzeitenplan
-- Baubeginn - die Letzten Pflichten der Bauherrschaft
- Bauherrenhilfe während der Bauzeit
- Gewährleistungsansprüche
- Bauabnahme
Baufinanzierung
- Baufinanzierung - Allgemeine Fragen
- Kreditarten
- Kredit-Konditionen
- Bausparen
- Staatliche Förderungen
- Verkehrswert
- Haushaltsrechnung und Bonität
Hausbau Planung
- Haustypen
- Hausbau Vorbereitungsarbeiten
- Das Baugrundstück
- Baugrund beim Hausbau
- Baurecht
- Gebäudeschutz
- Erdarbeiten und Wasserhaltung
- Stützmauern
- Einfriedung
- Untergeschoss
- Kanalisation
- Tragende Elemente
- Nichttragende Innenwände
- Fundation / Fundament
- Deckenkonstruktionen
- Dächer
- Kaminanlagen
- Treppen Rampen Leitern
- Dachbeläge und Spengler
- Fenster
- Sonnen und Wetterschutz
- Aussenputze
- Einbauten, Küchen, Türen
- Bodenbeläge und Unterlagsböden
- Parkett
- Gips, Wand, Decke
Haustechnik und Energie
- Heiztechnik
- Lüftung und Klimatechnik
- Sanitärtechnik
- Elektrotechnik
- Erneuerbare Energie
Whirlpools / Jacuzzi
Hausbau Magazin
- Baufinanzierung trotz Krise?
- Das Blockhaus
- Moderne Dämmstoffe im Vergleich
- Erker Vor- und Nachteile
- Glasflächen beim Hausbau
- Günstig ein Haus Bauen
- Mediterraner Hausbaustil
- Mehrgenerationenhaus
- Moderne Architektur
- Gartengestaltung leicht gemacht
- Traditioneller Ziegelbau
- Villa als höchster Traum
- Im Eigenheim Ruhestand geniessen
- Altbau sanieren
- Kauf einer Holzgarage
- Immobilienmakler
- Arbeitshandschuhe für den Winter
- Zuhause verschönern
- Outdoor-Plissees
- Schlafzimmer planen
- Terrassenüberdachung
- Wohngebäudeversicherung
- Zaunarten und Eigenschaften
- Hauseingang gestalten
- Der perfekte Grundriss
- Sparsamer heizen im Altbau
- Einfamilienhaus smart finanzieren
- Planung einer PV-Anlage
- Neues Haus
- Immobilienfinanzierung
- Installation einer Photovoltaikanlage
- Asbest erkennen und entfernen
- Gartenpflege im Frühling – worauf achten
- Sauna im Fokus - Wellness zuhause
- Erfolgreich vermieten
- Die perfekte Winterbekleidung
- Das Niedrigenergiehaus
- Der April und seine Stürme
- Architektonische Vielfalt
- Ökologisch und nachhaltig bauen
- Das perfekte Schlafzimmer
- Nachhaltige Energieversorgung
- Zukunftsorientiert bauen
- Nachhaltigkeit beim Hausbau
- Tiny Houses
- Wärmepumpen als nachhaltige Heizvariante
- Maßgeschneiderten Kleiderschrank
- Der richtige Baukredit
- Ratgeber für erfolgreichen Hausbau
- Haus als Altersvorsorge
Do-it-yourself Anleitungen
- Verlegeanleitung für Bodenbeläge und Parkett
- Bodenbeläge und Parkett reinigen und pflegen
- Malerarbeiten am Haus
- Garten Tipps
- Umzug und Reinigung

ᐅ Badplanung mit Dachschräge, Traufhöhe 1m

Erstellt am: 06.07.16 15:43
B
bluminger
bluminger06.07.16 15:43
Hallo.

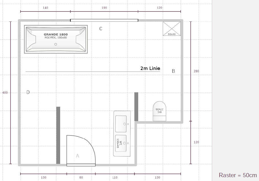
Wir sind gerade am Austüfteln, wie wir im Dachgeschoss unser Bad machen wollen.

Der Raum hat eine recht große Grundfläche von über 16qm, allerdings eine Traufhöhe von 1 Meter.
Außerdem ist eine Nordgaube vorgesehen.

Anforderungen:
2 Erwachsene, die hauptsächlich duschen; Frau benutzt aber auch ab und zu die Badewanne. Kinder sind 2,5 Jahre und 2 Wochen alt - Wasser von oben ist verhasst, hier wird nur in der Wanne gebadet. Außerdem wird noch ein Klo benötigt. Im EG wird noch ein Gästebad entstehen, trotzdem gehen wir momentan von 2 waschbecken im DG aus.

Ich habe mal unsere momentane Idee angehängt. Als Strich habe ich die 2 Meter Linie eingezeichnet. Das Fenster ist eine Dachgaube (streng genommen Zwerchhaus).


Grundriss eines Raumes mit Badewanne links oben, WC rechts unten, Tür links unten.


Danke für Eure Meinungen und Anregungen. Kritik willkommen!
sirhc06.07.16 16:02
Das Waschbecken im Eingangsbereich finde ich sehr ungemütlich.

Was ist da mit 50x40 eingezeichnet?
bluminger06.07.16 16:10
sirhc schrieb:
Was ist da mit 50x40 eingezeichnet?
Das soll ein Schränkchen symbolisieren.

Was noch erwähnt werden sollte: Die Tür kann noch versetzt werden (in der Wand A oder D).
sirhc06.07.16 16:17
Man müsste den Kontext sehen, also den Grundriss vom ganzen Geschoss. Wanne und WC müssten meiner Meinung nach unter der Schräge Platz finden. Bei Zugang über Wand D könnte die Dusche dahin, wo jetzt das Waschbecken sitzt, und das Waschbecken dann auf die Trennwand zur Dusche. Ginge natürlich nur, wenn das Gemauert wird und nicht aus Glas sein soll.
Musketier06.07.16 18:45
Du weiß schon, dass man nicht größer als 1,20-1,30m sein darf, wenn man in deiner Wanne mittig stehen will?
bluminger06.07.16 18:58
Musketier schrieb:
Du weiß schon, dass man nicht größer als 1,20-1,30m sein darf, wenn man in deiner Wanne mittig stehen will?
Das ist klar. Aber es soll hauptsächlich eine Badewanne zum Sitzen sein. Falls jemand drin stehen will, wäre das ja prinzipiell an der Seite möglich, die in die Dachhaube ragt.
badewannewaschbeckendusche