Hallo zusammen,
ich würde mich freuen, wenn ihr einen Blick auf unsere Badplanung werfen könntet.
Hier die Hintergründe:
und sind somit für jeden Tipp dankbar!
Schon jetzt vielen Dank und schönen Abend,
Hausbaufaehig


ich würde mich freuen, wenn ihr einen Blick auf unsere Badplanung werfen könntet.
Hier die Hintergründe:
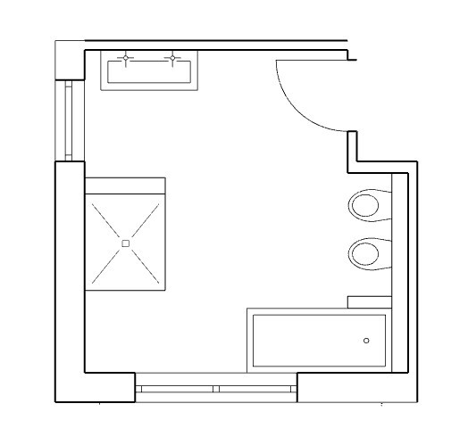
- 14,4m², OG (Vollgeschoss), Brüstungshöhe Fenster = 1m
- Entwürfe sind ziemlich genau nach Norden ausgerichtet, östlich vom Bad liegt hinter der Trockenbauwand gespiegelt das Schlafzimmer Wahrscheinlich wäre es sinnvoll, an dieser Wand nicht unbedingt das WC unterzubringen.
- Entwurf Nr. 1 entspricht der ursprünglichen Planung, ist aber aufgrund der L-Lösung nicht gewünscht (zu eng, zu wenig Licht)
- Entwurf Nr. 2 wurde uns vom Badplaner vorgeschlagen, im Anhang ist ein entsprechendes 3D-Rendering. Gefällt mir eigentlich ganz gut, die bessere Hälfte mag aber die kleine Zwischenwand sowie den Blick von der Toilette aufs Fenster nicht.
- Die weiteren Entwürfe sind meine (gescheiterten) Versuche alle Sanitärobjekte im Raum unterzubringen 🙁
- Gewünscht sind: Badewanne, Dusche (120x100cm, viel Glas, mit Tür), WC, Bidet, Waschbecken (120cm)
- Dunkle, uneinsichtige Ecken sind nicht so schön, deswegen fällt auch die T-Lösung raus
- Notfalls würden wir auch eine freistehende Badewanne, ggf. auch Eckbadewanne wählen, falls damit alles besser passt.
- Auch das Verschieben der Fenster um ein paar cm oder Anpassung der Brüstungshöhe im Westen wäre wahrscheinlich möglich
- Badewanne vor den Fenstern stelle ich mir nicht so praktisch vor, würde ich aber nicht ausschließen
- Fenster zeigen auf die Straße bzw. aufs Nachbargrundstück, die Aussicht spielt also keine große Rolle 😉
und sind somit für jeden Tipp dankbar!
Schon jetzt vielen Dank und schönen Abend,
Hausbaufaehig
H
Hausbaufaehig03.07.22 20:33K a t j a schrieb:
Wäre es meins, würde ich eher die Wand zum Schlafzimmer schallisolieren + verstärken und dann WC und Bidet an diese Wand setzen.Wow, danke für den Entwurf!Die Wand zum Schlafzimmer haben wir tatsächlich schon mit Schallschutz geplant, inkl. Vorwandinstallation sollte man da hoffentlich nicht mehr viel hören?
Die Dusche direkt am Fenster ist mir wahrscheinlich ein bisschen zu abenteuerlich (Sichtschutz, Feuchtigkeit), aber die Badewanne und insbesondere
der große waschtisch gefallen mir gut. WC und Bidet sind ähnlich wie in anderen Entwürfen etwas eng beieinander, man müsste mal testen wie sich
das anfühlt. Hier mal extrem grob in 3D:
H
Hausbaufaehig03.07.22 20:45motorradsilke schrieb:
Man könnte ja auch Waschtisch und Dusche tauschen. Dann hat man die Dusche nicht vor dem Fenster. Ich würde den Waschtisch eh immer mit kürzestem Weg von der Tür platzieren, da muss man ja am meisten ran.Ja, Waschtisch im Norden gibt Sinn; Würde das Ganze dann in etwa so aussehen? Das "Problem" mit wenig Raum zwischen WC/Bidet bleibt:H
Hausbaufaehig03.07.22 20:48H
Hausbaufaehig03.07.22 20:59Tigerlily schrieb:
Zustimmung, optisch ok, aber zu eng bezüglich WC/Bidet!
30cm + Bidet 40cm + Abstand 30cm + WC 40cm = 140cm.
10 oder 20cm zusätzlich wäre dann der „Abstand“ WC zum Ende der halbhohen Wand. Wie das optisch wirkt, kann ich ohne Fotomontage nicht einschätzen.
Dafür wird die Wand echt unnötig lang. Vom Platzbedarf habt Ihr ja genug Bewegungsfreiheit rechts vom WC (wenn man draufsitzt), wie breit ist der Durchgang zur Dusche?
Ich würde das WC ans Fenster hinmachen, man sitzt ja länger auf dem Klo und am Fenster ist man eher für sich.Im Entwurf ist die WC-Wand 140cm (Duschtasse 120cm + 20cm Vorwand) lang, von der Ecke dieser Wand bis zur Ecke südlich der Zimmertür sind es ca. 120cm. Nach einer Verlängerung der Wand auf 160cm hätte man immer noch ca. 94cm Durchgang.
Tigerlily schrieb:
Überlegt, ob Ihr die Vorteile des Bidets schätzt (wir hatten lange eines und fanden es praktisch zum schnell mal Füße waschen oder den Badeanzug einweichen/ auswaschen, sonst fällt mir kein Vorteil ein). Ein Dusch-WC ist viel gemütlicher zum Sitzen und bietet verschiedene komfortablere Waschmöglichkeiten; wir konnten es in der Badausstellung im KundenWC ausprobieren und waren danach überzeugt. Vom Preis: die Fönfunktion haben wir nie vermisst, die Basisversion ist ok.Danke für die Erläuterung, ich werde mir auf jeden Fall die Dusch-WCs in der Bäderausstellung nochmal genauer anschauen/ausprobieren!H
Hausbaufaehig03.07.22 21:01motorradsilke schrieb:
Mir würde von den Ursprungsentwürfen Nr. 4 am besten gefallen. Ihr habt ja noch ein 2. Fenster, müsst also gar nicht so oft an das Fenster über der Wanne. Nr. 2 würde mir nicht gefallen, ich möchte nicht mit dem Rücken zur Tür auf der Toi sitzen.
Der Entwurf aus Beitrag 4 würde mir auch gefallen. Ich glaube auch nicht, dass das zu eng ist. Das könnt ihr ja einfach mal ausprobieren. Notfalls die Wand noch 10 cm verlängern.Danke, werde ich mal ausprobieren! Man könnte ja die Duschtasse zusammen mit der Wand verlängern (zumindest wird die Tür dann weniger nass)oder evtl. eine Sitzbank einbauen um den Platz zu nutzen (Reinigungsaufwand?).
Hausbaufaehig schrieb:
Hier mal extrem grob in 3D:Du bist fix mit der 3D-Ansicht. Das find ich gut. Die nicht deckenhohen Wände waren allerdings alle etwas niedriger gedacht. Die bei der Wanne schließen mit der Wannenoberkante ab - also etwa bei 50 bis 60cm. Die Duschwand ohne Glas schließt mit der Vorsatzwand der Waschbecken ab. Sie ist nur ein Spritzschutz. Sonst wirkt der Raum imho zu "zerhackt".
Ähnliche Themen