J
Jerundolo06.08.18 13:14Hi zusammen,
wir haben uns ein Haus gekauft und möchten nun das Bad umgestalten. Leider sind wir uns zur Zeit noch sehr unsicher wie wir den vorhanden Platz optimal ausnutzen können. Deswegen wäre ich euch für eure Rückmeldungen, Anregungen und Ideen sehr dankbar.
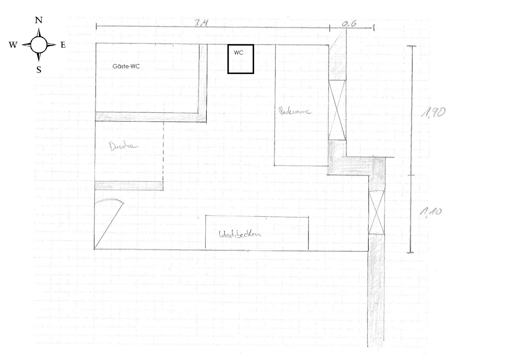
Zur Situation: Die Außenkontur ist festgelegt und kann nicht verändert werden, lediglich der Bereich für das Gästebad könnte verändert werden. Im Norden grenzt ein Treppenhaus an, im Osten ist die Hofeinfahrt, im Süden das Schlafzimmer + Ankleide und im Westen grenzt der Wohnungsflur an. Wir möchten das Gästebad möglichst weit Richtung Nord ansiedeln da sich dort auch Wohnzimmer, Küche und Esszimmer befinden. Der Zugang zu "unserem" Bad soll möglichst weit Richtung Süden liegen. Eine Badewanne ist zwingend erforderlich.
Auf dem Bild seht ihr die Aufteilung, wie wir Sie uns aktuell vorstellen.
Ich freue mich auf ein paar Anregungen von euch.
Gruß
Jerundolo

wir haben uns ein Haus gekauft und möchten nun das Bad umgestalten. Leider sind wir uns zur Zeit noch sehr unsicher wie wir den vorhanden Platz optimal ausnutzen können. Deswegen wäre ich euch für eure Rückmeldungen, Anregungen und Ideen sehr dankbar.
Zur Situation: Die Außenkontur ist festgelegt und kann nicht verändert werden, lediglich der Bereich für das Gästebad könnte verändert werden. Im Norden grenzt ein Treppenhaus an, im Osten ist die Hofeinfahrt, im Süden das Schlafzimmer + Ankleide und im Westen grenzt der Wohnungsflur an. Wir möchten das Gästebad möglichst weit Richtung Nord ansiedeln da sich dort auch Wohnzimmer, Küche und Esszimmer befinden. Der Zugang zu "unserem" Bad soll möglichst weit Richtung Süden liegen. Eine Badewanne ist zwingend erforderlich.
Auf dem Bild seht ihr die Aufteilung, wie wir Sie uns aktuell vorstellen.
Ich freue mich auf ein paar Anregungen von euch.
Gruß
Jerundolo
Du hast hier ca. 10m² für ein Bad und ein Gäste-WC und dann auch Ecken und Kanten bei den Wänden. Da würde ich mir überlegen, ob entweder meine Gäste mit auf's WC ins Bad dürfen oder mein Bad kein WC erhält.
Such Dir im Internet mal die Maße von WC & Co zusammen und zeichne dies auch mal in Dein Gäste-WC ein. WC Tiefe mit Spülkasten ca. 75cm. Da wird's dann eng mit dem waschbecken.
Such Dir im Internet mal die Maße von WC & Co zusammen und zeichne dies auch mal in Dein Gäste-WC ein. WC Tiefe mit Spülkasten ca. 75cm. Da wird's dann eng mit dem waschbecken.
J
Jerundolo06.08.18 16:05Hi,
dass das Gäste-WC sehr klein wird ist uns bewusst. Diesen Umstand wollen wir aber eigentlich in kauf nehmen damit nicht alle unsere Gäste auf unsere Toilette müssen. besonders meine Frau möchte dies möglichst vermeiden.
Dein Vorschlag mit der Abtrennung finde ich sehr interessant, aber dann fehlt leider eine 2 Toilette.
Viel Glück
Jerundolo
dass das Gäste-WC sehr klein wird ist uns bewusst. Diesen Umstand wollen wir aber eigentlich in kauf nehmen damit nicht alle unsere Gäste auf unsere Toilette müssen. besonders meine Frau möchte dies möglichst vermeiden.
Dein Vorschlag mit der Abtrennung finde ich sehr interessant, aber dann fehlt leider eine 2 Toilette.
Viel Glück
Jerundolo
Ähnliche Themen