Guten Morgen zusammen,
nachdem ich lange stiller Mitleser war, nun der Schritt in die Aktivität 🙂
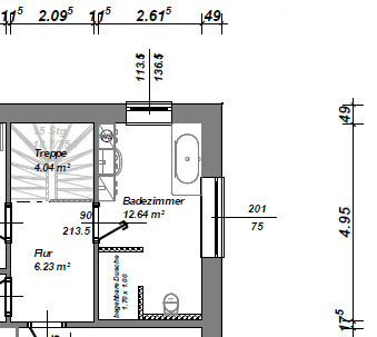
Wir (4 köpfige Familie) planen zurzeit unseren Neubau (Stadtvilla), sind allerdings noch nicht ganz zufrieden mit dem Badgrundriss.
Die planuntere Wand würden wir gerne weiter nach oben rücken, da wir das Bad ungern unnötig groß haben wollen.
Wir haben natürlich auch bereits unsere Köpfe zum Rauchen gebracht. Nachfolgend ein Entwurf der Architektin.
Die Fenster können erstmal vernachlässigt werden.
Anforderungen:
- begehbare Dusche
- Badewanne 190x90
- Wäscheschacht (Hauswirtschaftsraum ist direkt darunter)

Vielleicht hat das Forum ja die zündende Idee für uns. Es würde uns sehr freuen.
nachdem ich lange stiller Mitleser war, nun der Schritt in die Aktivität 🙂
Wir (4 köpfige Familie) planen zurzeit unseren Neubau (Stadtvilla), sind allerdings noch nicht ganz zufrieden mit dem Badgrundriss.
Die planuntere Wand würden wir gerne weiter nach oben rücken, da wir das Bad ungern unnötig groß haben wollen.
Wir haben natürlich auch bereits unsere Köpfe zum Rauchen gebracht. Nachfolgend ein Entwurf der Architektin.
Die Fenster können erstmal vernachlässigt werden.
Anforderungen:
- begehbare Dusche
- Badewanne 190x90
- Wäscheschacht (Hauswirtschaftsraum ist direkt darunter)
Vielleicht hat das Forum ja die zündende Idee für uns. Es würde uns sehr freuen.
Die Fenster sind noch nicht fix. Überlegung ist sogar, das schmale Fenster an der rechten Wand komplett zu entfernen. Nach oben raus ist nur Feld, da hätten wir schon gerne ein Fenster.
Der Einwand des kurzen Weges ist nicht unberechtigt. Die bessere Hälfte hat den WS aber schon sehr ins Herz geschlossen...
Der Einwand des kurzen Weges ist nicht unberechtigt. Die bessere Hälfte hat den WS aber schon sehr ins Herz geschlossen...
A
ArminJG2224.06.24 12:07K a t j a schrieb:
Könnte der TE erstmal sagen, was ihn an dem Entwurf des Architekten stört abgesehen von der Wandverschiebung?Es ist tatsächlich nur dieses Manko. Wir würden das Bad einfach gerne komprimieren und den gewonnen Platz dem planunteren Raum (Schlafzimmer) geben.
Ähnliche Themen