ᐅ Badezimmer Planung - Ideen zur Sanierung
Erstellt am: 06.02.22 20:24
M
Madame Gazelle06.02.22 20:24Hallo allerseits,
Mein Mann und ich sind im Begriff, einen Bungalow zu kaufen (von 1967) und diesen dann zu sanieren. In diesem Zuge fallen natürlich so einige Überlegungen und Planungen an. Zunächst möchte ich die Planung für das Badezimmer stehen haben. Das ist das erste Mal, dass wir so ein großes Projekt angehen. Von daher würde ich mir sehr über zahlreiche Vorschläge und Tipps freuen!! Gerne her damit Wir haben einige Vorgaben und Ideen, die ich im Folgenden aufführe:

Wichtig wäre es, bei der Planung diese Punkte zu beachten:
Mein Mann und ich sind im Begriff, einen Bungalow zu kaufen (von 1967) und diesen dann zu sanieren. In diesem Zuge fallen natürlich so einige Überlegungen und Planungen an. Zunächst möchte ich die Planung für das Badezimmer stehen haben. Das ist das erste Mal, dass wir so ein großes Projekt angehen. Von daher würde ich mir sehr über zahlreiche Vorschläge und Tipps freuen!! Gerne her damit Wir haben einige Vorgaben und Ideen, die ich im Folgenden aufführe:
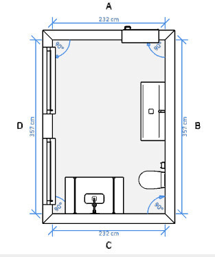
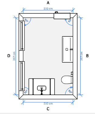
- Das ursprüngliche Badezimmer ist wirklich ungünstig geschnitten, daher ist unser Plan, das momentane Gäste-WC mit dem Badezimmer zusammen zu legen. Da wir vorhaben, die zum Haus dazu gehörende Einliegerwohnung mit in unseren Wohnbereich zu integrieren, würden wir später ein separates Gäste-WC haben und für unser Haupt-Badezimmer ergeben sich folgende Rohbaumaßen: 3,57 x 2,32 x 2,50.
- Die Türbreite beträgt 76 cm, der Abstand von Tür zur Wand beträgt 12 cm.
- An einer Wand befinden sich Oberlicht-Fenster.
Wichtig wäre es, bei der Planung diese Punkte zu beachten:
- Wir möchten für die Sanierung Förderungen beantragen, demnach muss die Tür nach außen zu öffnen sein – wäre eine Schiebetür eine Idee? Hat da jemand Erfahrungen im Bereich Badezimmer?
- Ich möchte eine Trennwand zum WC haben, so dass die Toilette von der Badewanne abgetrennt ist!
- Eine Badewanne (Maße gerne 180x80 oder größer); auch eine Eckbadewanne wäre denkbar
- Walk-In-Dusche
- WC
- Waschtisch (Geberit One hat für uns ein sinnvolles Konzept) und ein schmaler spiegelschrank: Ich möchte alles, was man so alltäglich im Badezimmer benötigt, gerne im Spiegelschrank oder im Waschtisch verstauen können, so dass um das Waschbecken herum möglichst nichts herumsteht.
- Indirekte Beleuchtung: Ideen zu kleinen Lampen an der Wand, am Boden oder um die Badewanne oder den Spiegelschrank sind erwünscht
- Zudem nähe der Badewanne ein unbeheizter Handtuchhalter
- Ich stelle mir einen Fliesenspiegel (ca. 120 bis 150 hoch (?)) an Badewanne, Dusche und WC vor.
- Als Fliesen stelle ich mir bisher vor: große helle, quadratische Fliesen für den Boden, betonfarbene Fliesen für die Wand und ein Teil soll gerne farbig werden.
Hallo,
den Punkt mit der Förderung und der Tür verstehe ich nicht: warum muss die Tür nach außen gehen?
Ist der Bungalow unterkellert? Also können die Anschlüsse einfach verlegt werden, oder geht das nicht so einfach?
Falls alles variabel ist, grobe Idee:
Oben links Eckbadewanne
Unten die Dusche, öffnend in Richtung Fenster
darüber auf der rechten Seite WC und dann das Waschbecken.
Allerdings wird das ganz schön eng. Du brauchst ja auch Vorwandinstallationen....
den Punkt mit der Förderung und der Tür verstehe ich nicht: warum muss die Tür nach außen gehen?
Ist der Bungalow unterkellert? Also können die Anschlüsse einfach verlegt werden, oder geht das nicht so einfach?
Falls alles variabel ist, grobe Idee:
Oben links Eckbadewanne
Unten die Dusche, öffnend in Richtung Fenster
darüber auf der rechten Seite WC und dann das Waschbecken.
Allerdings wird das ganz schön eng. Du brauchst ja auch Vorwandinstallationen....
M
Madame Gazelle06.02.22 20:57Hey Ysop,
danke für deine Idee! Eine Eckbadewanne gibt es in dem Planer von Kaldewei nicht, die muss man sich dazu denken -meinst du so?

- Der Bungalow ist teilunterkellert, der Teil unter dem Badezimmer ist unterkellert. Im Zuge der Sanierung werden alle Wasserleitungen (Zu- und Abwasser erneuert).
- Zur Förderung: Die Förderung erhalten wir nur, wenn wir altengerecht sanieren. Und eine Vorgabe dabei ist, dass Türen nach außen öffnen müssen. Falls man in einem Raum mal umkippt, so kann doch immer jemand noch hinein...

danke für deine Idee! Eine Eckbadewanne gibt es in dem Planer von Kaldewei nicht, die muss man sich dazu denken -meinst du so?
- Der Bungalow ist teilunterkellert, der Teil unter dem Badezimmer ist unterkellert. Im Zuge der Sanierung werden alle Wasserleitungen (Zu- und Abwasser erneuert).
- Zur Förderung: Die Förderung erhalten wir nur, wenn wir altengerecht sanieren. Und eine Vorgabe dabei ist, dass Türen nach außen öffnen müssen. Falls man in einem Raum mal umkippt, so kann doch immer jemand noch hinein...
Ysop*** schrieb:
den Punkt mit der Förderung und der Tür verstehe ich nicht: warum muss die Tür nach außen gehen?"Deshalb sollte sich die Tür auch nach außen öffnen oder als Schiebetür eingerichtet sein. Gefördert durch: Altersgerecht Umbauen – [KfW] Kredit (159)"
M
Madame Gazelle06.02.22 20:58Danke übrigens jetzt schon mal an alle, die sich beteiligen. Für uns ist dieses Vorhaben etwas ganz besonderes und eine sehr aufregende Zeit liegt vor uns. Dieses ist übrigens das erste Mal, dass ich in einem Forum unterwegs bin.
Danke und beste Grüße,
Eileen
Danke und beste Grüße,
Eileen
Hm.
Die Abmessungen machen es tatsächlich nicht so einfach.
Ich würde zu Gunsten einer geräumigeren Dusche auf die Eckwanne verzichten.
Die Wanne in der Mitte hat den Vorteil, dass sie den Raum ein bisschen größer erschienen lässt.
Eckwanne und große Dusche passen meiner Ansicht nach nicht in ein 8 qm Bad.

Die Abmessungen machen es tatsächlich nicht so einfach.
Ich würde zu Gunsten einer geräumigeren Dusche auf die Eckwanne verzichten.
Die Wanne in der Mitte hat den Vorteil, dass sie den Raum ein bisschen größer erschienen lässt.
Eckwanne und große Dusche passen meiner Ansicht nach nicht in ein 8 qm Bad.
Ähnliche Themen