Hallo zusammen.
Wir werden kommenden Samstag unsere Badezimmer bemustern.
Wir wir unser Gäste-Bad einrichten steht für uns fest.
Nur bezüglich des Hauptbades bedarf es noch etwas Optimierung glaube ich.
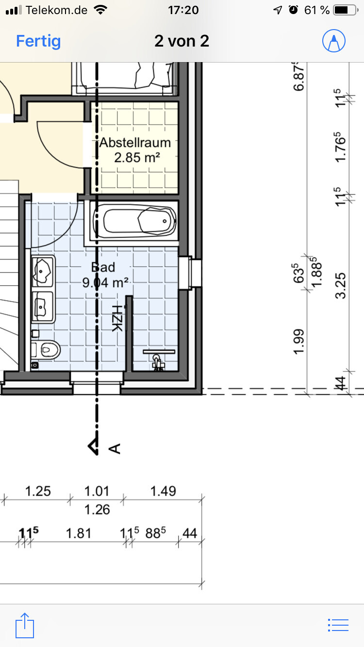
Ich habe euch einmal den Grundriss angehangen.
Habt ihr irgendwelche Ideen?
Es ist eine Stadtvilla. Also keine Dachschrägen im OG.
Über ein paar Anregungen würde ich mich sehr freuen.

Wir werden kommenden Samstag unsere Badezimmer bemustern.
Wir wir unser Gäste-Bad einrichten steht für uns fest.
Nur bezüglich des Hauptbades bedarf es noch etwas Optimierung glaube ich.
Ich habe euch einmal den Grundriss angehangen.
Habt ihr irgendwelche Ideen?
Es ist eine Stadtvilla. Also keine Dachschrägen im OG.
Über ein paar Anregungen würde ich mich sehr freuen.
OK, hier rächt sich Euer „Schnellschuss“:
88,5 RBM fürs Duschen bedeutet, dass Ihr mit Putz und Fliesen weniger als 80cm in der Breite zur Verfügung habt.
Toilette dort, wo das bodentiefe Fenster ist, also gemeinsam mit der Dusche dort, wo jetzt die Wanne ist, ist für beides mit 180 auch zu kurz.
Habt Ihr denn schon einen a) Abwasserantrag gestellt? Wegen der Lage des Abflusses?
Geht auch ne b) „normale“ Dusche mit Tür?
Wenn ja/nein, dann würde ich wohl alle Positionen lassen, aber das Fenster um 10cm verschieben und den Gewinn der Dusche geben. Die anderen in der Front natürlich auch - wegen der Symmetrie.
Denn eine andere Position für die Dusche sehe ich nicht, jedes Drehen hat so seine Mankos.
Schöner wäre es auch, durch das Nordfenster schauen zu können, wenn man auf Toi sitzt. Das wäre ja noch verschiebbar.
Mal schauen, ob jmd anderes noch einen Tipp hat.
88,5 RBM fürs Duschen bedeutet, dass Ihr mit Putz und Fliesen weniger als 80cm in der Breite zur Verfügung habt.
Toilette dort, wo das bodentiefe Fenster ist, also gemeinsam mit der Dusche dort, wo jetzt die Wanne ist, ist für beides mit 180 auch zu kurz.
Habt Ihr denn schon einen a) Abwasserantrag gestellt? Wegen der Lage des Abflusses?
Geht auch ne b) „normale“ Dusche mit Tür?
Wenn ja/nein, dann würde ich wohl alle Positionen lassen, aber das Fenster um 10cm verschieben und den Gewinn der Dusche geben. Die anderen in der Front natürlich auch - wegen der Symmetrie.
Denn eine andere Position für die Dusche sehe ich nicht, jedes Drehen hat so seine Mankos.
Schöner wäre es auch, durch das Nordfenster schauen zu können, wenn man auf Toi sitzt. Das wäre ja noch verschiebbar.
Mal schauen, ob jmd anderes noch einen Tipp hat.
B
boxandroof18.03.19 19:32Dusche breiter, Fenster entsprechend schieben wie vorgeschlagen, Einzelwaschtisch mit großem Spiegel für Zwei. Du brauchst auch noch Platz für Handtücher rechts/links mit Doppelwaschtisch. Klopapier zur Bürste, wird sonst nass.
Man könnte auch Dusche/Wanne tauschen um Platz am Eingang zu gewinnen. Dusche dann mit Glastür Richtung anderer Tür. Würde es aber wohl eher so lassen als Walk-In.
Man könnte auch Dusche/Wanne tauschen um Platz am Eingang zu gewinnen. Dusche dann mit Glastür Richtung anderer Tür. Würde es aber wohl eher so lassen als Walk-In.
Ähnliche Themen