ᐅ Inspiration für Bad-Planung gesucht
Erstellt am: 25.04.22 09:25
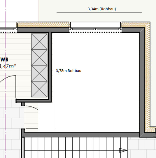
Ich habe folgende Räumlichkeit, die ich zum Bad machen möchte. Ich habe schon ein bisschen im 3D-Programm rumgeschoben wie man die Sanitärobjekte anordnen könnte. Ich bin immer extrem unkreativ bei sowas. Vielleicht fällt euch ja was ein?
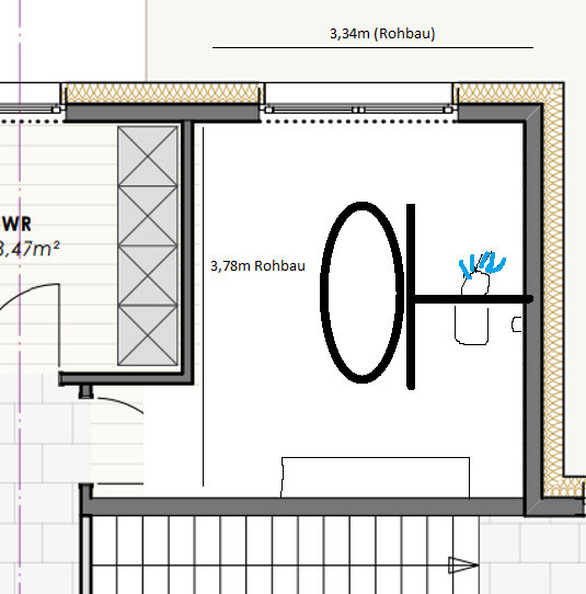
Ich hatte was mit einer T-Mauer probiert um die Wanne eher in der Mitte des Zimmers zu haben, das würde gut Platz geben für etwas Stauraum. Aber dann wird der Durchgang zur Toilette relativ schmal. Man könnte auch die Wanne vors Fenster links ins Eck setzen, und den waschtisch vor die T-Mauer?
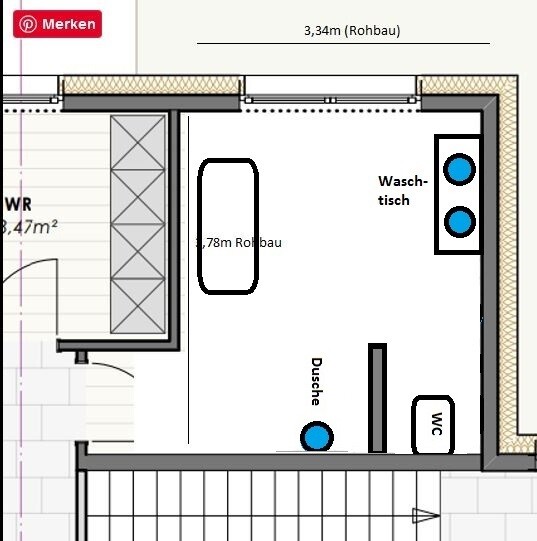
Anforderungen generell ans Bad:
Ist es eine blöde Idee eine Walk-In Dusche vor ein bodentiefes Fenster zu setzen?
Müsste man natürlich blickdicht machen. Finde die Idee mit Tageslicht in der Dusche ansonsten aber ganz nett. Hat jemand sowas bei sich und kann berichten?


Ich hatte was mit einer T-Mauer probiert um die Wanne eher in der Mitte des Zimmers zu haben, das würde gut Platz geben für etwas Stauraum. Aber dann wird der Durchgang zur Toilette relativ schmal. Man könnte auch die Wanne vors Fenster links ins Eck setzen, und den waschtisch vor die T-Mauer?
Anforderungen generell ans Bad:
- Große Walk-In Dusche ohne Glas
- Wanne mit Blick auf Fenster
- Wanne ohne Blick auf Toilette
- Längerer Waschtisch (nicht 100% fix, mind. 80cm, gerne mehr für 2 Waschbecken)
- Wanne über Eck oder wenn gerade mit größeren Abstellflächen drumherum (für Deko / Kerzen)
- Platz für 1 Regal für Handtücher (Lowboard oder hohes Regal eher egal)
Ist es eine blöde Idee eine Walk-In Dusche vor ein bodentiefes Fenster zu setzen?
Müsste man natürlich blickdicht machen. Finde die Idee mit Tageslicht in der Dusche ansonsten aber ganz nett. Hat jemand sowas bei sich und kann berichten?
F
Fuchsbau3525.04.22 09:30Wenn du die Dusche vors Fenster setzt und aber keine Glaswand haben willst, sondern Fliesen als Abtrennung, dann nimmst du dem restlichen Raum das Tageslicht. Das würde ich nicht wollen. Mal abgesehen vom Spritzwasser am Fenster.
Edit: Erst Plan gucken dann meckern 😉 sehe gerade, dass nur das halbe Fenster verdeckt würde. Das ginge schon mit dem Tageslicht. Aber je nach Länge der Dusche hast du das Spitzwasser immer noch.
Edit: Erst Plan gucken dann meckern 😉 sehe gerade, dass nur das halbe Fenster verdeckt würde. Das ginge schon mit dem Tageslicht. Aber je nach Länge der Dusche hast du das Spitzwasser immer noch.
O
Oberhäslich25.04.22 09:53Mit der Wanne in der Mitte macht es einen modernen Eindruck, allerdings nimmt es den doch schon kleinen 12qm viel vom Raum weg - und das hauptsächlich durch die Trennwand. Ich finde es tlw. etwas beengt. Da wo die Toilette hinkommt, kommt auf jeden Fall auch nicht viel Licht hin. Ist nich weiter schlimm, nur ein Gedanke. Außerdem hat jemand in meinem Beitrag erwähnt, dass man den Spiegel (Waschtisch) nicht in Richtung Fenster positionieren sollte.
Hier mal ein Vorschlag von mir, da müssten alle deine Kriterien erfüllt sein.

Hier mal ein Vorschlag von mir, da müssten alle deine Kriterien erfüllt sein.
Oberhäslich schrieb:
Mit der Wanne in der Mitte macht es einen modernen Eindruck, allerdings nimmt es den doch schon kleinen 12qm viel vom Raum weg - und das hauptsächlich durch die Trennwand. Ich finde es tlw. etwas beengt. Da wo die Toilette hinkommt, kommt auf jeden Fall auch nicht viel Licht hin. Ist nich weiter schlimm, nur ein Gedanke. Außerdem hat jemand in meinem Beitrag erwähnt, dass man den Spiegel (Waschtisch) nicht in Richtung Fenster positionieren sollte.
Hier mal ein Vorschlag von mir, da müssten alle deine Kriterien erfüllt sein.
[ATTACH alt="Unbenannt.JPG"]71395[/ATTACH]Der Vorschlag ist gar nicht schlecht.
Bloß das einzeln abgetrennte WC wirkt auch mich etwas seltsam, wäre aber nicht weiter wild. Bloß wie soll das mit der Dusche da ohne Glas funktionieren?
O
Oberhäslich25.04.22 10:17Ich weiß nicht wie die anderen das machen, aber wir haben aktuell auch 3 Wände in der offenen Dusche in der Mietwohnung. Wir haben einen Abzieher für den Boden und wischen dann nochmal mit dem Bodenduschtuch drüber, die Wände lassen wir "nass". Im Haus wird die Dusche dann offen, aber mit 2 Wänden sein, auch ohne Trennwand (Reinigen macht zu viel Arbeit 😀). Ich habe jetzt nicht so die Angst vor Wasserspritzern auf dem Boden, da wir sowieso den Boden abziehen sonst steht da das Wasser in den Fugen. Es gibt sicher noch Leute, die die Duschwände abziehen. Die fugen danken es einem auf jeden Fall.
Du wolltest die Toilette von der Wanne aus nicht sehen, da kommt man ohne min. eine Trennwand nicht aus :p Es sei denn du badest immer in Richtung Fenster, dann könnte das WC auch hinter der Badewanne sein (siehe Neuentwurf), dann hättest du auch 3 Duschwände. Oder du wechselst WC/Dusche, dann siehst du das WC auch gar nicht mehr und hast mehr Platz für die Dusche.

Du wolltest die Toilette von der Wanne aus nicht sehen, da kommt man ohne min. eine Trennwand nicht aus :p Es sei denn du badest immer in Richtung Fenster, dann könnte das WC auch hinter der Badewanne sein (siehe Neuentwurf), dann hättest du auch 3 Duschwände. Oder du wechselst WC/Dusche, dann siehst du das WC auch gar nicht mehr und hast mehr Platz für die Dusche.
Dusche mit nur 2 Wänden, auf die Idee bin ich ja noch gar nicht gekommen :O Wäre natürlich cool hell, man bekäme das Tageslicht aber tanzt nicht direkt vorm Fenster rum. Aber das wird doch bestimmt sehr nass im Bad? Wir haben aktuell 3,5 Wände um die Dusche, also alles gefliest und nur ein 60cm Eingang vorne. Da bleibt das Bad trocken. Aber mit nur 2 Wänden. Ich finde es gleichermaßen cool und beängstigend. 😀
Ähnliche Themen