Moin Moin,
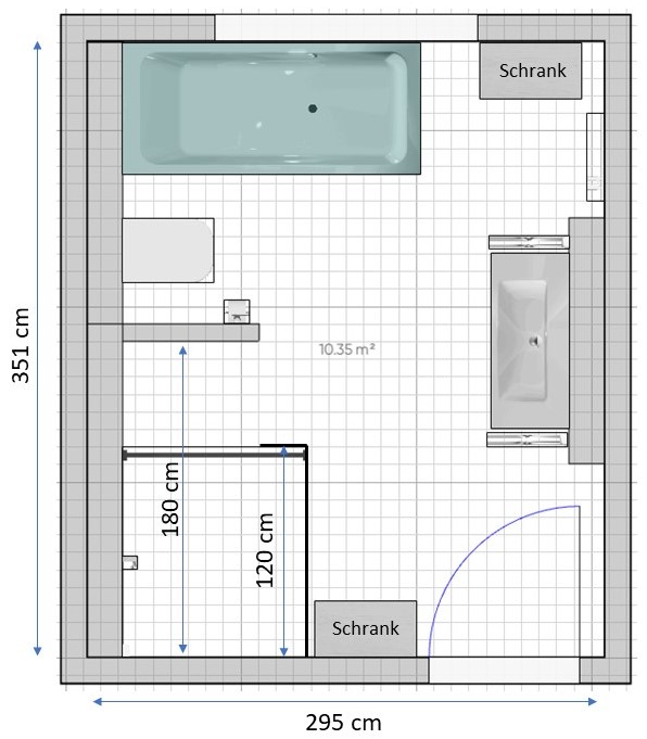
wie immer sehr kurzfristig bei unserem Bauprojekt gilt es die Badplanung fertigzustellen. Wir haben ein sehr ähnlichen Grundriss wie dieses hier mit der Einschränkung, dass an der/in der Nähe der Position der Badewanne eine Toiletten hinmuss.
Der Bauträger hat den nachfolgenden Vorschlag gemacht (sieht etwas durcheinander aus, weil der ursprüngliche Entwurf druntergelegt ist). Der gefällt mir weiterhin nicht, weil ich keinerlei sinnvolle Stellflächen für 1-2 Badschränke sehe. Auch denke ich, dass beim Duschen der Eingangsbereich nass werden könnte und die Masse an Vorwänden finde ich schon sehr albern.
Ich habe noch einen weiteren Entwurf geplant, von dem ich hoffe, dass er von der TGA so auch umgesetzt werden kann. Ich würde mich sehr freuen, wenn ihr hierzu eure Einschätzung geben könntet. Vielen Dank!
Die Idee hinter dem Entwurf ist eine Walk-In Dusche zu realisieren und diese mit einem kleinen Stück Scheibe ums Ecke etwas gegen das Rausspritzen zu schützen. Die Wand zwischen Dusche und WC würde ich halbhoch machen und drüber noch eine Glasscheibe, ggf. auch noch etwas länger. Denkt ihr das könnte so funktionieren?


wie immer sehr kurzfristig bei unserem Bauprojekt gilt es die Badplanung fertigzustellen. Wir haben ein sehr ähnlichen Grundriss wie dieses hier mit der Einschränkung, dass an der/in der Nähe der Position der Badewanne eine Toiletten hinmuss.
Der Bauträger hat den nachfolgenden Vorschlag gemacht (sieht etwas durcheinander aus, weil der ursprüngliche Entwurf druntergelegt ist). Der gefällt mir weiterhin nicht, weil ich keinerlei sinnvolle Stellflächen für 1-2 Badschränke sehe. Auch denke ich, dass beim Duschen der Eingangsbereich nass werden könnte und die Masse an Vorwänden finde ich schon sehr albern.
Ich habe noch einen weiteren Entwurf geplant, von dem ich hoffe, dass er von der TGA so auch umgesetzt werden kann. Ich würde mich sehr freuen, wenn ihr hierzu eure Einschätzung geben könntet. Vielen Dank!
Die Idee hinter dem Entwurf ist eine Walk-In Dusche zu realisieren und diese mit einem kleinen Stück Scheibe ums Ecke etwas gegen das Rausspritzen zu schützen. Die Wand zwischen Dusche und WC würde ich halbhoch machen und drüber noch eine Glasscheibe, ggf. auch noch etwas länger. Denkt ihr das könnte so funktionieren?
G
goalkeeper04.05.22 22:30G
goalkeeper04.05.22 22:48Wir hatten jahrelang in der Mietwohnung ein Glasdusche inkl. sehr hartem Wasser - das hat uns furchtbar genervt.
Daher haben wir in unseren beiden Bädern (ebenfalls Reihenhaus wie du) alles der Walk-In Dusche untergeordnet - es ist raumhoch gefliest. Allerdings könnte man natürlich auch nur halb hoch mauern und eine Glasscheibe einsetzen. Das wäre bei uns auch möglich gewesen.
Allerdings ist dies das Bad auf dem Kinder-Stockwerk. Die sind beide noch sehr klein und sitzen eh aktuell nur in der Badewanne - und später als Teens ist denen Tageslicht in der Dusche wohl recht egal.
Wir haben allerdings den Handtuchheizkörper dort nicht angebracht, weil wir aktuell einfach noch keinen benötigen.
Daher haben wir in unseren beiden Bädern (ebenfalls Reihenhaus wie du) alles der Walk-In Dusche untergeordnet - es ist raumhoch gefliest. Allerdings könnte man natürlich auch nur halb hoch mauern und eine Glasscheibe einsetzen. Das wäre bei uns auch möglich gewesen.
Allerdings ist dies das Bad auf dem Kinder-Stockwerk. Die sind beide noch sehr klein und sitzen eh aktuell nur in der Badewanne - und später als Teens ist denen Tageslicht in der Dusche wohl recht egal.
Wir haben allerdings den Handtuchheizkörper dort nicht angebracht, weil wir aktuell einfach noch keinen benötigen.
Bei uns ist es genau andersrum. Kalk sucht mir hier im Wasser schon fast vergeblich, unseren Wasserkoche haben wir noch nie entkalkt und der läuft bestimmt auch schon 5 Jahre.
Wir hätten daher gerne etwas mehr Glas und weniger Fliesen. Jetzt sind wir uns aber doch wieder unsicher bzgl. der Badewanne vor dem Fenster. Jetzt wird erstmal ne Nacht drüber geschlafen und dann gilt es morgen erstmal mit dem TGA Planer zu schauen, ob unsere Planungen in die richtige Richtung gehen.
Wir hätten daher gerne etwas mehr Glas und weniger Fliesen. Jetzt sind wir uns aber doch wieder unsicher bzgl. der Badewanne vor dem Fenster. Jetzt wird erstmal ne Nacht drüber geschlafen und dann gilt es morgen erstmal mit dem TGA Planer zu schauen, ob unsere Planungen in die richtige Richtung gehen.
in Deutschland hat man eine Abneigung gegen Wanne vorm Fenster und ich verstehe nicht warum.
Mein Bad

Dusche ist rechts hinter der Tür, Toi nebenan. Das Bad ist klein.
Dieses meiner Tochter habe ich schon öfter mal gezeigt

Toi ist links hinter der Tür. Die Tür ist mittig. Rechts steht ein 2m hoher Schrank. Der Raum ist 335x265.
Vorschlag

Mein Bad
Dusche ist rechts hinter der Tür, Toi nebenan. Das Bad ist klein.
Dieses meiner Tochter habe ich schon öfter mal gezeigt
Toi ist links hinter der Tür. Die Tür ist mittig. Rechts steht ein 2m hoher Schrank. Der Raum ist 335x265.
Vorschlag
Ähnliche Themen