Hallo liebes Forum,
ich versuche es noch mal mit einem anderen Anliegen. Wir haben erst demnächst ein Gespräch mit unserem Architekten, daher wollte ich hier schon mal Ideen sammeln.
Unser Haus wird ein Holzhaus mit Kombiblockwand. 1,5 geschossig mit einer Grundfläche von 8,5*8m.
Das Grundstück befindet sich in einem Neubaugebiet in Brandenburg, Ausrichtung seht ihr auf meinem wunderschönen Plan.
Es sind ca 589qm (Parzelle 64, im WA 1), Grundflächenzahl 0,4, 2 Vollgeschosse, Höhe baulicher Anlage 10m. Sonst gibt es keinerlei Vorgaben.
Den Bebauungsplan hab ich zweimal eingestellt, einmal mit weißer Fläche wo ca unser Grundstück ist.


Die Einfahrt liegt im Südosten, seitlich und hat 4,5m. Direkt daneben der Hausanschluss -
dazu habe ich auch eine Frage, das Grundstück ist voll erschlossen, wie viel kostet es auf dem Grundstück dann die Anschlüsse zu verlängern um das Haus an de jeweiligen Stelle bauen zu können? ich lese sehr unterschiedliche Aussagen und bin zunehmend verwirrt ^^
Wir planen keine Garage, evtl einen Carport, aber den auch nicht sofort.
Auf der Ostseite des Grundstücks befindet sich eine Bestandsimmobilie, das Haus liegt aber im östlichsten Teil des Grundstücks, direkt neben unserem befindet sich ein Carport und der Garten dieser Nachbarn.
An der Südseite ist ein weiteres, kleines Grundstück mit knapp 470qm, wobei der Anschluss unten an der Straße anliegt. Westlich vom Grundstück befindet sich eine weitere Parzelle, dort liegt der Hausanschluss auch unten an der Straße. Richtung Norden ist ein lichter Kiefernwald mit vereinzelten Birken.
Im WA 6 werden wahrscheinlich Mehrfamilienhäuser gebaut, WA 7 bestehen schon 3geschossige Mehrfamilienhäuser.
Falls ich was vergessen habe, bitte Fragen.
Wo würdet ihr euer Haus auf diesem Grundstück bauen? Und warum?
Ich würde gerne eine größere Gartenfläche haben, daher habe ich es relativ nahe ostseitig (mit 3m Abstand) geplant. Evtl würde ich es auch noch etwas mehr in den Norden schieben, um mehr Platz für eine Südterrasse zu haben. Das sind bisher meine Überlegungen.

ich versuche es noch mal mit einem anderen Anliegen. Wir haben erst demnächst ein Gespräch mit unserem Architekten, daher wollte ich hier schon mal Ideen sammeln.
Unser Haus wird ein Holzhaus mit Kombiblockwand. 1,5 geschossig mit einer Grundfläche von 8,5*8m.
Das Grundstück befindet sich in einem Neubaugebiet in Brandenburg, Ausrichtung seht ihr auf meinem wunderschönen Plan.
Es sind ca 589qm (Parzelle 64, im WA 1), Grundflächenzahl 0,4, 2 Vollgeschosse, Höhe baulicher Anlage 10m. Sonst gibt es keinerlei Vorgaben.
Den Bebauungsplan hab ich zweimal eingestellt, einmal mit weißer Fläche wo ca unser Grundstück ist.
Die Einfahrt liegt im Südosten, seitlich und hat 4,5m. Direkt daneben der Hausanschluss -
dazu habe ich auch eine Frage, das Grundstück ist voll erschlossen, wie viel kostet es auf dem Grundstück dann die Anschlüsse zu verlängern um das Haus an de jeweiligen Stelle bauen zu können? ich lese sehr unterschiedliche Aussagen und bin zunehmend verwirrt ^^
Wir planen keine Garage, evtl einen Carport, aber den auch nicht sofort.
Auf der Ostseite des Grundstücks befindet sich eine Bestandsimmobilie, das Haus liegt aber im östlichsten Teil des Grundstücks, direkt neben unserem befindet sich ein Carport und der Garten dieser Nachbarn.
An der Südseite ist ein weiteres, kleines Grundstück mit knapp 470qm, wobei der Anschluss unten an der Straße anliegt. Westlich vom Grundstück befindet sich eine weitere Parzelle, dort liegt der Hausanschluss auch unten an der Straße. Richtung Norden ist ein lichter Kiefernwald mit vereinzelten Birken.
Im WA 6 werden wahrscheinlich Mehrfamilienhäuser gebaut, WA 7 bestehen schon 3geschossige Mehrfamilienhäuser.
Falls ich was vergessen habe, bitte Fragen.
Wo würdet ihr euer Haus auf diesem Grundstück bauen? Und warum?
Ich würde gerne eine größere Gartenfläche haben, daher habe ich es relativ nahe ostseitig (mit 3m Abstand) geplant. Evtl würde ich es auch noch etwas mehr in den Norden schieben, um mehr Platz für eine Südterrasse zu haben. Das sind bisher meine Überlegungen.
ypg schrieb:
Aber bitte ins richtige Unterforum
Und ich muss leider auch sagen: ich bin derzeit in unserem 12qm Wohnwagen irgendwo, wo es kein WLAN gibt . Aber ich werde mal schauen danke fürs trotzdem schauen!Und ja, hatte schon gesehen das ich falsch gepostet hatte.
Ich war an der Ostsee in nem Bungalow der angeblich 52qm hatte, waren dann aber wohl doch nur knapp 30 und die tür für die küche und schlafzimmer gingen beide nach außen auf und verhakten sich andauernd. Das war.... Das war wirklich zu klein ;D
G
Grillhendl29.06.21 09:24KEVST schrieb:
Für 2 Personen kann man auch auf 110qm was tolles erschaffen. Wir haben auch "nur" 99qm netto Wohnfläche (bei 110qm insgesamt) und sogar noch ein Zimmer "übrig" und es reicht uns voll und ganz.@Grillhendl vielen lieben Dank für deinen Kommentar.
Nachdem ich länger im Forum bin kann ich alles etwas besser einschätzen.
Wir sind jetzt sehr happy mit unserem Grundriss. Er wurde auch nochmal umgestellt.
Ich wohne jetzt in einer 51qm Wohnung und komme mehr als gut zurecht (bis auf 3. Stock ohne Fahrstuhl) und Nr 2 wohnt in einem WG Zimmer.
Für uns ist das Haus, auch mit der kleinen Fläche, reiner Luxus. Selbst wenn Geld keine Rolle spielen würde hätten wir vllt 10qm mehr, aber das reicht auch schon.
Ich hab verstanden das barrierearm wohnen auf so kleiner Grundfläche nur bedingt funktioniert, daher haben wir das erstmal verworfen.
Bauantrag ist seit Mitte April im Amt und wir hoffen das es bald los geht
Nachdem ich länger im Forum bin kann ich alles etwas besser einschätzen.
Wir sind jetzt sehr happy mit unserem Grundriss. Er wurde auch nochmal umgestellt.
Ich wohne jetzt in einer 51qm Wohnung und komme mehr als gut zurecht (bis auf 3. Stock ohne Fahrstuhl) und Nr 2 wohnt in einem WG Zimmer.
Für uns ist das Haus, auch mit der kleinen Fläche, reiner Luxus. Selbst wenn Geld keine Rolle spielen würde hätten wir vllt 10qm mehr, aber das reicht auch schon.
Ich hab verstanden das barrierearm wohnen auf so kleiner Grundfläche nur bedingt funktioniert, daher haben wir das erstmal verworfen.
Bauantrag ist seit Mitte April im Amt und wir hoffen das es bald los geht
G
Grillhendl29.06.21 11:26@Grillhendl das sieht sehr schön aus!
Wegen Home Office haben wir unten ein kleines Büro und oben zwei Schlafzimmer. Mal sehen wie es dann "in echt" wirkt.
Denke das Haus kommt so im Dezember (wenn die Baugenehmigung bald mal kommt).
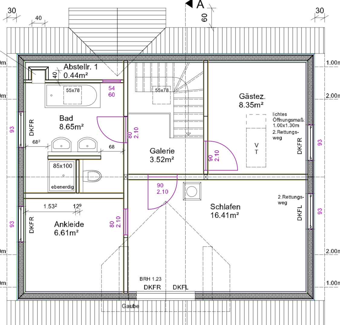
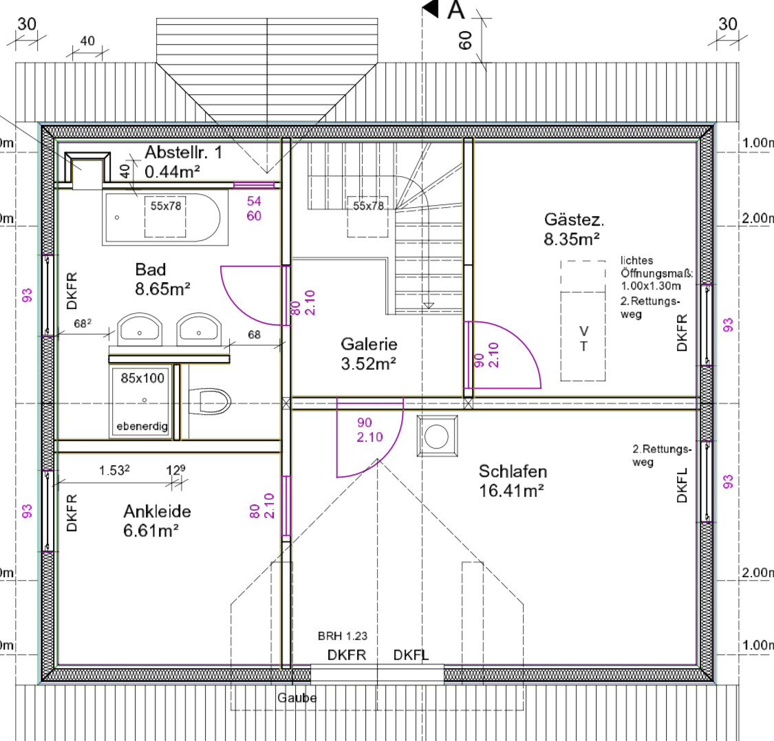
Und bevor wer fragt, nee ich trau mich nicht den Grundriss hier einzustellen, meine Nerven sind zu schwach, haha. Für uns ist es gut so und das reicht mir.
Wegen Home Office haben wir unten ein kleines Büro und oben zwei Schlafzimmer. Mal sehen wie es dann "in echt" wirkt.
Denke das Haus kommt so im Dezember (wenn die Baugenehmigung bald mal kommt).
Und bevor wer fragt, nee ich trau mich nicht den Grundriss hier einzustellen, meine Nerven sind zu schwach, haha. Für uns ist es gut so und das reicht mir.
Ähnliche Themen