ᐅ Ausbau von Dachgeschoss
Erstellt am: 04.02.17 16:31
J
Jules018404.02.17 16:31Hallo Zusammen,
ich hab ein Anliegen...
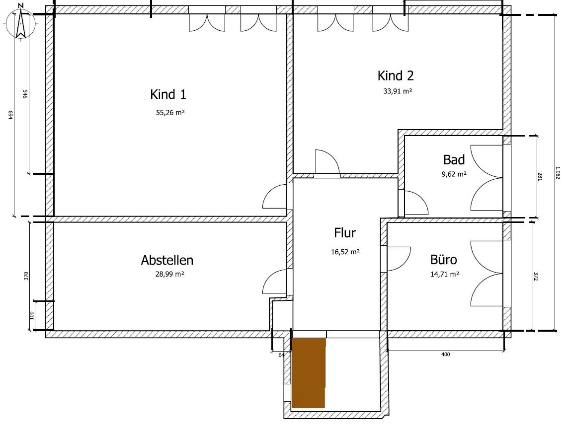
wir wohnen seit 2012 in unserem eigenen Haus, derzeit auf einer Ebene. Da Kind Nr. 2 im Juli kommen soll und im EG nur 1 Kinderzimmer vorhanden ist bauen wir das DG aus.
Hier einige Fakten zum Bestand:
Hauslänge 15,38m x 10,82m
1. Wir haben hier bereits eine Gaube aufs Dach gebaut, die in Büro und Bad ist und wo die Fenster dann auch schon fest vorgegeben sind.
2. Auf dem Grundriss rechts ist der Kniestock 1,35m (in Bad und Büro dann Vollgeschoss, da ja dort die Gaube ist), links 1,25m.
3. Die Eindeckung der Dachfläche ist aus Blech, daher kommen Dachfenster nicht in Frage. Lediglich im oberen Teil der Gaube sind 2 große Dachfenster eingebaut, um im Flur/Treppenhaus Tageslicht zu haben.
4. Die beiden geplanten Kinderzimmer bekommen oben im Grundriss je 2 Balkontüren oder Türelemente, wo der untere Teil feststehend ist und der obere öffenbar...
5. Im geplanten Speicherraum ist kein Fenster geplant und auch nicht möglich. An der gesamten unteren Seite des Hauses sind keine Fenster möglich, da hier unsere Firma angebaut ist und dies eine Brandwand ist.
6. Das Treppenhaus ist wie eine Art Galerie, neben der Treppe gibt es eine kleine Brüstung.
Folgende "Probleme" habe ich mit dem Grundriss:
a) Zimmer für Kind 1 ist mir viel zu groß. Hier ist aber von links bei ca. 3,30m die Pfette, dort hat die Raumhöhe 2,10m. Links davon ist die Schräge unter 2m.
b) Zimmer für Kind 2 wäre so ok, hier ist die Pfette bei 3,36 von rechts gesehen!
c) Speicherraum könnte meiner Ansicht nach größer werden, sodass Kind 1 kleiner wird. Hier haben wir aber das Problem, dass man in das Kinderzimmer nicht mehr rein kommt...
d) Bad und Büro sind Grundstück. so ok, sind auch abgestimmt auf die Gaube und auch auf Pfosten, die dort stehen, sodass diese in den Wänden verschwinden.
Ich hänge den Grundriss des bisher geplanten OG an, außerdem informativ den Grundriss vom EG.
Falls noch Fragen sind oder ihr Infos braucht, dann gerne her damit :-)
LG Julia




ich hab ein Anliegen...
wir wohnen seit 2012 in unserem eigenen Haus, derzeit auf einer Ebene. Da Kind Nr. 2 im Juli kommen soll und im EG nur 1 Kinderzimmer vorhanden ist bauen wir das DG aus.
Hier einige Fakten zum Bestand:
Hauslänge 15,38m x 10,82m
1. Wir haben hier bereits eine Gaube aufs Dach gebaut, die in Büro und Bad ist und wo die Fenster dann auch schon fest vorgegeben sind.
2. Auf dem Grundriss rechts ist der Kniestock 1,35m (in Bad und Büro dann Vollgeschoss, da ja dort die Gaube ist), links 1,25m.
3. Die Eindeckung der Dachfläche ist aus Blech, daher kommen Dachfenster nicht in Frage. Lediglich im oberen Teil der Gaube sind 2 große Dachfenster eingebaut, um im Flur/Treppenhaus Tageslicht zu haben.
4. Die beiden geplanten Kinderzimmer bekommen oben im Grundriss je 2 Balkontüren oder Türelemente, wo der untere Teil feststehend ist und der obere öffenbar...
5. Im geplanten Speicherraum ist kein Fenster geplant und auch nicht möglich. An der gesamten unteren Seite des Hauses sind keine Fenster möglich, da hier unsere Firma angebaut ist und dies eine Brandwand ist.
6. Das Treppenhaus ist wie eine Art Galerie, neben der Treppe gibt es eine kleine Brüstung.
Folgende "Probleme" habe ich mit dem Grundriss:
a) Zimmer für Kind 1 ist mir viel zu groß. Hier ist aber von links bei ca. 3,30m die Pfette, dort hat die Raumhöhe 2,10m. Links davon ist die Schräge unter 2m.
b) Zimmer für Kind 2 wäre so ok, hier ist die Pfette bei 3,36 von rechts gesehen!
c) Speicherraum könnte meiner Ansicht nach größer werden, sodass Kind 1 kleiner wird. Hier haben wir aber das Problem, dass man in das Kinderzimmer nicht mehr rein kommt...
d) Bad und Büro sind Grundstück. so ok, sind auch abgestimmt auf die Gaube und auch auf Pfosten, die dort stehen, sodass diese in den Wänden verschwinden.
Ich hänge den Grundriss des bisher geplanten OG an, außerdem informativ den Grundriss vom EG.
Falls noch Fragen sind oder ihr Infos braucht, dann gerne her damit :-)
LG Julia
Zunächst einmal das "wichtigste": auch ein Dachausbau erfordert eine Baugenehmigung bzw. Bauanzeige (je nach Landesbauordnung unterschiedlich).
Wenn ich recht verstanden habe, sind hier die Langseiten Giebelseiten ?
Wie verhält es sich mit den Materialien: ist es eine Holzbalkendecke, sodaß die Wände soweit Gemauert über denen im EG zu stehen hätten?
Hilfreich wäre in dem Zusammenhang, die gezeichneten Wände nach Bestand und Ergänzung zu unterscheiden. Außerdem sehen mir die Wände alle gleich aus, soll nicht "gemauert" und "Leichtbau" kombiniert werden ?
Müßte da nicht auch irgendwo ein Kamin herumstehen ?
Zu den Höhen hast Du ja geschrieben, wie es um den Kniestock bestellt ist - damit ist das Thema 1m-Linie ja abgehandelt. Der Verlauf der 2m-Linie wäre also noch interessant zu erkennen.
Grundsätzlich ist bei auszubauenden Dachgeschossen hilfreich, Abwasserfallrohre und Steigleitungen in gerader Linie fortzuführen, und Naßräume daran zu orientieren.
Für zwei Kinder finde ich insgesamt schon die Fläche nur des kleineren Zimmers nicht zu knapp. Soll nun wegen nur dem Kinderzimmer-Mehrbedarf gleich die ganze Geschossfläche auszubauen in Angriff genommen werden ?
Dachflächenfenster ja oder nein würde ich weniger vom Eindeckungsmaterial abhängig machen. Wie ist es denn um die Dachhautdämmung bestellt ?
https://www.instagram.com/11antgmxde/
https://www.linkedin.com/company/bauen-jetzt/
Wenn ich recht verstanden habe, sind hier die Langseiten Giebelseiten ?
Wie verhält es sich mit den Materialien: ist es eine Holzbalkendecke, sodaß die Wände soweit Gemauert über denen im EG zu stehen hätten?
Hilfreich wäre in dem Zusammenhang, die gezeichneten Wände nach Bestand und Ergänzung zu unterscheiden. Außerdem sehen mir die Wände alle gleich aus, soll nicht "gemauert" und "Leichtbau" kombiniert werden ?
Müßte da nicht auch irgendwo ein Kamin herumstehen ?
Zu den Höhen hast Du ja geschrieben, wie es um den Kniestock bestellt ist - damit ist das Thema 1m-Linie ja abgehandelt. Der Verlauf der 2m-Linie wäre also noch interessant zu erkennen.
Grundsätzlich ist bei auszubauenden Dachgeschossen hilfreich, Abwasserfallrohre und Steigleitungen in gerader Linie fortzuführen, und Naßräume daran zu orientieren.
Für zwei Kinder finde ich insgesamt schon die Fläche nur des kleineren Zimmers nicht zu knapp. Soll nun wegen nur dem Kinderzimmer-Mehrbedarf gleich die ganze Geschossfläche auszubauen in Angriff genommen werden ?
Dachflächenfenster ja oder nein würde ich weniger vom Eindeckungsmaterial abhängig machen. Wie ist es denn um die Dachhautdämmung bestellt ?
https://www.instagram.com/11antgmxde/
https://www.linkedin.com/company/bauen-jetzt/
Ähnliche Themen