Hallo Zusammen,
ich bin neu hier und möchte mich kurz vorstellen. Mein Name ist Bastian, 32 Jahre und komme aus Baden Württemberg.
Handwerklich geschickt, viel Erfahrung im Bereich KFZ (Eigenlob stinkt).
Aber auch Renovierung bisher vieles selbst gemacht, Schrauben, Hämmern, Sägen,... bis auf Elektro(Starkstrom) und Gas-Wasser wo man besser den Profi ran lässt.
Das neue Vorhaben übersteigt jedoch meine Kompetenz, weswegen ich im Internet auf dieses Forum hier gestoßen bin und um Hilfe frage 🙂
Nun bisschen was zur Situation und zum Vorhaben:
Aktuell wohnen wir im 1OG meines Elternhauses, mit eigenem Bad, Küche usw.
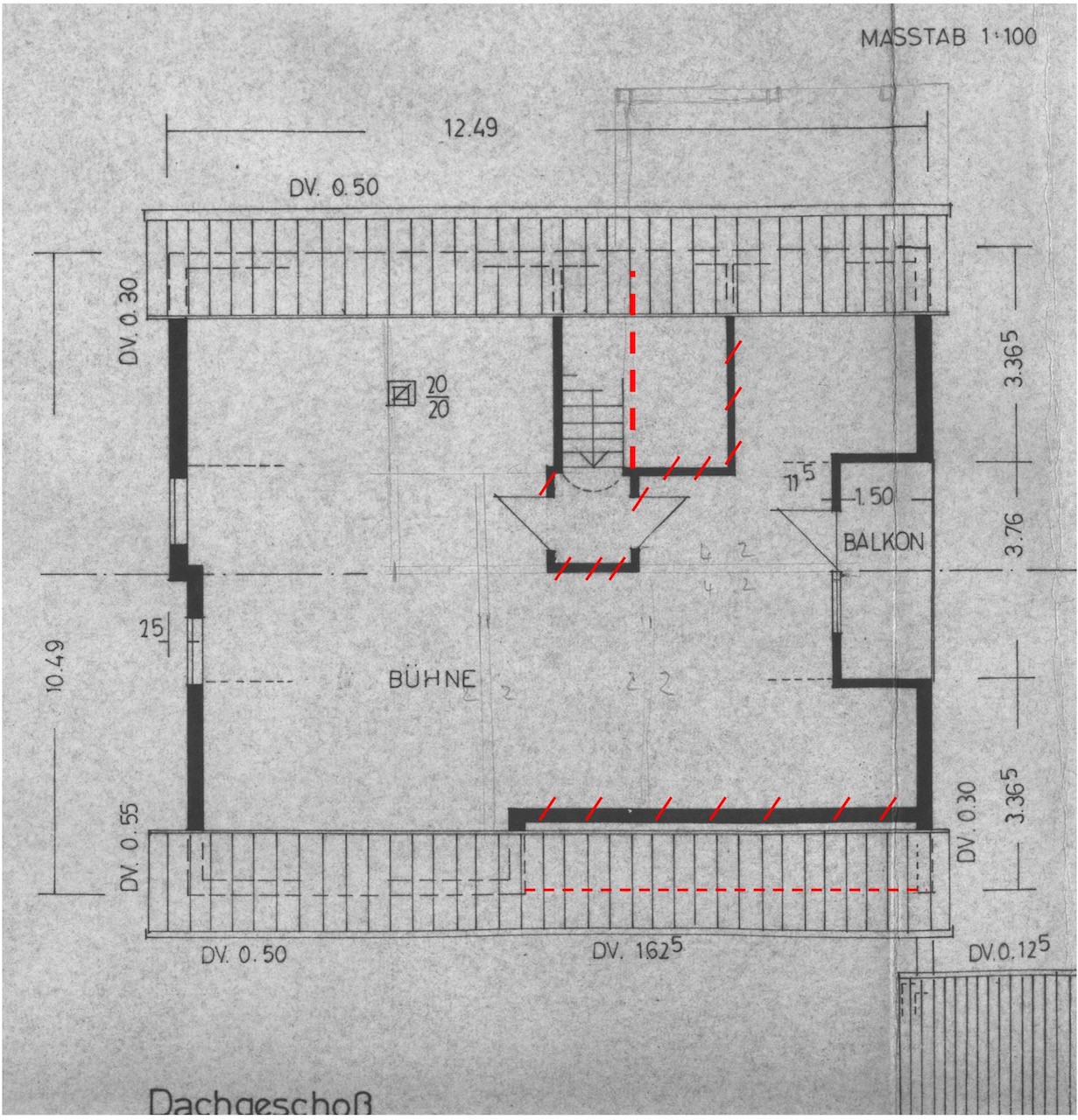
Durch die Dachschrägen verschenken wir jedoch jede Menge Raum. Wie in den Zeichnungen ersichtlich befindet sich zudem in 1m Abstand vom Kniestock ist nochmal eine Zwischenwand, Abstellraum der zwar für "kruschd" genutzt wird, aber besser nutzbar wäre, sofern die Dachschräge nicht da ware.
Dadurch ist die Küche auch sehr klein, eine kleine Arbeitszeile, es klappt alles, aber so richtig toll ist das nicht.
Über der Wohnung befindet sich noch ein Dachboden auf dem man jedoch nur gebückt gehen kann.
Alle bisherigen Optionen die wir hatten, waren schlussendlich doch keine, kauf Wohnung etc., deshalb denken wir über eine Aufstockung am Elternhaus nach.
Ziel ist es ein volles 1OG zu haben, ohne Dachschrägen, also den Kniestock entsprechend anzuheben und mit dem darüber liegenden verbleibenden Dachboden des neuen Dachs noch zwei kleine weitere Räume zu schaffen. Zugang nach oben eventuell über eine Galerie.
Wir sind uns bewusst das es kein billiges Bauvorhaben ist, in der jetzigen Zeit schon gar nicht.
Mit dem Bauamt der Stadt hatten wir bereits Kontakt, eine Aufstockung ist denkbar, da die andere Häuser in unserer Straße ebenfalls mehrgeschossig sind.
Das direkte Nachbarhaus wurde vor über 15 Jahren zu 50% der Dachfläche aufgestockt.
Daraufhin haben wir mit einer Holzbaufirma mit vermeintlich guten Ruf, Kontakt aufgenommen.
Unser Wunsch, prüfen was machbar ist (Statik), einen Entwurf anhand unserer Vorstellungen sowie die Dokumente für den offiziellen Bauantrag bei der Stadt, man sollte ja eine gewisse Vorlaufzeit berücksichtigen.
Der erste Besuch und Eindruck war super, alle Wünsche Besprochen, Diskussionen zur Aufteilung usw.
Dann ging es aber los das wir ständig vertröstet wurden, kein Termin wurde eingehalten, irgendwann wurde jemand zum Vermessen geschickt.
Die versprochenen Entwürfe & Angebotsabgabe ist nicht erfolgt, wieder hinterhertelefonieren, versprochene Rückrufe wurden nicht eingehalten, Mails wurden nie Beantwortet. Wir haben sicher kein Telefon oder Mail-terror veranstaltet.
Schlussendlich wurde uns jetzt nach 3 Monaten mit einem Brief mitgeteilt das aufgrund der aktuellen Situation kein Angebot abgegeben werden kann und wir uns doch bitte nochmal im Früher 2023 melden sollen, sofern noch Interesse besteht.
Von den anderen Punkten wie Statik, Entwurf wurde kein Wort mehr erwähnt, daher haben wir dort abgeschlossen, so nun genug beschwert.
Jetzt sind wir dabei andere Unternehmen zu kontaktieren, ggf. auch einen unabhängigen Architekt & Statiker.
Da aktuell die Preise extrem dynamisch sind und wir keine bis wenig Erfahrung haben, würden wir gerne wissen was realistische Angebote sind für
-Entwurf Architekt
-Berechnung Statik
-Bauantrag bzw. Dokumente für den Bauantrag
-Sofern möglich, grobe Preisabschätzung vor ein solches Vorhaben anhand dem bisher gesehenen?
Wir sind keine Pfennigfuchser, lieber ein paar € mehr und dafür gute, saubere und zuverlässige Arbeit.
Ich weiß jedoch aus meiner Vergangenheit in der KFZ Branche das es immer wieder schwarze Schafe gibt, wie überall, die sich dann bei ahnungslosen Kunden gerne mal "ausleben". In der Situation sehe ich mich/uns gerade, daher die Frage in die Gruppe.
Wir sind über jeden Ratschlag dankbar 🙂



ich bin neu hier und möchte mich kurz vorstellen. Mein Name ist Bastian, 32 Jahre und komme aus Baden Württemberg.
Handwerklich geschickt, viel Erfahrung im Bereich KFZ (Eigenlob stinkt).
Aber auch Renovierung bisher vieles selbst gemacht, Schrauben, Hämmern, Sägen,... bis auf Elektro(Starkstrom) und Gas-Wasser wo man besser den Profi ran lässt.
Das neue Vorhaben übersteigt jedoch meine Kompetenz, weswegen ich im Internet auf dieses Forum hier gestoßen bin und um Hilfe frage 🙂
Nun bisschen was zur Situation und zum Vorhaben:
Aktuell wohnen wir im 1OG meines Elternhauses, mit eigenem Bad, Küche usw.
Durch die Dachschrägen verschenken wir jedoch jede Menge Raum. Wie in den Zeichnungen ersichtlich befindet sich zudem in 1m Abstand vom Kniestock ist nochmal eine Zwischenwand, Abstellraum der zwar für "kruschd" genutzt wird, aber besser nutzbar wäre, sofern die Dachschräge nicht da ware.
Dadurch ist die Küche auch sehr klein, eine kleine Arbeitszeile, es klappt alles, aber so richtig toll ist das nicht.
Über der Wohnung befindet sich noch ein Dachboden auf dem man jedoch nur gebückt gehen kann.
Alle bisherigen Optionen die wir hatten, waren schlussendlich doch keine, kauf Wohnung etc., deshalb denken wir über eine Aufstockung am Elternhaus nach.
Ziel ist es ein volles 1OG zu haben, ohne Dachschrägen, also den Kniestock entsprechend anzuheben und mit dem darüber liegenden verbleibenden Dachboden des neuen Dachs noch zwei kleine weitere Räume zu schaffen. Zugang nach oben eventuell über eine Galerie.
Wir sind uns bewusst das es kein billiges Bauvorhaben ist, in der jetzigen Zeit schon gar nicht.
Mit dem Bauamt der Stadt hatten wir bereits Kontakt, eine Aufstockung ist denkbar, da die andere Häuser in unserer Straße ebenfalls mehrgeschossig sind.
Das direkte Nachbarhaus wurde vor über 15 Jahren zu 50% der Dachfläche aufgestockt.
Daraufhin haben wir mit einer Holzbaufirma mit vermeintlich guten Ruf, Kontakt aufgenommen.
Unser Wunsch, prüfen was machbar ist (Statik), einen Entwurf anhand unserer Vorstellungen sowie die Dokumente für den offiziellen Bauantrag bei der Stadt, man sollte ja eine gewisse Vorlaufzeit berücksichtigen.
Der erste Besuch und Eindruck war super, alle Wünsche Besprochen, Diskussionen zur Aufteilung usw.
Dann ging es aber los das wir ständig vertröstet wurden, kein Termin wurde eingehalten, irgendwann wurde jemand zum Vermessen geschickt.
Die versprochenen Entwürfe & Angebotsabgabe ist nicht erfolgt, wieder hinterhertelefonieren, versprochene Rückrufe wurden nicht eingehalten, Mails wurden nie Beantwortet. Wir haben sicher kein Telefon oder Mail-terror veranstaltet.
Schlussendlich wurde uns jetzt nach 3 Monaten mit einem Brief mitgeteilt das aufgrund der aktuellen Situation kein Angebot abgegeben werden kann und wir uns doch bitte nochmal im Früher 2023 melden sollen, sofern noch Interesse besteht.
Von den anderen Punkten wie Statik, Entwurf wurde kein Wort mehr erwähnt, daher haben wir dort abgeschlossen, so nun genug beschwert.
Jetzt sind wir dabei andere Unternehmen zu kontaktieren, ggf. auch einen unabhängigen Architekt & Statiker.
Da aktuell die Preise extrem dynamisch sind und wir keine bis wenig Erfahrung haben, würden wir gerne wissen was realistische Angebote sind für
-Entwurf Architekt
-Berechnung Statik
-Bauantrag bzw. Dokumente für den Bauantrag
-Sofern möglich, grobe Preisabschätzung vor ein solches Vorhaben anhand dem bisher gesehenen?
Wir sind keine Pfennigfuchser, lieber ein paar € mehr und dafür gute, saubere und zuverlässige Arbeit.
Ich weiß jedoch aus meiner Vergangenheit in der KFZ Branche das es immer wieder schwarze Schafe gibt, wie überall, die sich dann bei ahnungslosen Kunden gerne mal "ausleben". In der Situation sehe ich mich/uns gerade, daher die Frage in die Gruppe.
Wir sind über jeden Ratschlag dankbar 🙂
meine Beobachtung "monentan" ist:
ÜBERALL wird es schwierig und dauert viel länger, als das üblich war.
Wie immer und überall wird das sicher auch genutzt oder gar ausgenutzt, aber man muss "in diesen Zeiten" (nach Corona und während des Ukrainekrieges) einfach mit sehr veränderten Bedingungen rechnen und klar kommen.
ÜBERALL wird es schwierig und dauert viel länger, als das üblich war.
Wie immer und überall wird das sicher auch genutzt oder gar ausgenutzt, aber man muss "in diesen Zeiten" (nach Corona und während des Ukrainekrieges) einfach mit sehr veränderten Bedingungen rechnen und klar kommen.
BaBe901 schrieb:
-Entwurf Architekt
-Berechnung Statik
-Bauantrag bzw. Dokumente für den BauantragDas ist recht einfach zu beziffern: Architekten bauen für gewöhnlich nach Honorartafel .HOAI.
Für ein Einfamilienhaus und Komplettplanung und Baubegleitung gehen um die 11% der Bausumme als Honorar drauf. Nimmst du nur die ersten 4 Leistungsstufen in Anspruch
Grundlagenermittlung 2%
Vorplanung 7%
Entwurfsplanung 15%
Genehmigungsplanung 3%
So zahlst du 27% von den 11% also rund 3% von der Bausumme. Wobei der Architekt dann die Bausumme ermitteln wird.
Die Ausführungsplanung kostet weitere 25% also nochmals rund 3% von der Bausumme. Mit diesen Plänen arbeiten dann aber die Handwerker bzw. nur mit diesen kannst du wirklich vergleichbare Angebote einholen gehen.
Soll der Architekt auch die Vergabe machen und die Angebote bewerten sind weitere 11% fällig. Macht er auch die Bauüberwachung inkl. Dokumentation so wären die letzten 34% fällig.
Statik wird er wohl extern vergeben, um die 2.000 sind realistisch.
Bei einer Aufstockung würde ich definitiv einen Architekten nehmen und mindestens bis zur Genehmigungsplanung machen lassen. Lass dir von ihm Referenzen über bereits von ihm getätigte Aufstockungen geben. Alternativ nimm wenigstens einen guten Zimmermann für den Rohbau.
Willst du den Innenausbau teilweise selber machen? Wir reden hier ja von 120 m2 Bruttogeschossfläche und einem neuen Dach.
Ich würde je nach EL ganz grob mit 170 bis 250 TE rechnen. Teure Bundesländer wie Bayern, BW oder Hamburg gerne auch mehr.
Noch kurz zur Nomenklatur: ihr wohnt aktuell nicht im 1.OG sondern im Dachgeschoss (DG). Und den "darüber liegenden verbleibenden Dachboden" nennt man i.A. "Spitzboden". 😉
Danke für die
ausführliche Antwort.
Wir haben mittlerweile von einem anderen Holzbauunternehmen anhand der Pläne eine grobe Abschätzung erhalten.
Innenausbau würden wir teils selbst machen, je nach Kosten.
Aufstockung an sich mit außen allem fertig, Fenster, Putz, Dach, grob 250TE.
Innen nicht inbegriffen.
Die Punkte mit Architekt, Statik und Bauanfrage können Sie auch separat anbieten. Preis hierfür ca. 7000-8000€.
ausführliche Antwort.
Wir haben mittlerweile von einem anderen Holzbauunternehmen anhand der Pläne eine grobe Abschätzung erhalten.
Innenausbau würden wir teils selbst machen, je nach Kosten.
Aufstockung an sich mit außen allem fertig, Fenster, Putz, Dach, grob 250TE.
Innen nicht inbegriffen.
Die Punkte mit Architekt, Statik und Bauanfrage können Sie auch separat anbieten. Preis hierfür ca. 7000-8000€.
Ähnliche Themen