ᐅ Altbau Teilsanierung ELT, Bäder, Böden...Fragen- u. Fortschrittsthread
Erstellt am: 11.06.21 17:43
T
TamstarHallo zusammen!
Wir haben ein -eigentlich- saniertes Einfamilienhaus mit Nebengebäuden und nettem Grundstück gekauft.
Eckdaten:
Altbau Baujahr unbekannt - Sanierung und Erweiterung 1961 - Sanierung 2016-2018, Bau von Garagen 2018
+- 160 m² Wohnfläche, 540 m² Grundstück, Doppelgarage und der Heinrich - unser Nebengebäude.
Es gibt eine Teilunterkellerung mit tiefem Gewölbekeller (Raumhöhe um die 160cm) und Heizkeller, darüber EG und OG und ein teilausgebautes Dach.
Dass es kein hochwertig saniertes Haus ist, war uns von vornherein klar. Alles billiges Plastik, zig verschiedene Bodenbeläge und Schalterserien (einfach immer das, was gerade im Angebot war genommen), alles nicht zu Ende gedacht. Aber: es war prinzipiell alles gemacht, Dämmung, neue Fenster, sämtliche Wände mit Trockenbau versehen und verputzt, neue Heizung und Heizkörper, neue Wasserleitungen, z.T. neue Elektroleitungen, z.T. neues Dach, Solarthermie.
Soweit so gut. Optisch noch viel zu machen, es war absolut nicht unser Geschmack, aber das schien überschaubar. Das Bad im OG sollte neu gemacht werden, eine Trennwand im EG raus, die Böden im EG mit einheitlichem Fliesenboden versehen werden... streichen und einziehen. Nach und nach den Garten anlegen und vielleicht mal im OG den Bodenbelag wechseln oder die Kabel erneuern.
Nachdem wir jetzt seit 2 Wochen im neuen Haus sind (momentan noch parallel zur Mietwohnung bis Ende des Monats), stellen wir fest: 1. Streichen und Einziehen wird nix. 2. Mann, dauert das alles lang! Aufwand völlig unterschätzt.
Leider gibt es überall eine Innendämmung. Beim Tapetenabziehen haben wir den verschimmelten Sockelbereich im Wohnzimmer entdeckt. Also (höchstwahrscheinlich) doch: Alle Wände nackig machen, Schimmel behandeln/abtrocknen lassen, neu verputzen. Da haben wir nächste Woche einen Sachverständigen im Haus.
Elektrik muss neu. Es gibt nur einen FI für den Herd, keine für die Bäder, zu wenige Stromkreise (genug Stromkreise gäbs vielleicht, aber irgendwie nichts davon angeschlossen, weil 80% der Steckdosen und Lampen über 1 Sicherung laufen). Es gibt einige Schweizer Steckdosen mit 3 Löchern. Erdung mochte der Vorbesitzer wohl nicht. Die Hauptleitung kommt übers Dach, das würden wir dann auch umlegen lassen.
Die Datenkabel kommen einfach so aus der Wand. Dosen waren wohl zu teuer oder gabs grad nicht in der Fundgrube, who knows... Hier sind wir unschlüssig, ob wir einmal den Rundumschlag machen oder ob man sowas Zimmer für Zimmer angehen kann. Haben einen Elektroing. im Bekanntenkreis, mit dem wir vielleicht mal ein Konzept machen.
Alles in allem ist das Haus ziemlich verpfuscht. Entlüftung von Abwasserleitungen? Wer braucht denn sowas? 8 Steckdosen in Reihe an einem Kabel? Braucht man in der Werkstatt! Ein WC oder Waschbecken im Bad? Völlig überbewertet! Die Lüfter im Dachgeschoss tun nicht? Egal, die Feuchtigkeit wird schon in die Dachdämmung entweichen können. Ach, Bauschaum? Ja, DEN mag ich! Und Rauputz mochte er auch... fies zu streichen (und hässlich noch dazu).
Warum ich das schreibe?
Ich erhoffe mir Tipps, Erfahrungswerte, bei Küche und Bad vielleicht auch mal eine planerische Anregung und ansonsten würde ich einfach "mitnehmen", wens interessiert.
Wir haben ein -eigentlich- saniertes Einfamilienhaus mit Nebengebäuden und nettem Grundstück gekauft.
Eckdaten:
Altbau Baujahr unbekannt - Sanierung und Erweiterung 1961 - Sanierung 2016-2018, Bau von Garagen 2018
+- 160 m² Wohnfläche, 540 m² Grundstück, Doppelgarage und der Heinrich - unser Nebengebäude.
Es gibt eine Teilunterkellerung mit tiefem Gewölbekeller (Raumhöhe um die 160cm) und Heizkeller, darüber EG und OG und ein teilausgebautes Dach.
Dass es kein hochwertig saniertes Haus ist, war uns von vornherein klar. Alles billiges Plastik, zig verschiedene Bodenbeläge und Schalterserien (einfach immer das, was gerade im Angebot war genommen), alles nicht zu Ende gedacht. Aber: es war prinzipiell alles gemacht, Dämmung, neue Fenster, sämtliche Wände mit Trockenbau versehen und verputzt, neue Heizung und Heizkörper, neue Wasserleitungen, z.T. neue Elektroleitungen, z.T. neues Dach, Solarthermie.
Soweit so gut. Optisch noch viel zu machen, es war absolut nicht unser Geschmack, aber das schien überschaubar. Das Bad im OG sollte neu gemacht werden, eine Trennwand im EG raus, die Böden im EG mit einheitlichem Fliesenboden versehen werden... streichen und einziehen. Nach und nach den Garten anlegen und vielleicht mal im OG den Bodenbelag wechseln oder die Kabel erneuern.
Nachdem wir jetzt seit 2 Wochen im neuen Haus sind (momentan noch parallel zur Mietwohnung bis Ende des Monats), stellen wir fest: 1. Streichen und Einziehen wird nix. 2. Mann, dauert das alles lang! Aufwand völlig unterschätzt.
Leider gibt es überall eine Innendämmung. Beim Tapetenabziehen haben wir den verschimmelten Sockelbereich im Wohnzimmer entdeckt. Also (höchstwahrscheinlich) doch: Alle Wände nackig machen, Schimmel behandeln/abtrocknen lassen, neu verputzen. Da haben wir nächste Woche einen Sachverständigen im Haus.
Elektrik muss neu. Es gibt nur einen FI für den Herd, keine für die Bäder, zu wenige Stromkreise (genug Stromkreise gäbs vielleicht, aber irgendwie nichts davon angeschlossen, weil 80% der Steckdosen und Lampen über 1 Sicherung laufen). Es gibt einige Schweizer Steckdosen mit 3 Löchern. Erdung mochte der Vorbesitzer wohl nicht. Die Hauptleitung kommt übers Dach, das würden wir dann auch umlegen lassen.
Die Datenkabel kommen einfach so aus der Wand. Dosen waren wohl zu teuer oder gabs grad nicht in der Fundgrube, who knows... Hier sind wir unschlüssig, ob wir einmal den Rundumschlag machen oder ob man sowas Zimmer für Zimmer angehen kann. Haben einen Elektroing. im Bekanntenkreis, mit dem wir vielleicht mal ein Konzept machen.
Alles in allem ist das Haus ziemlich verpfuscht. Entlüftung von Abwasserleitungen? Wer braucht denn sowas? 8 Steckdosen in Reihe an einem Kabel? Braucht man in der Werkstatt! Ein WC oder Waschbecken im Bad? Völlig überbewertet! Die Lüfter im Dachgeschoss tun nicht? Egal, die Feuchtigkeit wird schon in die Dachdämmung entweichen können. Ach, Bauschaum? Ja, DEN mag ich! Und Rauputz mochte er auch... fies zu streichen (und hässlich noch dazu).
Warum ich das schreibe?
Ich erhoffe mir Tipps, Erfahrungswerte, bei Küche und Bad vielleicht auch mal eine planerische Anregung und ansonsten würde ich einfach "mitnehmen", wens interessiert.
Ein paar Bilder:
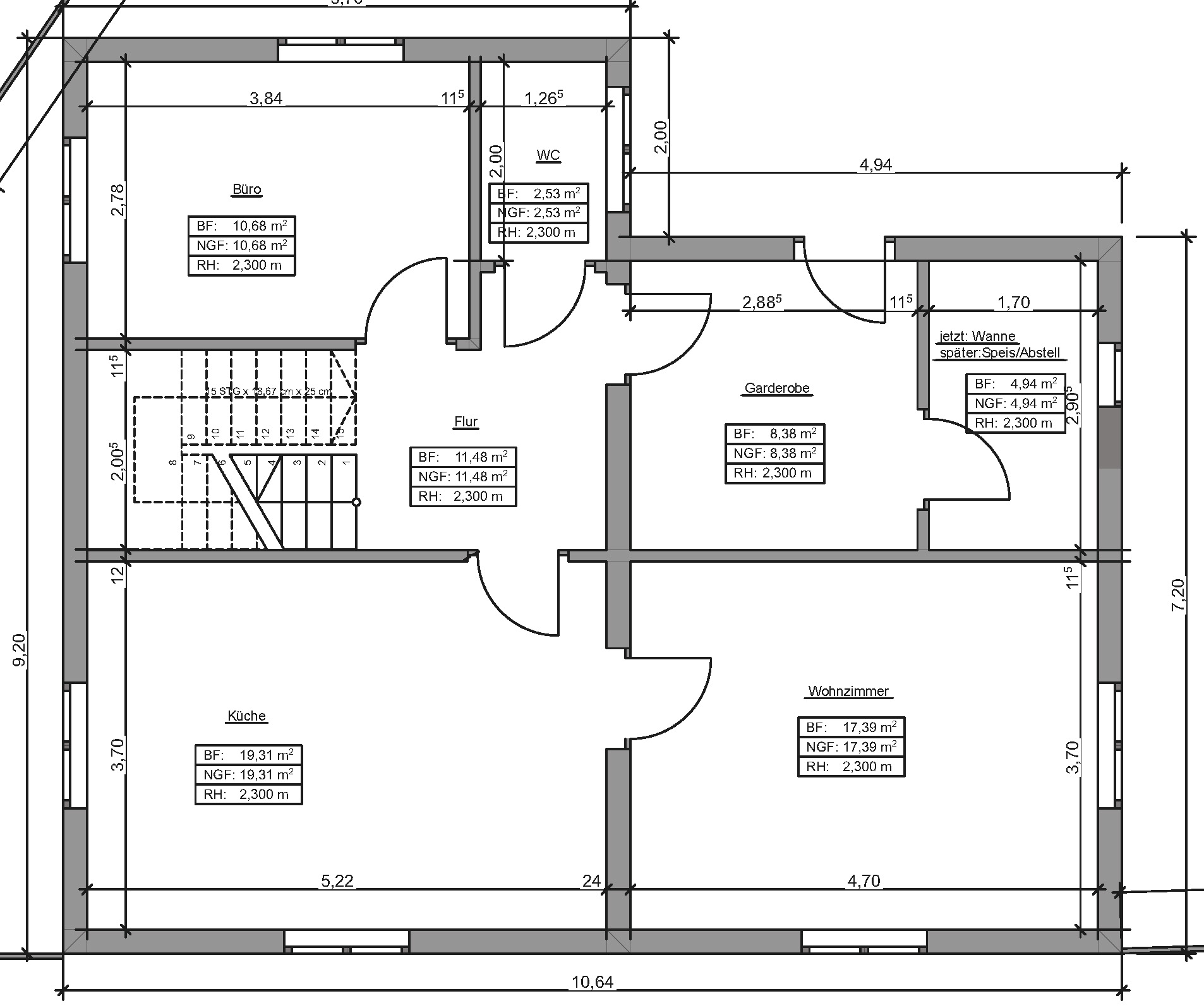
Grundriss EG:

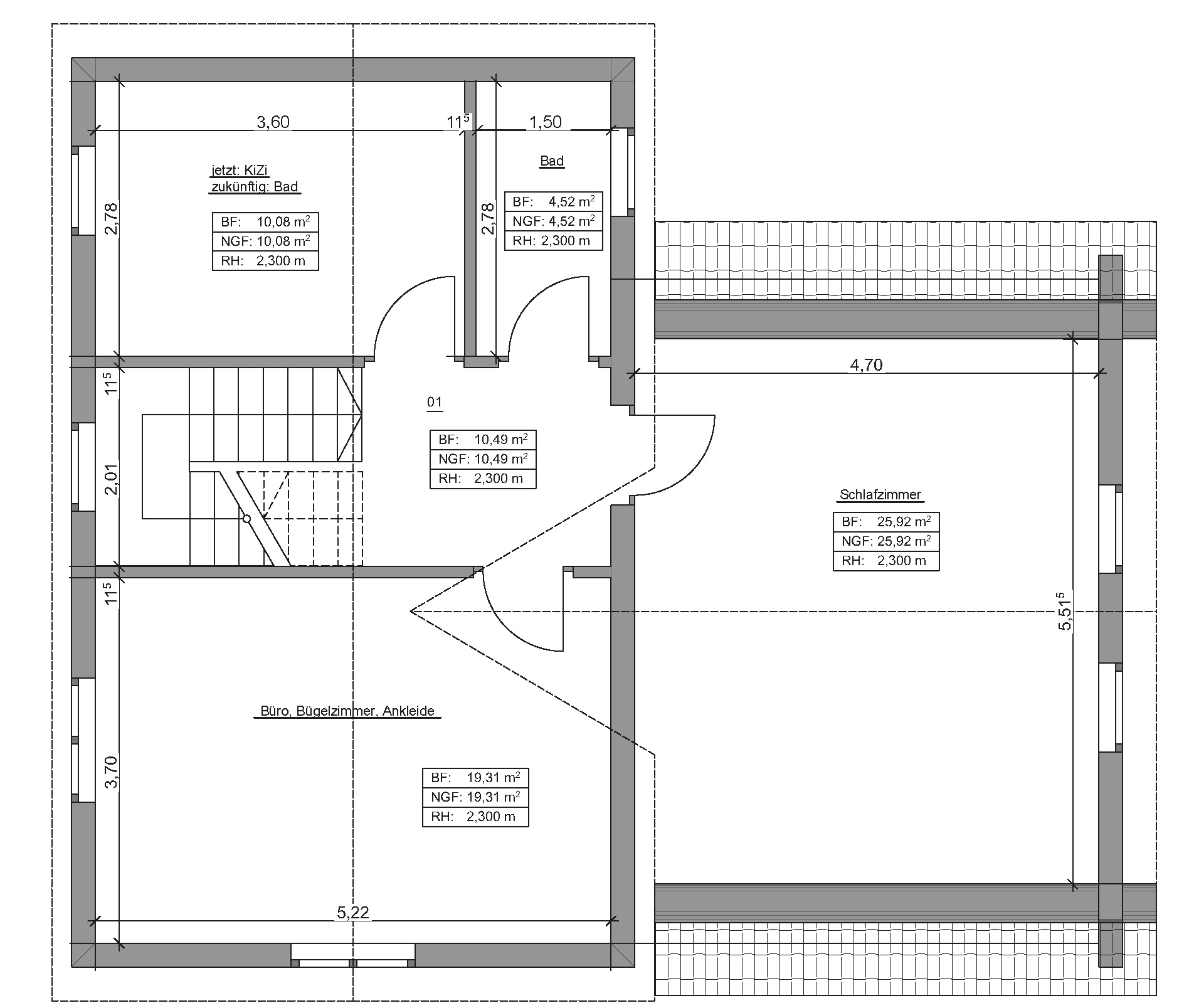
Grundriss OG:

Garten hatte ich schon im Gartenthread:

Außenansicht: (im Wohnzimmer ist der Schimmel), zwischen Haus und Heinrich (rechts angeschnitten, ist mittlerweile auch verputzt) soll die Terrasse hinkommen. Leider haben wir keinen Zugang von Küche oder Wohnzimmer zur Terrasse.

Das Wohnzimmer von innen... bitte nicht auf Möblierung achten, ist nicht unsere. Dafür gern mal auf das tolle Verlegemuster des Laminats achten 🙄

Grundriss EG:
Grundriss OG:
Garten hatte ich schon im Gartenthread:
Außenansicht: (im Wohnzimmer ist der Schimmel), zwischen Haus und Heinrich (rechts angeschnitten, ist mittlerweile auch verputzt) soll die Terrasse hinkommen. Leider haben wir keinen Zugang von Küche oder Wohnzimmer zur Terrasse.
Das Wohnzimmer von innen... bitte nicht auf Möblierung achten, ist nicht unsere. Dafür gern mal auf das tolle Verlegemuster des Laminats achten 🙄
M
Myrna_Loy11.06.21 18:09Da könnte man doch recht einfach eine Terrassentür einbauen, oder?
und ich wünsche Euch gute Nerven - wir haben auch so eine Katze im Sack gekauft. Bei uns war jede Fläche mit irgendwas verschalt. 🤨 Wir ziehen aber auch erst in einem Jahr oder später ein, wenn alles fertig ist.
und ich wünsche Euch gute Nerven - wir haben auch so eine Katze im Sack gekauft. Bei uns war jede Fläche mit irgendwas verschalt. 🤨 Wir ziehen aber auch erst in einem Jahr oder später ein, wenn alles fertig ist.
Bestand die Dämmung aus diesen dünnen Styroporbahnen, die man irgendwann mal hinter die Tapete geklebt hat? Dann könntet ihr Glück im Unglück haben und der Schimmel kommt nicht wieder.
Die Terrassentür fände ich an der Position nicht sehr gelungen. Freier Blick von der Straße in´s Wohnzimmer und die Terrasse selbst passt da ja nicht hin.
Verstehe ich das richtig, dass die Terrasse vor der Haustür enstehen soll?
Wie sieht es den auf der anderen Hausseite aus wenn man aus dem Küchen rauschaut? Ist da Platz für die Terrasse? Eventuell Wohnzimmer mit der Küche tauschen und dann dort eine Terrassentür einbauen.
Die Terrassentür fände ich an der Position nicht sehr gelungen. Freier Blick von der Straße in´s Wohnzimmer und die Terrasse selbst passt da ja nicht hin.
Verstehe ich das richtig, dass die Terrasse vor der Haustür enstehen soll?
Wie sieht es den auf der anderen Hausseite aus wenn man aus dem Küchen rauschaut? Ist da Platz für die Terrasse? Eventuell Wohnzimmer mit der Küche tauschen und dann dort eine Terrassentür einbauen.
Sowohl Wohnzimmer als auch Küche gehen auf die Straße raus, bringt also nichts. Daher ist auch nirgends eine Terrassentür geplant, man geht einfach durch die Haustür.

Nein, sind 2 oder 3cm dicke Platten, ich denke, es sind Styropor-Verbundplatten mit der Trockenbauplatte gleich dran. Haben noch nicht geöffnet...
Hannes S schrieb:
Bestand die Dämmung aus diesen dünnen Styroporbahnen, die man irgendwann mal hinter die Tapete geklebt hat? Dann könntet ihr Glück im Unglück haben und der Schimmel kommt nicht wieder.
Nein, sind 2 oder 3cm dicke Platten, ich denke, es sind Styropor-Verbundplatten mit der Trockenbauplatte gleich dran. Haben noch nicht geöffnet...
Ähnliche Themen