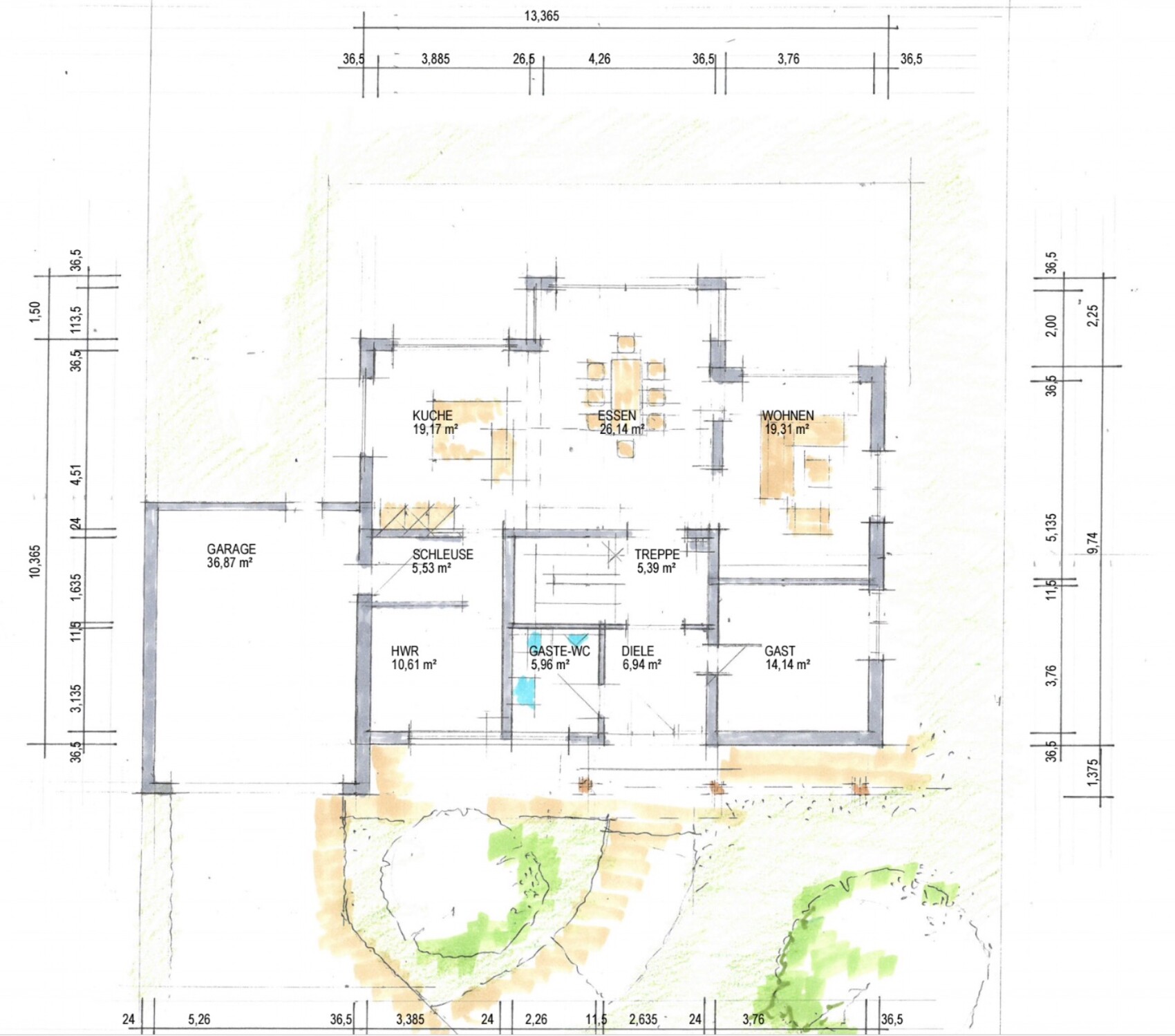
Das ist ein sehr, sehr schöner Entwurf.
Man sieht die Hand des Architekten. Es ist schon fast eine kleine Augenweide hier, einen mit Liebe gezeichneten Entwurf zu sehen.
Ich würde mich freuen, wenn die Fenster in Bad und Schlafzimmer mit Brüstung ausgeführt werden.
Einzig die Schleuse hab ich zu bemängeln. Da erklärt sich mir nicht die Platzierung der Straßenschuhe... Küche wird immer sandig sein, die eigentlich gut platzierte Treppe außerhalb des Eingangsbereich wird wieder zum Durchgang für Schmutzschuhe.
Hauswirtschaftsraum ist auch ein gefangener Raum, jeder Weg führt durch die Küche. Aber da gibt es schlimmeres [emoji6]
Ach, ja: die Wand zw WZ und Essen würde ich weglassen und dort in der Linie dann den Kamin setzen.
Mal schauen, was die Mütter hier so sagen [emoji4]
Füll doch nochmal bitte den Fragekatalog aus. Danke!
Edit: wo werdet Ihr Sachen lagern? Deko, Saisongarderobe? Wo soll denn die Garderobe für 4 Personen hin! Da kann ja schon ein kleiner Berg Jacken und Schuhe in Gebrauch sein... das könnte/ wird zum Problem
Man sieht die Hand des Architekten. Es ist schon fast eine kleine Augenweide hier, einen mit Liebe gezeichneten Entwurf zu sehen.
Ich würde mich freuen, wenn die Fenster in Bad und Schlafzimmer mit Brüstung ausgeführt werden.
Einzig die Schleuse hab ich zu bemängeln. Da erklärt sich mir nicht die Platzierung der Straßenschuhe... Küche wird immer sandig sein, die eigentlich gut platzierte Treppe außerhalb des Eingangsbereich wird wieder zum Durchgang für Schmutzschuhe.
Hauswirtschaftsraum ist auch ein gefangener Raum, jeder Weg führt durch die Küche. Aber da gibt es schlimmeres [emoji6]
Ach, ja: die Wand zw WZ und Essen würde ich weglassen und dort in der Linie dann den Kamin setzen.
Mal schauen, was die Mütter hier so sagen [emoji4]
Füll doch nochmal bitte den Fragekatalog aus. Danke!
Edit: wo werdet Ihr Sachen lagern? Deko, Saisongarderobe? Wo soll denn die Garderobe für 4 Personen hin! Da kann ja schon ein kleiner Berg Jacken und Schuhe in Gebrauch sein... das könnte/ wird zum Problem
ypg schrieb:
Das ist ein sehr, sehr schöner Entwurf.
Man sieht die Hand des Architekten. Es ist schon fast eine kleine Augenweide hier, einen mit Liebe gezeichneten Entwurf zu sehen.
Ich würde mich freuen, wenn die Fenster in Bad und Schlafzimmer mit Brüstung ausgeführt werden.
***Was genau ist gemeint? 🙂
Einzig die Schleuse hab ich zu bemängeln. Da erklärt sich mir nicht die Platzierung der Straßenschuhe... Küche wird immer sandig sein, die eigentlich gut platzierte Treppe außerhalb des Eingangsbereich wird wieder zum Durchgang für Schmutzschuhe.
*** ok, die Schleuse war als Vorratskammer gedacht, aber klar das mit den Schuhen ist ein wichtiger Punkt
Hauswirtschaftsraum ist auch ein gefangener Raum, jeder Weg führt durch die Küche. Aber da gibt es schlimmeres [emoji6]
Ach, ja: die Wand zw WZ und Essen würde ich weglassen und dort in der Linie dann den Kamin setzen.
*** Kamin kommt hier hin.

Dort wo du vorschlägst wäre der Schornstein viel zu hoch (War auch unsere erste Idee)
Mal schauen, was die Mütter hier so sagen [emoji4]
Füll doch nochmal bitte den Fragekatalog aus. Danke!
Edit: wo werdet Ihr Sachen lagern? Deko, Saisongarderobe?
***Dachboden und große Garage
Wo soll denn die Garderobe für 4 Personen hin! Da kann ja schon ein kleiner Berg Jacken und Schuhe in Gebrauch sein... das könnte/ wird zum Problem ***vielleicht hier
und der Rest in einen Schrank im Gästezimmer habe in das Zitat hinein geantwortetDanke
kaho674 schrieb:
Schöner Entwurf.
Ich würde einzig die Wand am Treppenaustritt oben weglassen und gegen ein Geländer ersetzten.Leider komme ich bei diesem Gedanken nicht ganz mit!? 🙂
Salus_86 schrieb:
habe in das Zitat hinein geantwortetIn meinen Augen ein Bärendienst an der Übersichtlichkeit.https://www.instagram.com/11antgmxde/
https://www.linkedin.com/company/bauen-jetzt/
Ähnliche Themen