ᐅ 2-Familien-Wohnhaus
Erstellt am: 18.12.16 12:07
B
Bergziege2918.12.16 12:07Hallo,
auch ich möchte hier meinen Entwurf zur Diskussion stellen. Der Entwurf stammt von mir und entspricht dem Bebauungsplan. Der Bauantrag wird von mir erstellt. Da ich aber "nur" Bauingenieur bin, erhoffe ich mir hier Input bzw. Hinweise zur Verbesserung/Optimierung.
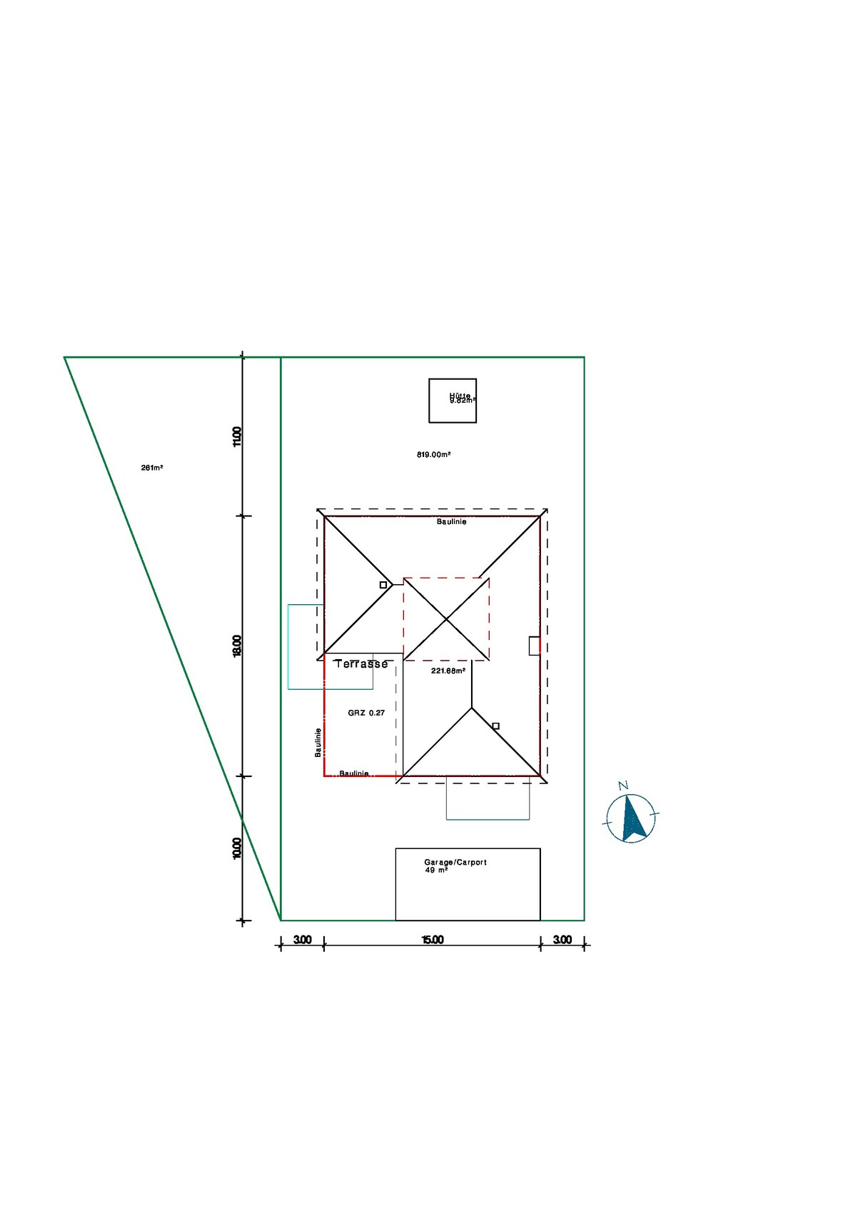
Größe des Grundstücks: 819 m² + 261 m²
Hang: ja, von vorn bis hinten ca. 0,50m
Dachform: Walmdach mit Dachbinder
Stilrichtung: modern
Keller: nein
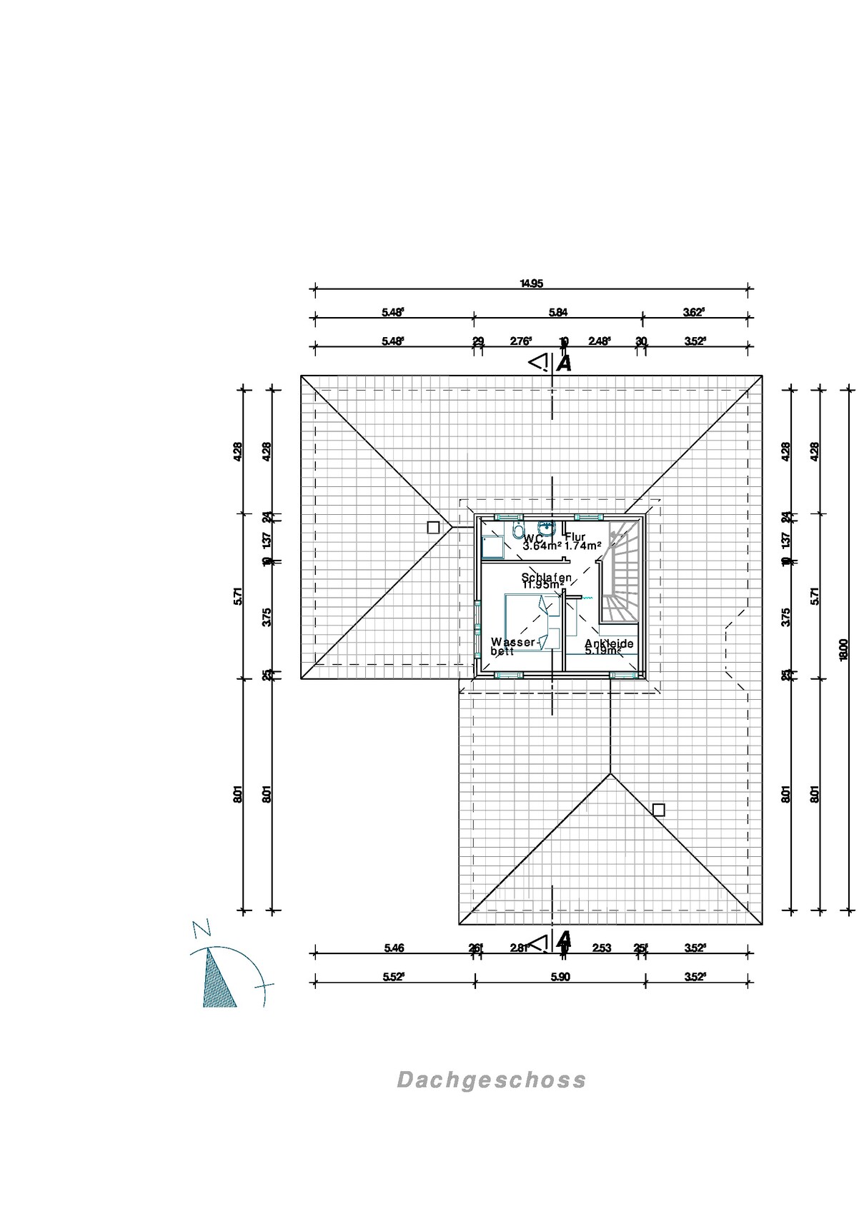
Geschosse: EG + Turm DG
Anzahl der Personen: WE2: Rentner, Wohneinheit 1: 2 Erwachsene, 2 Kinder (Teens)
offene Architektur
moderne Bauweise: ja
offene Küche, Kochinsel: ja
Anzahl Essplätze: 6
Kamin: ja
Garage, Carport: 1 Garage, 1 Carport
Hausentwurf
Von wem stammt die Planung:
-Do-it-Yourself
Was gefällt besonders? Warum?: Bebauungslinie und Geschossflächenzahl ist vorgegeben, es sollten 2 ebenerdige Einheiten entstehen. Mir gefällt mein Entwurf, würde jedoch gern die Meinung von Außenstehenden hören, da vielleicht das Kreative fehlt.
Was gefällt nicht? Warum? Die Bäder sind noch nicht optimal.
favorisierte Heiztechnik: Fußbodenheizung, Wärmepumpe mit Erdkollektoren
Wenn Ihr verzichten müsst, auf welche Details/Ausbauten
auf nichts 🙂
Danke und Gruß
auch ich möchte hier meinen Entwurf zur Diskussion stellen. Der Entwurf stammt von mir und entspricht dem Bebauungsplan. Der Bauantrag wird von mir erstellt. Da ich aber "nur" Bauingenieur bin, erhoffe ich mir hier Input bzw. Hinweise zur Verbesserung/Optimierung.
Größe des Grundstücks: 819 m² + 261 m²
Hang: ja, von vorn bis hinten ca. 0,50m
Dachform: Walmdach mit Dachbinder
Stilrichtung: modern
Keller: nein
Geschosse: EG + Turm DG
Anzahl der Personen: WE2: Rentner, Wohneinheit 1: 2 Erwachsene, 2 Kinder (Teens)
offene Architektur
moderne Bauweise: ja
offene Küche, Kochinsel: ja
Anzahl Essplätze: 6
Kamin: ja
Garage, Carport: 1 Garage, 1 Carport
Hausentwurf
Von wem stammt die Planung:
-Do-it-Yourself
Was gefällt besonders? Warum?: Bebauungslinie und Geschossflächenzahl ist vorgegeben, es sollten 2 ebenerdige Einheiten entstehen. Mir gefällt mein Entwurf, würde jedoch gern die Meinung von Außenstehenden hören, da vielleicht das Kreative fehlt.
Was gefällt nicht? Warum? Die Bäder sind noch nicht optimal.
favorisierte Heiztechnik: Fußbodenheizung, Wärmepumpe mit Erdkollektoren
Wenn Ihr verzichten müsst, auf welche Details/Ausbauten
auf nichts 🙂
Danke und Gruß
B
Bergziege2918.12.16 15:14Hallo Bergziege,
es tut mir leid, das so sagen zu müssen, aber ich bin etwas erschlagen von den vielen Punkten, die mir nicht gefallen würden.
Angefangen im DG:
- die Wand- und Innenmaße sind unterschiedlich angegeben
- zwischen Wasserbett und Wand düfte maximal ein halber Meter zum Durchgehen bleiben (vorausgesetzt, das Bett ist nicht noch viel länger als 2,1m inkl. Rahmen)
-Die Ankleide dürfte zu eng sein für zwei Schrankreihen
- das Bad fände ich als Gäste-WC schon unschön schlauchig/ eng; erst recht aber für den täglichen Gebrauch. Ablagemöglichkeiten sind nicht vorhanden, um z.B. mal die Kleidung gleich ins Bad mitzunehmen
EG Rentner
- barrierefrei dürfte das alles nicht sein wg. zu wenig Platz im Bad, neben dem Bett usw. - auch, wenn es jetzt vielleicht noch nicht nötig sein sollte, würde ich schon ein bisschen darauf achten, dass man auch mit Rollator noch dort leben kann
- der Abstellraum bietet wenig Platz; mit Schränken im Schlafzimmer hätte man zumindest die Möglichkeit, im Pflegefall anders zu möblieren
- bekommt die Wohneinheit eine Terrasse?
- immerhin gibt es eine kleine Garderobennische, allerdings nicht sonderlich tief
2. Wohneinheit
- fast keine Garderobenmöglichkeit direkt am Eingang
- dafür ein riesen Flur
- klappt das mit den Türen unter der Treppe tatsächlich?
- ist der Dachaufbau statisch so überhaupt möglich bei den Wandstärken im EG?
- bei Kind 1 ist die Eingangssituation arg eng mit den eingezeichneten Schränken bzw. die Stellmöglichkeiten müssten überprüft werden
- der Weg zur Küche geht fast schon nicht länger; ist also ziemlich unbequem
- bei der Couch kommt keine Ruhe rein, wenn jeder auf dem Weg zum Kühlschrank dran vorbei muss
Es tut mir sehr leid, auf Anhieb keine Ideen für Verbesserungen liefern zu können.
Ich hab ein bisschen den Eindruck, dass man noch mal komplett neu die Räume würfeln müsste, wenn man insbesondere den Weg zur Küche und die Couch-Situation ändern möchte.
Wie sehr hängt ihr denn gerade an der Gestaltung mit Turm?
Und wie soll es mit dem Turm bzw. den Kinderzimmern weitergehen, wenn die Kinder mal ausgezogen sind?
es tut mir leid, das so sagen zu müssen, aber ich bin etwas erschlagen von den vielen Punkten, die mir nicht gefallen würden.
Angefangen im DG:
- die Wand- und Innenmaße sind unterschiedlich angegeben
- zwischen Wasserbett und Wand düfte maximal ein halber Meter zum Durchgehen bleiben (vorausgesetzt, das Bett ist nicht noch viel länger als 2,1m inkl. Rahmen)
-Die Ankleide dürfte zu eng sein für zwei Schrankreihen
- das Bad fände ich als Gäste-WC schon unschön schlauchig/ eng; erst recht aber für den täglichen Gebrauch. Ablagemöglichkeiten sind nicht vorhanden, um z.B. mal die Kleidung gleich ins Bad mitzunehmen
EG Rentner
- barrierefrei dürfte das alles nicht sein wg. zu wenig Platz im Bad, neben dem Bett usw. - auch, wenn es jetzt vielleicht noch nicht nötig sein sollte, würde ich schon ein bisschen darauf achten, dass man auch mit Rollator noch dort leben kann
- der Abstellraum bietet wenig Platz; mit Schränken im Schlafzimmer hätte man zumindest die Möglichkeit, im Pflegefall anders zu möblieren
- bekommt die Wohneinheit eine Terrasse?
- immerhin gibt es eine kleine Garderobennische, allerdings nicht sonderlich tief
2. Wohneinheit
- fast keine Garderobenmöglichkeit direkt am Eingang
- dafür ein riesen Flur
- klappt das mit den Türen unter der Treppe tatsächlich?
- ist der Dachaufbau statisch so überhaupt möglich bei den Wandstärken im EG?
- bei Kind 1 ist die Eingangssituation arg eng mit den eingezeichneten Schränken bzw. die Stellmöglichkeiten müssten überprüft werden
- der Weg zur Küche geht fast schon nicht länger; ist also ziemlich unbequem
- bei der Couch kommt keine Ruhe rein, wenn jeder auf dem Weg zum Kühlschrank dran vorbei muss
Es tut mir sehr leid, auf Anhieb keine Ideen für Verbesserungen liefern zu können.
Ich hab ein bisschen den Eindruck, dass man noch mal komplett neu die Räume würfeln müsste, wenn man insbesondere den Weg zur Küche und die Couch-Situation ändern möchte.
Wie sehr hängt ihr denn gerade an der Gestaltung mit Turm?
Und wie soll es mit dem Turm bzw. den Kinderzimmern weitergehen, wenn die Kinder mal ausgezogen sind?
B
Bellanina18.12.16 17:26Wir bauen gerade ein sehr ähnliches Projekt. Einliegerwohnung im EG für meine Eltern und der Rest im EG plus komplettes OG für uns. Meine Eltern brauchen 2 Schlafzimmer, dadurch ist die Einliegerwohnung größer. Grundsätzlich finde ich euren Entwurf durchgängig zu gedrungen und eng. Für die Eltern sollte es in jedem Fall altersgerechte und barrierefrei sein. Was sollen sie in einem so kleinen Abstellraum unterbringen?
Ich würde größere Kinderzimmer haben wollen.
Wird das Wohnzimmer so möbliert wie eingezeichnet? Wo kommt dann der Fernseher hin?
Euer Bad/Ankleidebereich oben ist mir auch zu klein. Im Schlafzimmer steht zwar nur ein Bett, trotzdem sollte es nicht zu wenig Platz Drumherum haben. Da bin ich mir bei euch auch unsicher.
Wo werden die Waschmaschinen/Trockner stehen?
Kannst ja mal neugierig sein, ich habe unseren Grundriss hier auch eingestellt.
Ich würde größere Kinderzimmer haben wollen.
Wird das Wohnzimmer so möbliert wie eingezeichnet? Wo kommt dann der Fernseher hin?
Euer Bad/Ankleidebereich oben ist mir auch zu klein. Im Schlafzimmer steht zwar nur ein Bett, trotzdem sollte es nicht zu wenig Platz Drumherum haben. Da bin ich mir bei euch auch unsicher.
Wo werden die Waschmaschinen/Trockner stehen?
Kannst ja mal neugierig sein, ich habe unseren Grundriss hier auch eingestellt.
B
Bergziege2918.12.16 18:03Hallo und danke für Eure Gedanken,
Maria, meine Antworten in rot:
Angefangen im DG:
- die Wand- und Innenmaße sind unterschiedlich angegeben:
Ist meinem kleinen Laptop geschuldet, DG sollte als Holzkonstruktion mit außenliegender Dämmung erstellt werden.
- zwischen Wasserbett und Wand düfte maximal ein halber Meter zum Durchgehen bleiben (vorausgesetzt, das Bett ist nicht noch viel länger als 2,1m inkl. Rahmen)
Bett wird nur 2 m breit, Durchgang ist mind. 1m
-Die Ankleide dürfte zu eng sein für zwei Schrankreihen
2 Schrankreihen a 40 cm, muss ich nochmal gucken
- das Bad fände ich als Gäste-WC schon unschön schlauchig/ eng; erst recht aber für den täglichen Gebrauch. Ablagemöglichkeiten sind nicht vorhanden, um z.B. mal die Kleidung gleich ins Bad mitzunehmen
wie im Eingangspost erwähnt, Bäder sind nicht fertig, ob oben noch eine Dusche ist auch noch fraglich
EG Rentner
- barrierefrei dürfte das alles nicht sein wg. zu wenig Platz im Bad, neben dem Bett usw. - auch, wenn es jetzt vielleicht noch nicht nötig sein sollte, würde ich schon ein bisschen darauf achten, dass man auch mit Rollator noch dort leben kann
Stimmt barrierefrei nicht, muss ich nochmal gucken.
- der Abstellraum bietet wenig Platz; mit Schränken im Schlafzimmer hätte man zumindest die Möglichkeit, im Pflegefall anders zu möblieren
Abstellraum nur für die täglichen Sachen, wie Staubsauger usw.
- bekommt die Wohneinheit eine Terrasse?
ja, Südseite
- immerhin gibt es eine kleine Garderobennische, allerdings nicht sonderlich tief
40cm tief, in unserer jetzigen Wohnung auch, ist ausreichend
2. Wohneinheit
- fast keine Garderobenmöglichkeit direkt am Eingang
genau gegenüber der Eingangstür
- dafür ein riesen Flur
find ich schön, dachte als Deckenkonstruktion an Leimholzbinder
- klappt das mit den Türen unter der Treppe tatsächlich?
ja, geprüft
- ist der Dachaufbau statisch so überhaupt möglich bei den Wandstärken im EG?
ja, sind 17,5 Kalksandsteinwände, unser Statiker sagt ja
- bei Kind 1 ist die Eingangssituation arg eng mit den eingezeichneten Schränken bzw. die Stellmöglichkeiten müssten überprüft werden
ja, ist auch nur der erste Entwurf
- der Weg zur Küche geht fast schon nicht länger; ist also ziemlich unbequem
hm, versuch ich mir gerade vorzustellen, im Moment ist mein Weg zur Küche noch länger
- bei der Couch kommt keine Ruhe rein, wenn jeder auf dem Weg zum Kühlschrank dran vorbei muss
versuch ich mir gerade vorzustellen, find ich jetzt nicht so schlimm.
Sorry, soll kein "Schönreden" sein, bin sehr an Hinweisen interessiert, da ich irgendwann einen Tunnelblick bekommen habe. Schön wäre, wenn vielleicht auch ein paar Ideen zur Verbesserung kommen würden.
Danke und Gruss
Maria, meine Antworten in rot:
Angefangen im DG:
- die Wand- und Innenmaße sind unterschiedlich angegeben:
Ist meinem kleinen Laptop geschuldet, DG sollte als Holzkonstruktion mit außenliegender Dämmung erstellt werden.
- zwischen Wasserbett und Wand düfte maximal ein halber Meter zum Durchgehen bleiben (vorausgesetzt, das Bett ist nicht noch viel länger als 2,1m inkl. Rahmen)
Bett wird nur 2 m breit, Durchgang ist mind. 1m
-Die Ankleide dürfte zu eng sein für zwei Schrankreihen
2 Schrankreihen a 40 cm, muss ich nochmal gucken
- das Bad fände ich als Gäste-WC schon unschön schlauchig/ eng; erst recht aber für den täglichen Gebrauch. Ablagemöglichkeiten sind nicht vorhanden, um z.B. mal die Kleidung gleich ins Bad mitzunehmen
wie im Eingangspost erwähnt, Bäder sind nicht fertig, ob oben noch eine Dusche ist auch noch fraglich
EG Rentner
- barrierefrei dürfte das alles nicht sein wg. zu wenig Platz im Bad, neben dem Bett usw. - auch, wenn es jetzt vielleicht noch nicht nötig sein sollte, würde ich schon ein bisschen darauf achten, dass man auch mit Rollator noch dort leben kann
Stimmt barrierefrei nicht, muss ich nochmal gucken.
- der Abstellraum bietet wenig Platz; mit Schränken im Schlafzimmer hätte man zumindest die Möglichkeit, im Pflegefall anders zu möblieren
Abstellraum nur für die täglichen Sachen, wie Staubsauger usw.
- bekommt die Wohneinheit eine Terrasse?
ja, Südseite
- immerhin gibt es eine kleine Garderobennische, allerdings nicht sonderlich tief
40cm tief, in unserer jetzigen Wohnung auch, ist ausreichend
2. Wohneinheit
- fast keine Garderobenmöglichkeit direkt am Eingang
genau gegenüber der Eingangstür
- dafür ein riesen Flur
find ich schön, dachte als Deckenkonstruktion an Leimholzbinder
- klappt das mit den Türen unter der Treppe tatsächlich?
ja, geprüft
- ist der Dachaufbau statisch so überhaupt möglich bei den Wandstärken im EG?
ja, sind 17,5 Kalksandsteinwände, unser Statiker sagt ja
- bei Kind 1 ist die Eingangssituation arg eng mit den eingezeichneten Schränken bzw. die Stellmöglichkeiten müssten überprüft werden
ja, ist auch nur der erste Entwurf
- der Weg zur Küche geht fast schon nicht länger; ist also ziemlich unbequem
hm, versuch ich mir gerade vorzustellen, im Moment ist mein Weg zur Küche noch länger
- bei der Couch kommt keine Ruhe rein, wenn jeder auf dem Weg zum Kühlschrank dran vorbei muss
versuch ich mir gerade vorzustellen, find ich jetzt nicht so schlimm.
Sorry, soll kein "Schönreden" sein, bin sehr an Hinweisen interessiert, da ich irgendwann einen Tunnelblick bekommen habe. Schön wäre, wenn vielleicht auch ein paar Ideen zur Verbesserung kommen würden.
Danke und Gruss
Ähnliche Themen