1986 Haus komplett kernsanieren und modernisieren - Kosten?

4,80 Stern(e) 8 Votes
Zuletzt aktualisiert 09.10.2025
Sie befinden sich auf der Seite 2 der Diskussion zum Thema: 1986 Haus komplett kernsanieren und modernisieren - Kosten?
>> Zum 1. Beitrag <<

Lohnt sich unsere Modernisierung?


  • Anzahl der Umfrageteilnehmer
    4
F

Flo1990


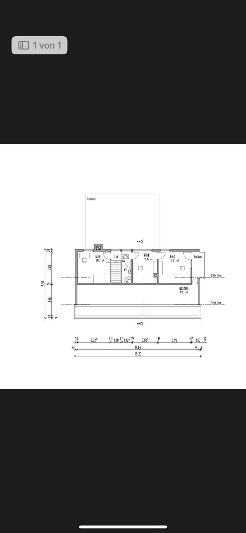
Grundriss des Dachgeschosses mit drei Kinderzimmern, Flur, WC, Abstellraum und Balkon

Obergeschoss aktuell

Doch die 120m2 sollen im OG komplett genutzt werden. Schlafzimmer, Ankleide, Bad, 3 Kinderzimmer und Kinderbad
 
N

nordanney

Irgendwie habe ich das Gefühl, dass die Sanierung immer teurer wird, je mehr Informationen kommen...

Ich würde echt über einen Abriss nachdenken.
 
S

SoL

Reißt das Teil ab.
Mit den neuen Informationen wird das Haus zum Groschengrab, das teurer als Neubau wird...
 
11ant

11ant

Toll, das eines der Kinder mit einem Vorzimmerkind schon einmal Chef üben konnte, hihi.
Doch die 120m2 sollen im OG komplett genutzt werden. Schlafzimmer, Ankleide, Bad, 3 Kinderzimmer und Kinderbad
Ja, im OG anstelle des derzeitigen DG schon - aber das neue DG über dem dann OG soll nicht auch noch wohngenutzt werden ?
Mit den neuen Informationen wird das Haus zum Groschengrab, das teurer als Neubau wird...
Mir langen die Informationen noch nicht, um solche Urteile zu fällen.
Ich würde echt über einen Abriss nachdenken.
Zumindest über eher Rückbau als Aufstockung.
Irgendwie habe ich das Gefühl, dass die Sanierung immer teurer wird, je mehr Informationen kommen...
Gerade qualitativ sehe ich da zu wenig klar. EG, KG/UG, Grundstück/Baufenster ... und natürlich Bilder von der Substanz (außen & innen).
 
Zuletzt aktualisiert 09.10.2025
Im Forum Bauplanung gibt es 5062 Themen mit insgesamt 100667 Beiträgen


Ähnliche Themen zu 1986 Haus komplett kernsanieren und modernisieren - Kosten?
Nr.ErgebnisBeiträge
1Geländehöhen im Bebauungsplan sind falsch 12
2Unwirtschaftlicher Bebauungsplan 31
3Wie lange gilt ein Bebauungsplan ? 20
4Bebauungsplan - 1,5 geschossige Bebauung? 16
5Regelungen bei Bebauungsplan Erfahrungen? 22
6Renditeobjekt bauen, trotz 1 1/2 geschossigen Bebauungsplan 11
7Rosskastanie im Bebauungsplan 13
8Bebauungsplan-Unterschied bei Erdgeschoss, Dach und Eingeschossig 17
9Bebauungsplan Mehrfamilienhaus 16
10Grundstück / Bebauungsplan / Stützmauern / Abgrabungen - Seite 217
11Abweichung vom Bebauungsplan in Neubaugebiet möglich 118
12Bebauungsplan: Garage auf Grenze außerhalb Baufenster 53
13Bestandshaus Abriss - Neubau: was lässt der Bebauungsplan zu? 11
14Grundflächenzahl/Geschossflächenzahl bei Grundstück ohne Bebauungsplan: Wie kalkulieren? Erfahrungen? 18
15Meinungen zur Grundrissplanung (Iso Ansichten, Grundrisse, Bebauungsplan) 43
16Bebauungsplan Dachformen / Abstand - Was ist alles erlaubt? 12
17Bebauungsplan Abweichungen wollen die Nachbarn nicht zustimmen 15
18Abweichungen Bebauungsplan Klinker - Erfahrungen? 27
19Bebauungsplan von 1998 - Festsetzung der Traufhöhe auf max. 3,00m 12
20Bungalow mit besonderem Bebauungsplan ... weitere Ideen? 41

Oben