N
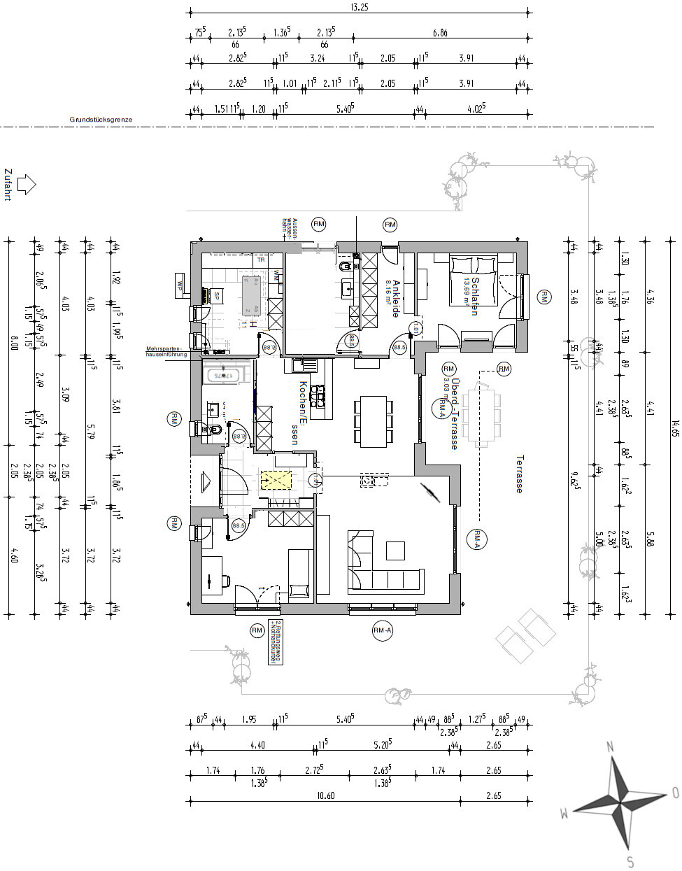
nachtfalter18.09.20 11:02Die Wanne passt und ins verkleinerte Bad 1 käme dann nur eine Dusche, die Qalität der Zeichnung 4 bitte ich zu entschuldigen. Durch den Wegfall der Wand an der Spüle liesen sich 2 Küchenzeilen stellen und die dortige Tür zum HTR könnte ein Glaselement bekommen, so dass von dort auch noch ein wenig mehr Licht reinkommt. Die nächste Version ist dann mit Zugang zum HTR über die Küche.


Ich würde die Wanne nicht ins Gästebad packen. Ihr seid zu zweit, da will man doch ein schönes Bad und nicht in so einem kleinen Bad mit Mini-Fenster baden? Zugang in den Hauswirtschaftsraum über Gästebad finde ich auch nicht so doll, das macht das Bad zu groß und der Weg zur Ankleide könnte nicht umständlicher sein. Durch die Küche geht das auch anders (meiner Meinung nach besser) als in deiner Alternative 5 - siehe mein neuer Plan. Übrigens hatte ich den Eingang auch ca. 50 cm nach Süden gerutscht
Wobei ich wegen dem direkten Transport von frischer Wäsche und Schmutzwäsche immer noch den Zugang übers Bad bevorzugen würde und eine Fenstertür für den Techniker, damit der nicht durch eure Privatgemächer muss. Aber das ist wie immer Geschmacksache.

Wobei ich wegen dem direkten Transport von frischer Wäsche und Schmutzwäsche immer noch den Zugang übers Bad bevorzugen würde und eine Fenstertür für den Techniker, damit der nicht durch eure Privatgemächer muss. Aber das ist wie immer Geschmacksache.
P
pagoni202018.09.20 11:36....wird immer besser !
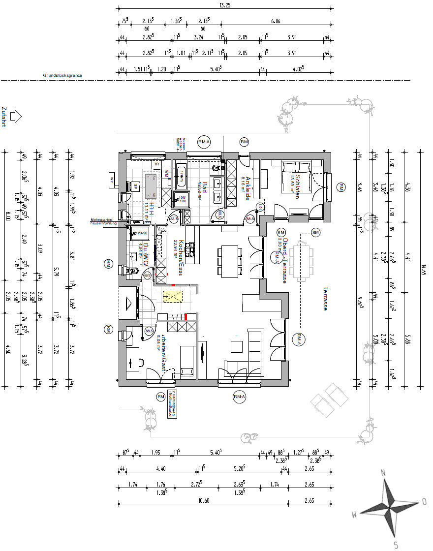
Mir gefallen die zwei Türen nicht zurt Ankleide, eine sollte doch reichen und würde ruhiger wirken. Ich würde wohl den Zugang aus dem Esszimmer streichen.
Genauso mit dem HTR/Hauswirtschaftsraum, da würde ich auch eine Tür streichen und evtl. über Trennung er Räume und Zugang von außen nachdenken. Ich würde wohl die Tür vom Gästebad streichen, dadurch hättest Du dort dann wieder mehr "Spielraum" für die Gestaltung/Nutzung.
Nach meinem Empfinden sind es jetzt eben noch diese kleinen details und individuelle Präferenz, wo eine Tür und wie der Hauswirtschaftsraum genutzt wird etc.
Mir gefällt Lösung B etwas besser, wobei der Zugang zum Hauswirtschaftsraum hier platzraubend wirkt und der vorherige, durch diesen Innenflur "besser" wirkte.
Gerade kam nich der Plan von @Würfel* rein wie ich sehe und dort gefällt mir der Zugang zum Hauswirtschaftsraum aus der Küche sehr gut und auch die Badewanne gehört ins Masterbad, stimmt auch. Dadurch hättest jetzt eine groß Speis/Hauswirtschaftsraum direkt an der Küche, was ich schön finde und nach wie vor könntest ja überlegen, den Hauswirtschaftsraum zu trennen und HTR von außen begehbar zu machen.
Der Grundriss gefällt mir so aber richtig gut !
Mir gefallen die zwei Türen nicht zurt Ankleide, eine sollte doch reichen und würde ruhiger wirken. Ich würde wohl den Zugang aus dem Esszimmer streichen.
Genauso mit dem HTR/Hauswirtschaftsraum, da würde ich auch eine Tür streichen und evtl. über Trennung er Räume und Zugang von außen nachdenken. Ich würde wohl die Tür vom Gästebad streichen, dadurch hättest Du dort dann wieder mehr "Spielraum" für die Gestaltung/Nutzung.
Nach meinem Empfinden sind es jetzt eben noch diese kleinen details und individuelle Präferenz, wo eine Tür und wie der Hauswirtschaftsraum genutzt wird etc.
Mir gefällt Lösung B etwas besser, wobei der Zugang zum Hauswirtschaftsraum hier platzraubend wirkt und der vorherige, durch diesen Innenflur "besser" wirkte.
Gerade kam nich der Plan von @Würfel* rein wie ich sehe und dort gefällt mir der Zugang zum Hauswirtschaftsraum aus der Küche sehr gut und auch die Badewanne gehört ins Masterbad, stimmt auch. Dadurch hättest jetzt eine groß Speis/Hauswirtschaftsraum direkt an der Küche, was ich schön finde und nach wie vor könntest ja überlegen, den Hauswirtschaftsraum zu trennen und HTR von außen begehbar zu machen.
Der Grundriss gefällt mir so aber richtig gut !
Da wir auch einen Bungalow haben hier noch ein paar Einwürfe:
Überdachung: Unterschätze die nicht beim Bungalow. Der Dachboden dämmt zwar im Sommer nach unten hin gut ab, aber eine gute Verschattung durch ein Vordach macht den Innenraum herrlich kühl. Alle Nachbarn beneiden uns im Sommer um unser kühles Haus. Genug Sonne bekommst du immer noch hin.
Zugang Schlafbereich über Essecke: Mag ich persönlich gar nicht. Du musst dann immer am Esstisch vorbei zirkeln. Das wird dich schnell total nerven.
Zugang zum Hauswirtschaftsraum über Küche: Bloß nicht! Mit dem Wäschekorb am Herd vorbei, wo der Partner gerade brutzelt ... Würfel* hat da eine tolle Alternative über das Bad gezeigt. Den Gang wirst du lieben lernen. Denn wo landet die Dreckwäsche? Genau im Bad oder Schlafzimmer. So musst du nicht durch das ganze Haus.
Abstellraum: Mir fehlt bei euch total eine Möglichkeit, den Staubsauger oder Putzkram abzustellen. Eine kleine Abstellkammer braucht ihr einfach.
Kamin: Den könnt ihr nicht ganz so frei stellen. Ansonsten habt ihr ein ewig langen Schornstein, was außen sehr bescheiden aussieht. Versucht den so grünstig zu setzen, dass er sich sauber in die Dachform integriert.
Ansonsten kann ich euch nur empfehlen, mal unseren Bungalow anzusehen. Der hat sich selbst mit 2 kleinen Kindern (da renne ich ne Menge) total bewehrt. Die Laufwege sind kompakt und kurz. Lediglich eine Tür zwischen Abstellraum und Küche würden wir in den nächsten Jahren (wenn ich eine neue Küche bekomme) nachrüsten. Vielleicht könnt ihr euch da ein zwei Sachen abgucken.

Überdachung: Unterschätze die nicht beim Bungalow. Der Dachboden dämmt zwar im Sommer nach unten hin gut ab, aber eine gute Verschattung durch ein Vordach macht den Innenraum herrlich kühl. Alle Nachbarn beneiden uns im Sommer um unser kühles Haus. Genug Sonne bekommst du immer noch hin.
Zugang Schlafbereich über Essecke: Mag ich persönlich gar nicht. Du musst dann immer am Esstisch vorbei zirkeln. Das wird dich schnell total nerven.
Zugang zum Hauswirtschaftsraum über Küche: Bloß nicht! Mit dem Wäschekorb am Herd vorbei, wo der Partner gerade brutzelt ... Würfel* hat da eine tolle Alternative über das Bad gezeigt. Den Gang wirst du lieben lernen. Denn wo landet die Dreckwäsche? Genau im Bad oder Schlafzimmer. So musst du nicht durch das ganze Haus.
Abstellraum: Mir fehlt bei euch total eine Möglichkeit, den Staubsauger oder Putzkram abzustellen. Eine kleine Abstellkammer braucht ihr einfach.
Kamin: Den könnt ihr nicht ganz so frei stellen. Ansonsten habt ihr ein ewig langen Schornstein, was außen sehr bescheiden aussieht. Versucht den so grünstig zu setzen, dass er sich sauber in die Dachform integriert.
Ansonsten kann ich euch nur empfehlen, mal unseren Bungalow anzusehen. Der hat sich selbst mit 2 kleinen Kindern (da renne ich ne Menge) total bewehrt. Die Laufwege sind kompakt und kurz. Lediglich eine Tür zwischen Abstellraum und Küche würden wir in den nächsten Jahren (wenn ich eine neue Küche bekomme) nachrüsten. Vielleicht könnt ihr euch da ein zwei Sachen abgucken.
N
Nice-Nofret18.09.20 15:16Die Terrassenüberdachung würde ich vergrößern, von der Wohnzimmerecke bis auf die Linie Schlafzimmer rausziehen. Dann Wohzi und Küche/Essen tauschen. Die Küche ist IMHO der wichtigste Arbeitsplatz im Haus, warum wird ausgerechnet der in die dunkelste Ecke gedrängt? Nach SüdWesten würde ich so150-200cm andenken, als Hitzeschutz im Sommer.
Wir haben eine Terrassenüberdachung von 4m tiefe gen Süd-Westen - die Sonne steht im Winter immer noch tief ins Wohnzimmer, immer Sommer dafür natürlich nicht. Dafür schütz sie auch im Winter unsere Gartenmöbel und wir können diese draußen lassen. Die Vordächer rundrum waren mal 70cm tief; durch die Außenisolation jetzt nur noch 50cm; 70cm war besser.
Dem Hauswirtschaftsraum würde ich einen zusätzlichen Außentüre spendieren zum Boilerwechseln/Service; dafür vom Bad in den Hauswirtschaftsraum nur eine 'schmale' Schlupftür.
Den Flur vor dem Gästebad dem Bad zuschlagen, dann ist das auch grossgenug als Pflegebad (also auf zu Zweit, einer mit Rollator z.B.)
Wir haben eine Terrassenüberdachung von 4m tiefe gen Süd-Westen - die Sonne steht im Winter immer noch tief ins Wohnzimmer, immer Sommer dafür natürlich nicht. Dafür schütz sie auch im Winter unsere Gartenmöbel und wir können diese draußen lassen. Die Vordächer rundrum waren mal 70cm tief; durch die Außenisolation jetzt nur noch 50cm; 70cm war besser.
Dem Hauswirtschaftsraum würde ich einen zusätzlichen Außentüre spendieren zum Boilerwechseln/Service; dafür vom Bad in den Hauswirtschaftsraum nur eine 'schmale' Schlupftür.
Den Flur vor dem Gästebad dem Bad zuschlagen, dann ist das auch grossgenug als Pflegebad (also auf zu Zweit, einer mit Rollator z.B.)
Ähnliche Themen