N
neo-sciliar17.09.20 11:32haydee schrieb:
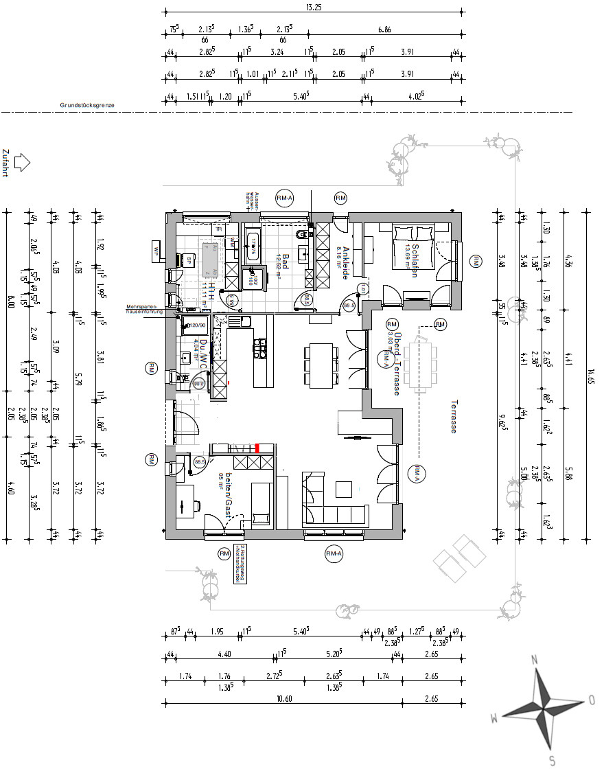
Ich würde die Außenwand Esstisch bündig zur Wohnzimmerwand ziehen. Der Platz ist zu eng.genau das meinte ich Spart auch Kosten ein ("jede Ecke kostet 10k")Hallo Nachtfalter,
wenn du den Hauswirtschaftsraum über das Bad betritts, könntest du dir den engen Flur zum Hauswirtschaftsraum sparen und das Gästebad vergrößern. Ist doch praktisch, dann räumst du die Wäsche vom Bad in den Hauswirtschaftsraum und wieder zurück in die Ankleide. Sonst ist der Weg durch Flur, Küche/Essen ja ellenlang
Ich finde den Einschnitt bei der Terrasse behaglich, gibt bestimmt ein kuschliges Eck. Auch schafft man damit ein gemütliches WZ.
Den Kamin würde ich an das Eck zwischen Essen und WZ legen, mit einer Bank zum sitzen. Den TV würde ich evtl an die entstehende Kaminwand hängen und das Sofa drehen, so dass es nicht vor beiden Fenstern steht (siehe Idee 2).
Ich habe dir mal 2 Varianten skizziert, die insbesondere den Küchen-Essbereich entzerren sollen. Die 2. Variante ist noch viel offener gehalten und schenkt damit zusätzlichen Platz. Da bräuchtest du aber ein separate Vordach. Die Küche wird hier bestimmt viel heller, weil du das Licht von der Haustür mitnutzt.
Vielleicht schenken dir meine Idee noch ein paar neue Anregungen.


wenn du den Hauswirtschaftsraum über das Bad betritts, könntest du dir den engen Flur zum Hauswirtschaftsraum sparen und das Gästebad vergrößern. Ist doch praktisch, dann räumst du die Wäsche vom Bad in den Hauswirtschaftsraum und wieder zurück in die Ankleide. Sonst ist der Weg durch Flur, Küche/Essen ja ellenlang
Ich finde den Einschnitt bei der Terrasse behaglich, gibt bestimmt ein kuschliges Eck. Auch schafft man damit ein gemütliches WZ.
Den Kamin würde ich an das Eck zwischen Essen und WZ legen, mit einer Bank zum sitzen. Den TV würde ich evtl an die entstehende Kaminwand hängen und das Sofa drehen, so dass es nicht vor beiden Fenstern steht (siehe Idee 2).
Ich habe dir mal 2 Varianten skizziert, die insbesondere den Küchen-Essbereich entzerren sollen. Die 2. Variante ist noch viel offener gehalten und schenkt damit zusätzlichen Platz. Da bräuchtest du aber ein separate Vordach. Die Küche wird hier bestimmt viel heller, weil du das Licht von der Haustür mitnutzt.
Vielleicht schenken dir meine Idee noch ein paar neue Anregungen.
N
nachtfalter17.09.20 12:22Danke und die Ecke im Essbereich hat der Küchenplaner auch schon moniert. Die resultiert aus der überdachten Terrasse und deshalb auch die beiden Fenster im Schlafzimmer. Die sind letztlich nur der Optik für die Terrasse, um nicht vor einer 4m langen Wand zu sitzen, ein Eckfenster im Schlafzimmer könnte die Lösung sein. Der Ausgang vom Essbereich wird auf jeden Fall eine Hebe-Schiebetür oder wäre eine Glas-Faltwand stattdessen empfehlenswert? Vom WZ ist kein zusätzlicher Ausgang nötig, aber viel Licht soll reinkommen - daher wird ein bodentiefes Fenster favorisiert und das kann fest sein. Die möbel hat das Bauunternehmen gezeichnet, für den Grundriss war mir das zunächst egal. War mir nicht bewuss, macht die überdachte Terrasse bzw. die Verengung wirklich ca. 10 T€ zzgl. der Schlafzimmer-Fenster aus?
Das Bad und dort die Wanne muss noch überdacht werden. Das zweite Du-WC ist für Gäste oder pflegebedürftige Eltern im Alter.
Den alternative Zugang zum HTR muss ich mal überdenken. Durch's Bad finde ich spontan nicht gut, aber evtl. Flur weg und die Küche rüber ziehen und dort eine Tür.
Das Bad und dort die Wanne muss noch überdacht werden. Das zweite Du-WC ist für Gäste oder pflegebedürftige Eltern im Alter.
Den alternative Zugang zum HTR muss ich mal überdenken. Durch's Bad finde ich spontan nicht gut, aber evtl. Flur weg und die Küche rüber ziehen und dort eine Tür.
Was bringt dir denn der kleine überdachte Terrassenbereich? Sieht so aus, als wäre es zu wenig, damit die Möbel im Trockenen stehen. Könnte aber trotzdem zu viel Licht im Innenraum schlucken. Plus macht es deinen Essbereich zu eng. Ich finde eine gerade Außenwand besser und Überdachung dann mit Glasdach und/oder Markise.
Ähnliche Themen