ᐅ 10x10m Stadtvilla (ca. 155m2, 6 Zimmer), Feintuning erwünscht
Erstellt am: 20.08.17 14:34
C
ChangelingChangeling schrieb:
Kontrollierte-Wohnraumlüftung liegt wahrscheinlich finanziell nicht drin.
Allerdings frage ich mich, warum das Haus so teuer ist, denn wenn ich hier im Forum und bei anderen (etwas unseriöseren) Baufirmen vergleiche, ist da bei vergleichbarer Ausstattung doch etwas mehr Luft. Hm.
Ich werde mich mal mit dem Bauträger unterhalten und eine genaue Kostenaufstellung verlangen.
Uns wurde gesagt, dass wir zu dieser Straße einen Mindestabstand von 3 Metern benötigen, mehr weiß ich nicht...
OG finde ich super! Allerdings ist das bei fast keinem Grundriss ein Problem. Das EG ist meist zu eng. Hier vermisse ich im EG die Computerecke im Wohnzimmer, eine Speisekammer an der Küche und eine Dusche im Gästebad. Das lässt sich aber vielleicht noch irgendwie unterbringen.
Ansonsten wirklich gut! Vielen Dank dafür
Ich habe mich die letzten Tage nach diesem Vorbild an einer weiteren Version versucht. Daran stört mich eigentlich nur das innenliegende Gästebad und der etwas kompliziertere Grundriss oben. Was haltet ihr davon?

30 cm Platz zwischen Toilette und Dusche, da muss man sich aber richtig durchzwängen.Oben wären mir die Räume zu verwinkelt. Lauter dünne Schlauchräume, ob man sich da wirklich Wohlfühlen kann?
Wenn ich mir so den Riesenplatz Computerecke im Wohnbereich ansehe, dann frage ich mich, warum nicht einen Raum Kochen/Essen/Computerecke und einen etwas größeren Raum sofa/Fernsehen/Gast, wobei das Sofa ausgezogen werden kann als Gästebett.
Kaminposition .. mal bedenken, wenn der Kamin läuft. Insbesondere sieh dir mal deinen Schlafzimmerzugang an
Die Räume etc. finde ich auch alle zu verwinkelt. Im OG haben alle Räume im Grunde eine Art Flurstummel, der dadurch größere Flächen für den Raum produziert, die aber nicht wirklich flächenmäßig genutzt werden können.
Kaminposition .. mal bedenken, wenn der Kamin läuft. Insbesondere sieh dir mal deinen Schlafzimmerzugang an
Die Räume etc. finde ich auch alle zu verwinkelt. Im OG haben alle Räume im Grunde eine Art Flurstummel, der dadurch größere Flächen für den Raum produziert, die aber nicht wirklich flächenmäßig genutzt werden können.
C
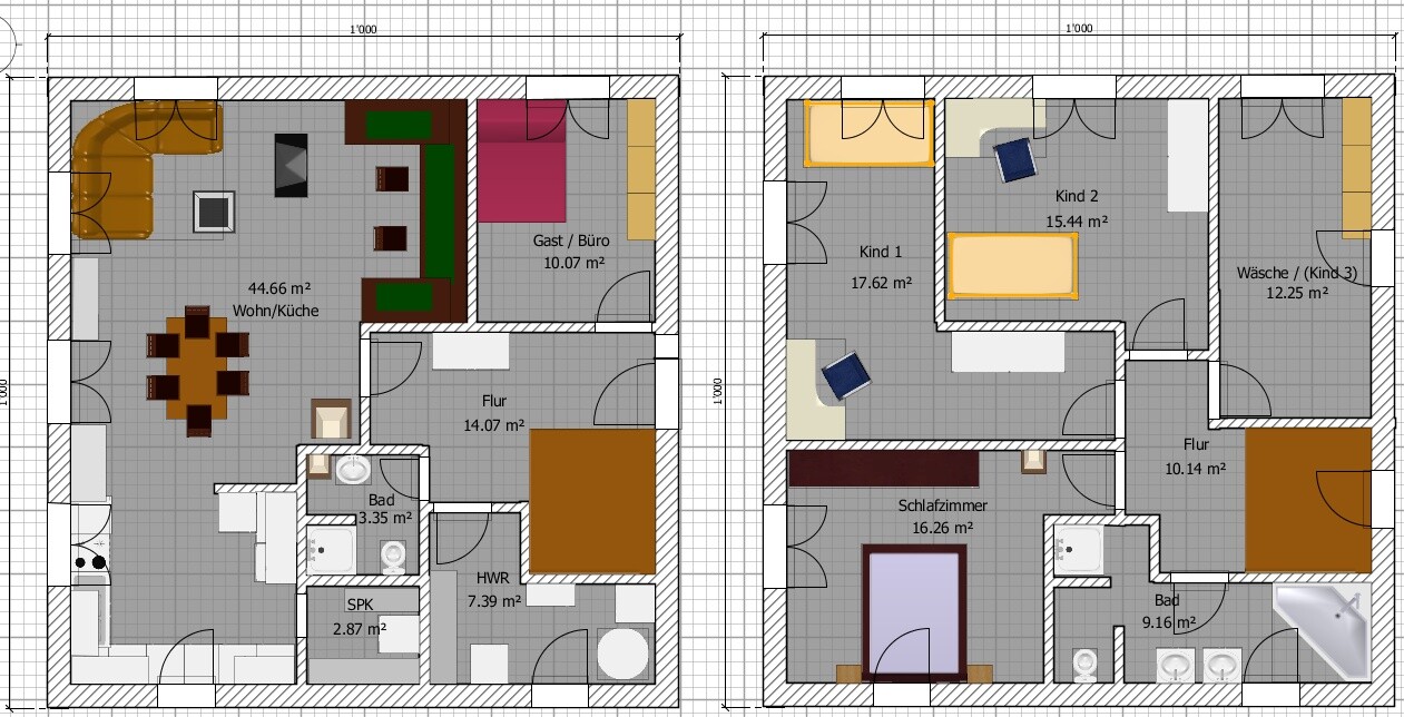
Changeling27.08.17 10:46Alles klar, habe mir die Kritik zu Herzen genommen und jetzt einen Grundriss entworfen, der uns beiden sehr gut gefällt. Riesiges Wohnzimmer und oben schön große Räume (hat in dieser Version gefühlt viel mehr Platz als zuvor!).
Man muss nur zusehen, dass die Heiztechnik durch den Spalt im Hauswirtschaftsraum kommt, ansonsten müsste man von Flur oder Speisekammer eine Ecke wegnehmen/abschrägen.

Als Feintuning könnte man noch im OG die linke "senkrechte" Wand ein Stück nach rechts verschieben, so dass der Schornstein im Wäschezimmer steht. Dann wären die beiden Kinderzimmer gleich groß und der Flur nicht so übergroß.
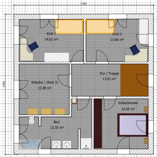
Eine Alternative zum OG wären drei gleich große Kinderzimmer (ich bin dafür, meine Frau dagegen ):

Man muss nur zusehen, dass die Heiztechnik durch den Spalt im Hauswirtschaftsraum kommt, ansonsten müsste man von Flur oder Speisekammer eine Ecke wegnehmen/abschrägen.
Als Feintuning könnte man noch im OG die linke "senkrechte" Wand ein Stück nach rechts verschieben, so dass der Schornstein im Wäschezimmer steht. Dann wären die beiden Kinderzimmer gleich groß und der Flur nicht so übergroß.
Eine Alternative zum OG wären drei gleich große Kinderzimmer (ich bin dafür, meine Frau dagegen ):
Die Speisekammer könnte m.E auch innenliegende sein und damit der HAR an die Außenwand wandern ohne diesen Knick. Was ich noch vermisse, sind die korrekte Positionen der Fenster und vor allem der Terrassentüren. Laufwege nach draußen sind verstellt.
Der Platz für die Treppe hat jetzt welche Maße?
Der Platz für die Treppe hat jetzt welche Maße?
Ähnliche Themen