ᐅ Fast finaler Grundriss-Plan für unser Haus
Erstellt am: 24.10.23 17:21
N
Narnulf136824.10.23 17:21Hallo zusammen,
ich hatte in der Vergangenheit schon mal zwei Fragen zu unserem Haus gestellt und es hat sich sehr lange gezogen (erster Architektenkontakt war September 2021), aber wir haben fast fertige Pläne für unser Haus.
Die meisten Probleme hatten wir, weil wir in Belgien, in der Deutschen Gemeinde bauen und ein deutsches Fertighausunternehmen beauftragt haben. Die haben uns zuerst einen deutschen Architekten gestellt, der leider keine Ahnung hatte wie ein Bauantrag in Belgien auszusehen hat und uns sehr viel Zeit gekostet hat... Seit April haben wir einen belgischen Architekten und mit ihm geht es sehr zügig voran.
Des Weiteren haben wir viel Zeit mit der Gemeinde bzgl. der "Gewässer" gehabt. Tatsächlich handelt es sich um zwei Rinnsale, aber seit Juli 2021 sind die Gemeinden extrem vorsichtig geworden. Wir befanden uns während der Flut noch im Kaufprozess und haben das Grundstück während des Hochwassers besucht und selbst da plätscherte es sich nur vor sich hin. Die Gewässer haben auch keine natürlichen Quellen, sondern sind einfach nur das Regenwasser der wenigen umliegenden (maximal 10) Häuser, aber nach langem Hin und Her haben wir uns auf diese Brücke geeinigt, die uns schlappe 15.000€ kosten wird. Werden aber die ersten Jahre mit einer provisorischen Verrohrung und Aufschüttung leben und irgendwann dann den Teil fertigstellen.
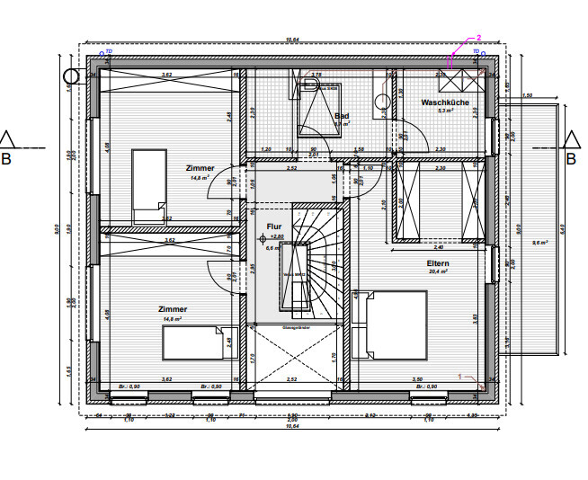
Ich hatte hier schon einmal wegen des Dachüberstandes nachgefragt und wie man sieht, hat sich das Haus stark verändert hat. Die Gemeinde hat den Plänen irgendwann den Riegel vorgeschoben, weil wir nicht so massiv aufschütten sollten. Der deutsche Architekt, den wir hatten, war nicht in der Lage gescheite Lagepläne zu erstellen und so ist die ganze Thematik erst recht spät aufgefallen und wir mussten dieses Jahr im April komplett umplanen, weil wir deutlich kleiner werden mussten und so keine Garage bauen konnten. Deshalb eben der Keller und ein kompakteres Haus.
Der Keller kostet natürlich mehr als eine einfache Bodenplatte, aber da wir Aufgrund des Gefälles womöglich eh eine Tiefgründung hätten machen müssen, hält sich der Mehrpreis wohl im Rahmen (hatte nie ein konkretes Angebot für die Brunnengründung, aber es sollte wohl sehr teuer werden).
Im Schnitt sieht man die Deckenhöhen, Dämmung der Außenwände und des Kellers. Die Decken sind in den Plänen noch falsch dargestellt, diese aus Sichtholz sein, wie bei den angehängten Bildern.
Ich bin wieder auf das Forum gestoßen, weil ich hier noch Fragen zur Kellerdämmung hatte.
Falls es Fragen oder Anregungen zu unseren Plänen geben sollte, nur zu! Freue mich auf eure Kommentare!










ich hatte in der Vergangenheit schon mal zwei Fragen zu unserem Haus gestellt und es hat sich sehr lange gezogen (erster Architektenkontakt war September 2021), aber wir haben fast fertige Pläne für unser Haus.
Die meisten Probleme hatten wir, weil wir in Belgien, in der Deutschen Gemeinde bauen und ein deutsches Fertighausunternehmen beauftragt haben. Die haben uns zuerst einen deutschen Architekten gestellt, der leider keine Ahnung hatte wie ein Bauantrag in Belgien auszusehen hat und uns sehr viel Zeit gekostet hat... Seit April haben wir einen belgischen Architekten und mit ihm geht es sehr zügig voran.
Des Weiteren haben wir viel Zeit mit der Gemeinde bzgl. der "Gewässer" gehabt. Tatsächlich handelt es sich um zwei Rinnsale, aber seit Juli 2021 sind die Gemeinden extrem vorsichtig geworden. Wir befanden uns während der Flut noch im Kaufprozess und haben das Grundstück während des Hochwassers besucht und selbst da plätscherte es sich nur vor sich hin. Die Gewässer haben auch keine natürlichen Quellen, sondern sind einfach nur das Regenwasser der wenigen umliegenden (maximal 10) Häuser, aber nach langem Hin und Her haben wir uns auf diese Brücke geeinigt, die uns schlappe 15.000€ kosten wird. Werden aber die ersten Jahre mit einer provisorischen Verrohrung und Aufschüttung leben und irgendwann dann den Teil fertigstellen.
Ich hatte hier schon einmal wegen des Dachüberstandes nachgefragt und wie man sieht, hat sich das Haus stark verändert hat. Die Gemeinde hat den Plänen irgendwann den Riegel vorgeschoben, weil wir nicht so massiv aufschütten sollten. Der deutsche Architekt, den wir hatten, war nicht in der Lage gescheite Lagepläne zu erstellen und so ist die ganze Thematik erst recht spät aufgefallen und wir mussten dieses Jahr im April komplett umplanen, weil wir deutlich kleiner werden mussten und so keine Garage bauen konnten. Deshalb eben der Keller und ein kompakteres Haus.
Der Keller kostet natürlich mehr als eine einfache Bodenplatte, aber da wir Aufgrund des Gefälles womöglich eh eine Tiefgründung hätten machen müssen, hält sich der Mehrpreis wohl im Rahmen (hatte nie ein konkretes Angebot für die Brunnengründung, aber es sollte wohl sehr teuer werden).
Im Schnitt sieht man die Deckenhöhen, Dämmung der Außenwände und des Kellers. Die Decken sind in den Plänen noch falsch dargestellt, diese aus Sichtholz sein, wie bei den angehängten Bildern.
Ich bin wieder auf das Forum gestoßen, weil ich hier noch Fragen zur Kellerdämmung hatte.
Falls es Fragen oder Anregungen zu unseren Plänen geben sollte, nur zu! Freue mich auf eure Kommentare!
A
allstar8324.10.23 21:19Narnulf1368 schrieb:
Hallo zusammen,
ich hatte in der Vergangenheit schon mal zwei Fragen zu unserem Haus gestellt und es hat sich sehr lange gezogen (erster Architektenkontakt war September 2021), aber wir haben fast fertige Pläne für unser Haus.
Die meisten Probleme hatten wir, weil wir in Belgien, in der Deutschen Gemeinde bauen und ein deutsches Fertighausunternehmen beauftragt haben. Die haben uns zuerst einen deutschen Architekten gestellt, der leider keine Ahnung hatte wie ein Bauantrag in Belgien auszusehen hat und uns sehr viel Zeit gekostet hat... Seit April haben wir einen belgischen Architekten und mit ihm geht es sehr zügig voran.
Des Weiteren haben wir viel Zeit mit der Gemeinde bzgl. der "Gewässer" gehabt. Tatsächlich handelt es sich um zwei Rinnsale, aber seit Juli 2021 sind die Gemeinden extrem vorsichtig geworden. Wir befanden uns während der Flut noch im Kaufprozess und haben das Grundstück während des Hochwassers besucht und selbst da plätscherte es sich nur vor sich hin. Die Gewässer haben auch keine natürlichen Quellen, sondern sind einfach nur das Regenwasser der wenigen umliegenden (maximal 10) Häuser, aber nach langem Hin und Her haben wir uns auf diese Brücke geeinigt, die uns schlappe 15.000€ kosten wird. Werden aber die ersten Jahre mit einer provisorischen Verrohrung und Aufschüttung leben und irgendwann dann den Teil fertigstellen.
Ich hatte hier schon einmal wegen des Dachüberstandes nachgefragt und wie man sieht, hat sich das Haus stark verändert hat. Die Gemeinde hat den Plänen irgendwann den Riegel vorgeschoben, weil wir nicht so massiv aufschütten sollten. Der deutsche Architekt, den wir hatten, war nicht in der Lage gescheite Lagepläne zu erstellen und so ist die ganze Thematik erst recht spät aufgefallen und wir mussten dieses Jahr im April komplett umplanen, weil wir deutlich kleiner werden mussten und so keine Garage bauen konnten. Deshalb eben der Keller und ein kompakteres Haus.
Der Keller kostet natürlich mehr als eine einfache Bodenplatte, aber da wir Aufgrund des Gefälles womöglich eh eine Tiefgründung hätten machen müssen, hält sich der Mehrpreis wohl im Rahmen (hatte nie ein konkretes Angebot für die Brunnengründung, aber es sollte wohl sehr teuer werden).
Im Schnitt sieht man die Deckenhöhen, Dämmung der Außenwände und des Kellers. Die Decken sind in den Plänen noch falsch dargestellt, diese aus Sichtholz sein, wie bei den angehängten Bildern.
Ich bin wieder auf das Forum gestoßen, weil ich hier noch Fragen zur Kellerdämmung hatte.
Falls es Fragen oder Anregungen zu unseren Plänen geben sollte, nur zu! Freue mich auf eure Kommentare!Die 2 Abstellkammern finde ich zu kompliziert gedacht. Wie wäre es eine Abstellkammer als Küchenschränke auszuführen... Können ja teilweise begehbar sei. Den Platz in der Küche braucht ihr da ja nicht. Und die andere Abstellkammer als Zimmer. Das kann ja dann Abstellkammer, Büro, Gästezimmer etc. alles sein.Ich würde das Rinnsal nicht als so irrelevant ansehen wie's vielleicht scheint. Wenn da Regenwasser der anderen Häuser langläuft würden bei mir die Alarmglocken angehen. Hochwasser ist nicht gleich Hochwasser. Klimaforscher sind sich einig, dass Extremwetterereignisse immer häufiger werden. Wenn ihr einen extrem trockenen Sommer habt und die Böden stark austrocknen, und dann ein Extremwetter in Form eines extrem starken Regengusses kommt (siehe Überschwemmungsgebiete: da kommt Teilweise der Regen eines ganzen Jahes an einem Tag runter), dann kann der Boden diesen Regen nicht aufnehmen, weil ausgetrocknet, und euer kleines Rinnsal nimmt evtl die gesamte Hütte mit :/
Das Rinnsal würde ich auch nicht unterschätzen. In unserer Gemeinde liegt seit über 1 Jahr das Ergebnis vom Sturzflutmanagement vor. Was unser kleines Bächchen nichtmal 2 Km nach der Quelle für eine Höhe erreichen soll. Unvorstellbar. Viele machen nichts, weil das Wasser noch nie so hoch war.
Zum Grundriss. Ein ausgefüllter Fragebogen wäre hilfreich. Die Ankleide im Elternschlafzimmer finde ich einfach nur ein dunkles Loch. Hat das Bad keine Badewanne?
Zeichne in allen Räumen die gewünschte bzw. vorhandene Möblierung im Maßstaab ein. Im Allraum vermisse ich Platz für einen Schrank, Regale, TV etc.
Zum Grundriss. Ein ausgefüllter Fragebogen wäre hilfreich. Die Ankleide im Elternschlafzimmer finde ich einfach nur ein dunkles Loch. Hat das Bad keine Badewanne?
Zeichne in allen Räumen die gewünschte bzw. vorhandene Möblierung im Maßstaab ein. Im Allraum vermisse ich Platz für einen Schrank, Regale, TV etc.
W
WilderSueden25.10.23 09:27Das Problem an Rinnsalen ist nicht Dauerregen. Das Problem ist ein Gewitter mit extremem Starkregen. Das kommt von jetzt auf sofort und ist nach einer halben Stunde alles wieder weg. Bei einer Besichtigung wird man das nie sehen. Wir haben im Ort einen kleinen Bach, der auch bei stärkerem Regen unauffällig ist. Trotzdem überschwemmt der den Dorfkern ca. alle 50 Jahre.
Ähnliche Themen