ᐅ Grundriss Einfamilienhaus 160qm, 2 Vollgeschosse - Bitte um Tipps!
Erstellt am: 03.03.19 12:53
Hallo alle zusammen,
Das Grundstück ist gekauft worden:
https://www.hausbau-forum.de/threads/6-eckiges-Grundstück-efh-mit-carport-garage-platzieren.27840/
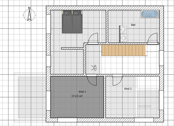
Und jetzt haben wir uns für einen GU entschieden und planen ein Massivhaus mit 2 Vollgeschossen mit 160 qm ohne Keller im der Nähe von Göttingen bauen. Da wir nun in der heißen Phase der Grundrissplanung sind, wären wir sehr für eure Meinungen und Optimierungsvorschläge dankbar.
Welche Variante ist besser?
Vielen Dank für die Tipps!






Das Grundstück ist gekauft worden:
https://www.hausbau-forum.de/threads/6-eckiges-Grundstück-efh-mit-carport-garage-platzieren.27840/
Und jetzt haben wir uns für einen GU entschieden und planen ein Massivhaus mit 2 Vollgeschossen mit 160 qm ohne Keller im der Nähe von Göttingen bauen. Da wir nun in der heißen Phase der Grundrissplanung sind, wären wir sehr für eure Meinungen und Optimierungsvorschläge dankbar.
Welche Variante ist besser?
Vielen Dank für die Tipps!
Es wäre nett, wenn du https://www.hausbau-forum.de/threads/grundrissplanung-unbedingt-vor-beitrag-erstellung-lesen.11714/ noch in den Beitrag 1 kopierst.
Die Grundrisse mit Maßen versiehst, den Lageplan dazu nimmst, skizzierst, wie das Haus nun auf dem Grundstück liegen soll. Und, da war auch Gefälle ... wie dieses berücksichtigt wird. Dann kann man irgendwann auch zu Grundrissdiskussionen kommen.
Die Grundrisse mit Maßen versiehst, den Lageplan dazu nimmst, skizzierst, wie das Haus nun auf dem Grundstück liegen soll. Und, da war auch Gefälle ... wie dieses berücksichtigt wird. Dann kann man irgendwann auch zu Grundrissdiskussionen kommen.
Hi,
was mir erstmal so bei den ersten Bildern einfällt:
- Treppe direkt an der Haustür? Jedes mal durch den Dreck wenn man ins OG geht ... ? Mich würde das stören :-(
- Schlafzimmer ist irgendwie suboptimal, viel Fläche ungenutzt. Schränke kommen da wahrscheinlich keine rein, wenn ich die Ankleide sehe.
- Eingang Ankleide würde ich mittig machen, ist irgendwie stimmiger und eventuell schrank-technisch besser planbar.
- Fenster oben wären noch interessant
- würde eher das Gästezimmer größer machen als den Hauswirtschaftsraum ... oder kommt da so viel Technik rein?
was mir erstmal so bei den ersten Bildern einfällt:
- Treppe direkt an der Haustür? Jedes mal durch den Dreck wenn man ins OG geht ... ? Mich würde das stören :-(
- Schlafzimmer ist irgendwie suboptimal, viel Fläche ungenutzt. Schränke kommen da wahrscheinlich keine rein, wenn ich die Ankleide sehe.
- Eingang Ankleide würde ich mittig machen, ist irgendwie stimmiger und eventuell schrank-technisch besser planbar.
- Fenster oben wären noch interessant
- würde eher das Gästezimmer größer machen als den Hauswirtschaftsraum ... oder kommt da so viel Technik rein?
Calbe schrieb:
Da wir nun in der heißen Phase der Grundrissplanung sind, wären wir sehr für eure Meinungen und Optimierungsvorschläge dankbar.Mir scheint, da ist ein ungeeignetes sofa(*)-Symbol auf die "Maße über alles" der tatsächlich gewünschten Sofa-Landschaft gestaucht und gezogen worden. Wenn es an Maßangaben mangelt und daher ersatzweise solchen Symbolen eine dimensionsgebende Wirkung für die Mitdenkenden zukommt, ist das kontraproduktiv.https://www.instagram.com/11antgmxde/
https://www.linkedin.com/company/bauen-jetzt/
Ähnliche Themen