SaBoeTi
30.04.2020 10:06:37
- #1
Buenos días queridos expertos,
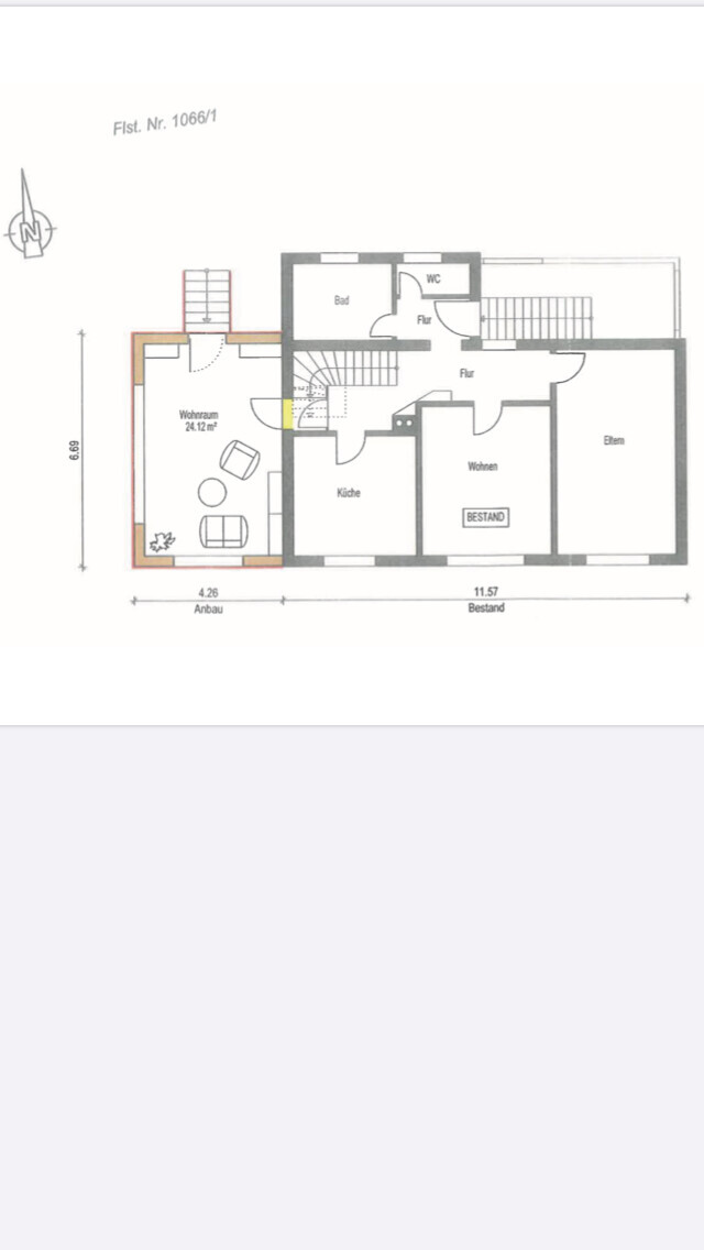
la próxima semana visitaremos esta casa, que será vendida mediante un procedimiento de oferta (precio inicial 1,- Eur)
Año de construcción 1936-
Reforma 1975-
Terreno aprox. 900m²-
Tipo de construcción: maciza-
Anexo: estructura de madera-
Techo de madera con vigas en forma de tejado a dos aguas-
Superficie habitable: 159,91m²-
Volumen construido: 958,66m³
Valor base del suelo: 150,- Eur
En caso de que la casa sea demolida. ¿Cómo sería la ventana de construcción?
¿Debería una nueva casa estar tan al sureste?
Parcela 1056/1

la próxima semana visitaremos esta casa, que será vendida mediante un procedimiento de oferta (precio inicial 1,- Eur)
Año de construcción 1936-
Reforma 1975-
Terreno aprox. 900m²-
Tipo de construcción: maciza-
Anexo: estructura de madera-
Techo de madera con vigas en forma de tejado a dos aguas-
Superficie habitable: 159,91m²-
Volumen construido: 958,66m³
Valor base del suelo: 150,- Eur
En caso de que la casa sea demolida. ¿Cómo sería la ventana de construcción?
¿Debería una nueva casa estar tan al sureste?
Parcela 1056/1