Thorsten78
2020-05-23 20:26:21
- #1
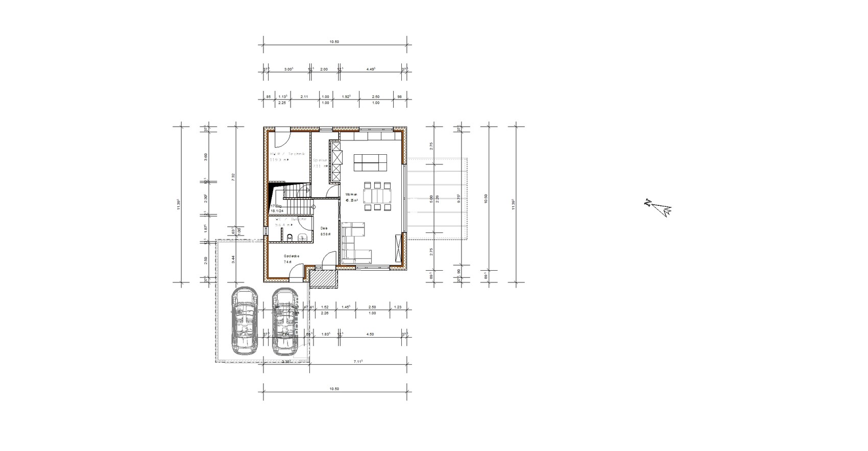
Thank you for the great and meaningful suggestions. We like it very much. Sometimes you just can’t see the forest for the trees. The question is only whether the door to the utility room would be useful? I tend to favor the door based on feeling. (Noise and heat generation?) The disadvantage would, of course, be the long way to the utility room. (Possibly laundry chute from the bathroom?) I have drawn another idea for the wardrobe in the plan, which would ease the whole thing a bit.
