ᐅ Wohnzimmer im Neubau beleuchten. Tipps zur Umsetzung gesucht.
Erstellt am: 15.08.20 07:25
C
C.beckmann1986C
C.beckmann198615.08.20 07:25Hallo zusammen,
ich bräuchte noch mal eure Hilfe. Aktuell wird unser Rohbau fertig gestellt und wir führen die ersten Gespräche mit dem Elektriker.
Womit ich mich aktuell schwer tue, ist die Beleuchtung des Wohnzimmers. Eigentlich möchten wir keine ursprüngliche Wohnzimmerlampe sondern eher eine indirekte Beleuchtung.
Ich hatte mir daher mal eine Vouten Beleuchtung mit LEDs und integrierten Spots angesehen. Allerdings finde ich unseren Wohn-Ess Bereich dafür nicht optimal. Meiner Meinung nach sieht es auch nicht aus, wenn sich der „Lichtkreis“ an der Decke nicht schließt, falls man nicht komplett herum plant, sondern nur im Couchbereich.
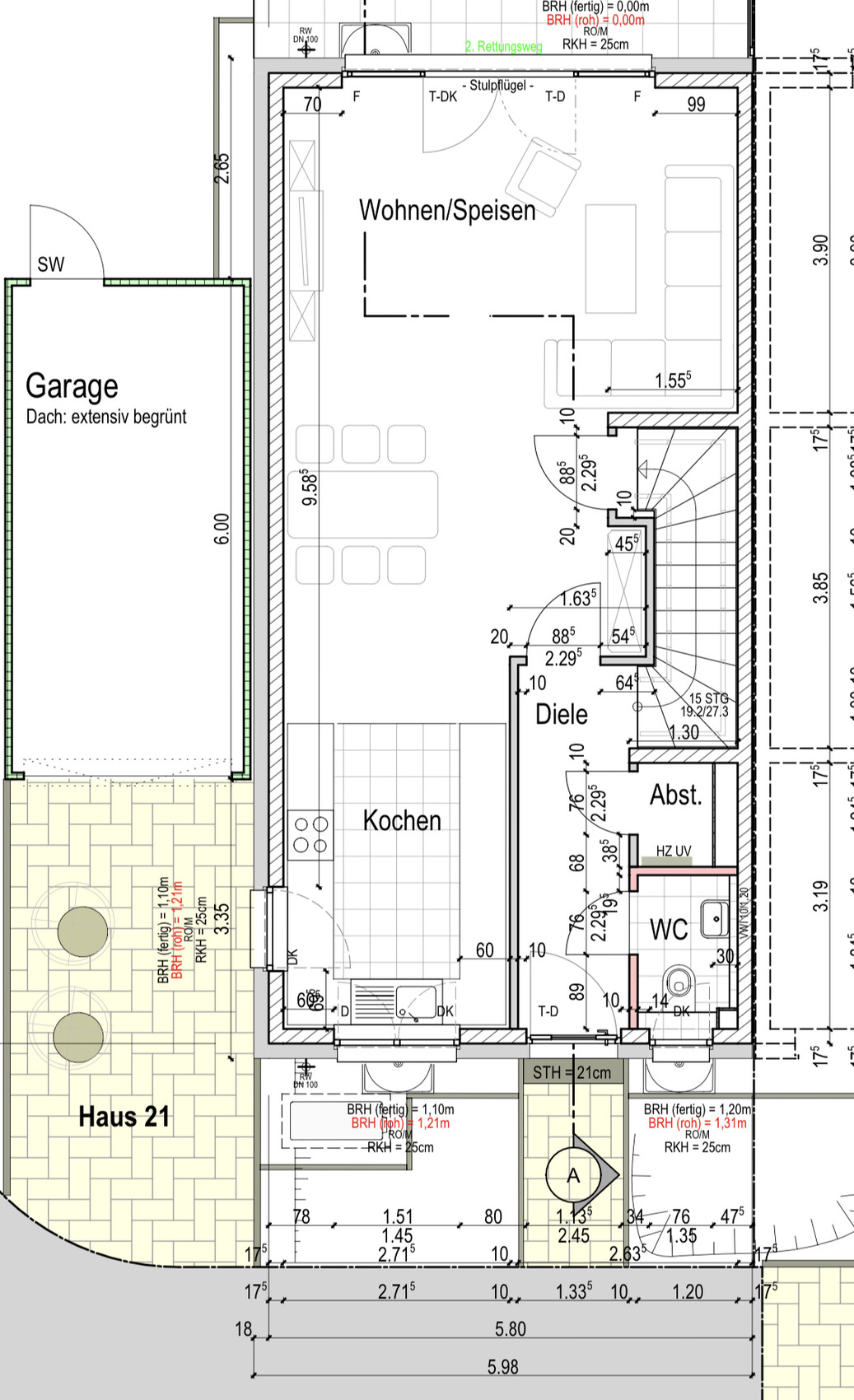
Vollständig mit Spots und Decke abhängen möchte ich auch nicht arbeiten. Ich habe mal den Grundriss angehängt. Ich hoffe ihr habt ein paar Tipps für mich.
Über dem esstisch ist natürlich eine eigenständige Lampe geplant.
Prinzipiell weiß ich noch nicht, was ich dem Elektriker bezüglich der Anschlüsse mitteilen soll. Deckenauslass, Wandauslass über der Couch oder in der Raumecke für die Spots und eine Voute.
So, viel Text, aber hoffe ihr könnt mir dennoch helfen.
Danke euch.

ich bräuchte noch mal eure Hilfe. Aktuell wird unser Rohbau fertig gestellt und wir führen die ersten Gespräche mit dem Elektriker.
Womit ich mich aktuell schwer tue, ist die Beleuchtung des Wohnzimmers. Eigentlich möchten wir keine ursprüngliche Wohnzimmerlampe sondern eher eine indirekte Beleuchtung.
Ich hatte mir daher mal eine Vouten Beleuchtung mit LEDs und integrierten Spots angesehen. Allerdings finde ich unseren Wohn-Ess Bereich dafür nicht optimal. Meiner Meinung nach sieht es auch nicht aus, wenn sich der „Lichtkreis“ an der Decke nicht schließt, falls man nicht komplett herum plant, sondern nur im Couchbereich.
Vollständig mit Spots und Decke abhängen möchte ich auch nicht arbeiten. Ich habe mal den Grundriss angehängt. Ich hoffe ihr habt ein paar Tipps für mich.
Über dem esstisch ist natürlich eine eigenständige Lampe geplant.
Prinzipiell weiß ich noch nicht, was ich dem Elektriker bezüglich der Anschlüsse mitteilen soll. Deckenauslass, Wandauslass über der Couch oder in der Raumecke für die Spots und eine Voute.
So, viel Text, aber hoffe ihr könnt mir dennoch helfen.
Danke euch.
Das Wohnzimmer hat jetzt keine gigantischen Ausmaße... Theoretisch langen einfach 3 Auslässe. Mitte Küche, Esstisch und Wohnzimmertisch. Ausreichen würde das jeden Fall.
Mit Spots hätte ich hier nicht geplant. Höchstens um irgendwas an einer Wand in Szene zu setzen...
Hinter dem Fernseher könnte man noch Beleuchtung planen. Klassisch ist hier wohl ein LED-Band...
Mit Spots hätte ich hier nicht geplant. Höchstens um irgendwas an einer Wand in Szene zu setzen...
Hinter dem Fernseher könnte man noch Beleuchtung planen. Klassisch ist hier wohl ein LED-Band...
H
hampshire15.08.20 11:36Denke in 3 Kategorien:
- Grundbeleuchtung = wie bekomme ich den Raum ausgeleuchtet?
- Zweckbeleuchtung = welches Licht brauche ich wo für welche Tätigkeiten?
- Wohnbeleuchtung = wie fühle ich mich an welchem Ort im Raum mit welchem Licht wohl.
Ebenso:
Grundbeleuchtung: mittige Deckenauslasse setzen lassen, in der Küche, im WZ und über dem Esstisch.
Arbeitsbeleuchtung in der Küche durch Lichtbänder unter den Unterschränken oder so.
Steckdosen für Stehlampe oder Tischleuchte auf der Kommode.
Wenn gewollt, Aufbauspots für Akzente, meinetwegen 3 Stück in Reihe unter Couch, beim Tv oder vor dem Fenster. Seh ich aber als völlig überbewertet an. Das ist aber gern gesehen, wenn man sich für die Seele etwas gönnen möchte. Ich würde es persönlich nicht machen und das Ersparte in eine schicke Pendelleuchte über dem Esstisch investieren.
P.s, ich hätte auf eine Tür vorn an der Küche bestanden!
Grundbeleuchtung: mittige Deckenauslasse setzen lassen, in der Küche, im WZ und über dem Esstisch.
Arbeitsbeleuchtung in der Küche durch Lichtbänder unter den Unterschränken oder so.
Steckdosen für Stehlampe oder Tischleuchte auf der Kommode.
Wenn gewollt, Aufbauspots für Akzente, meinetwegen 3 Stück in Reihe unter Couch, beim Tv oder vor dem Fenster. Seh ich aber als völlig überbewertet an. Das ist aber gern gesehen, wenn man sich für die Seele etwas gönnen möchte. Ich würde es persönlich nicht machen und das Ersparte in eine schicke Pendelleuchte über dem Esstisch investieren.
P.s, ich hätte auf eine Tür vorn an der Küche bestanden!
C
C.beckmann198615.08.20 17:01Danke das hilft mir sehr
Ähnliche Themen