Sind die Fenster noch variabel?
Ja, das mit dem Durchgang wird eng, da hast du Recht. Der Abstand zwischen der Zeile vor dem Fenster und der Insel beträgt jetzt 1 m. Man könnte ihn auf 1,20 m vergrößern.
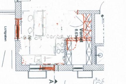
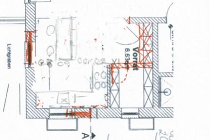
L-Form wird schwierig, weil die Seite, auf der die Abstellkammer liegt, zu kurz ist. 2-Zeiler ist auch schwierig, weil der Abstand zwischen den Zeilen dann zu groß wäre.
War jetzt auch nur kurz auf die Schnelle geplant.
L-Form wird schwierig, weil die Seite, auf der die Abstellkammer liegt, zu kurz ist. 2-Zeiler ist auch schwierig, weil der Abstand zwischen den Zeilen dann zu groß wäre.
War jetzt auch nur kurz auf die Schnelle geplant.
Boah, das ist wirklich schwierig. Nimmt man die Speis noch dazu, ist es ein wirklich sehr großer Raum. OK, da bekommt man dann auch 'ne Menge Möbel rein, aber er könnte vielleicht zu groß wirken.
@ Klötzchen
Melde Dich am Besten mal im o.g. Forum an (ist wohl auch ein Partnerforum vom Hausbau-Forum). Da wird Dir am Besten geholfen!
@ Klötzchen
Melde Dich am Besten mal im o.g. Forum an (ist wohl auch ein Partnerforum vom Hausbau-Forum). Da wird Dir am Besten geholfen!
1. Entwurf... Verkleinerung der Speis und dadurch in 180 Breite Möglichkeiten für hochschränke... leider ist dann Kühlschrank zu weit von der Zubereitung entfernt

2. Entwurf... Arbeitsfläche (kochen) gewechselt, Tresen gedreht... immer noch Kühlschrank zu weit weg

3. Entwurf: Speis verschmälert, dadurch Platz für eingekofferte Hochschränke... Hängeschränke können links und rechts vom Herd/Dunstabzug sein für Gewürze und co.

4. Entwurf: wieder zum Ursprung zurück (Speis so, wie geplant)... Hochschränke an die Außenwand, Tresen neben der Speiswand

Mir würde Entwurf 3 am besten gefallen, aber ich würde eine gerade Wand in der Speis favorisieren... seitliches Fenster etwas Rtg Mitte vermitteln, Spüle mittig des vorderen Fensters und beides mittig der 3,15 Breite.
Vielleicht ist da ein Ansatz bei, den Ihr für Eure Planung nutzen könnt. Feedback wär nicht schlecht, wie Ihr Euch entschieden habt




2. Entwurf... Arbeitsfläche (kochen) gewechselt, Tresen gedreht... immer noch Kühlschrank zu weit weg
3. Entwurf: Speis verschmälert, dadurch Platz für eingekofferte Hochschränke... Hängeschränke können links und rechts vom Herd/Dunstabzug sein für Gewürze und co.
4. Entwurf: wieder zum Ursprung zurück (Speis so, wie geplant)... Hochschränke an die Außenwand, Tresen neben der Speiswand
Mir würde Entwurf 3 am besten gefallen, aber ich würde eine gerade Wand in der Speis favorisieren... seitliches Fenster etwas Rtg Mitte vermitteln, Spüle mittig des vorderen Fensters und beides mittig der 3,15 Breite.
Vielleicht ist da ein Ansatz bei, den Ihr für Eure Planung nutzen könnt. Feedback wär nicht schlecht, wie Ihr Euch entschieden habt
Ähnliche Themen