Unsere Planung vom Eigenheim. Unternehmer gesucht

4,70 Stern(e) 3 Votes
Zuletzt aktualisiert 21.11.2025
Sie befinden sich auf der Seite 2 der Diskussion zum Thema: Unsere Planung vom Eigenheim. Unternehmer gesucht
>> Zum 1. Beitrag <<

B

Basti1503

Hallo,

ich habe im Anhang mal Außenbilder, sowie Grundrisse unseres ersten Angebotes. Den Zugang von Ankleide ins Bad im OG wollen wir jedoch nicht haben. Und es werden sich evtl noch die ein oder anderen Änderungen ergeben, aber das ist derzeit unser Startpunkt. Jeder Tipp ist willkommen und bestimmt hier und da auch sehr hilfreich


Weißes zweistöckiges Haus mit grauem Dach auf offener Wiese, von Bäumen umgeben.

Zweistöckiges Haus mit dunklem Dach in grasigem Gelände, von Bäumen umgeben; Rampe am Eingang.

Zweistöckiges weißes Haus mit dunklem Dach, große Fensterfronten, auf Grasfläche.

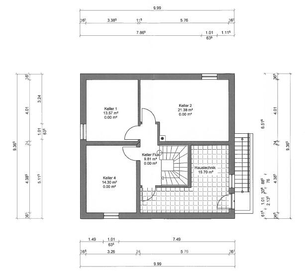
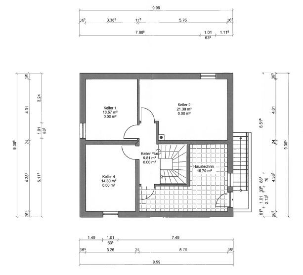
Grundriss Keller: Keller 1, Keller 2, Keller 4, Flur, Haustechnik, Treppenhaus

Grundriss eines Hauses: Wohnzimmer, Essbereich, Küche, Flur, Büro, Dusche, Windfang

Grundriss eines Stockwerks: zwei Kinderzimmer, Schlafzimmer mit Ankleide, Bad, Flur, Treppe.
 
D

Doc.Schnaggls

Die Fliesen sind im Preis enthalten, sind die schraffierten Flächen in den Grundrissen (ich nehme an, dass das Standard ist das so zu zeichnen?).
Das ist schon mal gut. Welcher qm-Preis ist denn bei Euch enthalten?

Wie sieht es mit den übrigen Bodenbelägen aus?

Bisher geplant ist einer Luft-Wasser-Wärmepumpe, aber wir haben für die kommende Woche ein Informationsgespräch zusammen mit dem Bauträger und Heizungsinstallateur vereinbart, in dem wir uns die Möglichkeiten aufzeigen lassen möchten.
Kontrollierte-Wohnraumlüftung ist nicht enthalten, wird aber wohl noch hinzu genommen werden.
Das ist ein guter Ansatz - eine Kontrollierte-Wohnraumlüftung würde ich Euch auf jeden Fall empfehlen.
 
Patchwork

Patchwork

@doc.snaggles: natürlich gibt es nach oben keine Grenzen bei den Böden. Für mich passt nur das Verhältnis zw den Kostenblöcken nicht. Laminat od Fliesen werden in der Regel mir 20-30 Euro pro m2 angesetzt, wenn ein GU das rechnet. Natürlich bekommst du im Baumarkt was für 5 Euro und bei deinem Designer was für 500 Euro pr m2.
 
B

Basti1503

Das ist schon mal gut. Welcher qm-Preis ist denn bei Euch enthalten?
25€/qm sind im Angebot enthalten. Wir können die Fliesen beziehen wo wir möchten, das ist sehr gut, da ein Kumpel in einem Baustoff-Großhandel arbeitet und wir diese wohl über ihn beziehen werden, genauso wie die restlichen Sanitärobjekte. Der Installateur verbaut diese dann, das ist im Angebot ja auch enthalten.

Ich denke die noch offenen Kellerräume werden wir zum Mehrpreis direkt mit fliesen lassen, dann sind wir da fertig

Wie sieht es mit den übrigen Bodenbelägen aus?
Da sind wir uns noch nicht ganz sicher, Wohn- und Esszimmer auf jeden Fall Parkett. Im Flur oben und dem Schlafzimmer evtl. auch. Kinderzimmer ist noch zu überlegen.
 
D

Doc.Schnaggls

@Patchwork: Das ist schon richtig. Wir sind auch in unsere Ausstattungsberatung gegangen und wollten Fliesen und Laminat aussuchen. Rausgekommen sind wir mit Feinsteinzeug und Parkett...

Ich möchte nur darauf hinweisen, dass es hier völlig problemlos zu knackigen Kostensprüngen kommen kann.
 
B

Basti1503

Danke für die Info, dessen sind wir uns bewusst
Wie so oft im Leben kostet das schöne Zeug meist mehr... Aber gerade die Bodenbeläge sollen ja länger halten und drin bleiben...
 
Zuletzt aktualisiert 21.11.2025
Im Forum Bauplanung gibt es 5072 Themen mit insgesamt 100818 Beiträgen


Ähnliche Themen zu Unsere Planung vom Eigenheim. Unternehmer gesucht
Nr.ErgebnisBeiträge
1Fliesen vs Laminat/Parkett 17
2Welcher Bodenbelag? Fliesen, Vinyl oder Parkett? Tipps? 23
3Fußbodenheizung, Laminat oder Fliesen fußwärmer? 35
4Hilfe zu Bodenbelägen gesucht, insbesondere. Fliesen vs. Parkett 33
5Übergang von Parkett auf Fliesen - Seite 215
6Parkett oder Fliesen bei Katzen - Bedenken angebracht? 11
7Kombination Fliesen und Parkett im Wohnzimmer mit offener Küche 30
8Parkett oder Fliesen im Keller - Seite 211
9Fußbodenheizung - Besser Fliesen oder Laminat verlegen? 28
10Höhenausgleich zwischen Fliesen und Laminat 13
11Parkett und Fliesen in einem Raum 26
12Verkleidung von Betontreppen mit Fliesen, Vinyl oder Parkett? 24
13Teppich, Laminat oder Parkett? 10
14Laminat vs. Parkett 10
15Fliesen, Vinyl oder anderweitiger Bodenbelag bei Fußbodenheizung? - Seite 223
16Bodenbelag. Laminat, Fertigparkett, Vinyl? Wo am besten kaufen? 60
17Laminat - warum bei Verkäufern so unbeliebt? - Seite 643
18Hat Parkett nur Vorteile gegenüber Designboden? - Seite 635
19Kork mit Druck, Parkett, Linoleum, Vinyl, Mulitsense etc.pp - Seite 230
20Neubau Kfw70 Fußbodenheizung und Fliesen 11

Oben