ᐅ Fertighaus Weiss Erfahrungen und Preise: Einfamilienhaus, Keller, Doppelgarage
Erstellt am: 27.05.21 19:01
D
diehäuslebauerD
diehäuslebauer27.05.21 19:01Liebe Mitglieder,
wir sind neu hier im Forum, also erst einmal ein "Hallo" in die Runde!
Und jetzt gleich zur Sache:
Wir haben ein Angebot der Firma Fertighaus Weiss zu einem unterkellerten Einfamilienhaus mit ca. 130qm Wohnfläche erhalten.
Dieses Angebot liegt uns in 2 Varianten vor: KFW 55 und KFW 40+.
Gerne würden wir eure Erfahrungen zu dem Angebot und den Preisen von Fertighaus Weiss hören und eventuell Möglichkeiten der Einsparung an der einen oder anderen Stelle.
Wir freuen uns auf jede Erfahrung und Rückmeldung zu Fertighaus Weiss und eventuell Tipps wie wir unser Bauvorhaben alternativ ausgestalten könnten.
- Grundstück ist reserviert (573 qm) und ist fast eben, im Süden von BW
- Haus in Holzständerbauweise der Firma Weiss, Haus 9,95,5x8,70m mit Betonfertiggaragen (2 Tore ohne Trennwand mit elektrischen Torantrieb) 2x7x6m.
- Wohnfläche: ca. 130 qm
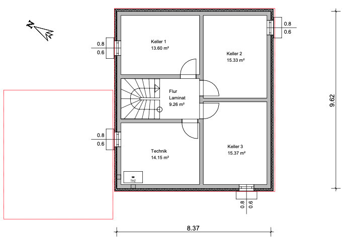
- WEISS-SWD Keller - Weisse Wanne SickerWasserDicht
- Preis: 400.000€ inkl. USt.
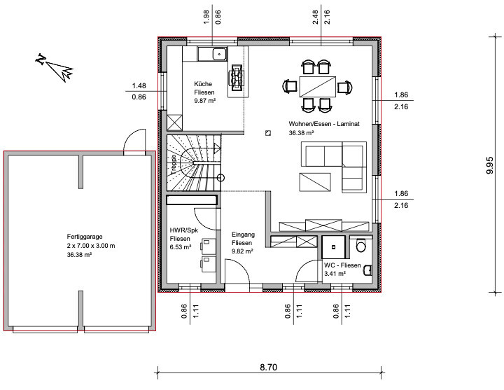
- EG: Wohn-/Essbereich/Küche, Hauswirtschaftsraum (Eventuell als Büro nutzbar), Gäste-WC mit Dusche, Diele
- OG: 2 Kinderzimmer, Schlafzimmer, Bad mit Wanne, Dusche
- Satteldach 35°, Dachüberstand 30cm, Kniestock 2m
- Fenster: KFW 55: Holzfenster(0,83 - 1,00 W/m2K), KFW 40+: Kunststofffenster (0,74 - 0,87 W/m2K) Rollläden (3x elektrisch)
- Luft-Wasser-Wärmepumpe mit zentraler Lüftungsanlage THZ 5.5 FLEX
- Fußbodenheizung EG und DG
- Die Ausbaustufe ist komplett fertig, also "nur noch" möbel rein und fertig.
Preise:
KfW 55:
29085,32 € - Fertiggarage
16499,00 € - Photovoltaikanlage 3,6 kWp mit Speicher(optional bei KFW 55)
445164,00 € - Haus inkl. SWD-Keller
-10000,00 € - Rabatt
KfW 40+:
29085,32 € - Fertiggarage
16499,00 € - Photovoltaikanlage 3,6 kWp mit Speicher
460129,00 € - Haus inkl. SWD-Keller
-10000,00 € - Rabatt
Vielen Dank schonmal im Voraus für eure Erfahrungen mit Fertighaus Weiss! Falls ich irgendwas essentielles vergessen haben sollte, einfach melden, dann kann ich es nachreichen.


wir sind neu hier im Forum, also erst einmal ein "Hallo" in die Runde!
Und jetzt gleich zur Sache:
Wir haben ein Angebot der Firma Fertighaus Weiss zu einem unterkellerten Einfamilienhaus mit ca. 130qm Wohnfläche erhalten.
Dieses Angebot liegt uns in 2 Varianten vor: KFW 55 und KFW 40+.
Gerne würden wir eure Erfahrungen zu dem Angebot und den Preisen von Fertighaus Weiss hören und eventuell Möglichkeiten der Einsparung an der einen oder anderen Stelle.
Wir freuen uns auf jede Erfahrung und Rückmeldung zu Fertighaus Weiss und eventuell Tipps wie wir unser Bauvorhaben alternativ ausgestalten könnten.
- Grundstück ist reserviert (573 qm) und ist fast eben, im Süden von BW
- Haus in Holzständerbauweise der Firma Weiss, Haus 9,95,5x8,70m mit Betonfertiggaragen (2 Tore ohne Trennwand mit elektrischen Torantrieb) 2x7x6m.
- Wohnfläche: ca. 130 qm
- WEISS-SWD Keller - Weisse Wanne SickerWasserDicht
- Preis: 400.000€ inkl. USt.
- EG: Wohn-/Essbereich/Küche, Hauswirtschaftsraum (Eventuell als Büro nutzbar), Gäste-WC mit Dusche, Diele
- OG: 2 Kinderzimmer, Schlafzimmer, Bad mit Wanne, Dusche
- Satteldach 35°, Dachüberstand 30cm, Kniestock 2m
- Fenster: KFW 55: Holzfenster(0,83 - 1,00 W/m2K), KFW 40+: Kunststofffenster (0,74 - 0,87 W/m2K) Rollläden (3x elektrisch)
- Luft-Wasser-Wärmepumpe mit zentraler Lüftungsanlage THZ 5.5 FLEX
- Fußbodenheizung EG und DG
- Die Ausbaustufe ist komplett fertig, also "nur noch" möbel rein und fertig.
Preise:
KfW 55:
29085,32 € - Fertiggarage
16499,00 € - Photovoltaikanlage 3,6 kWp mit Speicher(optional bei KFW 55)
445164,00 € - Haus inkl. SWD-Keller
-10000,00 € - Rabatt
KfW 40+:
29085,32 € - Fertiggarage
16499,00 € - Photovoltaikanlage 3,6 kWp mit Speicher
460129,00 € - Haus inkl. SWD-Keller
-10000,00 € - Rabatt
Vielen Dank schonmal im Voraus für eure Erfahrungen mit Fertighaus Weiss! Falls ich irgendwas essentielles vergessen haben sollte, einfach melden, dann kann ich es nachreichen.
D
diehäuslebauer27.05.21 19:20Rumbi441 schrieb:
Grundriss? Beim KFW 40 kann der Preis nicht stimmen weil der gleich KFW 55 istKlar Grundrisse habe ich angehängt. Der Hauspreis für die beiden Varianten ist doch unterschiedlich:KFW55:445164,00 €
KFW40+: 460129,00 €
J
JuliaMünchen27.05.21 20:25Wir sind was Dämmungen angeht, gebrannte Kinder, da wir aktuell noch in einer nachträglich überdämmten Wohnung ohne Lüftungsanlage wohnen - es ist wie ein stickiger Backofen. Deswegen wäre ein KFW 40 oder 40+ Haus für uns nie in Frage gekommen, wir haben uns für die ganz normale Energieeinsparverordnung Stufe und einen Kamin entschieden. Kann euch der Hersteller vorrechnen, wie viele Jahre es dauert, bis sich der Aufpreis finanziell auch rechnet (vor allem wenn ihr euch für KFW 55 ohne Photovoltaikanlage nehmen würde?) Für den Mehrpreis kann man denke ich ziemlich lange heizen und auch noch ein paar Sonderwünsche realisieren, die ja jeder Bauherr hat, ob es jetzt elektrische Rollläden oder größere Fliesen sind.
Übrigens ein sehr schönes Haus mit tollem Grundriss! Nur das Schlafzimmer würde ich für ein großes Doppelbett und einen Schrank als zu knapp empfinden.
Übrigens ein sehr schönes Haus mit tollem Grundriss! Nur das Schlafzimmer würde ich für ein großes Doppelbett und einen Schrank als zu knapp empfinden.
D
diehäuslebauer27.05.21 20:38Beim Preis ist mir tatsächlich ein copy/Paste Fehler unterlaufen. Im Text steht
„Preis: 400.000€ inkl. USt.“ das gehört da nicht hin, also einfach ignorieren oder eventuell kann ein Moderator die Zeile rausnehmen.
„Preis: 400.000€ inkl. USt.“ das gehört da nicht hin, also einfach ignorieren oder eventuell kann ein Moderator die Zeile rausnehmen.
Ähnliche Themen