ᐅ Und noch eine "Stadtvilla"
Erstellt am: 15.02.19 15:31
D
Dschan198615.02.19 15:31Hallo zusammen,
nachdem ich bereits ausgiebig seit ein paar Monaten im Stillen mitlese, möchte auch ich Euch um Tipps, Feedback und Anregungen zu unserem Grundriss bitten.
Hier kurz die Angaben im Steckbrief zusammengefasst:
Bebauungsplan/Einschränkungen
Größe des Grundstücks – 880 qm (reserviert aber noch nicht gekauft)
Hang – nein
Details im Bild. Es darf zweigeschossig gebaut werden. Auch „toskanischer“ Stil ist explizit im Bebauungsplan als Möglichkeit genannt.
Anforderungen der Bauherren
Stilrichtung, Dachform, Gebäudetyp – Stadtvilla toskanischer Stil
Keller, Geschosse – kein Keller, EG, OG
Anzahl der Personen, Alter – 2 Personen (34 & 32), geplant 2 Kinder
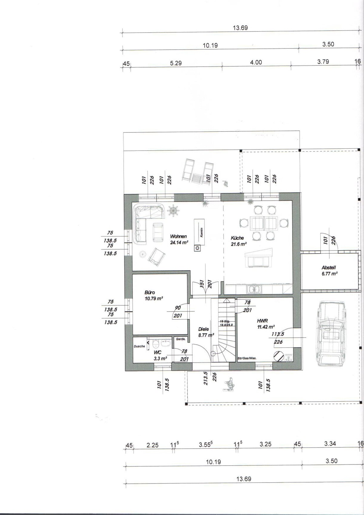
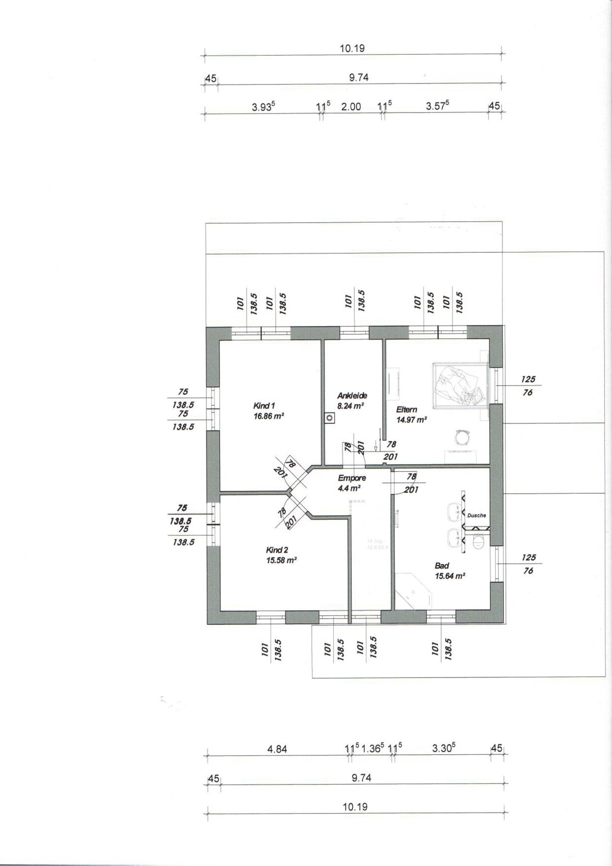
Raumbedarf im EG, OG – EG mit Büro; OG 2 mal Kinder, Schlafen, Ankleide und Bad
Büro: Familiennutzung oder Homeoffice? Jeweils 1 Mal pro Woche Homeoffice
Schlafgäste pro Jahr – 10 Schlafgäste pro Jahr
offene oder geschlossene Architektur – teils
konservativ oder moderne Bauweise – moderne Bauweise
offene Küche, Kochinsel – offene Küche mit Kochinsel
Anzahl Essplätze – 8 Plätze
Kamin – Tunnelkamin als Raumtrenner zw. Ess- und Wohnbereich
Musik/Stereowand – kein Bedarf; Fernseher über Raumtrenner
Balkon, Dachterrasse – Überdachte Terrasse unter „toskana“-Dach
Garage, Carport – Carport unter „toskana“-Dach
Nutzgarten, Treibhaus – kein Bedarf
weitere Wünsche/Besonderheiten/Tagesablauf, gern auch Begründungen, warum dieses oder das nicht sein soll
Von wem stammt die Planung – Planer eines BU + Do-it-Yourself
Was gefällt besonders? Warum? Obige Wünsche sind umgesetzt, Schnitt der Kinderzimmer
Was gefällt nicht? Warum? Bad im OG zu vielleicht zu groß, wenig Stauraum außer auf Spitzboden, unter der Treppe und ggf. im Hauswirtschaftsraum, Größe Wohnbereich vllt. zu gering (vielleicht Büro kleiner zu Gunsten des Wohnbereichs?)
Preisschätzung lt Architekt/Planer: ca. 250k
favorisierte Heiztechnik: Gasheizung
Was ist die wichtigste/grundlegende Frage zum Grundriss in 130 Zeichen zusammengefasst?
Allgemeine Meinungen zum Grundriss, alternative Ideen zum Grundriss OG
Vielen Dank im Voraus für Eure Anregungen!
Dschan





nachdem ich bereits ausgiebig seit ein paar Monaten im Stillen mitlese, möchte auch ich Euch um Tipps, Feedback und Anregungen zu unserem Grundriss bitten.
Hier kurz die Angaben im Steckbrief zusammengefasst:
Bebauungsplan/Einschränkungen
Größe des Grundstücks – 880 qm (reserviert aber noch nicht gekauft)
Hang – nein
Details im Bild. Es darf zweigeschossig gebaut werden. Auch „toskanischer“ Stil ist explizit im Bebauungsplan als Möglichkeit genannt.
Anforderungen der Bauherren
Stilrichtung, Dachform, Gebäudetyp – Stadtvilla toskanischer Stil
Keller, Geschosse – kein Keller, EG, OG
Anzahl der Personen, Alter – 2 Personen (34 & 32), geplant 2 Kinder
Raumbedarf im EG, OG – EG mit Büro; OG 2 mal Kinder, Schlafen, Ankleide und Bad
Büro: Familiennutzung oder Homeoffice? Jeweils 1 Mal pro Woche Homeoffice
Schlafgäste pro Jahr – 10 Schlafgäste pro Jahr
offene oder geschlossene Architektur – teils
konservativ oder moderne Bauweise – moderne Bauweise
offene Küche, Kochinsel – offene Küche mit Kochinsel
Anzahl Essplätze – 8 Plätze
Kamin – Tunnelkamin als Raumtrenner zw. Ess- und Wohnbereich
Musik/Stereowand – kein Bedarf; Fernseher über Raumtrenner
Balkon, Dachterrasse – Überdachte Terrasse unter „toskana“-Dach
Garage, Carport – Carport unter „toskana“-Dach
Nutzgarten, Treibhaus – kein Bedarf
weitere Wünsche/Besonderheiten/Tagesablauf, gern auch Begründungen, warum dieses oder das nicht sein soll
- Dusche im Gästebad notwendig
- Weg vom Hauswirtschaftsraum zur Küche möglichst kurz
- „toskana“-Dach gewünscht wegen Optik, überdachter Terrasse und Carport-Funktion
- überdachte Terrasse mit SW-Ausrichtung für Abendsonne
- Ankleide vor Schlafzimmer, um Partner bei früheren Aufstehen nicht zu oft zu wecken
- Tunnelkamin als Raumtrenner für gemütliche Atmosphäre im Wohn- und Essbereich
- Wohnbereich sollte ca. 14 qm nicht unterschreiten
Von wem stammt die Planung – Planer eines BU + Do-it-Yourself
Was gefällt besonders? Warum? Obige Wünsche sind umgesetzt, Schnitt der Kinderzimmer
Was gefällt nicht? Warum? Bad im OG zu vielleicht zu groß, wenig Stauraum außer auf Spitzboden, unter der Treppe und ggf. im Hauswirtschaftsraum, Größe Wohnbereich vllt. zu gering (vielleicht Büro kleiner zu Gunsten des Wohnbereichs?)
Preisschätzung lt Architekt/Planer: ca. 250k
favorisierte Heiztechnik: Gasheizung
Was ist die wichtigste/grundlegende Frage zum Grundriss in 130 Zeichen zusammengefasst?
Allgemeine Meinungen zum Grundriss, alternative Ideen zum Grundriss OG
Vielen Dank im Voraus für Eure Anregungen!
Dschan
W
WilhelmRo15.02.19 15:45Der Grundriss sieht für mich ganz okay aus - alles andere ist Geschmackssache. Ich mag zB die Treppe nicht im "Schmutzbereich".
Wenn du hier schon länger mit liest, wunder ich mich über das hier:
ansonsten, da nirgends die qm stehen, ich aber 10m x 11m in etwa rauslesen kann was ca 160qm sein solten komme ich auf diese Rechnung:
160*2000€ = 320k€
+40k Baunebenkosten =360k
+20k Decke Böden = 380k
+20k Außen = 400k
+20k Puffer = 420k
Warum ich gleich auf den Preis losgehe? Damit ihr entweder mehr Geld einrechnet, oder eben den Grundstück den Möglichkeiten anpasst.
mfg
Wenn du hier schon länger mit liest, wunder ich mich über das hier:
Dschan1986 schrieb:Wo baut ihr denn?
Preisschätzung lt Architekt/Planer: ca. 250k
ansonsten, da nirgends die qm stehen, ich aber 10m x 11m in etwa rauslesen kann was ca 160qm sein solten komme ich auf diese Rechnung:
160*2000€ = 320k€
+40k Baunebenkosten =360k
+20k Decke Böden = 380k
+20k Außen = 400k
+20k Puffer = 420k
Warum ich gleich auf den Preis losgehe? Damit ihr entweder mehr Geld einrechnet, oder eben den Grundstück den Möglichkeiten anpasst.
mfg
D
Dschan198615.02.19 15:58Der Preis beinhaltet natürlich keine Baunebenkosten, Grundstück, usw.
Mir ist durchaus bewusst, dass da noch ein ganzer Batzen an Kosten oben drauf kommen. Es handelt sich lediglich um den angebotenen Preis vom GU für die Leistungen, die wir angefragt haben.
Wir bauen in SH im ländlichen Raum, was den Preis etwas tiefer ausfallen lassen wird, als hier sonst oftmals zu lesen.
Mir geht es in diesem Post auch hauptsächlich um den grusnriss als solchen mit den obigen Fragestellungen.
Aber danke für den Hinweis 🙂
Mir ist durchaus bewusst, dass da noch ein ganzer Batzen an Kosten oben drauf kommen. Es handelt sich lediglich um den angebotenen Preis vom GU für die Leistungen, die wir angefragt haben.
Wir bauen in SH im ländlichen Raum, was den Preis etwas tiefer ausfallen lassen wird, als hier sonst oftmals zu lesen.
Mir geht es in diesem Post auch hauptsächlich um den grusnriss als solchen mit den obigen Fragestellungen.
Aber danke für den Hinweis 🙂
Meine Punkte:
OG:
Ankleide mit 2m zu schmal. Bei zwei 60iger Schränken bleiben dazwischen nur noch 80cm. schränke stehen in den Fensterbereich rein.
Kamin mitten im Schrankbereich in der Ankleide.
Eingang Kinderzimmer gefällt mir irgendwie nicht.
EG:
Für was die Tür vom Auto in den Hauswirtschaftsraum wenn der Weg zur Haustür eh überdacht ist.
esstisch und Küche könnten etwas knapp sein.
Garderobe fast nicht vorhanden.
Zugang in den Abstellraum auch von der Autoseite her, um gleich richtig mit Rädern und der Mülltonne raus zu kommen.
Kein Fenster auf der Westseite.
OG:
Ankleide mit 2m zu schmal. Bei zwei 60iger Schränken bleiben dazwischen nur noch 80cm. schränke stehen in den Fensterbereich rein.
Kamin mitten im Schrankbereich in der Ankleide.
Eingang Kinderzimmer gefällt mir irgendwie nicht.
EG:
Für was die Tür vom Auto in den Hauswirtschaftsraum wenn der Weg zur Haustür eh überdacht ist.
esstisch und Küche könnten etwas knapp sein.
Garderobe fast nicht vorhanden.
Zugang in den Abstellraum auch von der Autoseite her, um gleich richtig mit Rädern und der Mülltonne raus zu kommen.
Kein Fenster auf der Westseite.
Ähnliche Themen