Hausbau - Ratgeber
Bauherrenhilfe
- Bauherrenhilfe vor Vertragsabschluss
-- Warum einen unabhängigen Baubetreuer?
-- Vertragsgrundlagen
-- Bausumme
-- Zahlungsplan zur Kostenkontrolle
-- Pflichten des Bauherren vor Vertragsabschluss
-- Unterlagen beim Hausbau vor Vertragsabschluss
- Bauherrenhilfe nach Vertragsabschluss
-- Bauantrag bei Behörden
-- Bau-Genehmigungsverfahren bei Baubehörden
-- Bauspezifische Versicherungen
-- Bauzeitenplan
-- Baubeginn - die Letzten Pflichten der Bauherrschaft
- Bauherrenhilfe während der Bauzeit
- Gewährleistungsansprüche
- Bauabnahme
Baufinanzierung
- Baufinanzierung - Allgemeine Fragen
- Kreditarten
- Kredit-Konditionen
- Bausparen
- Staatliche Förderungen
- Verkehrswert
- Haushaltsrechnung und Bonität
Hausbau Planung
- Haustypen
- Hausbau Vorbereitungsarbeiten
- Das Baugrundstück
- Baugrund beim Hausbau
- Baurecht
- Gebäudeschutz
- Erdarbeiten und Wasserhaltung
- Stützmauern
- Einfriedung
- Untergeschoss
- Kanalisation
- Tragende Elemente
- Nichttragende Innenwände
- Fundation / Fundament
- Deckenkonstruktionen
- Dächer
- Kaminanlagen
- Treppen Rampen Leitern
- Dachbeläge und Spengler
- Fenster
- Sonnen und Wetterschutz
- Aussenputze
- Einbauten, Küchen, Türen
- Bodenbeläge und Unterlagsböden
- Parkett
- Gips, Wand, Decke
Haustechnik und Energie
- Heiztechnik
- Lüftung und Klimatechnik
- Sanitärtechnik
- Elektrotechnik
- Erneuerbare Energie
Whirlpools / Jacuzzi
Hausbau Magazin
- Baufinanzierung trotz Krise?
- Das Blockhaus
- Moderne Dämmstoffe im Vergleich
- Erker Vor- und Nachteile
- Glasflächen beim Hausbau
- Günstig ein Haus Bauen
- Mediterraner Hausbaustil
- Mehrgenerationenhaus
- Moderne Architektur
- Gartengestaltung leicht gemacht
- Traditioneller Ziegelbau
- Villa als höchster Traum
- Im Eigenheim Ruhestand geniessen
- Altbau sanieren
- Kauf einer Holzgarage
- Immobilienmakler
- Arbeitshandschuhe für den Winter
- Zuhause verschönern
- Outdoor-Plissees
- Schlafzimmer planen
- Terrassenüberdachung
- Wohngebäudeversicherung
- Zaunarten und Eigenschaften
- Hauseingang gestalten
- Der perfekte Grundriss
- Sparsamer heizen im Altbau
- Einfamilienhaus smart finanzieren
- Planung einer PV-Anlage
- Neues Haus
- Immobilienfinanzierung
- Installation einer Photovoltaikanlage
- Asbest erkennen und entfernen
- Gartenpflege im Frühling – worauf achten
- Sauna im Fokus - Wellness zuhause
- Erfolgreich vermieten
- Die perfekte Winterbekleidung
- Das Niedrigenergiehaus
- Der April und seine Stürme
- Architektonische Vielfalt
- Ökologisch und nachhaltig bauen
- Das perfekte Schlafzimmer
- Nachhaltige Energieversorgung
- Zukunftsorientiert bauen
- Nachhaltigkeit beim Hausbau
- Tiny Houses
- Wärmepumpen als nachhaltige Heizvariante
- Maßgeschneiderten Kleiderschrank
- Der richtige Baukredit
- Ratgeber für erfolgreichen Hausbau
- Haus als Altersvorsorge
Do-it-yourself Anleitungen
- Verlegeanleitung für Bodenbeläge und Parkett
- Bodenbeläge und Parkett reinigen und pflegen
- Malerarbeiten am Haus
- Garten Tipps
- Umzug und Reinigung

ᐅ Umbauplanung Bestandsimmobilie - Tipps und Vorschläge erbeten

Erstellt am: 29.04.18 22:15
C
Chiloe
C
Chiloe
29.04.18 22:15
Hallo Hausbau-Experten,

wir (w. 32 J. + m. 35 J. aus dem Raum Bielefeld) wollen ab dem kommenden Jahr ein bisher als 2-Parteien-Mietshaus genutztes Objekt zum eigenen Gebrauch umbauen. Bei dem Objekt handelt es sich um ein 1971/1972 errichtetes 2-Familien-Haus in massiver Bauweise mit Kalksandsteinmauerwerk. Das Haus ist vollständig unterkellert, hat ein separates Garagengebäude (Doppelgarage) und befindet sich auf einem etwa 840 Quadratmeter großen Grundstück. Es befindet sich seit Mitte der 90er-Jahre in Familienbesitz und diente bislang als Mietobjekt.

Da wir uns nun ebenfalls mit dem Thema Hausbau auseinandergesetzt haben, sind wir zu dem Schluss gekommen, dass die Lage und die Größe des Hauses eigentlich gut zu unseren Ansprüchen passen. In den letzten Jahren wurden bereits überwiegend in Eigenleistung verschiedene Sanierungsmaßnahmen vorgenommen. Einige der "großen Brocken" (Fassade, Fenster, Dach...) stehen aber noch aus und hierfür käme in den kommenden Jahren ohnehin eine hohe finanzielle Belastung auf uns zu. Bei einem privaten Neubau hätten wir dann gleich eine doppelte Finanzierung zu schultern. Klar wäre es für die Zukunft schön, wenn man weiterhin ein Mietobjekt besitzt aber das Haus befindet sich in eher ländlicher Lage, was wir selbst schön finden, generell aber wohl eher als negativer Punkt einer auch zukünftig lukrativen Vermietung anzusehen ist.

Der bisherige Stand ist folgender (Sanierung bislang unter der Annahme einer weiteren Vermietung):
- der Keller wurde bereits ringsherum freigeschachtet, die Drainage erneuert und die Kellerwände für eine geplante Wärmedämmung und Verklinkerung verbreitert
- Kellerdecke ist gedämmt worden
- vglw. neue Gasbrennwerttherme und Wandheizkörper
- Erneuerung der Elektro- und Sanitärinstallation im Keller

Noch notwendig:
- komplette Dämmung des Daches, dies könnte bei weiterer Vermietung auch auf der Obergeschossdecke erfolgen, bei Eigennutzung hingegen nicht, da wir das Dach dann als Wohnraum (weitere Kinderzimmer) ausbauen wollen - in diesem Fall soll dann das Dach komplett runter und neu aufgebaut werden
- Fassadendämmung und Verklinkerung
- Austausch der Fenster
- bei Eigennutzung soll noch ein Anbau an die Südseite, welcher im Erdgeschoss als Esszimmer und im Obergeschoss als Balkon dienen soll - dass man den Balkon aufgrund des Gartens wahrscheinlich kaum nutzen wird, ist uns klar aber der Arbeitsaufwand und der Preis für die Maßnahme sind im Gesamtkontext ja wahrscheinlich zu vernachlässigen
- Veränderungen am Grundriss bei Eigennutzung

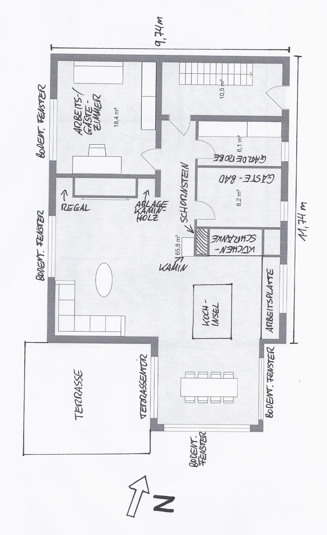
Ich habe einen Überblick über den aktuellen Zustand und die geplanten Veränderungen als Bilder in den Anhang angefügt. Ein Architekt war bislang nicht an der Planung beteiligt. Es wurde lediglich von einem Statiker geprüft, dass der offene Wohn- und Essbereich im Erdgeschoss auch ohne riesigen Querträger unter der Decke mittels "Bogenabstützung" (das Fachwort kenne ich leider nicht) in der Wand des Obergeschosses statisch realisierbar wäre - natürlich bei entsprechenden Kosten. Die Größe und Position von Fenstern und Türen wäre ebenfalls noch einigermaßen variabel.


Unsere beiden Hauptfragen, bei denen wir uns Tipps und Anregungen Eurerseits erhoffen:

1) Wie seht Ihr das Vorhaben unter Kosten-Nutzen-Abwägung? Wir haben grob überschlagen, dass ein vglb. Neubau mit Grundstück + die Sanierung der Bestandsimmobilie mind. doppelt so teuer wäre, nämlich 250.000 € vs. mind. 600.000 €. Was würdet ihr da machen a) für die Eigennutzung (teuer) sanieren b) für die Weitervermietung (günstig) sanieren und neu bauen c) die Bestandsimmobilie verkaufen und neu bauen?

2) Was sagt ihr zu unserer bisherigen Grundrissplanung? Wir hätten schon gerne eine offene Wohnküche, unsere Hauptsorge ist aber, dass der Raumeindruck bei so einem großen Raum durch die vglw. geringe Raumhöhe von im Rohbau lediglich etwa 2,65 m ziemlich "bedrückend" ausfiele. Zumal wir eigentlich im Hinblick auf einen möglicherweise zukünftig in Frage kommenden Wechsel der Heizungstechnologie, aufgrund der Größe der Wohnküche und zur Ermöglichung von bodentiefen Fenstern auf der Süd- und Westseite jetzt gleich eine Fußbodenheizung einbauen wollen, was dann aber die effektive Raumhöhe weiter einschränkt.

Wir sind prinzipiell für jegliche Vorschläge offen und hoffen auf eine lebhafte Diskussion. Falls wir wichtige Details oder Bilder vergessen haben, so lasst uns dies bitte wissen, wir werden dann zusehen, dass wir zeitnah Abhilfe schaffen.

Vielen Dank!

Vorderansicht eines modernen zweistöckigen Hauses mit großem Dach und großen Fenstern


Schematische Außenansicht eines Satteldach-Hauses mit Balkon und Terrasse


Handgezeichnete Grundstücks- und Hausgrundriss-Skizze mit Garage, Eingang und Straßenecke.


2D Grundrissplan zeigt Wohnzimmer und Schlafzimmer mit Türen und Flächen


2D Grundriss eines Hauses mit Wohnzimmer, Küche, Terrasse und Eingangsbereich


2D-Grundriss eines Hauses mit Wohnzimmer, Kueche, Schlafzimmer und Bad


2D-Haus-Grundriss mit Schlafzimmer, Kinderzimmer, Bad, Lesezimmer und Balkon
F
Flasher
30.04.18 17:30
Hallo ihr Beiden,

euer Vorhaben ist äußerst interessant für mich, da ich mich in einer sehr ähnlichen Situation befinde. Auch ist stehe vor der Herausforderung eines 1974'er Altbaus (ca. 380 m²), welches konsequent als Mehrgenerationen Geschäftshaus geplant wurde. Dies soll nun entweder als Eigenheim + Mietwohnung umgebaut werden. Alternativ spiele ich mit dem Gedanken eines Neubaus und den Altbau vollständig als Mietobjekt zu nutzen. Aber soviel zu meinen Themen...

Ich habe mir eure Grundrisse angesehen und möchte einige Punkte anmerken.
1. Ich finde die Lage eurer Terrasse im Norden unschön, da ihr mit viel Schatten zu rechnen habt.
2. Warum benötigt ihr ein Bad mit 18 m²? Ihr habt bereits im EG eine Gästetoilette. Ich würde sagen 12 m² sind schon ordentlich für das Hauptbad.
3. Ich finde die Leseecke im 1. OG relativ unnütz. Bedenkt, dass ihr ein großzügigen Wohnbereich habt, warum sich also im 1. OG zum Lesen setzen? Auch der Kamin befindet sich im EG. Ich kann aus eigener Erfahrung sprechen, dass ich mich zum Lesen im Winter lieber dem Kamin setze. Noch dazu verschwendet ihr ein wertvolles Fenster. Ich würde aus dem Lesebereich ein weiteres Kinder/Gästezimmer machen.
4. Falls man den Punkt 3. folgt müsste man den Eingang des Elternschlafzimmers vermutlich in den Ankleidebereich verlegen. Das ist unschön, deshalb würde ich überlegen, ob man die Kombi Ankleidebereich/Elternschlafzimmer geschickter schneiden kann.

Schöne Grüße
Flasher
C
Chiloe
30.04.18 21:51
Hallo Flasher,

vielen Dank für Deine Eindrücke.

ad 1) Da habe ich wohl einen Fehler in der Beschriftung gemacht bzw. diese etwas unverständlich umgesetzt. Norden ist in den Grundrisses jeweils in Pfeilrichtung, also "oben rechts". Die Terrasse läge somit in süd-südwestlicher Ausrichtung.

ad 2) Wirklich benötigen tun wir die 18 m² natürlich nicht aber bei der aktuellen Planung besteht kein zwingender Bedarf eines weiteren Zimmers im Obergeschoss. Kinder sind geplant aber wir bekämen neben dem Kinderzimmer im Obergeschoss bei Bedarf auch noch zwei weitere Kinderzimmer nebst kleinem Bad im Dachgeschoss unter.

ad 3) Ja, eigentlich ist die Leseecke tatsächlich etwas unnütz. Wir haben sie vor allem deshalb eingefügt, weil wir finden, dass dadurch der Flur ein wenig aufgelockert wird und weniger diesen "Schlauchcharakter" bekommt. Alternativ haben wir bereits überlegt, ob zur Verbesserung des Raumgefühls im Erdgeschoss ein Luftraum in diesem Bereich sinnvoll und umsetzbar wäre, wobei dann wahrscheinlich auch eine Anpassung des Essbereiches mit Einbeziehung in diesen Luftraum und Streichung des Balkons sinnvoll wäre. Leider endet spätestens bei so einer komplexen Thematik unsere eigene Planungsfähigkeit, das müssten wir dann ohnehin mit einem Architekten besprechen. Uns würden natürlich dennoch Eure Meinungen zu einem möglichen Luftraum in diesem Bereich interessieren. Die Nachteile eines solchen, insb. mit Lärm- und Geruchsbelastung im Obergeschoss, sind uns bewusst.

ad 4) Falls wir im Bereich der Leseecke ein weiteres Zimmer einplanen sollten, so wären wir dann aber dafür, den Flur bis zur Außenwand durchzuziehen und dort dann eine große Balkontür einzubauen - sonst hätte man gar kein Tageslicht im Flur und man müsste immer durch ein Zimmer hindurch, um auf den Balkon zu gelangen.
H
haydee
30.04.18 22:47
Galerie würde ich nicht bauen. Die überträgt die Geräusche/Lärm schön nach oben.

Flascher hat gute Anmerkungen gemacht

Flascher ich würde aus dem Altbau ein reines Mietobjekt machen und neu bauen. Eigenheim heißt doch auch niemanden Fremden im Haus auf dem man Rücksicht nehmen muss
Y
ypg
01.05.18 02:05
Wie das OG und DG genutzt wird, steht ja wohl nicht da?!

EG finde ich gelungen. Einzig der Durchbruch zw WZ und Küche, da fehlt mir ein Wandstück.
Optisch sowie auch praktisch: eine Wandscheibe stehen lassen, ggf ein Stück beim Sofa... nein streichen!, aber auch dazwischen täte es dem Raum gut, wenn da noch eine 1-Meter-Wandscheibe stehen würde...

-> Ecke des Hauses/Anbau sichtbar lassen, 1,50/2,00 Meter frei, dann eine Wandscheibe...

Höhe der Räume: kein Problem, schau mal in den letzten 5 Wochen im Forum, gleiches Thema
1
11ant
01.05.18 02:36
haydee schrieb:
Galerie würde ich nicht bauen. Die überträgt die Geräusche/Lärm schön nach oben.
Welche Galerie ?
https://www.instagram.com/11antgmxde/
https://www.linkedin.com/company/bauen-jetzt/
kinderzimmermietobjekteigennutzungobergeschossfensterdachvermietungerdgeschossbalkonleseecke