ᐅ Umbau Mehrgenerationenhaus - Ungutes Gefühl mit GU
Erstellt am: 29.01.22 22:31
C
cryptoflam29.01.22 22:31Hallo zusammen,
meine Frau und ich haben gemeinsam mit ihrer Mutter den Entschluss gefasst das existierende Einfamilienhaus zu einem Mehrgenerationenhaus umzubauen. Das Haus ist leider nicht groß genug um 2 Haushalte unterzubringen, zu dem ist das Dach noch nicht gedämmt. Neben einem Anbau gibt es also Sanierungsbedarf.
Ich fasse nachfolgend mal unsere Erfahrungen mit unserem GU zusammen, da wir aktuell leider sehr unschlüssig sind wie es weitergehen soll.
Kurzgesagt: Sind wir zu naiv, oder haben wir einfach falsche Vorstellungen?
______
Im Januar 2021 treten wir auf Empfehlung mit einem GU in Kontakt, dieser Besichtigt mit uns gemeinsam das Haus und wir besprechen mit ihm unsere Vorstellung. Anschließend erstellt er uns ein Angebot für die Planungsphase, welche wir mit seiner Frau als Architektin antreten.
Wir erfragen hier erstmals nach einem groben Kostenrahmen für das gesamte Unterfangen. Unser GU sagt drauf nur, dass er sich ohne Pläne schwer tun würde einen Preis zu nennen und verspricht aber dies noch vor dem Bauantrag nachzuholen.
Die Planung
Da der geplante Anbau genehmigungspflichtig ist, beschließen wir gemeinsam mit der Architektin eine Vorplanung zu erstellen und diese als Grundlage für eine Bauvoranfrage bei unserem Baurechtsamt zu nutzen.
Unser Baurechtsamt lehnt Bauvoranfragen inzwischen grundsätzlich ab und beantwortet nur noch konkrete Anfragen. Heißt also, planen und hoffen ... (2 Entwürfe für die Katz)
Die Planungsphase verläuft schleppend, da die Architektin leider immer wieder Absprachen vergisst und wir sie in den Terminen immer wieder an vorherige Punkte erinnern müssen. Hinzukommt dass in den ersten 2 Planungen der Abgang in den existierenden Keller gefehlt hat, was dann zu Problemen in der erarbeiteten Planung führte..
In der Zeit von Juni - Dezember erarbeiten wir mit ihr 4 Entwürfe.
Wir sind uns inzwischen bewusst, dass wir hier vermutlich auch zu viel an Details gefeilt haben.
Inzwischen, 1 Jahr später, haben wir einen Entwurf mit dem wir zu 90% zufrieden sind. Im Nachhinein wäre es vermutlich besser direkt mit der 70% Lösung einen Schritt weiterzugehen..
Nun standen wir vor dem großen Tag der Grobkostenschätzung. Wir saßen mit unserem GU zusammen und besprachen die gewünschten Qualitäten, etc.
Gestern kam dann die Email unseres GU's, dass sein Bruder (welcher die Baufirma leitet) ohne Statik und Schal/Bewehrungspläne keine Kostenkalkulation durchführen kann. (Kosten dafür 2.5k€).
Nun sind wir etwas geschockt und ratlos:
Wir haben inzwischen knapp 11.000€ für die Pläne der Architektin ausgegeben, ohne zu wissen ob das gesamte Sanierungsunterfangen für uns überhaupt stemmbar ist.
Die existierenden Pläne wurden weder durch einen Statiker geprüft, noch ist überhaupt klar ob der geplante Anbau in seiner Form überhaupt genehmigt wird.
Unser GU sträubt sich weiterhin dagegen uns einen Kostenrahmen zu nennen, und "schiebt" die Statik als Grund vor.
(Vermesser, Energieberater usw. fehlen natürlich auch noch.)
Wir haben aktuell die Sorge, dass uns das ganze etwas über den Kopf wächst und irgendwie ein ungutes Gefühl bei der Sache.
Würde mich über jeden Tipp freuen.
Meine Hauptfragen:
Ist das alles normal so? Sind wir einfach zu unerfahren?
Sollten wir uns mal nach einer anderen Meinung umhören/anderer GU, etc.?
Danke!
meine Frau und ich haben gemeinsam mit ihrer Mutter den Entschluss gefasst das existierende Einfamilienhaus zu einem Mehrgenerationenhaus umzubauen. Das Haus ist leider nicht groß genug um 2 Haushalte unterzubringen, zu dem ist das Dach noch nicht gedämmt. Neben einem Anbau gibt es also Sanierungsbedarf.
Ich fasse nachfolgend mal unsere Erfahrungen mit unserem GU zusammen, da wir aktuell leider sehr unschlüssig sind wie es weitergehen soll.
Kurzgesagt: Sind wir zu naiv, oder haben wir einfach falsche Vorstellungen?
______
Im Januar 2021 treten wir auf Empfehlung mit einem GU in Kontakt, dieser Besichtigt mit uns gemeinsam das Haus und wir besprechen mit ihm unsere Vorstellung. Anschließend erstellt er uns ein Angebot für die Planungsphase, welche wir mit seiner Frau als Architektin antreten.
Wir erfragen hier erstmals nach einem groben Kostenrahmen für das gesamte Unterfangen. Unser GU sagt drauf nur, dass er sich ohne Pläne schwer tun würde einen Preis zu nennen und verspricht aber dies noch vor dem Bauantrag nachzuholen.
Die Planung
Da der geplante Anbau genehmigungspflichtig ist, beschließen wir gemeinsam mit der Architektin eine Vorplanung zu erstellen und diese als Grundlage für eine Bauvoranfrage bei unserem Baurechtsamt zu nutzen.
Unser Baurechtsamt lehnt Bauvoranfragen inzwischen grundsätzlich ab und beantwortet nur noch konkrete Anfragen. Heißt also, planen und hoffen ... (2 Entwürfe für die Katz)
Die Planungsphase verläuft schleppend, da die Architektin leider immer wieder Absprachen vergisst und wir sie in den Terminen immer wieder an vorherige Punkte erinnern müssen. Hinzukommt dass in den ersten 2 Planungen der Abgang in den existierenden Keller gefehlt hat, was dann zu Problemen in der erarbeiteten Planung führte..
In der Zeit von Juni - Dezember erarbeiten wir mit ihr 4 Entwürfe.
Wir sind uns inzwischen bewusst, dass wir hier vermutlich auch zu viel an Details gefeilt haben.
Inzwischen, 1 Jahr später, haben wir einen Entwurf mit dem wir zu 90% zufrieden sind. Im Nachhinein wäre es vermutlich besser direkt mit der 70% Lösung einen Schritt weiterzugehen..
Nun standen wir vor dem großen Tag der Grobkostenschätzung. Wir saßen mit unserem GU zusammen und besprachen die gewünschten Qualitäten, etc.
Gestern kam dann die Email unseres GU's, dass sein Bruder (welcher die Baufirma leitet) ohne Statik und Schal/Bewehrungspläne keine Kostenkalkulation durchführen kann. (Kosten dafür 2.5k€).
Nun sind wir etwas geschockt und ratlos:
Wir haben inzwischen knapp 11.000€ für die Pläne der Architektin ausgegeben, ohne zu wissen ob das gesamte Sanierungsunterfangen für uns überhaupt stemmbar ist.
Die existierenden Pläne wurden weder durch einen Statiker geprüft, noch ist überhaupt klar ob der geplante Anbau in seiner Form überhaupt genehmigt wird.
Unser GU sträubt sich weiterhin dagegen uns einen Kostenrahmen zu nennen, und "schiebt" die Statik als Grund vor.
(Vermesser, Energieberater usw. fehlen natürlich auch noch.)
Wir haben aktuell die Sorge, dass uns das ganze etwas über den Kopf wächst und irgendwie ein ungutes Gefühl bei der Sache.
Würde mich über jeden Tipp freuen.
Meine Hauptfragen:
Ist das alles normal so? Sind wir einfach zu unerfahren?
Sollten wir uns mal nach einer anderen Meinung umhören/anderer GU, etc.?
Danke!
Na, erst´mal Glückwunsch zum Bilderbuchdesaster. Eine GU-Gattin als ziel- und planlose Zeichenknechtin haben wie hier auch nicht alle Tage. Elf Mille in vier Entwürfen zu versenken, "muß einem ersteinmal einer nachmachen" ;-)
Immerhin solltet Ihr bei all´ der Ver-, Drumherum- und Dranvorbeiplanerei genügend Material haben, um hier einmal zumindest den Bestandsplan zeigen zu können, damit man überhaupt qualifiziert sagen kann, was gehen würde. Stellt mal folgendes hier ein - bitte als Einzelbilder, nicht als Wandposter und auch ungern als PDF - alle Bestandsgrundrisse und einen Schnitt, sowie zumindest den jüngsten Entwurf des Umbaus.
https://www.instagram.com/11antgmxde/
https://www.linkedin.com/company/bauen-jetzt/
cryptoflam schrieb:Ja klar, die Columbo-Taktik liebt man dort gar nicht. Die ist unprofessionell und für alle Beteiligten über Gebühr ermüdend.
Unser Baurechtsamt lehnt Bauvoranfragen inzwischen grundsätzlich ab und beantwortet nur noch konkrete Anfragen. Heißt also, planen und hoffen ... (2 Entwürfe für die Katz)
Immerhin solltet Ihr bei all´ der Ver-, Drumherum- und Dranvorbeiplanerei genügend Material haben, um hier einmal zumindest den Bestandsplan zeigen zu können, damit man überhaupt qualifiziert sagen kann, was gehen würde. Stellt mal folgendes hier ein - bitte als Einzelbilder, nicht als Wandposter und auch ungern als PDF - alle Bestandsgrundrisse und einen Schnitt, sowie zumindest den jüngsten Entwurf des Umbaus.
https://www.instagram.com/11antgmxde/
https://www.linkedin.com/company/bauen-jetzt/
Ich glaube nicht, dass das normal ist.
Diese Leistungen die ihr beschreibt - wenn auch nicht so umfangreich - bis hin zur Bauanzeige haben wir von unserem GU teilweise noch vor Vertragsunterzeichnung bekommen, und auf jeden Fall bevor wir eine Abschlagszahlung geleistet haben. Ich meine mich zu erinnern, dass die erste Zahlung inklusive der Planungsleistungen erst nach gießen der Sohlplatte fällig war.
Ich weiß, dass das mit freien Architekten anders läuft, aber 11k ohne belastbare Leistung kommt mir schon SEHR viel vor. Eine halbwegs belastbare Zahl and Gesamt-Projektkosten haben wir SEHR früh in der Planung bekommen, lange bevor wir bei dem GU unterschrieben haben.
Diese Leistungen die ihr beschreibt - wenn auch nicht so umfangreich - bis hin zur Bauanzeige haben wir von unserem GU teilweise noch vor Vertragsunterzeichnung bekommen, und auf jeden Fall bevor wir eine Abschlagszahlung geleistet haben. Ich meine mich zu erinnern, dass die erste Zahlung inklusive der Planungsleistungen erst nach gießen der Sohlplatte fällig war.
Ich weiß, dass das mit freien Architekten anders läuft, aber 11k ohne belastbare Leistung kommt mir schon SEHR viel vor. Eine halbwegs belastbare Zahl and Gesamt-Projektkosten haben wir SEHR früh in der Planung bekommen, lange bevor wir bei dem GU unterschrieben haben.
11ant schrieb:
Eine GU-Gattin als ziel- und planlose Zeichenknechtin haben wie hier auch nicht alle Tage.In so einer Konstellation habe ich auch schon ein Haus gebaut - hat wirklich blendend funktioniert. Aber das waren noch andere Zeiten, scheint mir ...Zum Thema: Macht dem GU klar, dass ohne halbwegs verlässliche KostenSCHÄTZUNG (hier muss ja noch nicht auf den Cent genau kalkuliert werden) die Reise an dieser Stelle zu Ende ist, wobei ich mir das ohnehin überlegen würde, denn nichts ist schlimmer als Architekten, die schon am Anfang signifikante Details einfach vergessen. Wie soll das später werden?
H
HilfeHilfe30.01.22 10:15Viel zu lange auf ein Pferd gesetzt.
Hattet ihr nicht mal den Gedanken einen anderen GU zu kontaktieren ?
Hattet ihr nicht mal den Gedanken einen anderen GU zu kontaktieren ?
C
cryptoflam30.01.22 11:33Guten Morgen allerseits,
danke für eure zahlreichen Antworten!
Es beruhigt mich ja zumindest schonmal, dass wir mit unseren Gefühlen nicht allein sind. Auch wenn die Situation natürlich eher unschön ist.
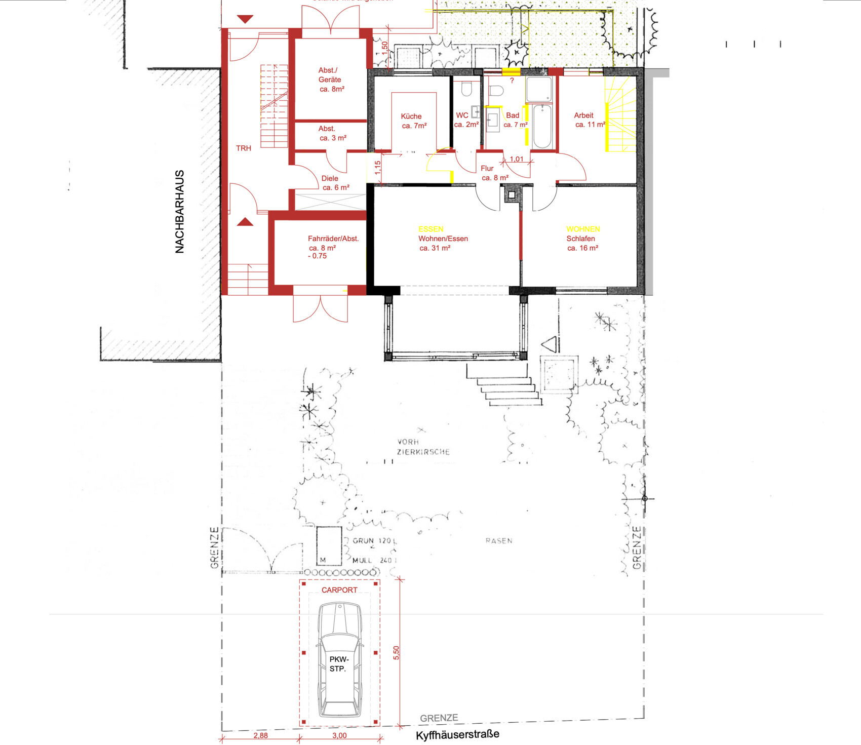
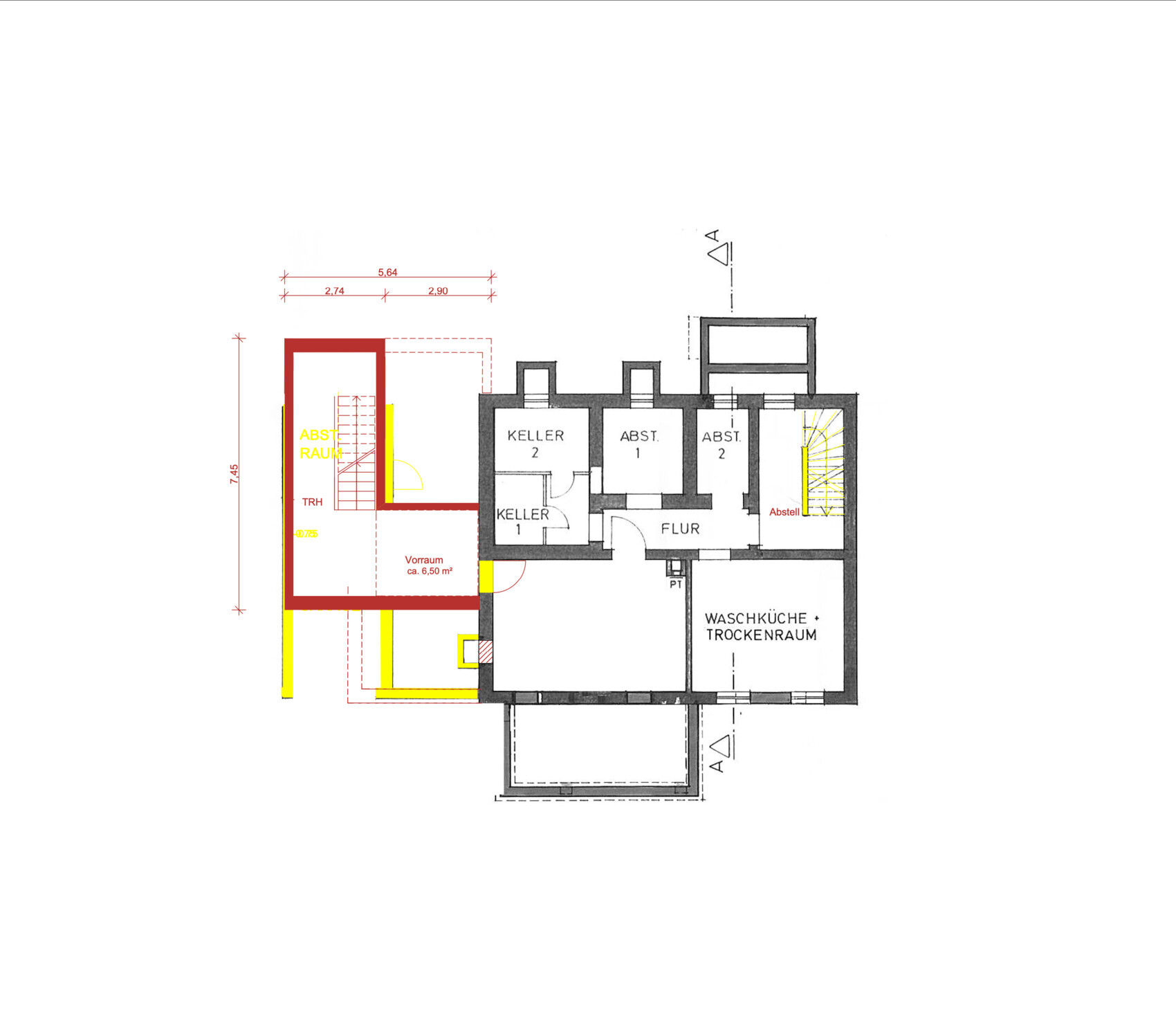
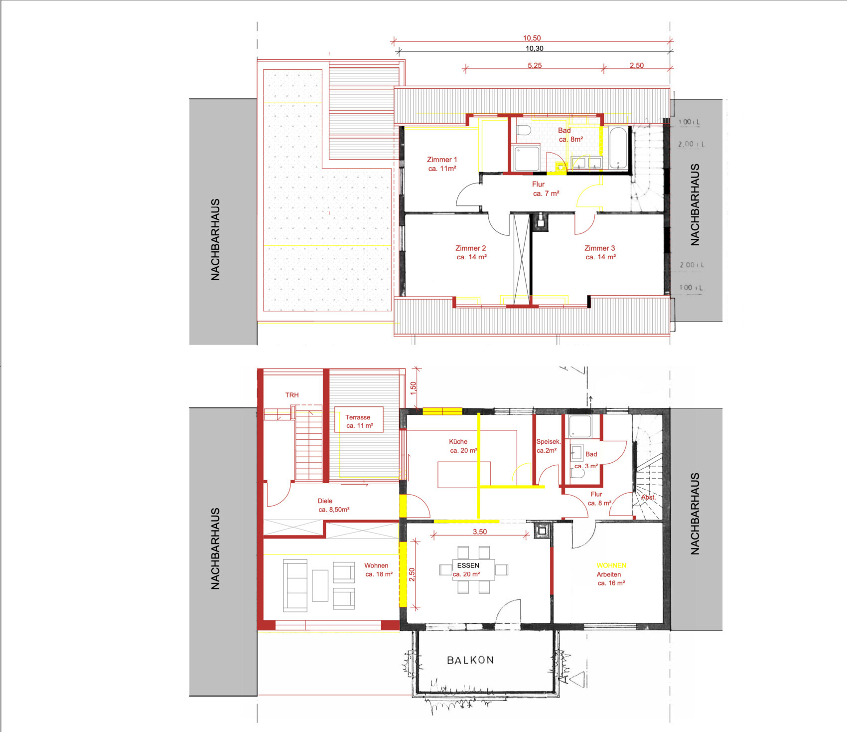
Soweit ich weiß, hat meine Schwiegermama keine aktuellen Bestandspläne. Das Beste was wir haben sind Pläne vom Baugesuch 1989, welches dann aber nicht umgesetzt wurde. Die hab ich mal angehangen, ich frag aber parallel nochmal nach.
Zum Planstand,
im 1.OG fehlen leider welche Wände für die Küche eingerissen (und somit abgefangen) werden müssen. Ich hab diese Mal händisch nachgetragen damit man es sich besser vorstellen kann.
(Ich muss die Pläne splitten, mehr als 10 Anhänge gehen leider nicht..)






danke für eure zahlreichen Antworten!
Es beruhigt mich ja zumindest schonmal, dass wir mit unseren Gefühlen nicht allein sind. Auch wenn die Situation natürlich eher unschön ist.
11ant schrieb:
Na, erst´mal Glückwunsch zum Bilderbuchdesaster. Eine GU-Gattin als ziel- und planlose Zeichenknechtin haben wie hier auch nicht alle Tage. Elf Mille in vier Entwürfen zu versenken, "muß einem ersteinmal einer nachmachen" ;-)
Ja klar, die Columbo-Taktik liebt man dort gar nicht. Die ist unprofessionell und für alle Beteiligten über Gebühr ermüdend.
Immerhin solltet Ihr bei all´ der Ver-, Drumherum- und Dranvorbeiplanerei genügend Material haben, um hier einmal zumindest den Bestandsplan zeigen zu können, damit man überhaupt qualifiziert sagen kann, was gehen würde. Stellt mal folgendes hier ein - bitte als Einzelbilder, nicht als Wandposter und auch ungern als PDF - alle Bestandsgrundrisse und einen Schnitt, sowie zumindest den jüngsten Entwurf des Umbaus.
Soweit ich weiß, hat meine Schwiegermama keine aktuellen Bestandspläne. Das Beste was wir haben sind Pläne vom Baugesuch 1989, welches dann aber nicht umgesetzt wurde. Die hab ich mal angehangen, ich frag aber parallel nochmal nach.
Zum Planstand,
im 1.OG fehlen leider welche Wände für die Küche eingerissen (und somit abgefangen) werden müssen. Ich hab diese Mal händisch nachgetragen damit man es sich besser vorstellen kann.
(Ich muss die Pläne splitten, mehr als 10 Anhänge gehen leider nicht..)
Ähnliche Themen