ᐅ Ungefähre Kosten für Gebäudeplanung durch einen Architekten
Erstellt am: 09.12.24 09:33
F
funsurfer78F
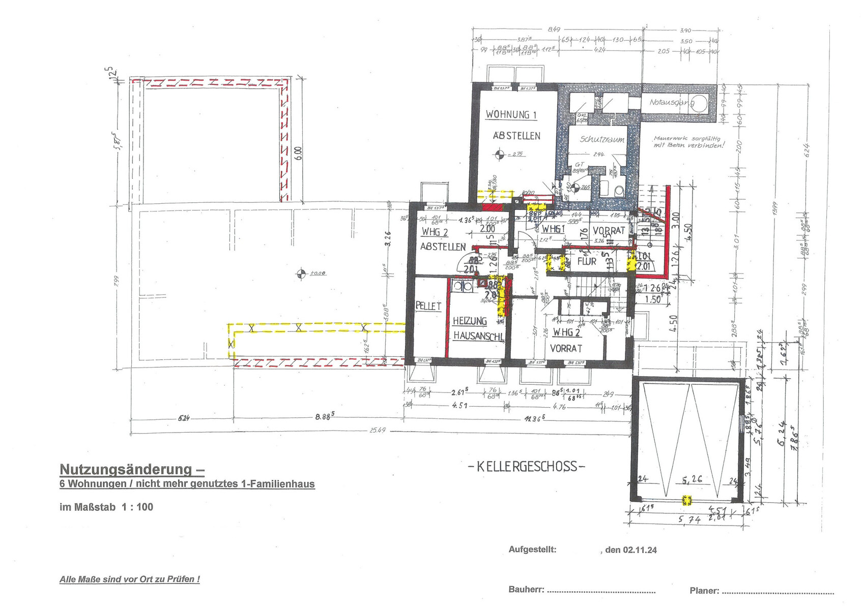
funsurfer7809.12.24 09:33Hallo liebes Forum, ein Architekt im Ruhestand hat mir einen Umbau und Erweiterung eines bestehenden Bungalows geplant. Seine Leistung möchte ich Ihm gerne vergüten. Könnt ihr mir sagen, was ich für die Pläne bei einem Architekten bezahlt hätte? Anbei die Pläne.
Oder welchen Zeitaufwand man für diese Pläne kalkulieren kann. Der Architekt meinte, er hätte da über 300 Stunden daran gesessen.








Oder welchen Zeitaufwand man für diese Pläne kalkulieren kann. Der Architekt meinte, er hätte da über 300 Stunden daran gesessen.
N
nordanney09.12.24 10:28funsurfer78 schrieb:
Hallo liebes Forum, ein Architekt im Ruhestand hat mir einen Umbau und Erweiterung eines bestehenden Bungalows geplant. Seine Leistung möchte ich Ihm gerne vergüten. Könnt ihr mir sagen, was ich für die Pläne bei einem Architekten bezahlt hätte?Kannst online den HOAI Rechner bemühen. Ist abhängig davon, wie die Kostenschätzung ausfällt. Und davon, wie weitgehend die Pläne sind. Das sind fertige Pläne für den Bauantrag?Man könnte aber auch pauschal einen Preis vereinbaren.
Unterstellt, dass der Architekt die Leistungsphase 1-4 erbringt - also alles bis zur Baugenehmigung fertig macht und die anrechenbaren Baukosten bei 1 Mio. liegen, dann kostet der Spaß etwa 46k. Man kann natürlich noch mit der Honorarzone spielen (alternative Berechnung für Honorarzone III = üblich für normale Einfamilienhäuser + Basishonorarsatz = 37k).
funsurfer78 schrieb:
Oder welchen Zeitaufwand man für diese Pläne kalkulieren kann. Der Architekt meinte, er hätte da über 300 Stunden daran gesessen.Der Zeitaufwand ist völlig egal. Du bezahlst für ein Werk, ein Ergebnis. Der Preis gem. HOAI ist gleich, ob es 3 Stunden oder 750 Stunden bis zum Ergebnis dauert (außer, man verhandelt vorher einen Festpreis).Was sollst Du denn dafür bezahlen?
F
funsurfer7809.12.24 10:34Vielen Dank für die Antwort. Die HOAI ist nicht mehr bindend und es können auch hiervon abweichende Honorare vereinbart werden.
Daher hatte ich hier danach gefragt, welcher Preis für so eine Planung in etwa üblich ist. Die Pläne hatte ich ja im Anhang beigefügt um zu zeigen wie weitgehend die Pläne sind.
Ich soll dafür gar nichts bezahlen, ich möchte dem man aber trotzdem eine Vergütung für die Arbeit geben und würde deshalb gerne wissen, was man für einen Marktpreis für derartige Pläne bezahlen müsste.
Daher hatte ich hier danach gefragt, welcher Preis für so eine Planung in etwa üblich ist. Die Pläne hatte ich ja im Anhang beigefügt um zu zeigen wie weitgehend die Pläne sind.
Ich soll dafür gar nichts bezahlen, ich möchte dem man aber trotzdem eine Vergütung für die Arbeit geben und würde deshalb gerne wissen, was man für einen Marktpreis für derartige Pläne bezahlen müsste.
N
nordanney09.12.24 10:37funsurfer78 schrieb:
Vielen Dank für die Antwort. Die HOAI ist nicht mehr bindend und es können auch hiervon abweichende Honorare vereinbart werden.Die HOAI ist bindend, wenn nicht frei verhandelt wird.funsurfer78 schrieb:
Daher hatte ich hier danach gefragt, welcher Preis für so eine Planung in etwa üblich ist.Üblich ist HOAI. Alles andere ist "unüblich".funsurfer78 schrieb:
Ich soll dafür gar nichts bezahlen, ich möchte dem man aber trotzdem eine Vergütung für die Arbeit geben und würde deshalb gerne wissen, was man für einen Marktpreis für derartige Pläne bezahlen müsste.Marktpreis: Ich würde bei der Größe des Objektes eher auf 50k tippen.M
MachsSelbst09.12.24 10:38Euch ist schon klar, dass das mit einer Wahrscheinlichkeit von 95% Schwarzarbeit und Steuerhinterziehung ist, was ihr da vor habt?
G
Gerddieter09.12.24 12:09Hi TE - frage am besten mal den Architekten- er weiß es am besten.
Hat er dir gesagt dass er keine Vergütung möchte? Sonst tatsächlich HOAI nehmen um dich zu orientieren oder wenn er schon die 300Std in den Raum wirft = 30-40tsd Euro ohne "Freundschaftspreis".
Hat er dir gesagt dass er keine Vergütung möchte? Sonst tatsächlich HOAI nehmen um dich zu orientieren oder wenn er schon die 300Std in den Raum wirft = 30-40tsd Euro ohne "Freundschaftspreis".
Ähnliche Themen