ᐅ Umbau bestehende EG Wohnung - zus. Büro
Erstellt am: 02.06.19 21:53
Hallo zusammen,
ich darf die Wohnung meiner Eltern übernehmen und wollte mich nun an den Umbau machen. Leider hab ich das Problem, dass für meine Bedürfnisse die Wohnung 1 Zimmer (in dem Fall ein kleines Büro) zu wenig hat.
Nun wollte ich mir hier mal Ideen einholen, ob es möglich ist, ggf. die u.a. Esszimmer/Wohnzimmer/Küche so umzugestalten / baulich zu verändern, dass noch ein kleines Büro rausspringt?
Kosten sind erst mal egal, wichtig ist, dass es eine sinnvolle Möglichkeit gibt:
Anforderungen der Bauherren
Anzahl der Personen, Alter: 2x Ende 30, Kind in Planung
Büro: Homeoffice?
offene oder geschlossene Architektur: eher offen
moderne Bauweise
offene Küche, Kochinsel: Ja gerne, wenn möglich
Anzahl Essplätze: 4-6
Kamin: Ja. Soll aber bitte ins Wohnzimmer. Derzeit in Esszimmer
Hausentwurf
Von wem stammt die Planung:
-Architekt: von 1985, keine Daten mehr
Was gefällt besonders? Warum? Großes Wohnzimmer, Hinterer Bereich gelungen (Schlafzimmer, Bad, KZ)
Was gefällt nicht? Warum? Riesen-Esszimmer als abgetrennter Bereich, wie eine große Diele; ein Zimmer zu wenig vorhanden
Warum ist der Entwurf so geworden, wie er jetzt ist? ZB
Hausbau 1985, Eltern so entschieden
Was ist die wichtigste/grundlegende Frage zum Grundriss in 130 Zeichen zusammengefasst?
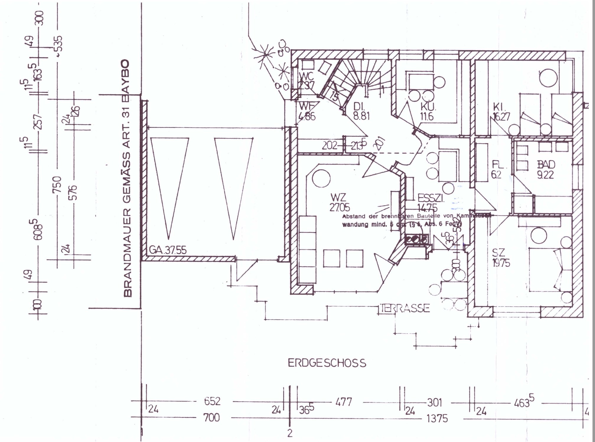
Wie kann ich aus dem bestehenden Grundriss noch ein weiteres Zimmer als Büro (ca. 10-12qm) rausschneiden?

ich darf die Wohnung meiner Eltern übernehmen und wollte mich nun an den Umbau machen. Leider hab ich das Problem, dass für meine Bedürfnisse die Wohnung 1 Zimmer (in dem Fall ein kleines Büro) zu wenig hat.
Nun wollte ich mir hier mal Ideen einholen, ob es möglich ist, ggf. die u.a. Esszimmer/Wohnzimmer/Küche so umzugestalten / baulich zu verändern, dass noch ein kleines Büro rausspringt?
Kosten sind erst mal egal, wichtig ist, dass es eine sinnvolle Möglichkeit gibt:
Anforderungen der Bauherren
Anzahl der Personen, Alter: 2x Ende 30, Kind in Planung
Büro: Homeoffice?
offene oder geschlossene Architektur: eher offen
moderne Bauweise
offene Küche, Kochinsel: Ja gerne, wenn möglich
Anzahl Essplätze: 4-6
Kamin: Ja. Soll aber bitte ins Wohnzimmer. Derzeit in Esszimmer
Hausentwurf
Von wem stammt die Planung:
-Architekt: von 1985, keine Daten mehr
Was gefällt besonders? Warum? Großes Wohnzimmer, Hinterer Bereich gelungen (Schlafzimmer, Bad, KZ)
Was gefällt nicht? Warum? Riesen-Esszimmer als abgetrennter Bereich, wie eine große Diele; ein Zimmer zu wenig vorhanden
Warum ist der Entwurf so geworden, wie er jetzt ist? ZB
Hausbau 1985, Eltern so entschieden
Was ist die wichtigste/grundlegende Frage zum Grundriss in 130 Zeichen zusammengefasst?
Wie kann ich aus dem bestehenden Grundriss noch ein weiteres Zimmer als Büro (ca. 10-12qm) rausschneiden?
N
nordanney02.06.19 22:24bruzzler schrieb:
Wie kann ich aus dem bestehenden Grundriss noch ein weiteres Zimmer als Büro (ca. 10-12qm) rausschneiden?bruzzler schrieb:
Kosten sind erst mal egal, wichtig ist, dass es eine sinnvolle Möglichkeit gibt:Dann plane den gesamten Grundriss mit einem Architekten und Statiker nach Deinen Bedürfnissen um. Ansonsten hast Du ein Problem, irgendwo 10qm "abzuschneiden".Reicht ein kleiner Schreibtisch im Flur oder Schlafzimmer nicht aus? Kenne Deine Bedürfnisse nicht, aber bei meinem Homeoffice (ca. 80% meiner Arbeitszeit) wäre ich damit zufrieden. Alternativ für einige Jahre ins Kinderzimmer ziehen.
bruzzler schrieb:
ich darf die Wohnung meiner Eltern übernehmenDas sieht doch aus wie ein Haus?!?
Gibt es da ein Dach, welches man ausbauen könnte? Wohin führt die Treppe?
Wenn Ihr Küche, Ess und WZ öffnet, könnte eine kleine Arbeitsnische entstehen.
nordanney schrieb:
Dann plane den gesamten Grundriss mit einem Architekten und Statiker nach Deinen Bedürfnissen um. Ansonsten hast Du ein Problem, irgendwo 10qm "abzuschneiden".
Reicht ein kleiner Schreibtisch im Flur oder Schlafzimmer nicht aus? Kenne Deine Bedürfnisse nicht, aber bei meinem Homeoffice (ca. 80% meiner Arbeitszeit) wäre ich damit zufrieden. Alternativ für einige Jahre ins Kinderzimmer ziehen.Danke für deine Antwort. Das Büro sollte auf jeden Fall ein eigenes Zimmer sein, allein schon aus steuerlichen Gründen und (da ich programmiere) ich auch Ruhe brauche.
Einen Architekten hatte ich gefragt, er würde die Tür zum derzeitigen Flur nach links versetzen, so dass neben der Küche ein schmaler Flur zum Flur nach hinten entsteht und das derzeitige Esszimmer das neue "Büro" wird.
Ganz zufrieden bin ich damit aber nicht
ypg schrieb:
Das sieht doch aus wie ein Haus?!?
Gibt es da ein Dach, welches man ausbauen könnte? Wohin führt die Treppe?
Wenn Ihr Küche, Ess und WZ öffnet, könnte eine kleine Arbeitsnische entstehen.Ja das ist ein Haus, die Eltern ziehen aber schon in die obere Wohnung. Deshalb bleibt mir nur unten.Wie meinst du "öffnet"? Wenn ich dich richtig verstehe, wäre das aber eine Arbeitsnische ohne Fenster, oder? Ich brauche in jedem Fall ein eigenes Zimmer als Büro
N
nordanney03.06.19 06:15bruzzler schrieb:
Einen Architekten hatte ich gefragt, er würde die Tür zum derzeitigen Flur nach links versetzen, so dass neben der Küche ein schmaler Flur zum Flur nach hinten entsteht und das derzeitige Esszimmer das neue "Büro" wird.
Ganz zufrieden bin ich damit aber nichtWenn Du Dir den Grundriss anschaust und Deine Bedingung, dass Du ein ganzes Zimmer brauchst, hast Du keine Alternative. Du kannst bei dem Grundriss kein zusätzliches Zimmer bekommen, nur die vorhandenen Zimmer anders nutzen. Quasi Essen oder Arbeiten, Kind oder Arbeiten, Schlafen oder Arbeiten.Geringstes Übel: Im Schlafzimmer arbeiten.
Ähnliche Themen