Überdachung Hauseingang wie Ausführen

4,80 Stern(e) 5 Votes
Zuletzt aktualisiert 21.11.2025
Sie befinden sich auf der Seite 3 der Diskussion zum Thema: Überdachung Hauseingang wie Ausführen
>> Zum 1. Beitrag <<

hanghaus2000

hanghaus2000

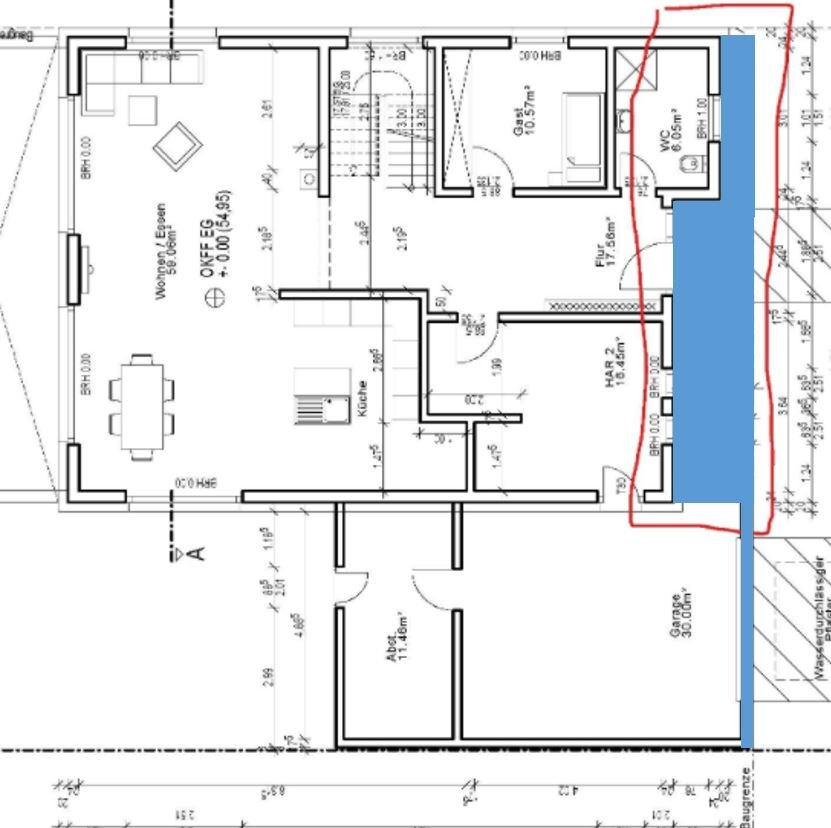
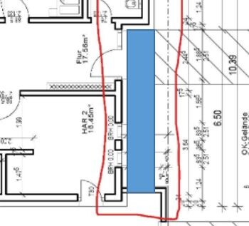
Wenn dann so. Die vordere Wand der Garage erhoehen.

Grundriss eines Hauses mit Wohnzimmer, Küche, Flur; blauer Balken rechts, roter Rand markiert.




Modernes zweigeschossiges Haus mit Holzverkleidung im Vorderhaus und Garage links.


Alternativ Garage und Vordach in einer anderen Farbe
 
hanghaus2000

hanghaus2000

Die Hoehe der Garage bleibt doch 3 m. Nur die Wand vorn wird etwas hoeher. Falls Du da Bedenken hast frag das Bauamt ob das geht.

Wenn ich den Entwurf sehe, dann ist doch mein erster Vorschlag gar nicht so schlecht. Diesen auf die 1,5 m verbreitern und dann ist es perfekt.

Besser wuerde es sein, wenn die Garage etwas weiter hinten platziert ist und dann ein durchgehendes Dach auch vor der Garage geplant wird.
 
Zuletzt aktualisiert 21.11.2025
Im Forum Dach gibt es 805 Themen mit insgesamt 6705 Beiträgen


Ähnliche Themen zu Überdachung Hauseingang wie Ausführen
Nr.ErgebnisBeiträge
1Vordach einer Fertiggarage verlängern 11
2Garage direkt an Einfamilienhaus. Fundament ausreichend? 20
3Hausfinanzierung - Haus, Garage und Bodenplatte ca. 290.000 EUR 11
4Technikraum in Garage einbauen? Ist dies möglich? 35
5Beheizung Garage. Was ist die beste / günstigste Lösung? 10
6Wo stellen wir Haus und Garage hin? 10
7Kostenschätzung Einfamilienhaus mit Garage 11
8Bungalow mit 140qm und Garage im Grundriss 13
9Erstes Angebot, 157m2 mit Keller, KFW 70, Garage 14
10Grundrissentwurf eines Passivhauses 170m² mit Garage - Seite 218
11Garage: Gestaltungsmöglichkeit des Daches, Erscheinungsbild 14
12Hausausrichtung / Hauseingang und Garage - Seite 214
13Begehbare Garage (Terrasse) 11
14Planung optimale Anordnung Haus, Garage und Einfahrt 13
15Grundriss mit Garage auf Grundstück realisierbar? 29
16Entwurf Einfamilienhaus mit Garage/Carport - bitte um Bewertung 22
17Wo günstige Garage beziehen? - Seite 211
18Regenspeicher in der Garage? 11
19Einfamilienhaus mit Einliegerwohnung & Garage 14
20Garage - Bauantrag - Verwirrung - Seite 636

Oben