Terrasssenbau mit unterschiedlichen Höhen

4,80 Stern(e) 4 Votes
Zuletzt aktualisiert 19.12.2025
Sie befinden sich auf der Seite 2 der Diskussion zum Thema: Terrasssenbau mit unterschiedlichen Höhen
>> Zum 1. Beitrag <<

K

knock88

Guest
V
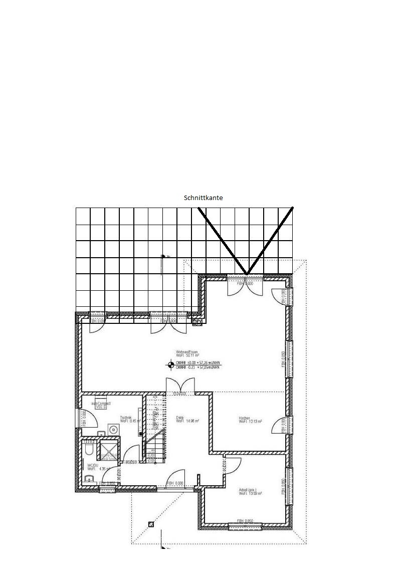
oder eine gedachte Linie von Achse Doppelfenster links zu Achse Doppelfenster rechts. Von dieser Achse das Gefaelle nach links oben und Steigung nach rechts unten.
Vielleicht kannst du das auch in die Grafik einfügen? Ich würde so interpretieren
Grundriss eines Hauses im Erdgeschoss: Wohnbereiche, Küche, Bad, Treppe, Türen.
 
Zuletzt bearbeitet von einem Moderator:
I

icandoit

Vergiss die erste Variante kein Mensch will die Schnittkante mitten auf der Terrasse.

Die Zweite Variante ist eher das was besser ausschaut. Nachteil, die schmale Tür haette eine kleine Stufe.

Wie willst Du denn die Terrasse ueberdachen?


Oder eine Holzterrasse ohne Gefälle. Finde ich eh schöner ;)
Das will doch der TE nicht.
 
Zuletzt bearbeitet:
Zuletzt aktualisiert 19.12.2025
Im Forum Gartenbau / Gartengestaltung gibt es 1483 Themen mit insgesamt 20807 Beiträgen


Ähnliche Themen zu Terrasssenbau mit unterschiedlichen Höhen
Nr.ErgebnisBeiträge
1Terrasse mit Plenera Dielen 32
2Grundriss Einfamilienhaus mit Doppelgarage und Terrasse 19
3Begehbare Garage (Terrasse) - Seite 211
4Terrasse mit Platten über Eck (L-Form). Realisierung Gefälle 12
5Terrasse erstellen lassen 11
6Terrasse auf Flachdach - Aufbau - Belag 12
7Fundament/Untergrund WPC Terrasse 36
8Terrasse und Auffahrt 55
9Terrasse auf Garage wird nur zum teil genehmigt 11
10Terrasse vom Nachbar grenzt an Garage 11
11Wohin mit Terrasse/Wohnräumen wenn Straße auf Westseite liegt? 45
12Winkelbungalow, Terrasse ganz oder halb überdachen? 57
13Terrasse anlegen - Probleme mit dem Gefälle 18
14Holz-Terrasse - Welche Holzart wählen, oder WPC Dielen? - Seite 431
15Lichtverlust durch überdachte Terrasse zu gross? 16
16Ausrichtung und Form von Einfamilienhaus - Ecke für Terrasse abschneiden? 14
17Schuhe an der Terrasse; wohin damit? Wäre ein Schrank die Lösung? 28
18Terrasse an Hanglage auf Stelzen - Holz oder Stahl besser? 38
19Neu verlegte Terrasse mit Betonsteinplatten -> ist das normal? - Seite 211
20Terrasse ebenerdig raus? Oder mit Stufe? 12

Oben