Die Außenansichten hauen mich jetzt auch nicht wirklich vom Hocker - aber lieber ein notwendiges Fenster, das die Fassade nicht zwingend schöner macht als dunkle Ecken im Haus. Die Fenster aber ggf. trotzdem noch mal überdenken.
Ein paar Tipps hat euch Mycraft ja schon gegeben.
Ein paar Tipps hat euch Mycraft ja schon gegeben.
Kannst du uns noch einen Lageplan vom Grundstück zeigen?
Hat es einen Grund, dass die Westseite mit der Garage verbaut wird? Wenn man die Freiheit hat ist es üblicher die Garage in den Osten zu legen um in den Wohnräumen im Sommer von Abendsonne profitieren zu können.
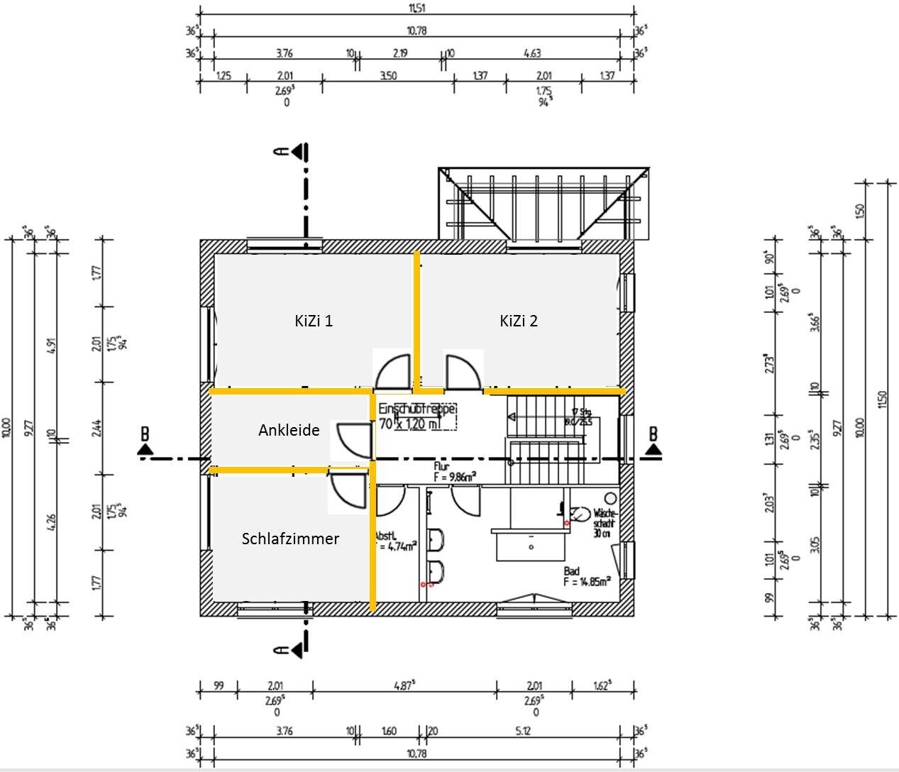
Zum OG wurde schon alles gesagt, ich hab die Ideen der Mitforisten dir mal kurz in eine Skizze verwandelt...
Das Bad scheint mir auch noch sehr un-durchdacht mit Platzverschwendung an manchen Stellen (Waschbecken) und Enge an anderen (Toilette) ...

Hat es einen Grund, dass die Westseite mit der Garage verbaut wird? Wenn man die Freiheit hat ist es üblicher die Garage in den Osten zu legen um in den Wohnräumen im Sommer von Abendsonne profitieren zu können.
Zum OG wurde schon alles gesagt, ich hab die Ideen der Mitforisten dir mal kurz in eine Skizze verwandelt...
Das Bad scheint mir auch noch sehr un-durchdacht mit Platzverschwendung an manchen Stellen (Waschbecken) und Enge an anderen (Toilette) ...
Opalaus Variante für das OG ist genau das, was mir auch vorgeschwebt ist
ggf. Abstell zugunsten von Schlafzimmer etwas verkleinern - ich bin mir nicht sicher ob man so in das Schlafzimmer ein ausreichend großes Doppelbett stellen kann.
Da würde ich aber dann unbedingt die Fensterverteilung nochmals überdenken - Fenster in Ankleide und Abstell sowie gleichwertige Fenster an den Seiten der Kinderzimmern.
ggf. Abstell zugunsten von Schlafzimmer etwas verkleinern - ich bin mir nicht sicher ob man so in das Schlafzimmer ein ausreichend großes Doppelbett stellen kann.
Da würde ich aber dann unbedingt die Fensterverteilung nochmals überdenken - Fenster in Ankleide und Abstell sowie gleichwertige Fenster an den Seiten der Kinderzimmern.
Küche mit Wohnzimmer tauschen. Für was dieser große und ungenutzte Bereich? Größe ist nicht alles
Dafür fehlt im Essbereich der Platz
Das OG von @opalau ist besser. Die Kinderzimmer zum Garten und vermutlich Süden, ein Abstellraum (der sowieso fehlt)
Unbedingt euere Möbel im Maßstab einzeichnen
Dafür fehlt im Essbereich der Platz
Das OG von @opalau ist besser. Die Kinderzimmer zum Garten und vermutlich Süden, ein Abstellraum (der sowieso fehlt)
Unbedingt euere Möbel im Maßstab einzeichnen
Ähnliche Themen