W
Weitling0906.11.15 11:44Wir sind gerade im Rohbau und planen derzeit die Elektroinstallation. Bisher haben wir beim Musikgenuss einfachste Technik verwendet (AIWA Microanlage, TV-Ton direkt aus TV), möchten aber im Haus "ordentliche" Technik einplanen.
Was ich mir vorstelle:
> Im Wohnzimmer hätte ich gerne eine Surroundanlage, über die ich Musik und TV-Ton hören kann.
> Parallel möchte ich über diese Anlage auch Ton in den Essbereich übertragen, dort reicht Stereo (nur für Hintergrundmusik).
> Im besten Falle möchte ich für Gartenfeiern Lautsprecher auf die Terrasse stellen können, welche ich ebenfalls an die Anlage anschließen möchte.
Meine Fragen:
1. Ich habe bereits gesehen, dass es 2-Raum-Steuerungen gibt - ist das hier passend? Oder gibt es andere, bessere Möglichkeiten?
2. Auf was soll ich beim Kauf eines Receivers / Lautsprecher achten?
3. Welche Stecker soll ich einplanen (Receiver -> Wand [Stecker] -> [Lautsprecherkabel] -> Wand [Stecker] -> Lautsprecher) ?
4. Spricht etwas gegen die Idee, im Ess-Bereich/Stereo ebenfalls die Lautsprecher per Wand-Stecker anzuschließen und bei Gartenfeiern über diese Wandstecker die Lautsprecher im Garten anzuschließen?
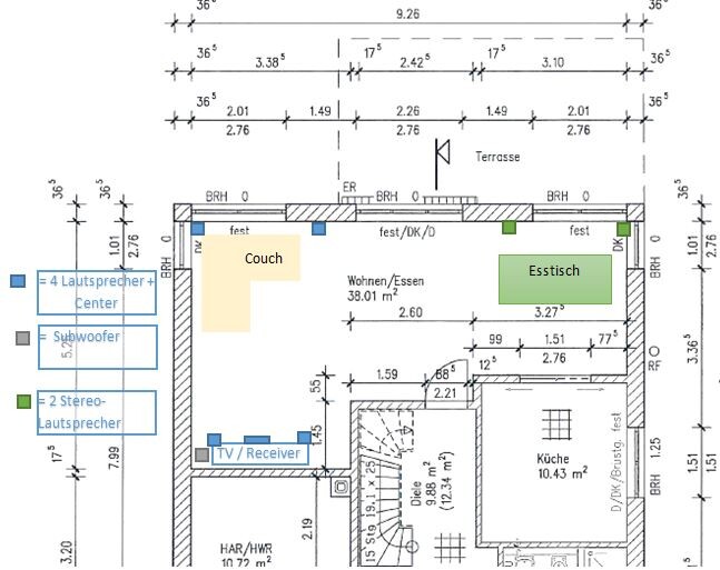
5. Im Anhang ist ein Entwurf der Planung auf dem Grundriss - was kann man besser machen? Hier sind Hinweise und Tipps gerne willkommen!

Was ich mir vorstelle:
> Im Wohnzimmer hätte ich gerne eine Surroundanlage, über die ich Musik und TV-Ton hören kann.
> Parallel möchte ich über diese Anlage auch Ton in den Essbereich übertragen, dort reicht Stereo (nur für Hintergrundmusik).
> Im besten Falle möchte ich für Gartenfeiern Lautsprecher auf die Terrasse stellen können, welche ich ebenfalls an die Anlage anschließen möchte.
Meine Fragen:
1. Ich habe bereits gesehen, dass es 2-Raum-Steuerungen gibt - ist das hier passend? Oder gibt es andere, bessere Möglichkeiten?
2. Auf was soll ich beim Kauf eines Receivers / Lautsprecher achten?
3. Welche Stecker soll ich einplanen (Receiver -> Wand [Stecker] -> [Lautsprecherkabel] -> Wand [Stecker] -> Lautsprecher) ?
4. Spricht etwas gegen die Idee, im Ess-Bereich/Stereo ebenfalls die Lautsprecher per Wand-Stecker anzuschließen und bei Gartenfeiern über diese Wandstecker die Lautsprecher im Garten anzuschließen?
5. Im Anhang ist ein Entwurf der Planung auf dem Grundriss - was kann man besser machen? Hier sind Hinweise und Tipps gerne willkommen!
S
Sebastian7906.11.15 12:21Ja, das funktioniert aufgrund des Widerstands nicht - Du zerstörst damit am Ende die Anlage.
Es gibt Umschalter, die Du hinter die Anlage klemmen kannst. Ein Freund von mir hat eine Schaltung gebaut, die es mir ermöglichst, per Knopfdruck in dem jeweiligen Raum die Musik einzuleiten (auch parallel). Dies wird auch aus einer 2. Zone geschöpft, d.h. im Wohnzimmer kann jemand trotzdem TV schauen, während man unter der Dusche Musik vom NAS oder Internetradio genießt.
Zusätzlich habe ich noch eine separate HD-Zone, die in der Garage für Musik oder HD-TV sorgt.
Rearspeaker bei Surroundsystemen sitzen normal nicht hinter dem Zuschauer, sondern parallel zu ihm auf Kopfhöhe - ist leider oft nicht in den Grundrissen machbar und auch wir haben das nicht hinbekommen - ich war schon arg zerknirscht .
Habe es nun auch so wie Du, dass hinter dem Sofa die Lautsprecher etwas erhöht sitzen und zusätzlich noch ein Ausgang für eine zweiten Sub dort vorhanden ist.
Es gibt bei Amazon von Lyndahl die LKL005, die habe ich (als 7.2er Version) bei uns verbaut - damit kann man die Lautsprecher schön anschließen.
Aber noch mal: nicht einfach Lautsprecher parallel anklemmen!!!
Unsere Anlage ist per App bedienbar, somit können wir von den Räumen und auch auf der Terrasse Kanäle und Lautstärke bedienen.
Es gibt Umschalter, die Du hinter die Anlage klemmen kannst. Ein Freund von mir hat eine Schaltung gebaut, die es mir ermöglichst, per Knopfdruck in dem jeweiligen Raum die Musik einzuleiten (auch parallel). Dies wird auch aus einer 2. Zone geschöpft, d.h. im Wohnzimmer kann jemand trotzdem TV schauen, während man unter der Dusche Musik vom NAS oder Internetradio genießt.
Zusätzlich habe ich noch eine separate HD-Zone, die in der Garage für Musik oder HD-TV sorgt.
Rearspeaker bei Surroundsystemen sitzen normal nicht hinter dem Zuschauer, sondern parallel zu ihm auf Kopfhöhe - ist leider oft nicht in den Grundrissen machbar und auch wir haben das nicht hinbekommen - ich war schon arg zerknirscht .
Habe es nun auch so wie Du, dass hinter dem Sofa die Lautsprecher etwas erhöht sitzen und zusätzlich noch ein Ausgang für eine zweiten Sub dort vorhanden ist.
Es gibt bei Amazon von Lyndahl die LKL005, die habe ich (als 7.2er Version) bei uns verbaut - damit kann man die Lautsprecher schön anschließen.
Aber noch mal: nicht einfach Lautsprecher parallel anklemmen!!!
Unsere Anlage ist per App bedienbar, somit können wir von den Räumen und auch auf der Terrasse Kanäle und Lautstärke bedienen.
Bei meiner Sourroundanlage kann man Lautsprecher parallel anschließen, man muss es dann aber richtig einstellen, sonst ist tatsächlich der Widerstand falsch. alternativ gibt es auch Boxen mit höherem Widerstand die darauf ausgelegt sind. Am besten wäre aber eine Anlage, die es von sich aus unterstützt, mehrere Räume zu beschallen. Ansonsten gibt es auch Funklösungen, an denen man mehrere Boxen betreiben kann.
W
Weitling0906.11.15 12:43Hallo Sebastian, danke für deine schnelle Antwort und die vielen Hinweise.
Was meinst du mit "Lautsprecher parallel klemmen"? ich hatte nicht vor, 2 Lautsprecher in einen Ausgang am Receiver zu klemmen sondern es über einen 2-Zonen-Receiver zu realisieren (z.B. Onkyo TX-NR525 - dort erkenne ich auf der Rückseite Ausgänge für Surround + 2 separate Ausgänge "Zone 2").
Was meinst du mit "Lautsprecher parallel klemmen"? ich hatte nicht vor, 2 Lautsprecher in einen Ausgang am Receiver zu klemmen sondern es über einen 2-Zonen-Receiver zu realisieren (z.B. Onkyo TX-NR525 - dort erkenne ich auf der Rückseite Ausgänge für Surround + 2 separate Ausgänge "Zone 2").
W
Weitling0906.11.15 12:51Hallo Saruss,
ich glaube ich habe mich unkorrekt ausgedrückt - mit "Parallel möchte ich über diese Anlage auch Ton in den Essbereich übertragen" meinte ich, dass ich es gleichzeitig über diese Anlage machen möchte.
ich glaube ich habe mich unkorrekt ausgedrückt - mit "Parallel möchte ich über diese Anlage auch Ton in den Essbereich übertragen" meinte ich, dass ich es gleichzeitig über diese Anlage machen möchte.
N
nordanney06.11.15 12:53Deine Wohnzimmerplanung passt - Du kannst Sie ja eh nicht mehr ändern . Musst halt schauen/testen, auf welche Höhe die Surroundspeaker kommen sollen. Sieh zu, dass Du Deinen zukünftigen Receiver auch netzwerkfähig machst und entsprechende LAN-Verkabelung einplanst.
Ansonsten kannst Du mit mehreren Zonen arbeiten, wenn Du einen passenden Receiver kaufst.
ICH persönlich würde dies allerdings nicht machen, sondern eher die Lösungen von Teufel/Sonos/Bose bevorzugen. Einfach z.B. eine Play5 kaufen und bei Bedarf in den Essbereich stellen (reicht eigentlich die Beschallung von der Hauptanlage dort nicht aus?) oder mit in den Garten nehmen oder oder oder (man kann auch mehrere Exemplare gleichzeitig betreiben). Dann hast Du Internetradio oder kannst vom Rechner aus streamen.
Empfehlungen für Receiver und Lautsprecher kann ich Dir nur schwer geben. Das ist abhängig von a) Deinem Geldbeutel b) Deinen Hörgewohnheiten c) der durchsetzbaren Optik im Haushalt und natürlich d) Deinem persönlichem Klangempfinden.
Du musst für den Ton allerdings nicht auf die aktuellsten Modelle schielen, klanglich kann auch ein altes Gerät hervorragend sein (ich habe hier noch einen alten Marantz PM16 stehen, der zwar 20 Jahre alt ist, aber sich noch immer hervorragend anhört) - gilt für Boxen und Verstärker. Ältere Geräte können allerdings bei Anschlussmöglichkeiten hInterhyprhinken (4K, Sound wie z.B. Dolby True HD o.ä., Uscaling, Anzahl HDMI-Anschlüsse usw.).
Wir sind dann bei Marantz geblieben und haben für den Surround-Bereich eine AV7005 + MM8003 Vorstufen-/Endstufenkombi mit Canton Boxen stehen. War nicht ganz günstig, ist aber ein guter Kompromiss für Stereo und Surround. Damit könntest Du z.B. drei verschiedene Zonen mit Musik versorgen - so wie von Dir geplant.
Ansonsten gilt im Bereich Hi-Fi : Probehören! Ggf. einfach Geräte vom Händler ausleihen und testen, da der Raum auch unheimlich zum klang beiträgt. Teufel und Nubert kann man sich auch schicken lassen und testen...
Ansonsten kannst Du mit mehreren Zonen arbeiten, wenn Du einen passenden Receiver kaufst.
ICH persönlich würde dies allerdings nicht machen, sondern eher die Lösungen von Teufel/Sonos/Bose bevorzugen. Einfach z.B. eine Play5 kaufen und bei Bedarf in den Essbereich stellen (reicht eigentlich die Beschallung von der Hauptanlage dort nicht aus?) oder mit in den Garten nehmen oder oder oder (man kann auch mehrere Exemplare gleichzeitig betreiben). Dann hast Du Internetradio oder kannst vom Rechner aus streamen.
Empfehlungen für Receiver und Lautsprecher kann ich Dir nur schwer geben. Das ist abhängig von a) Deinem Geldbeutel b) Deinen Hörgewohnheiten c) der durchsetzbaren Optik im Haushalt und natürlich d) Deinem persönlichem Klangempfinden.
Du musst für den Ton allerdings nicht auf die aktuellsten Modelle schielen, klanglich kann auch ein altes Gerät hervorragend sein (ich habe hier noch einen alten Marantz PM16 stehen, der zwar 20 Jahre alt ist, aber sich noch immer hervorragend anhört) - gilt für Boxen und Verstärker. Ältere Geräte können allerdings bei Anschlussmöglichkeiten hInterhyprhinken (4K, Sound wie z.B. Dolby True HD o.ä., Uscaling, Anzahl HDMI-Anschlüsse usw.).
Wir sind dann bei Marantz geblieben und haben für den Surround-Bereich eine AV7005 + MM8003 Vorstufen-/Endstufenkombi mit Canton Boxen stehen. War nicht ganz günstig, ist aber ein guter Kompromiss für Stereo und Surround. Damit könntest Du z.B. drei verschiedene Zonen mit Musik versorgen - so wie von Dir geplant.
Ansonsten gilt im Bereich Hi-Fi : Probehören! Ggf. einfach Geräte vom Händler ausleihen und testen, da der Raum auch unheimlich zum klang beiträgt. Teufel und Nubert kann man sich auch schicken lassen und testen...
Ähnliche Themen