ᐅ Optimierung Grundriss freistehendes Einfamilienhaus 155qm
Erstellt am: 01.01.25 23:01
J
JoschNeubau24J
JoschNeubau2401.01.25 23:01Hallo zusammen,
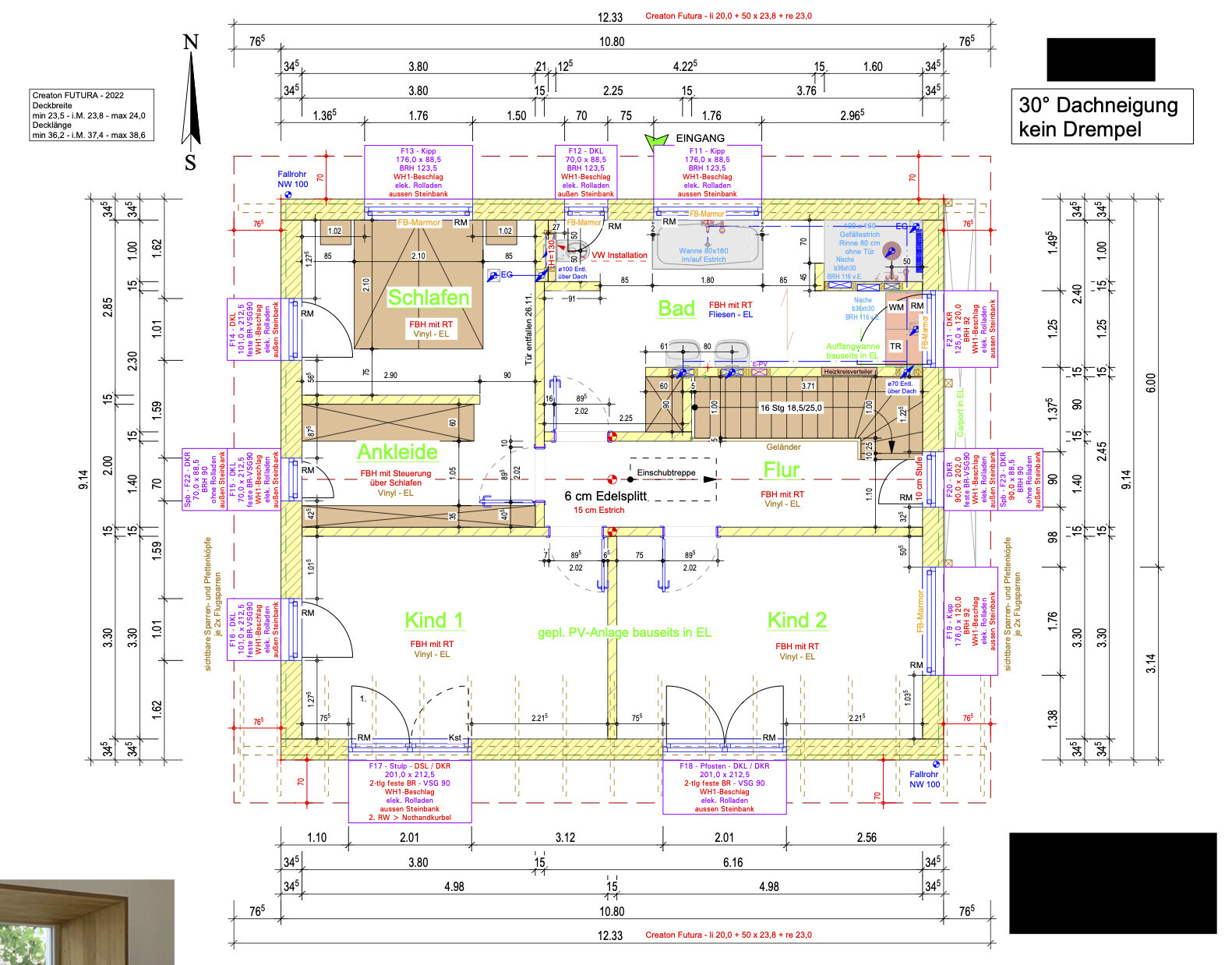
Ich möchte hier gerne meinen Grundriss mit euch teilen um diesen noch etwas zu optimieren. Wir sind schon relativ weit in der Planung und grundsätzlich auch zufrieden. Wir können aber noch kleinere Änderungen problemlos vornehmen.
Vielleicht ganz kurz zu uns: Familie mit zwei Kindern (2 und 4). Ich Arbeit Vollzeit ohne Home Office und meine Frau aktuell nicht, plant aber in 1-2 Jahren wieder Teilzeit im Home Office zu arbeiten.
im wesentlichen geht’s mir um die Planung der Fenster und die Gestaltung von Schlafzimmer und Bad.
Bei den Fenstern fragen wir uns, ob es nicht unnötig viele sind und wir damit die Kosten sehr in die Höhe getrieben haben.
Kinderzimmer:
Braucht man noch die Fenster nach Ost/West? Wahrscheinlich eine subjektive Frage, aber höre mir gerne Meinungen an.
Schlafzimmer:
Fenster nach Norden oder Westen überflüssig? Alternativ wäre auch denkbar die Zwischenwand zu schieben damit das Fenster der Ankleide auch das Schlafzimmer mit Licht versorgt.
Bad:
Hier frag ich mich ob die Anordnung an sich noch verbessert werden kann mit z.B. einer T-Lösung? Und hier haben wir das Dilemma mit dem Extra-Fenster bei der Toilette primär zum lüften. Das Fenster über der Badewanne ist zum lüften nicht ideal zu erreichen.
Gerne auch generelle Anmerkungen falls etwas auffällt was generell ungünstig erscheint.

Ich möchte hier gerne meinen Grundriss mit euch teilen um diesen noch etwas zu optimieren. Wir sind schon relativ weit in der Planung und grundsätzlich auch zufrieden. Wir können aber noch kleinere Änderungen problemlos vornehmen.
Vielleicht ganz kurz zu uns: Familie mit zwei Kindern (2 und 4). Ich Arbeit Vollzeit ohne Home Office und meine Frau aktuell nicht, plant aber in 1-2 Jahren wieder Teilzeit im Home Office zu arbeiten.
im wesentlichen geht’s mir um die Planung der Fenster und die Gestaltung von Schlafzimmer und Bad.
Bei den Fenstern fragen wir uns, ob es nicht unnötig viele sind und wir damit die Kosten sehr in die Höhe getrieben haben.
Kinderzimmer:
Braucht man noch die Fenster nach Ost/West? Wahrscheinlich eine subjektive Frage, aber höre mir gerne Meinungen an.
Schlafzimmer:
Fenster nach Norden oder Westen überflüssig? Alternativ wäre auch denkbar die Zwischenwand zu schieben damit das Fenster der Ankleide auch das Schlafzimmer mit Licht versorgt.
Bad:
Hier frag ich mich ob die Anordnung an sich noch verbessert werden kann mit z.B. einer T-Lösung? Und hier haben wir das Dilemma mit dem Extra-Fenster bei der Toilette primär zum lüften. Das Fenster über der Badewanne ist zum lüften nicht ideal zu erreichen.
Gerne auch generelle Anmerkungen falls etwas auffällt was generell ungünstig erscheint.
J
JoschNeubau2401.01.25 23:08R
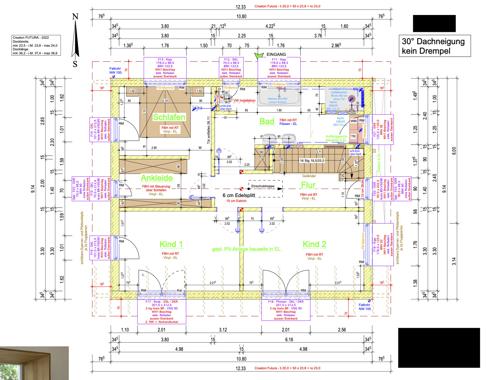
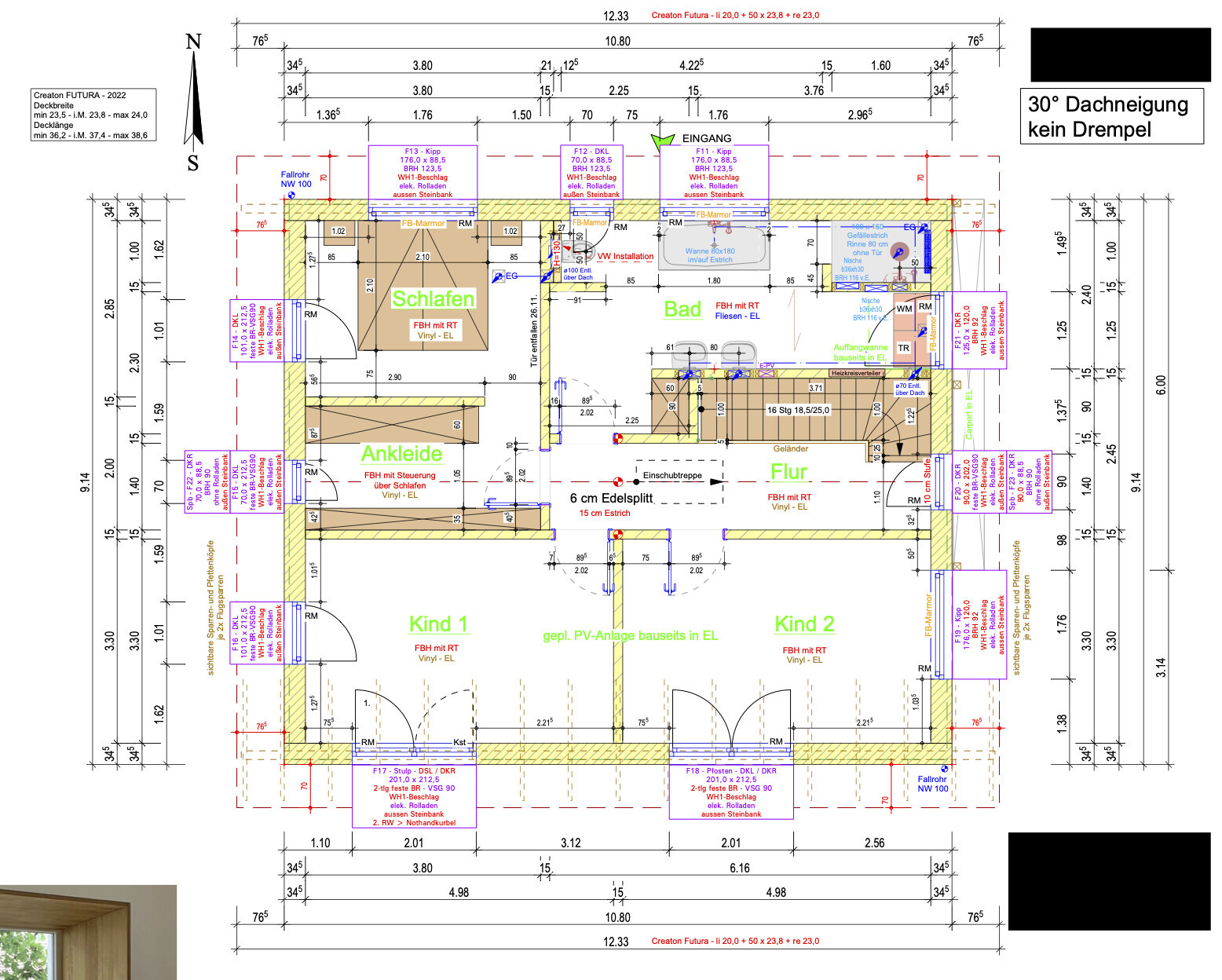
roteweste01.01.25 23:14Du hast zweimal das OG hochgeladen.
J
JoschNeubau2401.01.25 23:20Prinzipiell sind zu viele Fenster nicht unbedingt schlecht.
Im Og habt ihr aber Bodentiefe im Kinder Zimmer, ich finde es sehr sehr nervig bei uns. Im Sommer wegen der verschattung damit das Zimmer nicht überhitzt müssen wir sie immer komplett schließen. Möbel- schreibtisch stellen ist auch Bescheiden.
Die Treppe ist mit 16 Stufen auch Recht steil hier vielleicht ne halb gewedelte mal überlegen würde dem Badezimmer und dem EG gut tun.
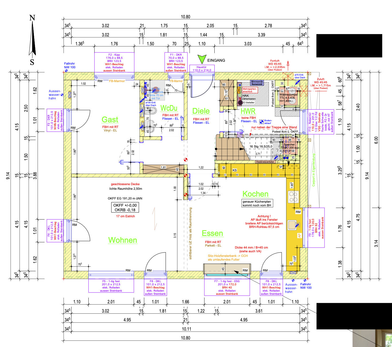
Im EG die Wand im Süden da ist definitiv zwei Fenster zu viel. Auch wenn das Sitzfenster cool ist klaut es Platz,stellt mal ein Esstisch hin der fehlt da gänzlich aber bitte den richtigen Abmessungen.
Im Hauswirtschaft Raum auch der ist schon so klein da stört das Fenster auch, vor allem wenn der Carport dort ist, gibt's nicht viel Licht. Ihr wollt es als Tür nutzen vermute ich? Bedenkt das ist der perfekte Ort zum einbrechen.
Im Og habt ihr aber Bodentiefe im Kinder Zimmer, ich finde es sehr sehr nervig bei uns. Im Sommer wegen der verschattung damit das Zimmer nicht überhitzt müssen wir sie immer komplett schließen. Möbel- schreibtisch stellen ist auch Bescheiden.
Die Treppe ist mit 16 Stufen auch Recht steil hier vielleicht ne halb gewedelte mal überlegen würde dem Badezimmer und dem EG gut tun.
Im EG die Wand im Süden da ist definitiv zwei Fenster zu viel. Auch wenn das Sitzfenster cool ist klaut es Platz,stellt mal ein Esstisch hin der fehlt da gänzlich aber bitte den richtigen Abmessungen.
Im Hauswirtschaft Raum auch der ist schon so klein da stört das Fenster auch, vor allem wenn der Carport dort ist, gibt's nicht viel Licht. Ihr wollt es als Tür nutzen vermute ich? Bedenkt das ist der perfekte Ort zum einbrechen.
Ähnliche Themen