ᐅ Obergeschoss -> Bad Ideenfindung
Erstellt am: 27.01.20 18:24
Bei dem Objekt handelt es sich um ein Einfamilienhaus aus dem Jahr um 1961.
Nun steht hier in den nächsten Jahren eine Kernsanierung an.
Schon über die letzten Jahre habe ich etliche Ideen entwickelt und wieder verworfen.
Aktuell habe ich für das OG eine schöne Lösung für das Schlafzimmer und die Anleihe gefunden.
Da ich mit meinem Partner keine Kinder geplant habe ist ein KZ eigentlich nicht notwendig.
Ein Büro/GZ ist im EG vorgesehen.
So hätte ich wohl nun genügend Platz um ein großzügiges Bad inkl. Badewanne (evtl. freistehend), offener Dusche und evtl. sogar Sauna (zwei Leute die liegen können sollten) planen zu können.
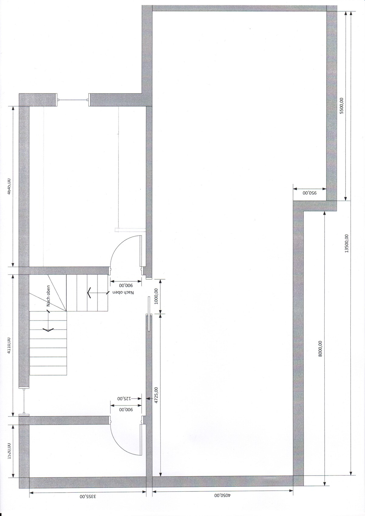
Das Problem das sich mir aktuell mehr stellt ist die suboptimal Form der Treppe.
Beachtet man den nötigen Freiraum davor bleibt auf der Nordseite leider nur ein extrem schmaler Bereich der sich für fast nichts eignet
So kommen mir null Ideen wie ich dieses Problem lösen könnte.
Vielleicht finde ich hier aber den ein oder anderen Gedankenanstoß der mich weiter bringt
Entschuldigt Bitte auch die einfache Skizze, aber diese sollte eigentlich für die Ideenfindung ausreichen.
(Bitte auch nicht zu sehr auf die Fenster achten)
Norden ist "unten", die schöne Aussicht ist Süd/West

Nun steht hier in den nächsten Jahren eine Kernsanierung an.
Schon über die letzten Jahre habe ich etliche Ideen entwickelt und wieder verworfen.
Aktuell habe ich für das OG eine schöne Lösung für das Schlafzimmer und die Anleihe gefunden.
Da ich mit meinem Partner keine Kinder geplant habe ist ein KZ eigentlich nicht notwendig.
Ein Büro/GZ ist im EG vorgesehen.
So hätte ich wohl nun genügend Platz um ein großzügiges Bad inkl. Badewanne (evtl. freistehend), offener Dusche und evtl. sogar Sauna (zwei Leute die liegen können sollten) planen zu können.
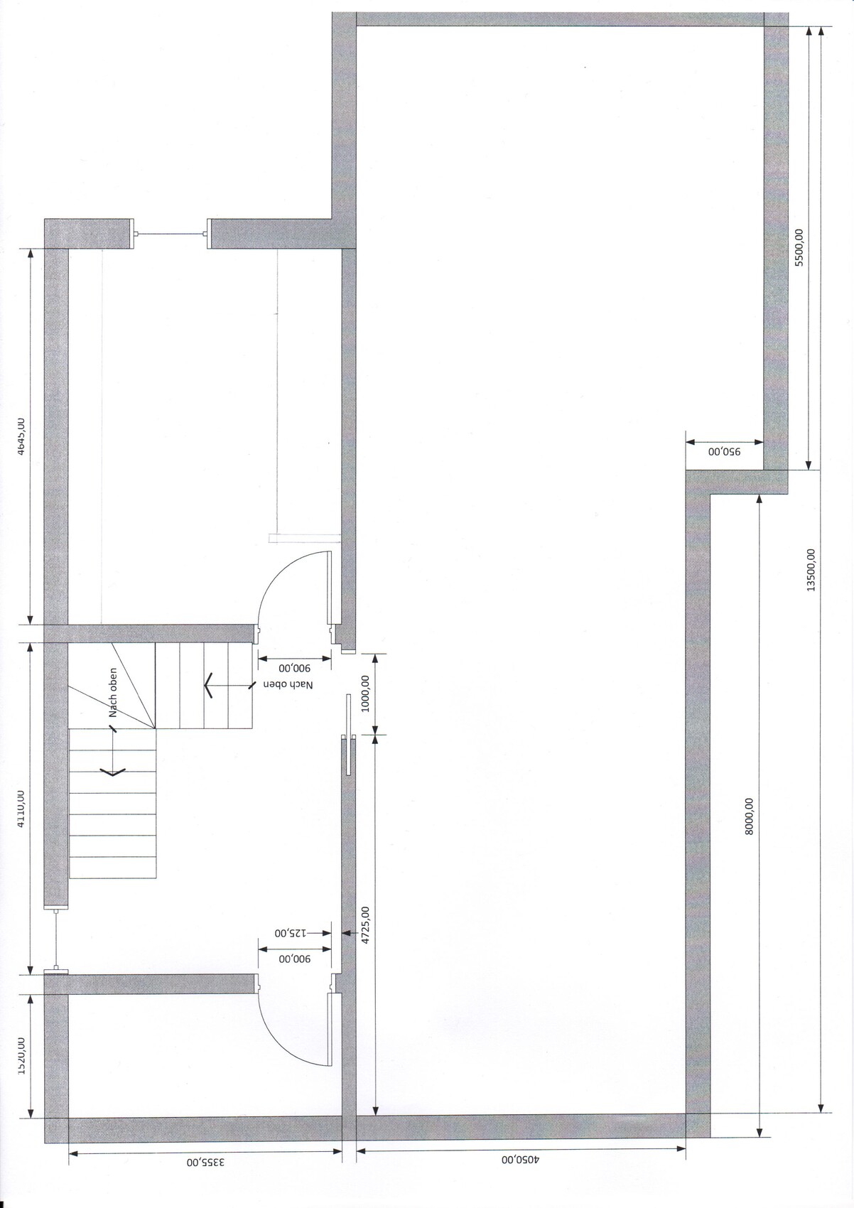
Das Problem das sich mir aktuell mehr stellt ist die suboptimal Form der Treppe.
Beachtet man den nötigen Freiraum davor bleibt auf der Nordseite leider nur ein extrem schmaler Bereich der sich für fast nichts eignet
So kommen mir null Ideen wie ich dieses Problem lösen könnte.
Vielleicht finde ich hier aber den ein oder anderen Gedankenanstoß der mich weiter bringt
Entschuldigt Bitte auch die einfache Skizze, aber diese sollte eigentlich für die Ideenfindung ausreichen.
(Bitte auch nicht zu sehr auf die Fenster achten)
Norden ist "unten", die schöne Aussicht ist Süd/West
N
nordanney27.01.20 18:31Wie sieht denn die Situation im EG aus? Die schönste Planerei hilft Dir nichts, wenn plötzlich der WC-Ablauf in der Mitte des Wohnzimmers nach unten geführt werden müsste...
Gibt es Dachschrägen? wo wären dann diese? Wo wäre die 2-Meter-Linie? Wenn es ein Vollgeschoss ist, dann bitte die letzten drei Fragen vergessen.
Wo wäre der statische Halt der zukünftigen Wände?
Wo ist das Abflussrohr? Wo die Leitungsschächte?
Und was ist denn nun der Bedarf? Wenn Du nur Ankleide, Bad und Schlafzimmer möchtest, ist doch der Platz vor der Treppe nicht wirklich ein Problem, oder?
Ist das jetzt der IST-Zustand? Woraus sind denn die Wände? Und was muss stehenbleiben davon?
Wo wäre der statische Halt der zukünftigen Wände?
Wo ist das Abflussrohr? Wo die Leitungsschächte?
Und was ist denn nun der Bedarf? Wenn Du nur Ankleide, Bad und Schlafzimmer möchtest, ist doch der Platz vor der Treppe nicht wirklich ein Problem, oder?
Ist das jetzt der IST-Zustand? Woraus sind denn die Wände? Und was muss stehenbleiben davon?
Da ist links unten das Gäste-WC und auf der rechten Seite die Küche und EZ (mit einer Breite von ~4m).
Eine genaue Planung fehlt da aber auch noch und muss da sowieso erst einmal durch einen Statiker laufen.
Ganz grober Entwurf:

Keine Dachschrägen.
Die eine Wand "in der Mitte" ist die tragende vorhandene Wand.
Der Rest (nicht mehr eingezeichnet) sind reine nicht tragende Wände).
(2m Linie sagt mir direkt jetzt nichts)
Eine genaue Planung fehlt da aber auch noch und muss da sowieso erst einmal durch einen Statiker laufen.
Ganz grober Entwurf:
Keine Dachschrägen.
Die eine Wand "in der Mitte" ist die tragende vorhandene Wand.
Der Rest (nicht mehr eingezeichnet) sind reine nicht tragende Wände).
(2m Linie sagt mir direkt jetzt nichts)
P
Pinky030127.01.20 19:12Passt doch, wenn man die tragende Wand im EG auch so im Obergeschoss ausführt. Der planrechte Teil über der Küche wird das Bad. Leitungen können entlang der Wand nach unten gehen. Vor den Treppen Gang kann man ja irgendwas stellen, damit der Raum nicht so leer wirkt. Sessel, Kommode, Bücherregal...
Ähnliche Themen