B
blubbernase18.11.21 10:43Moin,
Uns schwirrt etwas der Kopf, deswegen möchte ich mich hier gern mal meine Gedanken sortieren und gleichzeitig mir anhören, was andere Meinungen sind. Architekt und Kellerbauer sind da leider bis heute keine große Hilfe, mehr als "Sie müssen wissen, was sie wollen" kommt da irgendwie nicht raus. Unser Baugutachter ist leider erst in 2 Wochen wieder da.
Der Reihe nach:
Da wir bei unserem Raumbedarf die Grundflächenzahl sprengen würden, haben wir mit einem Teilnutzkeller, außerhalb der thermischen Hülle unseres KFW55 Haus, geplant, für Technik und Abstellraum und einen kleinen Sportkeller. Der Keller liegt komplett unter der Erde.
Das hier war der Initiale Plan (Raumaufteilung war/ist noch nicht final, bitte ignorieren)

Das war dann irgendwie klar, dass wir direkt auf den Vollkeller gehen, mit den gleichen Eigenschaften wie beim Teilkeller.
Nun - auf einmal hat man sehr viel mehr Platz und die Werkstatt, die wir an die Garage geplant hatten, würde jetzt auch im Keller platzfinden. Aber dann macht da auch ein Außenkelleraufgang Sinn und auch ein eventueller Aufenthaltsraum wo man eventuelle Multimedia Sachen unterbringen kann bzw später die kids ohne zu stören lauter sein können.
Damit einhergeht dann natürlich auch die Frage: Alles ungedämmt und ungeheizt lassen? Wir wollten dann in Eigenleistung die Perimeterdämmung machen, aber der Kellerbauer hat dann gesagt, dass man damit die Gewährleistung beeinträchtigt. Jetzt haben wir ein Angebot für den gedämmten Keller hier bekommen, Raumaufteilung ist auch hier nicht final...

Wenn wir die Dämmung unterhalb der Kellersohle nehmen, dann bräuchte es die Trennung in der thermischen Hülle nicht mehr und der innenliegende Kelleraufgang müsste nicht geschlossen und gedämmt sein für die KFW.
Bleibt die Frage nach der Heizung. Der Kellerbauer schwört auf die Fußbodenheizung, aber das scheint mir überdimensioniert zu sein - dafür wird der Keller dann zu wenig genutzt: Im Technikraum braucht es keine Heizung, und für die paar Stunden im Monat Werkstatt und Sport reicht eventuell auch eine Infrarotheizung? In meinem jetzigen Sportkellerzimmer, der ungedämmt ist und 2 Außenwände hat, hab ich immer zwischn 16 und 19 grad was total ok ist. Aber der Raum grenzt an beheizte und gedämmte Innenräume an
Ich weiß einfach nicht, was man hier für die KFW macht und was wirklich sinnvoll ist. So ausm Bauch herraus hätte ich gesagt:
- Die Kerngedämmte Aufführung nehmen, aber ohne die Dämmung unter der Kellersohle
- den innen liegenden Kelleraufgang gedämmt lassen
- In die Räume, wo man eventuell öfter ist, Infrarot heizungen (oder Ähnliches einplanen) Ich mein, heute ist unsere Werkstatt auch in der Garage und meine Frau, Hauptnutzerin davon, steht da dann einfach mit dickem Pulli
Bonusfrage: Außenkelleraufgang: Lohnt sich die Investition - da hab ich noch kein Angebot bekommen, nur als Daumen wert, dass es 7-10.000 € sein können.
So, ich glaube das ist mein Wissenstand. Meinungen?
Uns schwirrt etwas der Kopf, deswegen möchte ich mich hier gern mal meine Gedanken sortieren und gleichzeitig mir anhören, was andere Meinungen sind. Architekt und Kellerbauer sind da leider bis heute keine große Hilfe, mehr als "Sie müssen wissen, was sie wollen" kommt da irgendwie nicht raus. Unser Baugutachter ist leider erst in 2 Wochen wieder da.
Der Reihe nach:
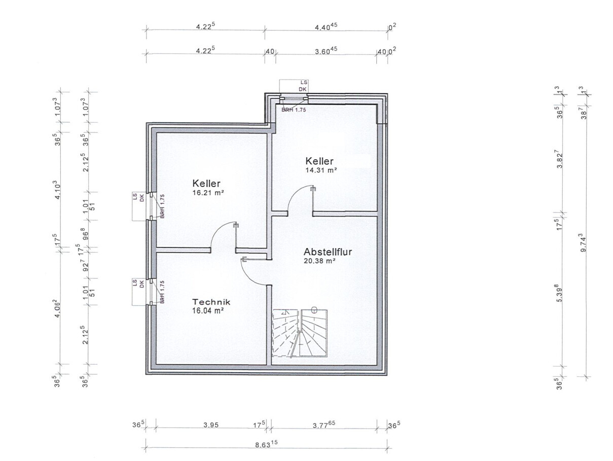
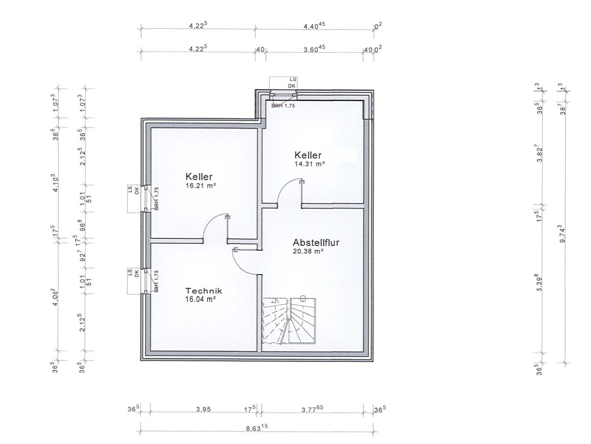
Da wir bei unserem Raumbedarf die Grundflächenzahl sprengen würden, haben wir mit einem Teilnutzkeller, außerhalb der thermischen Hülle unseres KFW55 Haus, geplant, für Technik und Abstellraum und einen kleinen Sportkeller. Der Keller liegt komplett unter der Erde.
Das hier war der Initiale Plan (Raumaufteilung war/ist noch nicht final, bitte ignorieren)
- Raumhöhe 2,25m
- Technik unten
- Kelleraußenwände: Die Außenwände werden als Elementwände aus zweischaligen Betonfertigteilen in C25/30 erstellt, Wanddicke. 36,5 cm, einschließlich eingebauter Bewehrung. Der Zwischenraum der Elementwände wird auf der Baustelle mit Transportbeton ausgegossen.
- Ungedämmt
- Ungeheizt
- Wassereinwirkklasse W 1.1-E (Grundwasser ist hier erst bei 30 Metern)
- Innen gedämmter Kellerabgang
- Preis: ca 66.500
Das war dann irgendwie klar, dass wir direkt auf den Vollkeller gehen, mit den gleichen Eigenschaften wie beim Teilkeller.
Nun - auf einmal hat man sehr viel mehr Platz und die Werkstatt, die wir an die Garage geplant hatten, würde jetzt auch im Keller platzfinden. Aber dann macht da auch ein Außenkelleraufgang Sinn und auch ein eventueller Aufenthaltsraum wo man eventuelle Multimedia Sachen unterbringen kann bzw später die kids ohne zu stören lauter sein können.
Damit einhergeht dann natürlich auch die Frage: Alles ungedämmt und ungeheizt lassen? Wir wollten dann in Eigenleistung die Perimeterdämmung machen, aber der Kellerbauer hat dann gesagt, dass man damit die Gewährleistung beeinträchtigt. Jetzt haben wir ein Angebot für den gedämmten Keller hier bekommen, Raumaufteilung ist auch hier nicht final...
- Raumhöhe 2,40
- Technik unten
- Dämmung unter Kellersohle (5.605 €)
- 120 mm lastabtragende Perimeterdämmung (XPS) unterhalb der Kellersohle
- 120 mm Perimeterdämmung (XPS) einlagig stirnseitig im Sockelbereich
- Kelleraußenwände als kerngedämmte Wand mit 120 mm Dämmung. U-Wert: 0,25 W/m²K. Die Außenwände werden aus Beton in C25 /30 erstellt, Wanddicke ca. 36,5 cm, einschließlich eingebauter Bewehrung, hier der Wandaufbau
- Wassereinwirkklasse W 1.1-E
- Preis 96. 800 €
Wenn wir die Dämmung unterhalb der Kellersohle nehmen, dann bräuchte es die Trennung in der thermischen Hülle nicht mehr und der innenliegende Kelleraufgang müsste nicht geschlossen und gedämmt sein für die KFW.
Bleibt die Frage nach der Heizung. Der Kellerbauer schwört auf die Fußbodenheizung, aber das scheint mir überdimensioniert zu sein - dafür wird der Keller dann zu wenig genutzt: Im Technikraum braucht es keine Heizung, und für die paar Stunden im Monat Werkstatt und Sport reicht eventuell auch eine Infrarotheizung? In meinem jetzigen Sportkellerzimmer, der ungedämmt ist und 2 Außenwände hat, hab ich immer zwischn 16 und 19 grad was total ok ist. Aber der Raum grenzt an beheizte und gedämmte Innenräume an
Ich weiß einfach nicht, was man hier für die KFW macht und was wirklich sinnvoll ist. So ausm Bauch herraus hätte ich gesagt:
- Die Kerngedämmte Aufführung nehmen, aber ohne die Dämmung unter der Kellersohle
- den innen liegenden Kelleraufgang gedämmt lassen
- In die Räume, wo man eventuell öfter ist, Infrarot heizungen (oder Ähnliches einplanen) Ich mein, heute ist unsere Werkstatt auch in der Garage und meine Frau, Hauptnutzerin davon, steht da dann einfach mit dickem Pulli
Bonusfrage: Außenkelleraufgang: Lohnt sich die Investition - da hab ich noch kein Angebot bekommen, nur als Daumen wert, dass es 7-10.000 € sein können.
So, ich glaube das ist mein Wissenstand. Meinungen?
Na entweder alles dämmen und in die thermische Hülle aufnehmen oder gar nichts dämmen und das Treppenhaus schließen.
Zwischenlösungen mit Wanddämmung aber ohne Bodendämmung sind Quatsch.
Für die gewünschte Nutzung reicht auch die ungedämmte Variante. Dann auch ohne Fußbodenheizung und halt z.B. Infrarot für Werkstatt / Fitness / Spielraum.
Wenn du nicht wirklich Räume mit brauchbaren Fenstern und für längeren Aufenthalt ( Büro / Gästezimmer ) planst, würde ich die 30k Aufpreis wohl anderswo verwenden. Z.B. für die Außentreppe. Das ist schon ne gute Sache, wenn die z.B. in den Waschraum mit Waschbecken geht. Da können dann die dreckigen Kinder rein, oder wenn man mal was im Garten oder am Auto gemacht hat kann man da direkt zum Hände waschen rein.
Ist aber auch sehr abhängig von der Grundstückssituation. So eine Treppe nimmt direkt am Haus viel Platz ein, den muss man auch haben bzw. nich für etwas anderes brauchen.
Zwischenlösungen mit Wanddämmung aber ohne Bodendämmung sind Quatsch.
Für die gewünschte Nutzung reicht auch die ungedämmte Variante. Dann auch ohne Fußbodenheizung und halt z.B. Infrarot für Werkstatt / Fitness / Spielraum.
Wenn du nicht wirklich Räume mit brauchbaren Fenstern und für längeren Aufenthalt ( Büro / Gästezimmer ) planst, würde ich die 30k Aufpreis wohl anderswo verwenden. Z.B. für die Außentreppe. Das ist schon ne gute Sache, wenn die z.B. in den Waschraum mit Waschbecken geht. Da können dann die dreckigen Kinder rein, oder wenn man mal was im Garten oder am Auto gemacht hat kann man da direkt zum Hände waschen rein.
Ist aber auch sehr abhängig von der Grundstückssituation. So eine Treppe nimmt direkt am Haus viel Platz ein, den muss man auch haben bzw. nich für etwas anderes brauchen.
T
Tolentino18.11.21 11:07Bin anderer Ansicht: wenn Geld da alles dämmen keine Außentreppe. So kannst du den Keller viel vielseitiger nutzen und hast ne Wertsteigerung.
Würde auch Fußbodenheizung überall reinmachen lassen. Infrarot verstellet Wandfläche bzw so nah am Kopf bei den niedrigen Decken würde ich die nicht ausschließlich haben wollen.
Allerdings würde ich auf die 2,40 verzichten, 2,25 reicht doch im Keller. Ist 2,40m nicht evtl. dann sogar Wohnfläche?
Würde auch Fußbodenheizung überall reinmachen lassen. Infrarot verstellet Wandfläche bzw so nah am Kopf bei den niedrigen Decken würde ich die nicht ausschließlich haben wollen.
Allerdings würde ich auf die 2,40 verzichten, 2,25 reicht doch im Keller. Ist 2,40m nicht evtl. dann sogar Wohnfläche?
Naja, dass bei frei verfügbarem Budget der gedämmte Keller die bessere Wahl ist, steht doch außer Frage.
Die Frage ist doch, ob die Mehrkosten einem Mehrwert entgegenstehen.
Das tun sie bei der geplanten Nutzung meines Erachtens eben nicht. Ob die Dämmung den Wiederverkaufswert dann auch um 30k erhöht? Glaube ich nicht.
Wohnfläche entsteht ja nicht nur durch die Deckenhöhe, auch entsprechende Fensterflächen sind Voraussetzung. Das ist aber, soweit ich es verstanden habe, hier sowieso kein Thema. Klar braucht ne Infrarotheizung etwas Platz, aber der ist ja wohl mehr als genug vorhanden. Ich mein da gibt es einen 30m² großen Flur und immer noch 4 leidlich große Räume für die gewünschte Nutzung.
Die Frage ist doch, ob die Mehrkosten einem Mehrwert entgegenstehen.
Das tun sie bei der geplanten Nutzung meines Erachtens eben nicht. Ob die Dämmung den Wiederverkaufswert dann auch um 30k erhöht? Glaube ich nicht.
Wohnfläche entsteht ja nicht nur durch die Deckenhöhe, auch entsprechende Fensterflächen sind Voraussetzung. Das ist aber, soweit ich es verstanden habe, hier sowieso kein Thema. Klar braucht ne Infrarotheizung etwas Platz, aber der ist ja wohl mehr als genug vorhanden. Ich mein da gibt es einen 30m² großen Flur und immer noch 4 leidlich große Räume für die gewünschte Nutzung.
T
Tolentino18.11.21 11:30Geplante Nutzung heute!
Bei 14°C im Heimkino guckt sich Batman vs Pumuckl 3 aber nicht so angenehm oder die Kinder spielen halt nicht so gerne dort mit ihrer Eisenbahn und sie muss dann doch oben aufgestellt werden.
Aber ja, für 30 TEUR lässt sich auch lange Direktheizung betreiben.
Bei 14°C im Heimkino guckt sich Batman vs Pumuckl 3 aber nicht so angenehm oder die Kinder spielen halt nicht so gerne dort mit ihrer Eisenbahn und sie muss dann doch oben aufgestellt werden.
Aber ja, für 30 TEUR lässt sich auch lange Direktheizung betreiben.
P
pagoni202018.11.21 11:41Wir haben Infrarotheizung als Hauptheizung neben dem Kaminofen und das, was ich bisher damit so erlebe seit ein paasr Wochen gefällt mir (bislang).
Unser Hersteller bietet Glaselemente an, die Du in der Betondecke versenkan kannst, dann siehst Du von unten nur eine schicke Rauchglasscheibe. In der offenen Wohnraumküche haben wir auch nur 240 oder 242 und meine Sorge, dass mit die nicht vorhandene Glatze verbrennt scheint völlig unnötig gewesen zu seuin. Zudem werden die Elemente so platziert, dass man nicht darunter liegt/steht.
Grundsätzlich ist natürlich ein separater Kellerzugang etwas Schönes, so hatte ich es im ehem. Haus. Bzgl. Dämmung und Hülle etc. kenne ich mich nicht so gut aus aber gemessen an Deiner geplanten Nutzung würde ich wohl die Dämmung unterv der Betondecke maximal ausführen, jedoch keinesfalls eine Fußbodenheizung im Keller nutzen, die heizt sich ja nen Wolf, lässt sich nur träge einstellen und Du brauchst diese nur sporadisch bzw. spontan. Das sind Begriffe, welche eine Fußbodenheizung nicht so gerne mag 😀
Unser ehem. Haus aus 1990 hatte auch einen Keller und sicher keine übermäßige Dämmung der Platte seinerzeit. Wir haben die Räume dann verschiedentlich genutzt, auch als Schlafzimmer, und zuletzt war dort eine Einliegerwohnung drin. Der Mieter lebt wohl noch....die Heizkosten sind "normal", der neue Besitzer hätte mir das ansonsten auch gesagt.
Seinerzeit war Teppichboden angesagt und auch vlt. deswegen hatte ich nie das Gefühl, dass es dort zu kalt wäre, wir sind dort auch barfuß gelaufen.
Berechnungen sind sinnvoll, dennoch würde ich dabei auch nicht mein persönl. Gefühl dazu unterschlagen; Meines habe ich Dir dazu jetzt gesagt.
Unser Hersteller bietet Glaselemente an, die Du in der Betondecke versenkan kannst, dann siehst Du von unten nur eine schicke Rauchglasscheibe. In der offenen Wohnraumküche haben wir auch nur 240 oder 242 und meine Sorge, dass mit die nicht vorhandene Glatze verbrennt scheint völlig unnötig gewesen zu seuin. Zudem werden die Elemente so platziert, dass man nicht darunter liegt/steht.
Grundsätzlich ist natürlich ein separater Kellerzugang etwas Schönes, so hatte ich es im ehem. Haus. Bzgl. Dämmung und Hülle etc. kenne ich mich nicht so gut aus aber gemessen an Deiner geplanten Nutzung würde ich wohl die Dämmung unterv der Betondecke maximal ausführen, jedoch keinesfalls eine Fußbodenheizung im Keller nutzen, die heizt sich ja nen Wolf, lässt sich nur träge einstellen und Du brauchst diese nur sporadisch bzw. spontan. Das sind Begriffe, welche eine Fußbodenheizung nicht so gerne mag 😀
Unser ehem. Haus aus 1990 hatte auch einen Keller und sicher keine übermäßige Dämmung der Platte seinerzeit. Wir haben die Räume dann verschiedentlich genutzt, auch als Schlafzimmer, und zuletzt war dort eine Einliegerwohnung drin. Der Mieter lebt wohl noch....die Heizkosten sind "normal", der neue Besitzer hätte mir das ansonsten auch gesagt.
Seinerzeit war Teppichboden angesagt und auch vlt. deswegen hatte ich nie das Gefühl, dass es dort zu kalt wäre, wir sind dort auch barfuß gelaufen.
Berechnungen sind sinnvoll, dennoch würde ich dabei auch nicht mein persönl. Gefühl dazu unterschlagen; Meines habe ich Dir dazu jetzt gesagt.
Ähnliche Themen