ᐅ Next 125 Küche Planung / Preis Erfahrungen?
Erstellt am: 01.08.21 22:08
Hallo liebes Forum,
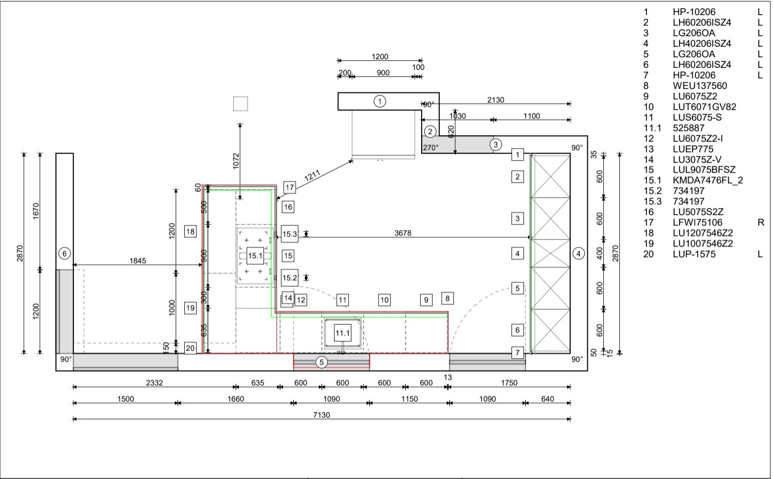
Wir haben uns für eine Next125 Küche in Lavaschwarz Samtmatt mit Keramik Arbeitsplatte entschieden. Da wir noch 1-2 Monate Zeit für die Finale Konfiguration haben, wollten wir uns noch Feedback zur Optimierung sowie dem Preis einholen. Im Anhang findet Ihr die Planung und die Visualisierung.
Vorab vielen Dank für eure Hilfe.
Details zu unseren Küchen:
Fronten: Lavaschwarz Samtmatt (Preisgruppe: 3)
Arbeitsplatte: Keramik Cromocera Cemento 12mm (ca 6 Meter)
Elektrogeräte:
Herd mit Muldenlüfter: Miele KMDA 7476 FL_2 (Preis online ca. 3000 €)
Backofen: Bosch HBG8755c0 (Preis online ca. 1800€)
Dampfgarer: Bosch CDG834AC0 (Preis online ca. 1900€)
Wärmeschublade: Bosch BIC830NC0 (Preis online ca. 800€)
Geschirrspüler: Bosch SMD4EB801E (Preis online ca. 1000€)
Kühlschrank Side By Side, den haben wir bereits.
Summe Elektrogeräte ca.: 8500€
Spüle: Blanco Etagon Silgranitschwarz
Next 125 Preis: 27000€ (Wir leben im Raum Stuttgart)










Wir haben uns für eine Next125 Küche in Lavaschwarz Samtmatt mit Keramik Arbeitsplatte entschieden. Da wir noch 1-2 Monate Zeit für die Finale Konfiguration haben, wollten wir uns noch Feedback zur Optimierung sowie dem Preis einholen. Im Anhang findet Ihr die Planung und die Visualisierung.
Vorab vielen Dank für eure Hilfe.
Details zu unseren Küchen:
Fronten: Lavaschwarz Samtmatt (Preisgruppe: 3)
Arbeitsplatte: Keramik Cromocera Cemento 12mm (ca 6 Meter)
Elektrogeräte:
Herd mit Muldenlüfter: Miele KMDA 7476 FL_2 (Preis online ca. 3000 €)
Backofen: Bosch HBG8755c0 (Preis online ca. 1800€)
Dampfgarer: Bosch CDG834AC0 (Preis online ca. 1900€)
Wärmeschublade: Bosch BIC830NC0 (Preis online ca. 800€)
Geschirrspüler: Bosch SMD4EB801E (Preis online ca. 1000€)
Kühlschrank Side By Side, den haben wir bereits.
Summe Elektrogeräte ca.: 8500€
Spüle: Blanco Etagon Silgranitschwarz
Next 125 Preis: 27000€ (Wir leben im Raum Stuttgart)
hafoth schrieb:
Spüle: Blanco
(Wir leben im Raum Stuttgart)Da fällt mir ein Besuch auf einer Hausmesse mit Küchenausstellung in PF ein.
Die Ausstellungsküche hätte man nach der Ausstellung zum halben Preis bekommen. Tage später war ich beim Küchenstudio (ich meine, es war in S-Vaihingen), dort war eine Blano-Spüle für über 700€ im Schaufenster, die man „regulär“ (Internet) für knapp über 300€ bekommen hätte…
Habe dann ganz schnell Abstand von solchen Studios genommen…
Preis? 2,3 weitere AG einholen…
(Schwarz als Küche fände ich furchtbar) 🙄
driver55 schrieb:
Da fällt mir ein Besuch auf einer Hausmesse mit Küchenausstellung in PF ein.
Die Ausstellungsküche hätte man nach der Ausstellung zum halben Preis bekommen. Tage später war ich beim Küchenstudio (ich meine, es war in S-Vaihingen), dort war eine Blano-Spüle für über 700€ im Schaufenster, die man „regulär“ (Internet) für knapp über 300€ bekommen hätte…
Habe dann ganz schnell Abstand von solchen Studios genommen…
Preis? 2,3 weitere AG einholen…
(Schwarz als Küche fände ich furchtbar) 🙄S-Vaihingen ist bei uns um die Ecke. Wir haben mehrere Angebote eingeholt und die lagen zwischen 27-30000€, jedoch mit zum Teil unterschiedlicher Ausstattung ( Ballerina, Häcker und Next125). Das mit der Schwarzen Küche kann ich verstehen, wir haben uns nur dafür entschieden weil unsere Küche von 2 Seiten belichtet wird.
M
Myrna_Loy01.08.21 23:26Das einzige was man bei den wenigen Infos sagen kann: teure Schauküche.
mehr konkretes Feedback wird es im entsprechenden Spezialforum geben, wenn mehr Infos zur Ausstattung und zum gewünschten Nutzungsziel gegeben werden.
(Unser Installateur witzelte letzte Woche, dass separate Dampfgarer heute das sind, was in den 80er Jahren Bidets im Badezimmer waren - wenn man was auf sich hielt, hat man die natürlich gekauft, gewaschen wurden dann vielleicht mal die Füße darin 😀).
mehr konkretes Feedback wird es im entsprechenden Spezialforum geben, wenn mehr Infos zur Ausstattung und zum gewünschten Nutzungsziel gegeben werden.
(Unser Installateur witzelte letzte Woche, dass separate Dampfgarer heute das sind, was in den 80er Jahren Bidets im Badezimmer waren - wenn man was auf sich hielt, hat man die natürlich gekauft, gewaschen wurden dann vielleicht mal die Füße darin 😀).
Myrna_Loy schrieb:
Das einzige was man bei den wenigen Infos sagen kann: teure Schauküche.
mehr konkretes Feedback wird es im entsprechenden Spezialforum geben, wenn mehr Infos zur Ausstattung und zum gewünschten Nutzungsziel gegeben werden.
(Unser Installateur witzelte letzte Woche, dass separate Dampfgarer heute das sind, was in den 80er Jahren Bidets im Badezimmer waren - wenn man was auf sich hielt, hat man die natürlich gekauft, gewaschen wurden dann vielleicht mal die Füße darin 😀).Vielen Dank für dein Feedback, kannst du mir bitte erklären warum Schauküche?
Ähnliche Themen