Hallo,
wir bauen eine Stadtvilla mit ca. 150qm auf einem ca. 600qm großen Grundstück. Wir hatten nun mit dem Bauträger unser Planungsgespräch, in dem wir unsere Wünsche mit dem Planer abgestimmt haben. Wir können weiterhin noch Änderungen einbringen. Daher geht es mir nun um konkrete Fragen zum Grundriss an Euch, wir ihr das eine oder andere eventuell besser/anders aufteilen würdet.
Zum Preis oder der grundsätzlichen Platzierung des Hauses auf dem Grundstück gibt es keine Fragen, so dass ich diese Details weggelassen habe. Das Wohnzimmer/die Terrasse ist nach Nordwesten ausgerichtet, der Hauseingang nach Südosten.
Bebauungsplan/Einschränkungen
Größe des Grundstücks: 600qm
Hang: Nein
Grundflächenzahl: ?
Geschossflächenzahl: ?
Randbebauung: Nein
Anzahl Stellplatz: 1
Dachform: Walmdach
Stilrichtung: Stadtvilla
Ausrichtung: Terrasse nach Nordwest
Anforderungen der Bauherren
Stilrichtung, Dachform, Gebäudetyp: Stadtvilla wegen der zwei Vollgeschosse und Abstellmöglichkeit auf dem Dachboden
Keller, Geschosse: Ohne Keller, EG und OG
Anzahl der Personen, Alter: 2 Erwachsene und 1 Kleinkind, perspektivisch ein zweites Kind
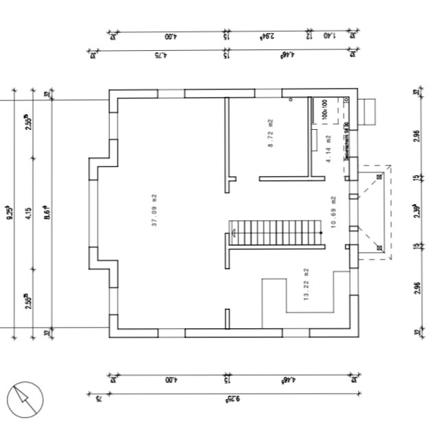
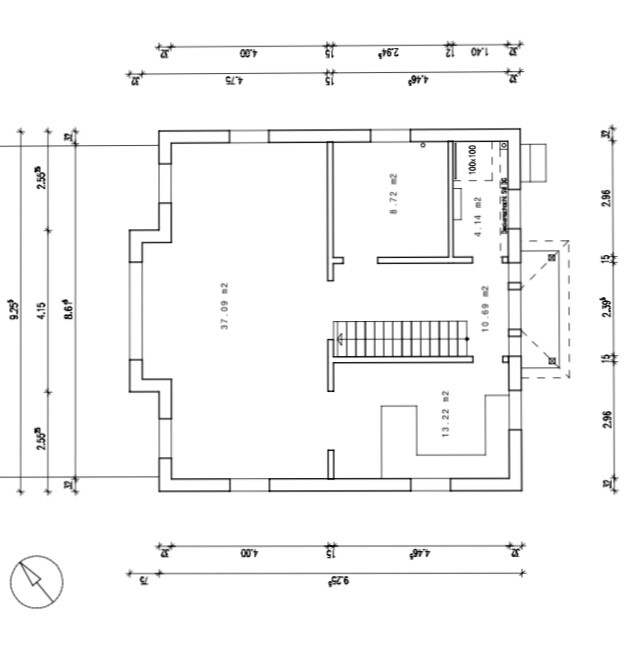
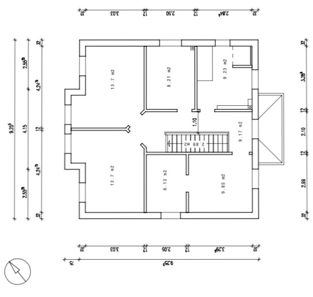
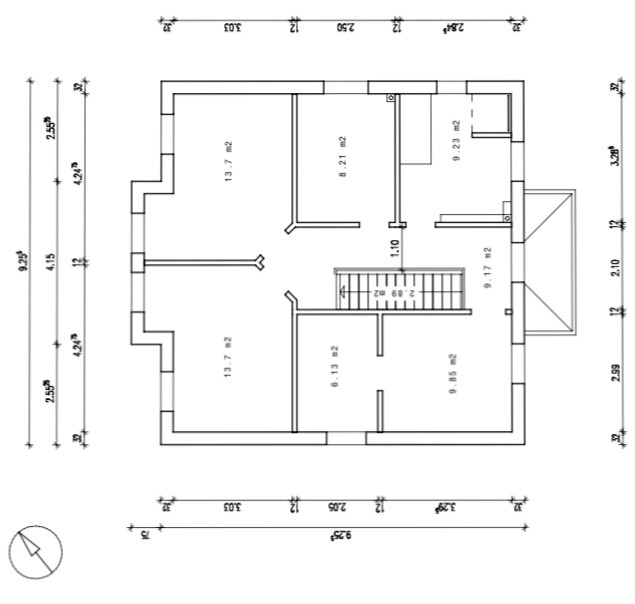
Raumbedarf im EG, OG: EG-Wohnzimmer, Küche, Hauswirtschaftsraum, Gäste-WC OG-Schlafzimmer, Ankleidebereich, 2 Kinderzimmer, Büro, Bad
Büro: Homeoffice
offene Küche, Kochinsel: Keine offen Küche, aber Möglichkeit mit einer aktuell geplanten Schiebetür zum Wohnzimmer den Küchenbereich zu "öffnen"
Kamin: Nein
Hausentwurf
Von wem stammt die Planung:
- Planer des Bauunternehmens
Was gefällt besonders? Warum?
Wenn das Büro im OG angesiedelt wird, können Küche und Wohnzimmer größer ausfallen. Trotzdem sind die Wohnräume im OG noch für unsere Zwecke ausreichend dimensioniert.
favorisierte Heiztechnik: Luft-Wasser-Wärmepumpe mit Fußbodenheizung und Kontrollierte-Wohnraumlüftung
Warum ist der Entwurf so geworden, wie er jetzt ist?
Planungsgespräch hat bereits stattgefunden
Was ist die wichtigste/grundlegende Frage zum Grundriss in 130 Zeichen zusammengefasst?
Ist der Flur im EG ausreichend breit, um dort bspw. ein Garderobenschrank unterzubringen oder sollen wir eine zusätzliche Garderobennische planen (Wand im Hauswirtschaftsraum einrücken)? Dusche im Gäste-WC soll definitiv bleiben.
Im OG werden die Kinderzimmer auf ca. 13qm zugunsten des Schlafbereichs und Büros verkleinert und das Schlafzimmer auf ca. 3,6m verlängert. Ist das Schlafzimmer dann groß genug für ein Bett (1,8m x 2m) wegen der Abstandsflächen zur Wand? Es sind nun mindestens 90cm um das Bett herum, ist das zu knapp bemessen? Reicht dann eurer Meinung der Ankleidebereich mit ca. 1,95m x 3m? Sollte das Fenster im Ankleidebereich bleiben oder zugunsten von mehr Stellfläche weichen?
Wir planen, den Flur im OG auf eine Durchgangsbreite von 1m einzurücken, zugunsten des Büros und des Badezimmers. Ist 1m Durchgangsbreite akzeptabel oder welche Breite würdet ihr empfehlen? Auf der einen Seite des Flurs ist das Treppengeländer, so dass es eigentlich nicht zu beengend wirken sollte oder?
Wir bedanken uns vorab über jeden Kommentar bzw. Ratschlag.


wir bauen eine Stadtvilla mit ca. 150qm auf einem ca. 600qm großen Grundstück. Wir hatten nun mit dem Bauträger unser Planungsgespräch, in dem wir unsere Wünsche mit dem Planer abgestimmt haben. Wir können weiterhin noch Änderungen einbringen. Daher geht es mir nun um konkrete Fragen zum Grundriss an Euch, wir ihr das eine oder andere eventuell besser/anders aufteilen würdet.
Zum Preis oder der grundsätzlichen Platzierung des Hauses auf dem Grundstück gibt es keine Fragen, so dass ich diese Details weggelassen habe. Das Wohnzimmer/die Terrasse ist nach Nordwesten ausgerichtet, der Hauseingang nach Südosten.
Bebauungsplan/Einschränkungen
Größe des Grundstücks: 600qm
Hang: Nein
Grundflächenzahl: ?
Geschossflächenzahl: ?
Randbebauung: Nein
Anzahl Stellplatz: 1
Dachform: Walmdach
Stilrichtung: Stadtvilla
Ausrichtung: Terrasse nach Nordwest
Anforderungen der Bauherren
Stilrichtung, Dachform, Gebäudetyp: Stadtvilla wegen der zwei Vollgeschosse und Abstellmöglichkeit auf dem Dachboden
Keller, Geschosse: Ohne Keller, EG und OG
Anzahl der Personen, Alter: 2 Erwachsene und 1 Kleinkind, perspektivisch ein zweites Kind
Raumbedarf im EG, OG: EG-Wohnzimmer, Küche, Hauswirtschaftsraum, Gäste-WC OG-Schlafzimmer, Ankleidebereich, 2 Kinderzimmer, Büro, Bad
Büro: Homeoffice
offene Küche, Kochinsel: Keine offen Küche, aber Möglichkeit mit einer aktuell geplanten Schiebetür zum Wohnzimmer den Küchenbereich zu "öffnen"
Kamin: Nein
Hausentwurf
Von wem stammt die Planung:
- Planer des Bauunternehmens
Was gefällt besonders? Warum?
Wenn das Büro im OG angesiedelt wird, können Küche und Wohnzimmer größer ausfallen. Trotzdem sind die Wohnräume im OG noch für unsere Zwecke ausreichend dimensioniert.
favorisierte Heiztechnik: Luft-Wasser-Wärmepumpe mit Fußbodenheizung und Kontrollierte-Wohnraumlüftung
Warum ist der Entwurf so geworden, wie er jetzt ist?
Planungsgespräch hat bereits stattgefunden
Was ist die wichtigste/grundlegende Frage zum Grundriss in 130 Zeichen zusammengefasst?
Ist der Flur im EG ausreichend breit, um dort bspw. ein Garderobenschrank unterzubringen oder sollen wir eine zusätzliche Garderobennische planen (Wand im Hauswirtschaftsraum einrücken)? Dusche im Gäste-WC soll definitiv bleiben.
Im OG werden die Kinderzimmer auf ca. 13qm zugunsten des Schlafbereichs und Büros verkleinert und das Schlafzimmer auf ca. 3,6m verlängert. Ist das Schlafzimmer dann groß genug für ein Bett (1,8m x 2m) wegen der Abstandsflächen zur Wand? Es sind nun mindestens 90cm um das Bett herum, ist das zu knapp bemessen? Reicht dann eurer Meinung der Ankleidebereich mit ca. 1,95m x 3m? Sollte das Fenster im Ankleidebereich bleiben oder zugunsten von mehr Stellfläche weichen?
Wir planen, den Flur im OG auf eine Durchgangsbreite von 1m einzurücken, zugunsten des Büros und des Badezimmers. Ist 1m Durchgangsbreite akzeptabel oder welche Breite würdet ihr empfehlen? Auf der einen Seite des Flurs ist das Treppengeländer, so dass es eigentlich nicht zu beengend wirken sollte oder?
Wir bedanken uns vorab über jeden Kommentar bzw. Ratschlag.
Kannst du bitte einen Lageplan einstellen?
Grundrisse immer mit den vorhandenen bzw gewünschten Möbeln möblieren.
Für was ist der Erker im Wohnbereich?
Hauswirtschaftsraum ist sehr knapp. Würde den nicht noch verkleinern.
Wie groß ist die Treppe? Kommt mir sehr kurz vor.
Finde den Flur zu schmal für eine Garderobe.
Ich würde eine andere Treppe wählen.
Soll die Küche so wie eingezeichnet werden?
Wie ist das Bad im OG gedacht.
Ankleide ist etwas schmal.
Grundrisse immer mit den vorhandenen bzw gewünschten Möbeln möblieren.
Für was ist der Erker im Wohnbereich?
Hauswirtschaftsraum ist sehr knapp. Würde den nicht noch verkleinern.
Wie groß ist die Treppe? Kommt mir sehr kurz vor.
Finde den Flur zu schmal für eine Garderobe.
Ich würde eine andere Treppe wählen.
Soll die Küche so wie eingezeichnet werden?
Wie ist das Bad im OG gedacht.
Ankleide ist etwas schmal.
Ist das wirklich ein Bauträger, d.h. kauft Ihr das Grundstück mitsamt des geplanten Hauses von ihm ?
Wo kommen die ungewöhnlichen Wandstärken her, d.h. aus was sind die Wände herzustellen vorgesehen ?
Ich vermute mangelnde Vorstellungskraft für tatsächliche Maße - realistische Möblierungen helfen derlei aufzudecken. Übrigens werden Raumbezeichnungen in Diskussionen gern gesehen.
https://www.instagram.com/11antgmxde/
https://www.linkedin.com/company/bauen-jetzt/
Wo kommen die ungewöhnlichen Wandstärken her, d.h. aus was sind die Wände herzustellen vorgesehen ?
Ich vermute mangelnde Vorstellungskraft für tatsächliche Maße - realistische Möblierungen helfen derlei aufzudecken. Übrigens werden Raumbezeichnungen in Diskussionen gern gesehen.
https://www.instagram.com/11antgmxde/
https://www.linkedin.com/company/bauen-jetzt/
P.S.: Du fragtest vor sechs Jahren
https://www.instagram.com/11antgmxde/
https://www.linkedin.com/company/bauen-jetzt/
peterp schrieb:was hat Euch so lange aufgehalten ?, und: wie "aktiv" wart Ihr in der Zwischenzeit als Mitleser hier ?
wir stehen vor folgender Frage:
In unserem geplanten Haus sind für alle Fenster (manuelle) Rollläden vorgesehen.
https://www.instagram.com/11antgmxde/
https://www.linkedin.com/company/bauen-jetzt/
peterp schrieb:
Zum Preis oder der grundsätzlichen Platzierung des Hauses auf dem Grundstück gibt es keine Fragen, so dass ich diese Details weggelassen habe.diese Details sind für eine Grundrissdiskussion nötig. Wenn Du Ratschläge möchtest, musst Du Informationen liefern, sonst läuft das nicht.
Im Übrigen sind die Pläne leider nicht lesbar.
peterp schrieb:
Zu[...]r grundsätzlichen Platzierung des Hauses auf dem Grundstück gibt es keine Fragen, so dass ich diese Details weggelassen habe.Da muß ich Yvonne Zustimmen, der Begriff "Detail" dafür verkennt die grundlegende Bedeutung.https://www.instagram.com/11antgmxde/
https://www.linkedin.com/company/bauen-jetzt/
Ähnliche Themen