ᐅ Nachbarschaftszustimmung bei Grenzbebauung und Bauhöhe – wie vorgehen?
Erstellt am: 27.11.25 13:23
L
lucaskilamL
lucaskilam27.11.25 13:23Hallo zusammen,
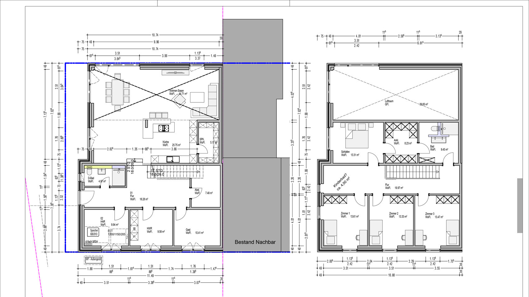
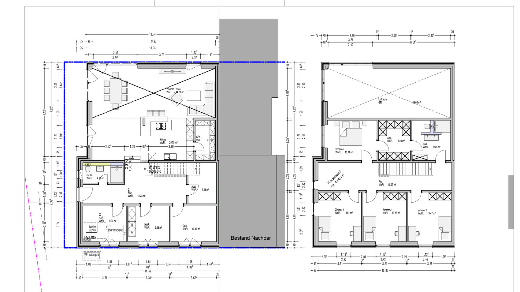
wir planen den Abriss unserer Doppelhaushälfte und möchten neu bauen. Der neue Entwurf ist nach hinten länger und im Wohnbereich höher als die bestehende Nachbarbebauung. Baurechtlich liegen wir laut Architekt innerhalb der zulässigen Vorgaben.
Unser Nachbar hatte uns mündlich signalisiert, dass der Entwurf für ihn in Ordnung sei. Als wir um eine schriftliche Zustimmung gebeten haben, möchte er nun vorab mit der Behörde sprechen. Ein Termin dort ist aber frühestens in zwei Monaten möglich.
Daher meine Fragen:
Ich freue mich über Einschätzungen und Erfahrungen aus ähnlichen Situationen.


wir planen den Abriss unserer Doppelhaushälfte und möchten neu bauen. Der neue Entwurf ist nach hinten länger und im Wohnbereich höher als die bestehende Nachbarbebauung. Baurechtlich liegen wir laut Architekt innerhalb der zulässigen Vorgaben.
Unser Nachbar hatte uns mündlich signalisiert, dass der Entwurf für ihn in Ordnung sei. Als wir um eine schriftliche Zustimmung gebeten haben, möchte er nun vorab mit der Behörde sprechen. Ein Termin dort ist aber frühestens in zwei Monaten möglich.
Daher meine Fragen:
- Ist in diesem Fall eine Nachbarschaftszustimmung zwingend notwendig?
- Was passiert, wenn der Nachbar nicht zustimmt – wird dann tatsächlich nicht genehmigt oder prüft die Behörde eigenständig?
- Kann die Baubehörde trotz fehlender Zustimmung genehmigen, solange keine nachbarschützenden Rechte verletzt sind?
- Ist es sinnvoll, den Bauantrag dennoch schon einzureichen, um keine Zeit zu verlieren?
Ich freue mich über Einschätzungen und Erfahrungen aus ähnlichen Situationen.
L
lucaskilam27.11.25 14:29kbt09 schrieb:
Warum die Frage doppelt? Siehe auch https://www.hausbau-forum.de/threads/grundrissplanung-neubau-moderne-doppelhaushaelfte-mit-6m-deckenhoehe-und-239qm-wohnflaeche.49712/post-698658Weil es dort eigentlich um ein anderes Thema geht und das nicht der richtige Ort für diese Frage ist
H
hanghaus202327.11.25 17:38Such mal im Netz nach dem Dokument.
FREIE UND HANSESTADT HAMBURG Behörde für Stadtentwicklung und Umwelt - Amt für Bauordnung und Hochbau Bauprüfdienst (BPD) 3/2014 Nachbarliche Belange
Die 7 Seiten sollten Deine Frage beantworten.
Du baust an einer Grenze ohne Abstand da ist die Beteiligung des Nachbarn pflicht.
Die Behörde kann falls der Nachbar nicht unterschreibt die Baugenehmigung trotzdem erteilen, falls Alle baurechtlichen Belange eingehalten werden. Was ich aber bereits im anderen Beitrag anzweifelte.
FREIE UND HANSESTADT HAMBURG Behörde für Stadtentwicklung und Umwelt - Amt für Bauordnung und Hochbau Bauprüfdienst (BPD) 3/2014 Nachbarliche Belange
Die 7 Seiten sollten Deine Frage beantworten.
Du baust an einer Grenze ohne Abstand da ist die Beteiligung des Nachbarn pflicht.
Die Behörde kann falls der Nachbar nicht unterschreibt die Baugenehmigung trotzdem erteilen, falls Alle baurechtlichen Belange eingehalten werden. Was ich aber bereits im anderen Beitrag anzweifelte.
Zur Frage wichtig ist das Bundesland, denn überall herrschen andere Gesetze. In diesem Fall dreht es sich um Hamburg.
Es ist unwichtig, was der Nachbar mag und denkt, wenn die Abstände eingehalten werden. Alles andere ist nur Sache des Bauamtes.
In Hamburg gilt der Mindestabstand 2,50. Allerdings handelt es sich hier um eine Doppelhausbebauung, betrifft also die Seite zur anderen Doppelhaushälfte nicht.
Es ist unwichtig, was der Nachbar mag und denkt, wenn die Abstände eingehalten werden. Alles andere ist nur Sache des Bauamtes.
In Hamburg gilt der Mindestabstand 2,50. Allerdings handelt es sich hier um eine Doppelhausbebauung, betrifft also die Seite zur anderen Doppelhaushälfte nicht.
L
lucaskilam28.11.25 00:34Da für unser Grundstück geschlossene Bauweise gilt, müssen wir seitlich grenzständig bauen und es gibt keine Abstandsflächen. Deshalb dürfen wir auch höher als der Nachbar bauen ohne Abstand halten zu müssen solange wir die zulässige Gebäudehöhe und 1,5 Geschosse einhalten. Ausserdem benötigen wir hierfür keine Zustimmung des Nachbarn Ist das so korrekt?
Ähnliche Themen