Hallo liebe Hausbau-Begeisterte,
Wir wollen uns unseren Traum vom Eigenheim erfüllen und haben schon fleißig geplant. Ein Grundstück haben wir auch schon ergattert und somit kann es bald losgehen.
Geplant ist ein freistehendes Einfamilienhaus in Holzständerbauweise (Wände verputzt), mind. KFW70, ohne Keller.
Das Grundstück ist leicht abschüssig (von Ost nach West), laut bebauungsplan darf 2m abgetragen und 1,5m aufgebaut werden. Es gibt eine Bebauungsgrenze im Norden (Nordkante des Hauses), eine Befreiung zur Baugrenzenüberschreitung für die Garage bekomme ich. Wir haben 2 Kinder und ich arbeite im Homeoffice.
Es soll eine Sole-Wärmepumpe und eine zentrale Wohnraumbelüftung geben (wenn das Budget reicht 😉)
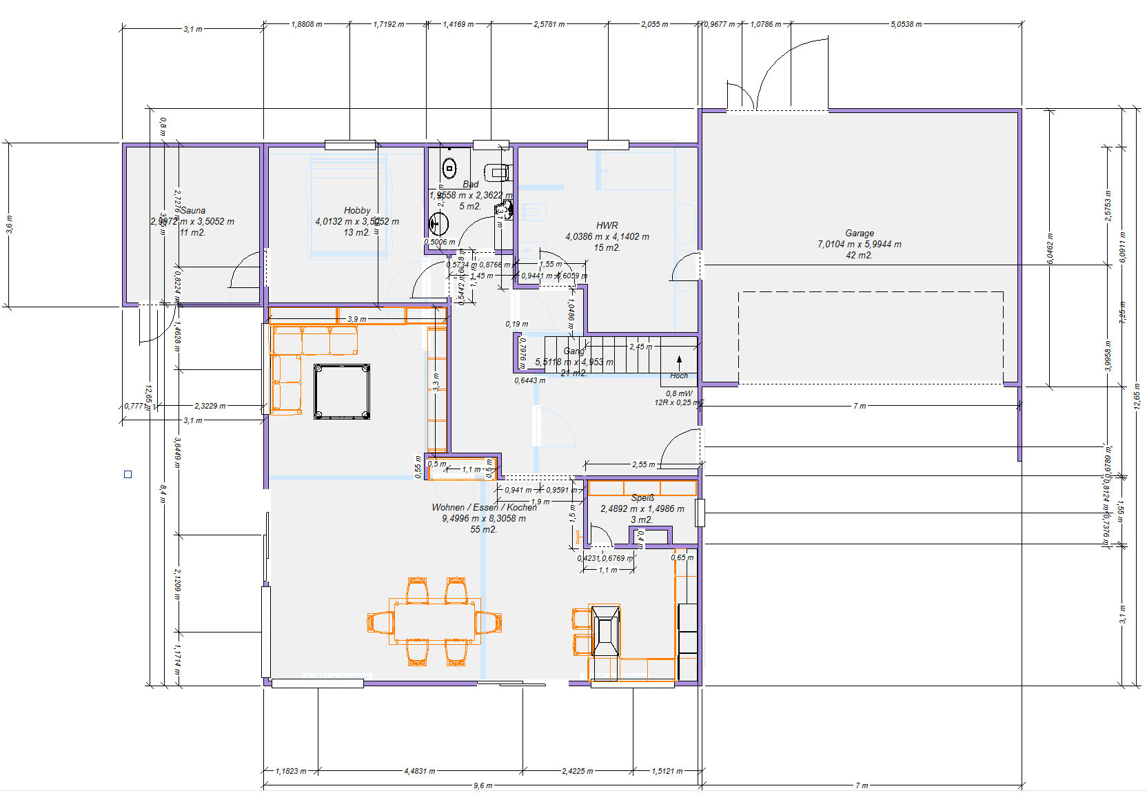
Aus der Westseite soll es einen Anbau geben (nicht in der Gebäudeisolierung), in dem die Sauna untergebracht wird. Das Dach des Anbaus dient als Dachterrasse.
Erlaubter Kniestock: 2,00m bei einer Dachneigung von 25°.
Hmm, was ist sonst noch wichtig...??
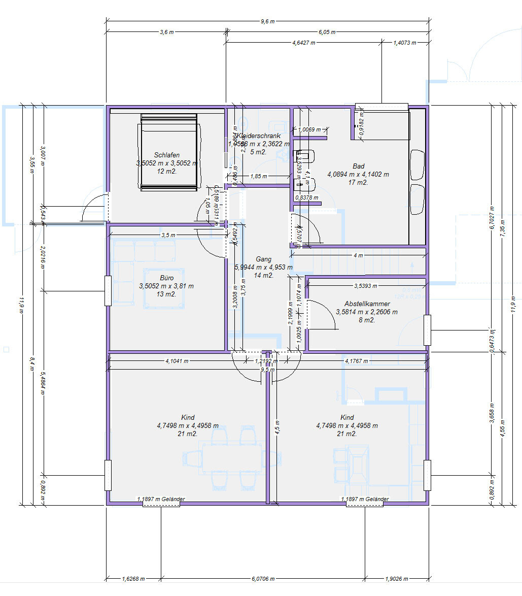
Anbei noch Bilder vom Grundriss, 3D vom Haus und die Lage des Hauses im Grundstück (mit Ausrichtung)
Vielen Dank und ich bin sehr gespannt auf Eure Meinung.
Gruß,
Thomas

Wir wollen uns unseren Traum vom Eigenheim erfüllen und haben schon fleißig geplant. Ein Grundstück haben wir auch schon ergattert und somit kann es bald losgehen.
Geplant ist ein freistehendes Einfamilienhaus in Holzständerbauweise (Wände verputzt), mind. KFW70, ohne Keller.
Das Grundstück ist leicht abschüssig (von Ost nach West), laut bebauungsplan darf 2m abgetragen und 1,5m aufgebaut werden. Es gibt eine Bebauungsgrenze im Norden (Nordkante des Hauses), eine Befreiung zur Baugrenzenüberschreitung für die Garage bekomme ich. Wir haben 2 Kinder und ich arbeite im Homeoffice.
Es soll eine Sole-Wärmepumpe und eine zentrale Wohnraumbelüftung geben (wenn das Budget reicht 😉)
Aus der Westseite soll es einen Anbau geben (nicht in der Gebäudeisolierung), in dem die Sauna untergebracht wird. Das Dach des Anbaus dient als Dachterrasse.
Erlaubter Kniestock: 2,00m bei einer Dachneigung von 25°.
Hmm, was ist sonst noch wichtig...??
Anbei noch Bilder vom Grundriss, 3D vom Haus und die Lage des Hauses im Grundstück (mit Ausrichtung)
Vielen Dank und ich bin sehr gespannt auf Eure Meinung.
Gruß,
Thomas
Hallo,
ohne Bemaßungen kann man euch nicht wirklich weiter helfen.
Was jedoch ins Auge sticht: sehr viel verschwendeter Raum (Verkehrsflächen, Esszimmer) und dafür extreme Engpässe an anderen Stellen (Schlafen, WC, Speis). Für das Geld was dieser Bau kosten wird, nicht gelungen!
Ihr solltet mit eurem gewünschten Raumprogramm zu einem Profi gehen. Der kann euch da viel schöneres zaubern!
Übrigens legt man sich erst auf eine Heizung fest, wenn man die Heizlast des Gebäudes kennt und weiß welche Investitionen sich überhaupt jemals auszahlen werden. 😉
ohne Bemaßungen kann man euch nicht wirklich weiter helfen.
Was jedoch ins Auge sticht: sehr viel verschwendeter Raum (Verkehrsflächen, Esszimmer) und dafür extreme Engpässe an anderen Stellen (Schlafen, WC, Speis). Für das Geld was dieser Bau kosten wird, nicht gelungen!
Ihr solltet mit eurem gewünschten Raumprogramm zu einem Profi gehen. Der kann euch da viel schöneres zaubern!
Übrigens legt man sich erst auf eine Heizung fest, wenn man die Heizlast des Gebäudes kennt und weiß welche Investitionen sich überhaupt jemals auszahlen werden. 😉
Noch was zum Platz:
Gruß,
Thomas
- Eingangsbereich: wollen wir großzügig halten, so dass man sich nicht auf den Füßen steht, wenn man mit 2 Kindern nach Hause kommt
- Essbereich: Es soll noch Platz zum spielen für die Kinder vorhanden sein
- Schlafzimmer: reicht uns aus, da wir uns hier ja nicht aufhalten, und es gibt einen begehbaren kleiderschrank
- WC: da hat doch alles Platz, oder fehlt was?
Gruß,
Thomas
Als nördlicher Bewohner dieser Republik, frage ich mich erstmal : Was ist denn Speiß ???
Noch eine Frage : Welchen Zweck hat diese Nische neben dem Eingang zum Ess-/Wohnzimmer ?
Die Proportionen Esszimmer - Wohnzimmer sind in der Tat ungewöhnlich.
Ich würde den Speiß ??!! irgendwo anders hinlegen und den gesamten Eingangsbereich, Wohn- und Esszimmer, Küche und
Flur kalt. offen gestalten. Gerade bei Holzständerbauweise wird es so richtig schick.
Der Kleiderschrank müsste doch eigentlich vom Bad aus begehbar sein. Am besten durch den Kleiderschrank ins Bad,
Hat das Haus ein Architekt geplant, oder ist das alles "Eigenproduktion" ?
Noch eine Frage : Welchen Zweck hat diese Nische neben dem Eingang zum Ess-/Wohnzimmer ?
Die Proportionen Esszimmer - Wohnzimmer sind in der Tat ungewöhnlich.
Ich würde den Speiß ??!! irgendwo anders hinlegen und den gesamten Eingangsbereich, Wohn- und Esszimmer, Küche und
Flur kalt. offen gestalten. Gerade bei Holzständerbauweise wird es so richtig schick.
Der Kleiderschrank müsste doch eigentlich vom Bad aus begehbar sein. Am besten durch den Kleiderschrank ins Bad,
Hat das Haus ein Architekt geplant, oder ist das alles "Eigenproduktion" ?
"Speiß" ist die Speisekammer (zur Aufbewahrung von Lebensmitteln und sperrigen Küchenutensilien) 😉, deshalb neben der Küche am besten positioniert.
Ich seh das nicht als getrenntes Wohn / Esszimmer. Der Bereich des Sofas soll mehr eine Entertainment-Ecke sein.
In die Nische soll ein Einbauschrank (für Geschirr) eingebaut werden.
Hab auch schon daran gedacht, den Kleiderschrank als Durchgang zu gestalten, jedoch geht so viel Stauraum (durch die Türe) verloren.
Das Haus ist komplett Eigengeplant 😕
Gruß,
Tom
Ich seh das nicht als getrenntes Wohn / Esszimmer. Der Bereich des Sofas soll mehr eine Entertainment-Ecke sein.
In die Nische soll ein Einbauschrank (für Geschirr) eingebaut werden.
Hab auch schon daran gedacht, den Kleiderschrank als Durchgang zu gestalten, jedoch geht so viel Stauraum (durch die Türe) verloren.
Das Haus ist komplett Eigengeplant 😕
Gruß,
Tom
Ähnliche Themen