ᐅ Meinung zur Badplanung
Erstellt am: 04.01.17 22:33
Hallo,
wir sind noch in der Planung des Grundrisses, sind also noch voll flexibel was Türen, Fenster und Leitungen angeht.
Ich würde gerne eure Meinung zu unserer Idee bezüglich der Badanordnung hören, da wir selber noch sehr unsicher sind.
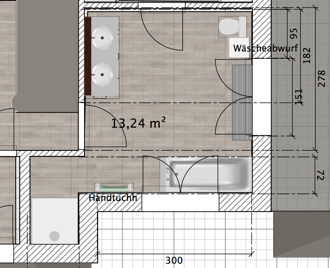
Wir sind uns bewusst, dass durch die beiden Türen und den Wäscheabwurfschacht kaum Stauraum zur Verfügung steht, aber wir wollen die Bank unter dem Fenster auch als Stauraum nutzen. Der Eingang in die Dusche ist mit 70cm sehr klein aber für uns ausreichend.
Wir stellen uns einen sehr großen Waschtisch mit Aufsatzbecken und Unterputzarmaturen vor. Bei den Waschtischen >=160cm habe ich bisher nur den Villeroy & Boch Legato waschtischunterschrank gefunden. Was sind eure Meinung und Empfehlung zu der Idee.
Genauso wollen wir Armaturen die wenig empfindlich gegenüber Wassertropfen sind, deswegen UP. Habt ihr dazu eine Meinung.

wir sind noch in der Planung des Grundrisses, sind also noch voll flexibel was Türen, Fenster und Leitungen angeht.
Ich würde gerne eure Meinung zu unserer Idee bezüglich der Badanordnung hören, da wir selber noch sehr unsicher sind.
Wir sind uns bewusst, dass durch die beiden Türen und den Wäscheabwurfschacht kaum Stauraum zur Verfügung steht, aber wir wollen die Bank unter dem Fenster auch als Stauraum nutzen. Der Eingang in die Dusche ist mit 70cm sehr klein aber für uns ausreichend.
Wir stellen uns einen sehr großen Waschtisch mit Aufsatzbecken und Unterputzarmaturen vor. Bei den Waschtischen >=160cm habe ich bisher nur den Villeroy & Boch Legato waschtischunterschrank gefunden. Was sind eure Meinung und Empfehlung zu der Idee.
Genauso wollen wir Armaturen die wenig empfindlich gegenüber Wassertropfen sind, deswegen UP. Habt ihr dazu eine Meinung.
hm ... alles ohne Dachschrägen?
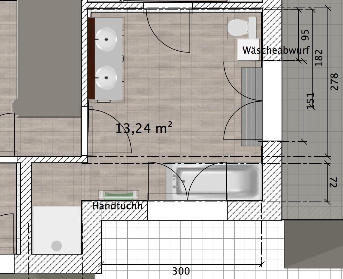
Ist der dunkle Fleck links eine Treppe? Dann paßt da der Anschluss vielleicht nicht ganz, evtl. paßt die Tür gar nicht so, wie jetzt eingezeichnet.
WC und neben dem Pott gleich der Wäscheschacht könnte eng fürs WC werden, dafür in der Mitte ein Tanzsaal.
Unterschränke für Waschbecken ... da sollte man auch mal beim Küchenlieferanten sehen. Die können da einiges liefern, zusammen mit z. B. Corian-Arbeitsplatten ergibt das schöne Ergebnisse.
Ist der dunkle Fleck links eine Treppe? Dann paßt da der Anschluss vielleicht nicht ganz, evtl. paßt die Tür gar nicht so, wie jetzt eingezeichnet.
WC und neben dem Pott gleich der Wäscheschacht könnte eng fürs WC werden, dafür in der Mitte ein Tanzsaal.
Unterschränke für Waschbecken ... da sollte man auch mal beim Küchenlieferanten sehen. Die können da einiges liefern, zusammen mit z. B. Corian-Arbeitsplatten ergibt das schöne Ergebnisse.
Ja das ist eine Treppe, die Anordnung der Tür müsste eigentlich funktionieren.
Das ist richtig die Ecke ist sehr eng. Aber welche Alternative hätte man für die Positionierung des WC und der Abwurfklappe?
Corian Arbeitsplatte ist eine gute Idee. Aber die Frau des Hauses hat natürlich die Bedenken, dass wenn man keine Badlinie nimmt, dass es zu gestückelt aussieht. Aber da wir kaum Schränke haben, kann man sicher nicht unterscheiden ob WC zu Waschtischunterschrank passt.
Das Haus ist noch nicht im Bau die Grundrisse sind noch sehr flexibel. Die Anordnung der Treppe wurde aber von dem Bauträger schon abgesegnet.


Das ist richtig die Ecke ist sehr eng. Aber welche Alternative hätte man für die Positionierung des WC und der Abwurfklappe?
Corian Arbeitsplatte ist eine gute Idee. Aber die Frau des Hauses hat natürlich die Bedenken, dass wenn man keine Badlinie nimmt, dass es zu gestückelt aussieht. Aber da wir kaum Schränke haben, kann man sicher nicht unterscheiden ob WC zu Waschtischunterschrank passt.
Das Haus ist noch nicht im Bau die Grundrisse sind noch sehr flexibel. Die Anordnung der Treppe wurde aber von dem Bauträger schon abgesegnet.
Hmm, warumgibt es dann keine Profizeichnungen 😉
Was bedeuten die gestrichelten Linien im OG-Bad?
Ist das OG ein Vollgeschoss? Wenn nein, wie liegt das Dach ... vermutlich ja so, dass man evtl. aus der Dusche gar nicht rauskommt.
Und, Badtür geht nur mit Überlappung der Treppe durch Boden des OG. Da muss man genau die Höhen beachten. Sonst hat man als großer Mensch beim Runtergehen der Treppe die Kante vorm Kopf.
Die Ankleide bietet ja nicht wirklich viel Schrankplatz.
Was bedeuten die gestrichelten Linien im OG-Bad?
Ist das OG ein Vollgeschoss? Wenn nein, wie liegt das Dach ... vermutlich ja so, dass man evtl. aus der Dusche gar nicht rauskommt.
Und, Badtür geht nur mit Überlappung der Treppe durch Boden des OG. Da muss man genau die Höhen beachten. Sonst hat man als großer Mensch beim Runtergehen der Treppe die Kante vorm Kopf.
Die Ankleide bietet ja nicht wirklich viel Schrankplatz.
Ähnliche Themen