ᐅ Mehrfamilienhaus: Platzierung der Wohneinheiten, Bäume etc.
Erstellt am: 11.08.14 13:57
R
Reiner_1978R
Reiner_197811.08.14 13:57Hallo.
Ich habe ein Grundstück ins Auge gefasst. Folgende Fragen tun sich auf:
1. Es soll ein Mehrfamilienhaus gebaut werden. Sind daran Vorgaben geknüpft, wie die einzelnen Wohneinheiten im Haus zu platzieren sind? Ich möchte eine Art Doppelhaus mit darüber befindlicher weiterer Wohneinheit bauen (also drei Einheiten; eben nur nicht stur übereinander)
2. Es befinden sich Bäume auf dem Grundstück. Dummerweise da, wo die Parkplätzen hin könnten. Ich seh sonst kaum Möglichkeiten.
Erhält man Fällgenehmigungen (die Bäume sind durch die Baumschutzsatzung geschützt)?
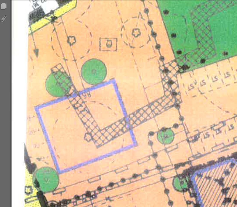
3. Auf dem Bebauungsplan gibt es ist etwas eingezeichnet, was ich nicht zuordnen kann. Dieser ungerade "Weg" mit der Karomusterung, siehe Anlage.
Vielen Dank für eure Hilfe.
Reiner

Ich habe ein Grundstück ins Auge gefasst. Folgende Fragen tun sich auf:
1. Es soll ein Mehrfamilienhaus gebaut werden. Sind daran Vorgaben geknüpft, wie die einzelnen Wohneinheiten im Haus zu platzieren sind? Ich möchte eine Art Doppelhaus mit darüber befindlicher weiterer Wohneinheit bauen (also drei Einheiten; eben nur nicht stur übereinander)
2. Es befinden sich Bäume auf dem Grundstück. Dummerweise da, wo die Parkplätzen hin könnten. Ich seh sonst kaum Möglichkeiten.
Erhält man Fällgenehmigungen (die Bäume sind durch die Baumschutzsatzung geschützt)?
3. Auf dem Bebauungsplan gibt es ist etwas eingezeichnet, was ich nicht zuordnen kann. Dieser ungerade "Weg" mit der Karomusterung, siehe Anlage.
Vielen Dank für eure Hilfe.
Reiner
D
Doc.Schnaggls11.08.14 14:07Hallo Reiner,
wie Du das Haus aufteilst bleibt Dir überlassen - solange der bebauungsplan eingehalten wird, kannst Du die einzelnen Wohneinheiten schieben wie Du magst.
Bezüglich der Bäume würde ich mich direkt bei der Stadt oder Gemeinde schlau machen - hier wird Dir niemand eine belastbare Aussage liefern können.
Der "ungerade, karierte Weg" könnte eventuell ein Leitungsrecht sein - wenn hierzu nichts in der Legende des Bebauungsplanes steht, würde auch hier bei der Stadt / Gemeinde nachfragen.
Grüße,
Dirk
wie Du das Haus aufteilst bleibt Dir überlassen - solange der bebauungsplan eingehalten wird, kannst Du die einzelnen Wohneinheiten schieben wie Du magst.
Bezüglich der Bäume würde ich mich direkt bei der Stadt oder Gemeinde schlau machen - hier wird Dir niemand eine belastbare Aussage liefern können.
Der "ungerade, karierte Weg" könnte eventuell ein Leitungsrecht sein - wenn hierzu nichts in der Legende des Bebauungsplanes steht, würde auch hier bei der Stadt / Gemeinde nachfragen.
Grüße,
Dirk
R
Reiner_197811.08.14 14:19Danke für die schnelle Antwort.
Ich habe von der Stadt lediglich die Vorgaben 3 Vollgeschosse mit Pultdach (+ mögliches Staffelgeschoss) maximal 14 m hoch gehört. Baufenster ist ja auch dem Bild.
Das heißt, ich bin auch hinsichtlich der Fenster frei?
Ich will in der ersten Etage schöne große Fenstertüren verbauen mit Zugang zu den Terrassen. Es soll nicht so aussehen, wie die üblichen Mehrfamilienhäuser.
Ich habe von der Stadt lediglich die Vorgaben 3 Vollgeschosse mit Pultdach (+ mögliches Staffelgeschoss) maximal 14 m hoch gehört. Baufenster ist ja auch dem Bild.
Das heißt, ich bin auch hinsichtlich der Fenster frei?
Ich will in der ersten Etage schöne große Fenstertüren verbauen mit Zugang zu den Terrassen. Es soll nicht so aussehen, wie die üblichen Mehrfamilienhäuser.
D
Doc.Schnaggls11.08.14 14:43Ich tu mich mit dem Bild etwas schwer - ist der violette Rahmen das Baufenster, oder ist er das ganze Grundstück?
Fenster kannst Du relativ frei planen, wenn nichts anderes im Bebauungsplan steht - aufpassen musst Dú nur bei direkter Grenzbebauung, da sind "normale" Fenster nur sehr eingeschränkt möglich.
Fenster kannst Du relativ frei planen, wenn nichts anderes im Bebauungsplan steht - aufpassen musst Dú nur bei direkter Grenzbebauung, da sind "normale" Fenster nur sehr eingeschränkt möglich.
R
Reiner_197811.08.14 14:53Bäume dürfen nicht "einfach so" gefällt werden, wenn sie eine bestimmte Größe (gemessen als Stammumfang) erreicht haben. Der Vermesser nimmt alle Bäume mit in den amtlichen Lageplan auf. Das Bauamt beteiligt dann ggf. das Umweltamt am genehmigungsverfahren der Baugenehmigung. Im Ergebnis wird in der Baugenehmigung stehen, wie Du mit den Bäumen zu verfahren hast, also z. B. Fällen erlaubt, wenn dafür x Ersatzpflanzungen auf Deinem Grundstück gemacht werden. Man kann sich von den Ersatzpflanzungen aber evtl. auch freikaufen. Es kann sein, dass das Fällen nicht zur Vogelbrutzeit erlaubt ist.
So war das alles bei uns.
Deine lokalen Regelungen können/werden abweichen. Spreche freundlich beim Umweltamt vor und schildere die Lage.
Nachtrag: für den Baum mitten im Baufenster wirst Du ohne Probleme eine Fällgenehmigung bekommen und wirst ihn vermutlich auch jederzeit fällen dürfen.
So war das alles bei uns.
Deine lokalen Regelungen können/werden abweichen. Spreche freundlich beim Umweltamt vor und schildere die Lage.
Nachtrag: für den Baum mitten im Baufenster wirst Du ohne Probleme eine Fällgenehmigung bekommen und wirst ihn vermutlich auch jederzeit fällen dürfen.
Ähnliche Themen