Hi,
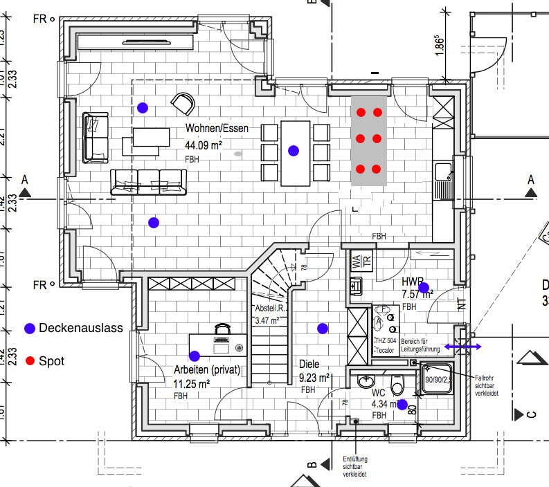
wir sind nun in der Endphase er Planungen und stehen nun vor dem Problem wie wir Deckenauslässe und Deckenspots am besten anordnen. Da würde ich gerne noch ein paar Meinungen haben.
Da Deckenspots, besonders direkt in der Betondecke, recht kostspielig sind bei unserem GU (90€ in abgehängter Decke, 180 direkt in der Betondecke) habe ich versucht sie sparsam zu dosieren, aber auch ausreichend um es hell genug zu bekommen?
Das EG:
Hier ist die größte Frage die Beleuchtung der Küchenhalbinsel. Meine Idee ist direkt über der Insel die Decke abzuhängen und mit 6 Spots und indirekter Beleuchtung rundum zu arbeiten.

Das OG:

wir sind nun in der Endphase er Planungen und stehen nun vor dem Problem wie wir Deckenauslässe und Deckenspots am besten anordnen. Da würde ich gerne noch ein paar Meinungen haben.
Da Deckenspots, besonders direkt in der Betondecke, recht kostspielig sind bei unserem GU (90€ in abgehängter Decke, 180 direkt in der Betondecke) habe ich versucht sie sparsam zu dosieren, aber auch ausreichend um es hell genug zu bekommen?
Das EG:
Hier ist die größte Frage die Beleuchtung der Küchenhalbinsel. Meine Idee ist direkt über der Insel die Decke abzuhängen und mit 6 Spots und indirekter Beleuchtung rundum zu arbeiten.
Das OG:
K
Knallkörper24.10.16 10:11Hallo,
ich denke, in der Dusche ist es zu dunkel. Ich würde einen davor und einen Spot "in" die Dusche planen. Beim WC ist das ähnlich. Welchen Abstand zwischen den Spots hast du vor dem Waschtisch?
Ansonsten sollten die Spot-Abstände zum Abstrahlwinkel des Leuchtmittels passen, aber das kannst du ja später noch wählen.
Habt ihr eine integrierte Abluftlösung in der Kochinsel oder eine Abzugshaube? Ich würde die mittlere Fläche in der Küche wohl auch beleuchten, wohl über einen zweiten Schaltkreis. Wird sonst ggf. zu dunkel besonders zum Putzen.
ich denke, in der Dusche ist es zu dunkel. Ich würde einen davor und einen Spot "in" die Dusche planen. Beim WC ist das ähnlich. Welchen Abstand zwischen den Spots hast du vor dem Waschtisch?
Ansonsten sollten die Spot-Abstände zum Abstrahlwinkel des Leuchtmittels passen, aber das kannst du ja später noch wählen.
Habt ihr eine integrierte Abluftlösung in der Kochinsel oder eine Abzugshaube? Ich würde die mittlere Fläche in der Küche wohl auch beleuchten, wohl über einen zweiten Schaltkreis. Wird sonst ggf. zu dunkel besonders zum Putzen.
Es gibt Lichtdesigner, die machen sowas professionell. Würd ich immer empfehlen.
Unabhängige Lichtdesigner kosten (mehr) oder einen Lichtdesigner aus einem Lampenhaus, da ist die Planung oft enthalten, wenn man dann die Leuchten auch dort kauft.
Man kann mit Licht viel machen, aber eben auch viel kaputt machen. Daher würde ich die Kosten für so eine Beratung immer gerne zahlen. Ich habe ein Angebot für 3.500€ für das komplette Haus; dafür erhalten wir dann aber auch einen kompletten Verkabelungsplan, inkl. Steckdosen, Kommunikationselektrik etc. Das ist ein unabhängiger Lichtdesigner, der nur empfiehlt, aber bei dem wir dann letztendlich nicht kaufen müssen, wenn wir nicht wollen. Vorhandene Lampen etc. können mit verplant werden, wenn man will.
Allein schon das vorab Gespräch war spannend und im wahrsten Sinne des Wortes "erhellend".
Würd ich mir in jedem Fall mal überlegen (und geht sicher billiger auch). die Lösungen mit den Deckenleuchten immer in der Mitte des Raumes ist meist nur eine Notlösung (z.B. im Arbeitszimmer: was soll damit beleuchtet werden? Wäre es nicht klüger die Wände anzustrahlen? Da stehen die Regale und wie soll ich dort was finden, wenn die Lampe im Rücken ist???)
Auch bei Häusern mit großen Fensterflächen läßt sich mit entsprechender Beleuchtung verhindern, daß am Abend die Leute von außen quasi Homekino geboten bekommen. Etc.
Da ist soviel möglich und das Thema ist extrem spannend. Außerdem bin ich zutiefst davon überzeugt, daß man damit mit rel. geringem Einsatz einen deutlichen Zuwachs der Wohnqualität erhält.
Unabhängige Lichtdesigner kosten (mehr) oder einen Lichtdesigner aus einem Lampenhaus, da ist die Planung oft enthalten, wenn man dann die Leuchten auch dort kauft.
Man kann mit Licht viel machen, aber eben auch viel kaputt machen. Daher würde ich die Kosten für so eine Beratung immer gerne zahlen. Ich habe ein Angebot für 3.500€ für das komplette Haus; dafür erhalten wir dann aber auch einen kompletten Verkabelungsplan, inkl. Steckdosen, Kommunikationselektrik etc. Das ist ein unabhängiger Lichtdesigner, der nur empfiehlt, aber bei dem wir dann letztendlich nicht kaufen müssen, wenn wir nicht wollen. Vorhandene Lampen etc. können mit verplant werden, wenn man will.
Allein schon das vorab Gespräch war spannend und im wahrsten Sinne des Wortes "erhellend".
Würd ich mir in jedem Fall mal überlegen (und geht sicher billiger auch). die Lösungen mit den Deckenleuchten immer in der Mitte des Raumes ist meist nur eine Notlösung (z.B. im Arbeitszimmer: was soll damit beleuchtet werden? Wäre es nicht klüger die Wände anzustrahlen? Da stehen die Regale und wie soll ich dort was finden, wenn die Lampe im Rücken ist???)
Auch bei Häusern mit großen Fensterflächen läßt sich mit entsprechender Beleuchtung verhindern, daß am Abend die Leute von außen quasi Homekino geboten bekommen. Etc.
Da ist soviel möglich und das Thema ist extrem spannend. Außerdem bin ich zutiefst davon überzeugt, daß man damit mit rel. geringem Einsatz einen deutlichen Zuwachs der Wohnqualität erhält.
J
j.bautsch24.10.16 10:22wow, jetzt mal nur zur grundaufteilung, als Kind 2 würde ich mich aber derbe beschweren. da kann man ja nichts machen in dem Zimmer außer sich ins Bett zu schlängeln oder am pc zu sitzen. Platz auf dem Boden zum spiele ist da jedenfalls nicht wirklich (wenn das Kind allerdings kurz vorm ausziehen ist wäre es vllt ne andere Sache)
j.bautsch schrieb:
wow, jetzt mal nur zur grundaufteilung, als Kind 2 würde ich mich aber derbe beschweren. da kann man ja nichts machen in dem Zimmer außer sich ins Bett zu schlängeln oder am pc zu sitzen. Platz auf dem Boden zum spiele ist da jedenfalls nicht wirklich (wenn das Kind allerdings kurz vorm ausziehen ist wäre es vllt ne andere Sache)Steht der Grundriss noch zur Diskussion? Da fände ich einiges zum Anmerken, hab's mir aber verkniffen, weil hier nur nach Beleuchtung gefragt wurde.
Gebe hier aber j.bautsch absolut recht.
Ich frage mich eh immer, was die Leute in ihren Schlafzimmern immer so machen... viele gönnen sich da die Sahneschnitte des Grundrisses. Wie hier auch. Also wir schlafen im Schlafzimmer und das war's dann auch. Werde nie verstehen, warum man da z.B. dann so eine luxuriöse Dachterrasse braucht. Wann wird die genutzt?
Dafür Kind zwei in ein absolut unzulängliches Zimmer stecken. Interessant wäre auch, wo hier Norden ist. Ich wage die Behauptung: Schlafzimmer in schönster Südlage, Kind 2 lebt dafür dunkel.
Ähnliche Themen