K
krachbumms16.10.15 08:04Ich bin noch nicht zufrieden, mit allen Varianten, die ich mir zur Positionierung von Brennstellen für unseren offenen Wohn/Essbereich ausgedacht habe - vielleicht hat jemand den entscheidenden Vorschlag?
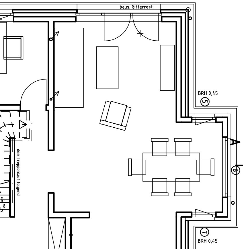
Anbei der Grundriss-Auszug.
Wir planen mit 230V Brennstelen für Hängelampen und Aufputzspots.
An das Esszimmer schließt sich unten noch die offene Küche mit Insel an - da steht die Beleuchtung bereits.
Fest steht: Über den esstisch sollen 2 Auslässe und über den Wohnzimmertisch eine Brennstelle (jeweils für Hängelampen und separat schaltbar)
Aber wie sorge ich für eine stimmige Allgemeinbeleuchtung in Wohnen und Essen?
Angemacht hatte ich zwei 3er Reihen Aufputzspots (Dammbar) vom Flur in die beiden Ecken. Aber dann fehlt mir noch Licht im Wohnzimmer...
Und wenn ich dort ebenfalls 4 Aufputzspots in die „Ecken“ plane, sind die Abstände zwischen den Spots irgendwie unglücklich (zwischen Essen und Wohnen zu eng). Auch frage ich mich, ob so wenige Spots überhaupt ausreichend Licht erzeugen?
Bin bei dem Thema totaler DAU und muss innerhalb der nächsten Tage unserem Hausbauer die finale Planung vorlegen.

Anbei der Grundriss-Auszug.
Wir planen mit 230V Brennstelen für Hängelampen und Aufputzspots.
An das Esszimmer schließt sich unten noch die offene Küche mit Insel an - da steht die Beleuchtung bereits.
Fest steht: Über den esstisch sollen 2 Auslässe und über den Wohnzimmertisch eine Brennstelle (jeweils für Hängelampen und separat schaltbar)
Aber wie sorge ich für eine stimmige Allgemeinbeleuchtung in Wohnen und Essen?
Angemacht hatte ich zwei 3er Reihen Aufputzspots (Dammbar) vom Flur in die beiden Ecken. Aber dann fehlt mir noch Licht im Wohnzimmer...
Und wenn ich dort ebenfalls 4 Aufputzspots in die „Ecken“ plane, sind die Abstände zwischen den Spots irgendwie unglücklich (zwischen Essen und Wohnen zu eng). Auch frage ich mich, ob so wenige Spots überhaupt ausreichend Licht erzeugen?
Bin bei dem Thema totaler DAU und muss innerhalb der nächsten Tage unserem Hausbauer die finale Planung vorlegen.
N
nordanney16.10.15 12:03Lampen(Möglichkeiten) kann man nicht genug haben. Allgemein: Licht an der Decke, um es hell zu bekommen.
Wandlampen z.B. über Sideboard oder neben Schränken, Stehlampen, Tischlampen auf Sideboard, Wandkerzen, Beleuchtung im Sideboard oder Schrank, Effektspots für Bilder oder "Kunst". Damit bekommst Du die gemütlich. Wie genau, ist natürlich ein Frage Eurer Einrichtung.
Wir haben im Koch/Wohn/Essbereich insgesamt 16 Möglichkeiten, Licht anzumachen.
Wandlampen z.B. über Sideboard oder neben Schränken, Stehlampen, Tischlampen auf Sideboard, Wandkerzen, Beleuchtung im Sideboard oder Schrank, Effektspots für Bilder oder "Kunst". Damit bekommst Du die gemütlich. Wie genau, ist natürlich ein Frage Eurer Einrichtung.
Wir haben im Koch/Wohn/Essbereich insgesamt 16 Möglichkeiten, Licht anzumachen.
K
krachbumms16.10.15 13:44danke für deinen Input! ich hoffe, es damit einfacher zu machen: Wandlampen möchten wir keine, schränke, in denen sich eine Beleuchtung unterbringen lässt werden wir keine haben. Stehlampen im Couch/TV Bereich platzieren wir nach bedarf.
es geht also erst mal rein um decken-Brennstellen. angenommen ich setze mir 6 Spots wandnah ins Esszimmer und 4 Spots wandnah ins Wohnzimmer - wird das bei einem 35qm Raum ausreichen oder ist das dann eher eine schummerige höhle, die man als viel zu dunkel empfindet?
im Esszimmer könnte ich mir noch zusätzlich zu den Spots eine Deckenlampe vor dem Esstisch im Eingangsbereich vorstellen, aber im Wohnzimmer scheint es mir unstimmig, wenn unweit neben der Couchtischlampe noch eine zweite normale Hängelampe platziert ist.
es geht also erst mal rein um decken-Brennstellen. angenommen ich setze mir 6 Spots wandnah ins Esszimmer und 4 Spots wandnah ins Wohnzimmer - wird das bei einem 35qm Raum ausreichen oder ist das dann eher eine schummerige höhle, die man als viel zu dunkel empfindet?
im Esszimmer könnte ich mir noch zusätzlich zu den Spots eine Deckenlampe vor dem Esstisch im Eingangsbereich vorstellen, aber im Wohnzimmer scheint es mir unstimmig, wenn unweit neben der Couchtischlampe noch eine zweite normale Hängelampe platziert ist.
krachbumms schrieb:
Aber wie sorge ich für eine stimmige Allgemeinbeleuchtung in Wohnen und Essen?krachbumms schrieb:
Angemacht hatte ich zwei 3er Reihen Aufputzspots (Dammbar) vom Flur in die beiden Ecken. Aber dann fehlt mir noch Licht im Wohnzimmer...Versteh ich nicht: vom Flur in Richtung Esszimmerecken? Das hört sich für mich etwas nach gedämmtes Flutlicht an.
Und was willst Du die Ecken beleuchten?
krachbumms schrieb:
Und wenn ich dort ebenfalls 4 Aufputzspots in die „Ecken“ plane, sind die Abstände zwischen den Spots irgendwie unglücklich (zwischen Essen und Wohnen zu eng).Das versteht kein Mensch: was willst Du in den Ecken beleuchten?
krachbumms schrieb:
angenommen ich setze mir 6 Spots wandnah ins Esszimmer und 4 Spots wandnah ins Wohnzimmer...
Du musst unterscheiden, wie es @nordanney schon geschrieben hat: ein allgemeines Licht, welches man mal anmacht, um etwas im Dunkeln zu suchen, zu bügeln ... um eben Licht zu haben.
Und dann Akzentlichte: das können in Reihe gesetzte Spots sein, zB vor einer Fensterfront oder der TV-Wand. Die erhellen aber sicherlich nicht den Rest des Raumes.
Ich lese jetzt nochmals Deinen Beitrag und stelle fest, dass Du nicht von stimmungsvoller Allgemeinbeleuchtung sprichst, sondern das Allgemeinlicht stimmig sein soll.
Wenn der Esstisch so stehen wird, dass Du auch aus dem Erker gehen kannst, hast Du ungefähr die Esszimmermitte. Dort eine dimmbare Lampe, damit hast Du den Raum hell. Oder halt zwei Auslässe auf 50cm oder 100cm Abstand - die würde ich allerdings koppeln.
Mittig des Wohnbereiches würde ich auch ein Hauptlicht separat setzen - hell genug, um diese 16?qm zu beleuchten. Oder einen beweglichen 4er-Spot. Oder aber 4 einzelne Spots in Richtung Raumecken gerade nach unten, aber nicht zu weit in die Ecken. Das muss man mal zeichnen mit einem ungefähren Lichtradius, wo die dann sitzen müssen.
Ich würde das Allgemeinlicht allerdings nicht überbewerten: meist reicht die Esszimmerlampe für alles, was man in dem Bereich macht. Auch Wohnzimmerhauptlicht kann ich an allen 5 Fingern abzählen, wie oft ich dieses im Jahr anmache.
K
krachbumms16.10.15 20:12zunächst mal: das Wohnzimmer ist 430cm breit. Der Erker innen 130cm x 316cm
angehängt mein bisheriger Ansatz mit platzierten Brennstellen, wobei über den tischen Hängelampen und ansonsten aufputzspots angedacht waren.
lese ich das richtig raus, dass das so zu dunkel wird?
da das Wohnzimmer so klein ist, ist die Lampe über dem Tisch ja schon fast mittig - sähe es nicht doof aus, da in 1m Abstand eine zweite zu platzieren?
bzgl. Wandabstand für Spots hab ich mir ergoogelt (quelle weiß ich jetzt nicht mehr), dass man ⅓ der Deckenhöhe (bei uns 275cm) nehmen sollte, also rund 90cm - kommt das hin?
angehängt mein bisheriger Ansatz mit platzierten Brennstellen, wobei über den tischen Hängelampen und ansonsten aufputzspots angedacht waren.
lese ich das richtig raus, dass das so zu dunkel wird?
da das Wohnzimmer so klein ist, ist die Lampe über dem Tisch ja schon fast mittig - sähe es nicht doof aus, da in 1m Abstand eine zweite zu platzieren?
bzgl. Wandabstand für Spots hab ich mir ergoogelt (quelle weiß ich jetzt nicht mehr), dass man ⅓ der Deckenhöhe (bei uns 275cm) nehmen sollte, also rund 90cm - kommt das hin?
K
krachbumms16.10.15 20:29muss mich korrigieren: 90cm zwischen den Spots sagt meine Notiz, wenn in reihe. der erste Spot an einer Wand jedoch mit ca. 50cm Abstand zur selben. (?)
was haltet ihr von dem angehängten Layout? (jeder Buchstabe einzeln schaltbar, die roten rauten markieren die Position der Schalter).
wo wäre ein Dimmer am sinnvollsten - für die Spots in wohnen/essen?
Spots in wohnen essen zusammen schaltbar oder separat?

was haltet ihr von dem angehängten Layout? (jeder Buchstabe einzeln schaltbar, die roten rauten markieren die Position der Schalter).
wo wäre ein Dimmer am sinnvollsten - für die Spots in wohnen/essen?
Spots in wohnen essen zusammen schaltbar oder separat?
Ähnliche Themen